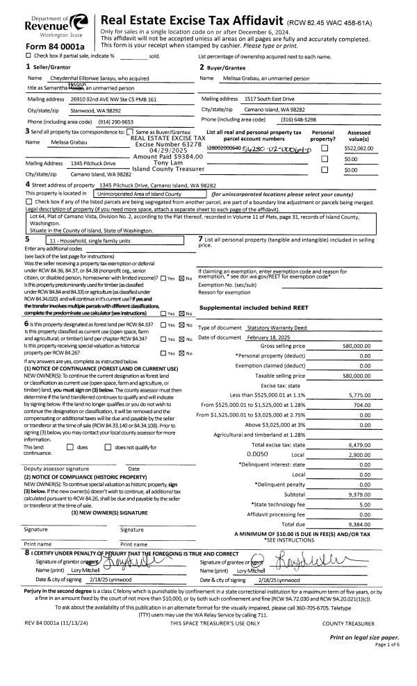
Property
Account |
| Property ID: | 81707 | Abbreviated Legal Description: | N 25 - IN SW NW: BG W/4 CR SEC 17 N1*W399.35' S89*E413 .10' TPB S2*E315.48' N87*E 878.58' N9*W276.42' N89*W 845.83' TPB TGW SUB EZ (TR 10 V4 SUR P246) DRAINFIELD LOC S270'OF 368- 0200 AF#92023724 |
| Geographic ID: | R23117-287-0810 | Agent Code: | |
| Type: | Real | | |
| Tax Area: | 312 - APPRAISER-Cpvl Schl Dist, outside Cpvl, improved, greater than 1 acre | Land Use Code | 11 |
| Open Space: | N | DFL | N |
| Historic Property: | N | Remodel Property: | N |
| Multi-Family Redevelopment: | N | | |
| Township: | 31 | Section: | 17 |
| Range: | R2 |
Location |
| Address: | 480 DALTON RD COUPEVILLE, WA 98239 | Mapsco: | |
| Neighborhood: | Cycle 2 | Map ID: | 488 |
| Neighborhood CD: | 2 |
Owner |
| Name: | TYCHOLIS TTEE, DONALD C | Owner ID: | 301876 |
| Mailing Address: | DIANNA S TYCHOLIS TTEE 480 DALTON RD COUPEVILLE, WA 98239 | % Ownership: | 100.0000000000% |
| | | Exemptions: | |
Taxes and Assessment Details
Values
| (+) Improvement Homesite Value: | + | $0 | |
| (+) Improvement Non-Homesite Value: | + | $720,610 | |
| (+) Land Homesite Value: | + | $0 | |
| (+) Land Non-Homesite Value: | + | $371,856 | |
| (+) Curr Use (HS): | + | $0 | $0 |
| (+) Curr Use (NHS): | + | $0 | $0 |
| | | -------------------------- | |
| (=) Market Value: | = | $1,092,466 | |
| (–) Productivity Loss: | – | $0 | |
| | | -------------------------- | |
| (=) Subtotal: | = | $1,092,466 | |
| (+) Senior Appraised Value: | + | $0 | |
| (+) Non-Senior Appraised Value: | + | $1,092,466 | |
| | | -------------------------- | |
| (=) Total Appraised Value: | = | $1,092,466 | |
| (–) Senior Exemption Loss: | – | $0 | |
| (–) Exemption Loss: | – | $0 | |
| | | -------------------------- | |
| (=) Taxable Value: | = | $1,092,466 | |
Taxing Jurisdiction
| Owner: | TYCHOLIS TTEE, DONALD C | | |
| % Ownership: | 100.0000000000% | | |
| Total Value: | $1,092,466 | | |
| Tax Area: | 312 - APPRAISER-Cpvl Schl Dist, outside Cpvl, improved, greater than 1 acre |
| CF | Conservation Futures | 0.0316035091 | $1,092,466 | $1,092,466 | $34.53 | | |
| CEM2 | Cemetery #2 | 0.0095056933 | $1,092,466 | $1,092,466 | $10.38 | | |
| FIRE5 | Fire & Rescue Dist #5 C Whidbey GEN | 1.2008080668 | $1,092,466 | $1,092,466 | $1,311.84 | | |
| FIRE5BOND | Fire & Rescue Dist #5 C Whidbey BOND | 0.1400090713 | $1,092,466 | $1,092,466 | $152.96 | | |
| HOBOND | Hospital BOND | 0.1910887512 | $1,092,466 | $1,092,466 | $208.76 | | |
| HOGEN | Hospital GEN | 0.3902502903 | $1,092,466 | $1,092,466 | $426.34 | | |
| CE | County Current Expense | 0.3708482477 | $1,092,466 | $1,092,466 | $405.14 | | |
| CR | County Roads | 0.4584763726 | $1,092,466 | $1,092,466 | $500.87 | | |
| ISLANDEMS | Hospital GEN (EMS) | 0.5000000000 | $1,092,466 | $1,092,466 | $546.23 | | |
| LIB | Library Sno-Isle GEN | 0.3153421757 | $1,092,466 | $1,092,466 | $344.50 | | |
| LIBCAP | Library Sno-Isle BOND (Cap Fac Imp Area) | 0.0543427938 | $1,092,466 | $1,092,466 | $59.37 | | |
| POCOUP | Port of Coupeville GEN | 0.1093371703 | $1,092,466 | $1,092,466 | $119.45 | | |
| POCOUPIDD | Port of Coupeville IDD | 0.3409740022 | $1,092,466 | $1,092,466 | $372.50 | | |
| COUPSDTECH | School 204 CP (TECH) | 0.7545480007 | $1,092,466 | $1,092,466 | $824.32 | | |
| SCH204MO | School 204 Enrichment | 0.6716186034 | $1,092,466 | $1,092,466 | $733.72 | | |
| ST | State School | 1.3035497053 | $1,092,466 | $1,092,466 | $1,424.08 | | |
| ST2 | State School Part 2 | 0.8169543533 | $1,092,466 | $1,092,466 | $892.49 | | |
| | Total Tax Rate: | 7.6592568070 | | | | | |
| | | | | Taxes w/Current Exemptions: | $8,367.48 | | |
| | | | | Taxes w/o Exemptions: | $8,367.48 | | |
Improvement / Building
| Improvement #1: | RESIDENTIAL | State Code: | Y | 2480.0 sqft | Value: | $720,610 |
| Bathrooms: | 2.5 | Bedrooms: | 3 | | Ceiling: | DRYWALL PAINTED | Exterior Wall/Cover: | VINYL | | Floor Covering: | HARDWOOD/CARP 60-40 | Floor Structure: | WOOD W/SUBFLOOR | | Foundation: | CONCRETE | Heating: | FHA GAS | | Interior Finish: | DRYWALL PAINT | Plumbing Fixture Cnt: | 14 | | Roof Slope: | 4" IN 12" | Roof Structure/Cover: | CJ ALUMINIUM HEAVY |
|
| | Type | Description | Class CD | Sub Class CD | Year Built | Area |
| | BAS | BASE/MAIN FLOOR | 5 | 0 | 2004 | 1566.2 |
| | oGAR | GARAGE | 4 | 0 | 2005 | 780.0 |
| | UTY | STORAGE/UTILITY | 5 | 0 | 2004 | 36.8 |
| | UPS | UPPER STORY | 5 | 0 | 2004 | 913.8 |
| | BAI | BALCONY IRON RAIL | 5 | 0 | 2004 | 27.6 |
| | OWP | OPEN WOOD PORCH W/STEPS | 5 | 0 | 2004 | 565.3 |
| | OWC | OPEN WOOD PORCH W/STEPS/ROOF/C | 5 | 0 | 2004 | 355.1 |
Sketch
| No sketches available for this property. |
Property Image
Land
| 1 | HS | HOMESITE | 1.0000 | 43560.00 | 0.00 | 0.00 | 1.00 | $340,000 | $0 |
| 2 | 91 | UNDEVELOPED LAND-METES AND BOUNDS | 4.0700 | 177289.20 | 0.00 | 0.00 | 1.00 | $31,856 | $0 |
Roll Value History
| 2026 | N/A | N/A | N/A | N/A | N/A |
| 2025 | $720,610 | $371,856 | $0 | $1,092,466 | $1,092,466 |
| 2024 | $728,212 | $360,000 | $0 | $1,088,212 | $1,088,212 |
| 2023 | $734,334 | $350,000 | $0 | $1,084,334 | $1,084,334 |
| 2022 | $670,853 | $310,000 | $0 | $980,853 | $980,853 |
| 2021 | $496,587 | $260,000 | $0 | $756,587 | $756,587 |
| 2020 | $482,482 | $240,000 | $0 | $722,482 | $722,482 |
| 2019 | $359,920 | $300,000 | $0 | $659,920 | $659,920 |
| 2018 | $349,879 | $260,000 | $0 | $609,879 | $609,879 |
| 2017 | $351,899 | $220,000 | $0 | $571,899 | $571,899 |
| 2016 | $355,897 | $200,000 | $0 | $555,897 | $555,897 |
| 2015 | $359,897 | $168,831 | $0 | $528,728 | $528,728 |
| 2014 | $363,897 | $168,831 | $0 | $532,728 | $532,728 |
| 2013 | $367,894 | $168,831 | $0 | $536,725 | $536,725 |
| 2012 | $378,643 | $168,831 | $0 | $547,474 | $547,474 |
| 2011 | $382,641 | $187,590 | $0 | $570,231 | $570,231 |
| 2010 | $399,858 | $187,590 | $0 | $587,448 | $587,448 |
| 2009 | $416,398 | $202,800 | $0 | $619,198 | $619,198 |
| 2008 | $407,669 | $202,800 | $0 | $610,469 | $610,469 |
| 2007 | $413,706 | $177,450 | $0 | $591,156 | $591,156 |
Deed and Sales History
| 1 | 10/29/2021 | WD | Warranty Deed | ENSEY, JOHN HARRELL | TYCHOLIS TTEE, DONALD C | | | $1,050,000.00 | 50779 | 4533214 |
| 2 | 03/20/2015 | WD | Warranty Deed | PICCO, MICHAEL J | ENSEY, JOHN HARRELL | | | $580,000.00 | 18926 | 4375480 |
| 3 | 05/22/2008 | WD | Warranty Deed | MYERS, DAVID T | PICCO, MICHAEL J | | | $610,000.00 | 81384 | 4229839 |
| 4 | 07/19/2005 | WD | Warranty Deed | RUSSAK, PAUL J | MYERS, DAVID T | | | $485,000.00 | 53632 | 4142363 |
| 5 | 12/01/1992 | WD | Warranty Deed | STEINHOFF, RICHARD L | RUSSAK, PAUL J | | | $43,000.00 | 24803 | 92023722 |
| 6 | 09/01/1980 | EXECUTORD | Executor Deed | MAYON, GEO | STEINHOFF, RICHARD L | | | $35,000.00 | 3301 | 374589 |
| 7 | 07/01/1979 | CD | DNU - Correction Deed | MAYON, GEO | MAYON, GEO | | | $0.00 | 93506 | 355803 |
| 8 | 01/01/1900 | OTHER | Other - Misc. Documents | Unknown | MAYON, GEO | | | $0.00 | 0 | 0 |
Payout Agreement
| No payout information available.. |