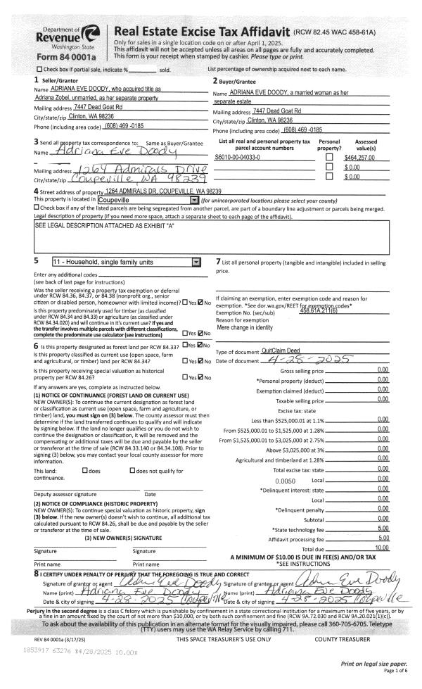
Property
Account |
| Property ID: | 81761 | Abbreviated Legal Description: | (TR 8 V4 SUR P246-47 AF#335308) 23 - IN SW NW: BG W/4 CR SEC 17 N1*W399.35' S89*E 1258.93' N6*W360.53' TPB N6*W132.37' ALG CUR/L 152 .29' S87*W767.82' TO ELN RD SWLY ALG CUR/R 303.58' N87*E910.22' TPB TGW & SUB EZ |
| Geographic ID: | R23117-351-0790 | Agent Code: | |
| Type: | Real | | |
| Tax Area: | 312 - APPRAISER-Cpvl Schl Dist, outside Cpvl, improved, greater than 1 acre | Land Use Code | 11 |
| Open Space: | N | DFL | N |
| Historic Property: | N | Remodel Property: | N |
| Multi-Family Redevelopment: | N | | |
| Township: | 31 | Section: | 17 |
| Range: | R2 |
Location |
| Address: | 930 SUSAN ST COUPEVILLE, WA 98239 | Mapsco: | |
| Neighborhood: | Cycle 2 | Map ID: | 488 |
| Neighborhood CD: | 2 |
Owner |
| Name: | ANDERSON III, WILLIAM J | Owner ID: | 52906 |
| Mailing Address: | DIANE T ANDERSON 930 SUSAN ST COUPEVILLE, WA 98239-4054 | % Ownership: | 100.0000000000% |
| | | Exemptions: | |
Taxes and Assessment Details
Values
| (+) Improvement Homesite Value: | + | $0 | |
| (+) Improvement Non-Homesite Value: | + | $591,737 | |
| (+) Land Homesite Value: | + | $0 | |
| (+) Land Non-Homesite Value: | + | $332,948 | |
| (+) Curr Use (HS): | + | $0 | $0 |
| (+) Curr Use (NHS): | + | $0 | $0 |
| | | -------------------------- | |
| (=) Market Value: | = | $924,685 | |
| (–) Productivity Loss: | – | $0 | |
| | | -------------------------- | |
| (=) Subtotal: | = | $924,685 | |
| (+) Senior Appraised Value: | + | $0 | |
| (+) Non-Senior Appraised Value: | + | $924,685 | |
| | | -------------------------- | |
| (=) Total Appraised Value: | = | $924,685 | |
| (–) Senior Exemption Loss: | – | $0 | |
| (–) Exemption Loss: | – | $0 | |
| | | -------------------------- | |
| (=) Taxable Value: | = | $924,685 | |
Taxing Jurisdiction
| Owner: | ANDERSON III, WILLIAM J | | |
| % Ownership: | 100.0000000000% | | |
| Total Value: | $924,685 | | |
| Tax Area: | 312 - APPRAISER-Cpvl Schl Dist, outside Cpvl, improved, greater than 1 acre |
| CF | Conservation Futures | 0.0316035091 | $924,685 | $924,685 | $29.22 | | |
| CEM2 | Cemetery #2 | 0.0095056933 | $924,685 | $924,685 | $8.79 | | |
| FIRE5 | Fire & Rescue Dist #5 C Whidbey GEN | 1.2008080668 | $924,685 | $924,685 | $1,110.37 | | |
| FIRE5BOND | Fire & Rescue Dist #5 C Whidbey BOND | 0.1400090713 | $924,685 | $924,685 | $129.46 | | |
| HOBOND | Hospital BOND | 0.1910887512 | $924,685 | $924,685 | $176.70 | | |
| HOGEN | Hospital GEN | 0.3902502903 | $924,685 | $924,685 | $360.86 | | |
| CE | County Current Expense | 0.3708482477 | $924,685 | $924,685 | $342.92 | | |
| CR | County Roads | 0.4584763726 | $924,685 | $924,685 | $423.95 | | |
| ISLANDEMS | Hospital GEN (EMS) | 0.5000000000 | $924,685 | $924,685 | $462.34 | | |
| LIB | Library Sno-Isle GEN | 0.3153421757 | $924,685 | $924,685 | $291.59 | | |
| LIBCAP | Library Sno-Isle BOND (Cap Fac Imp Area) | 0.0543427938 | $924,685 | $924,685 | $50.25 | | |
| POCOUP | Port of Coupeville GEN | 0.1093371703 | $924,685 | $924,685 | $101.10 | | |
| POCOUPIDD | Port of Coupeville IDD | 0.3409740022 | $924,685 | $924,685 | $315.29 | | |
| COUPSDTECH | School 204 CP (TECH) | 0.7545480007 | $924,685 | $924,685 | $697.72 | | |
| SCH204MO | School 204 Enrichment | 0.6716186034 | $924,685 | $924,685 | $621.04 | | |
| ST | State School | 1.3035497053 | $924,685 | $924,685 | $1,205.37 | | |
| ST2 | State School Part 2 | 0.8169543533 | $924,685 | $924,685 | $755.43 | | |
| | Total Tax Rate: | 7.6592568070 | | | | | |
| | | | | Taxes w/Current Exemptions: | $7,082.40 | | |
| | | | | Taxes w/o Exemptions: | $7,082.40 | | |
Improvement / Building
| Improvement #1: | RESIDENTIAL | State Code: | Y | 2543.5 sqft | Value: | $591,737 |
| Bathrooms: | 2.5 | Bedrooms: | 3 | | Ceiling: | DRYWALL PAINTED | Exterior Wall/Cover: | CEMENT FIBER | | Floor Covering: | COLORED CONCRETE | Floor Structure: | SLAB ON GRADE | | Foundation: | SLAB | Heating: | RADIANT FLOOR | | Interior Finish: | DRYWALL PAINT | Plumbing Fixture Cnt: | 17 | | Roof Slope: | 6" IN 12" | Roof Structure/Cover: | CJ ASPHALT |
|
| | Type | Description | Class CD | Sub Class CD | Year Built | Area |
| | BAS | BASE/MAIN FLOOR | 5 | 0 | 2009 | 1792.0 |
| | OP4 | OPEN PORCH W/CEILING-ROOF | 5 | 0 | 2009 | 180.0 |
| | OP4 | OPEN PORCH W/CEILING-ROOF | 5 | 0 | 2009 | 598.0 |
| | oGAR | GARAGE | 4 | 0 | 2009 | 792.0 |
| | UPS | UPPER STORY | 5 | 0 | 2009 | 751.5 |
| | ATU | ATTIC UNFINISHED | 5 | 0 | 2009 | 94.0 |
Sketch
| No sketches available for this property. |
Property Image
Land
| 1 | HS | HOMESITE | 1.0000 | 43560.00 | 0.00 | 0.00 | 1.00 | $270,000 | $0 |
| 2 | 91 | UNDEVELOPED LAND-METES AND BOUNDS | 4.2100 | 183387.60 | 0.00 | 0.00 | 1.00 | $62,948 | $0 |
Roll Value History
| 2026 | N/A | N/A | N/A | N/A | N/A |
| 2025 | $591,737 | $332,948 | $0 | $924,685 | $924,685 |
| 2024 | $589,252 | $360,000 | $0 | $949,252 | $949,252 |
| 2023 | $594,202 | $350,000 | $0 | $944,202 | $944,202 |
| 2022 | $542,837 | $310,000 | $0 | $852,837 | $852,837 |
| 2021 | $475,677 | $260,000 | $0 | $735,677 | $735,677 |
| 2020 | $459,795 | $240,000 | $0 | $699,795 | $699,795 |
| 2019 | $356,391 | $300,000 | $0 | $656,391 | $656,391 |
| 2018 | $336,855 | $260,000 | $0 | $596,855 | $596,855 |
| 2017 | $338,687 | $220,000 | $0 | $558,687 | $558,687 |
| 2016 | $342,408 | $200,000 | $0 | $542,408 | $542,408 |
| 2015 | $346,130 | $173,493 | $0 | $519,623 | $519,623 |
| 2014 | $349,852 | $173,493 | $0 | $523,345 | $523,345 |
| 2013 | $353,574 | $173,493 | $0 | $527,067 | $527,067 |
| 2012 | $394,748 | $173,493 | $0 | $568,241 | $568,241 |
| 2011 | $398,861 | $192,770 | $0 | $591,631 | $591,631 |
| 2010 | $399,216 | $192,770 | $0 | $591,986 | $591,986 |
| 2009 | $415,659 | $208,400 | $0 | $624,059 | $624,059 |
| 2008 | $4,000 | $208,400 | $0 | $212,400 | $212,400 |
| 2007 | $4,000 | $182,350 | $0 | $186,350 | $186,350 |
Deed and Sales History
| 1 | 04/25/2002 | WD | Warranty Deed | FUQUAY, SCOTT T | ANDERSON III, WILLIAM J | | | $91,000.00 | 21709 | 4019034 |
| 2 | 07/01/1996 | WD | Warranty Deed | CROWE, EVERETT L | FUQUAY, SCOTT T | | | $68,000.00 | 62793 | 96013637 |
| 3 | 05/01/1979 | REC | Real Estate Contract | MAYON, GEO | CROWE, EVERETT L | | | $37,500.00 | 59797 | 352106 |
| 4 | 01/01/1900 | OTHER | Other - Misc. Documents | Unknown | MAYON, GEO | | | $0.00 | 0 | 0 |
Payout Agreement
| No payout information available.. |