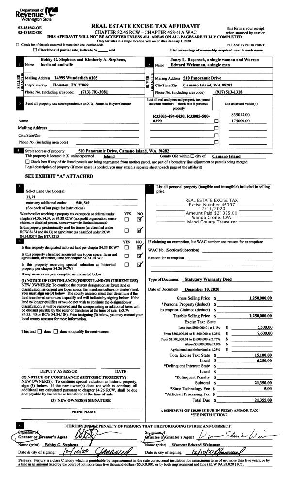
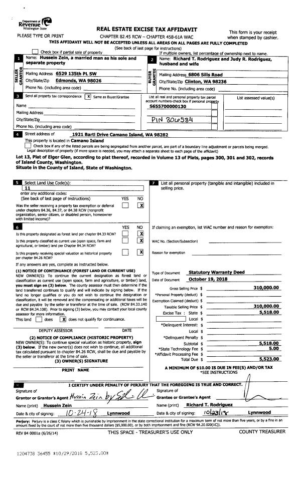
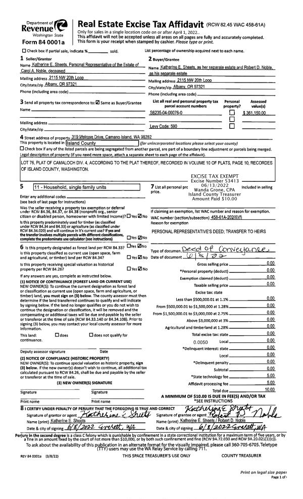
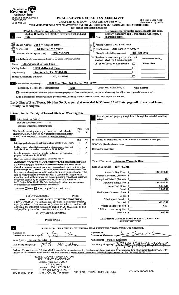
Property
Account |
| Property ID: | 81887 | Abbreviated Legal Description: | 37 - N/2 SE SW SE INCL EZ |
| Geographic ID: | R23118-047-3810 | Agent Code: | |
| Type: | Real | | |
| Tax Area: | 312 - APPRAISER-Cpvl Schl Dist, outside Cpvl, improved, greater than 1 acre | Land Use Code | 11 |
| Open Space: | N | DFL | N |
| Historic Property: | N | Remodel Property: | N |
| Multi-Family Redevelopment: | N | | |
| Township: | 31 | Section: | 18 |
| Range: | R2 |
Location |
| Address: | 1167 OAKES RD COUPEVILLE, WA 98239 | Mapsco: | |
| Neighborhood: | Cycle 2 | Map ID: | 490 |
| Neighborhood CD: | 2 |
Owner |
| Name: | MULLEN TTEE, TRINE BIRGITTE THORUP | Owner ID: | 302693 |
| Mailing Address: | 1037 NE 65TH ST SEATTLE, WA 98115 | % Ownership: | 100.0000000000% |
| | | Exemptions: | |
Taxes and Assessment Details
Values
| (+) Improvement Homesite Value: | + | $0 | |
| (+) Improvement Non-Homesite Value: | + | $341,864 | |
| (+) Land Homesite Value: | + | $0 | |
| (+) Land Non-Homesite Value: | + | $340,000 | |
| (+) Curr Use (HS): | + | $0 | $0 |
| (+) Curr Use (NHS): | + | $0 | $0 |
| | | -------------------------- | |
| (=) Market Value: | = | $681,864 | |
| (–) Productivity Loss: | – | $0 | |
| | | -------------------------- | |
| (=) Subtotal: | = | $681,864 | |
| (+) Senior Appraised Value: | + | $0 | |
| (+) Non-Senior Appraised Value: | + | $681,864 | |
| | | -------------------------- | |
| (=) Total Appraised Value: | = | $681,864 | |
| (–) Senior Exemption Loss: | – | $0 | |
| (–) Exemption Loss: | – | $0 | |
| | | -------------------------- | |
| (=) Taxable Value: | = | $681,864 | |
Taxing Jurisdiction
| Owner: | MULLEN TTEE, TRINE BIRGITTE THORUP | | |
| % Ownership: | 100.0000000000% | | |
| Total Value: | $681,864 | | |
| Tax Area: | 312 - APPRAISER-Cpvl Schl Dist, outside Cpvl, improved, greater than 1 acre |
| CF | Conservation Futures | 0.0316035091 | $681,864 | $681,864 | $21.55 | | |
| CEM2 | Cemetery #2 | 0.0095056933 | $681,864 | $681,864 | $6.48 | | |
| FIRE5 | Fire & Rescue Dist #5 C Whidbey GEN | 1.2008080668 | $681,864 | $681,864 | $818.79 | | |
| FIRE5BOND | Fire & Rescue Dist #5 C Whidbey BOND | 0.1400090713 | $681,864 | $681,864 | $95.47 | | |
| HOBOND | Hospital BOND | 0.1910887512 | $681,864 | $681,864 | $130.30 | | |
| HOGEN | Hospital GEN | 0.3902502903 | $681,864 | $681,864 | $266.10 | | |
| CE | County Current Expense | 0.3708482477 | $681,864 | $681,864 | $252.87 | | |
| CR | County Roads | 0.4584763726 | $681,864 | $681,864 | $312.62 | | |
| ISLANDEMS | Hospital GEN (EMS) | 0.5000000000 | $681,864 | $681,864 | $340.93 | | |
| LIB | Library Sno-Isle GEN | 0.3153421757 | $681,864 | $681,864 | $215.02 | | |
| LIBCAP | Library Sno-Isle BOND (Cap Fac Imp Area) | 0.0543427938 | $681,864 | $681,864 | $37.05 | | |
| POCOUP | Port of Coupeville GEN | 0.1093371703 | $681,864 | $681,864 | $74.55 | | |
| POCOUPIDD | Port of Coupeville IDD | 0.3409740022 | $681,864 | $681,864 | $232.50 | | |
| COUPSDTECH | School 204 CP (TECH) | 0.7545480007 | $681,864 | $681,864 | $514.50 | | |
| SCH204MO | School 204 Enrichment | 0.6716186034 | $681,864 | $681,864 | $457.95 | | |
| ST | State School | 1.3035497053 | $681,864 | $681,864 | $888.84 | | |
| ST2 | State School Part 2 | 0.8169543533 | $681,864 | $681,864 | $557.05 | | |
| | Total Tax Rate: | 7.6592568070 | | | | | |
| | | | | Taxes w/Current Exemptions: | $5,222.57 | | |
| | | | | Taxes w/o Exemptions: | $5,222.57 | | |
Improvement / Building
| Improvement #1: | RESIDENTIAL | State Code: | Y | 1357.2 sqft | Value: | $341,864 |
| Bathrooms: | 2.5 | Bedrooms: | 3 | | Ceiling: | DRYWALL PAINTED | Exterior Wall/Cover: | STUCCO | | Floor Covering: | CERAMIC TILE/CPT 40-60 | Floor Structure: | WOOD W/SUBFLOOR | | Foundation: | CONCRETE | Heating: | WALL HEAT ELECTRIC | | Interior Finish: | DRYWALL PAINT | Plumbing Fixture Cnt: | 11 | | Roof Slope: | 12" IN 12" | Roof Structure/Cover: | BEAM CLAY TILE |
|
| | Type | Description | Class CD | Sub Class CD | Year Built | Area |
| | BAS | BASE/MAIN FLOOR | 4 | 0 | 1984 | 606.2 |
| | UB8 | BASEMENT UNFINISHED 8" | 4 | 0 | 1984 | 307.5 |
| | BGR | BASEMENT GARAGE | 4 | 0 | 1984 | 585.8 |
| | UPS | UPPER STORY | 4 | 0 | 1984 | 369.0 |
| | UPS | UPPER STORY | 4 | 0 | 1984 | 382.0 |
| | BAW | BALCONY WOOD RAIL | 4 | 0 | 1984 | 30.0 |
Sketch
| No sketches available for this property. |
Property Image
Land
| 1 | HS | HOMESITE | 1.0000 | 43560.00 | 0.00 | 0.00 | 1.00 | $220,000 | $0 |
| 2 | 91 | UNDEVELOPED LAND-METES AND BOUNDS | 4.0000 | 174240.00 | 0.00 | 0.00 | 1.00 | $120,000 | $0 |
Roll Value History
| 2026 | N/A | N/A | N/A | N/A | N/A |
| 2025 | $341,864 | $340,000 | $0 | $681,864 | $681,864 |
| 2024 | $318,282 | $290,000 | $0 | $608,282 | $608,282 |
| 2023 | $322,249 | $280,000 | $0 | $602,249 | $602,249 |
| 2022 | $295,394 | $250,000 | $0 | $545,394 | $545,394 |
| 2021 | $182,322 | $170,000 | $0 | $352,322 | $352,322 |
| 2020 | $178,015 | $160,000 | $0 | $338,015 | $338,015 |
| 2019 | $129,263 | $230,000 | $0 | $359,263 | $359,263 |
| 2018 | $47,243 | $200,000 | $0 | $247,243 | $247,243 |
| 2017 | $71,939 | $200,000 | $0 | $271,939 | $271,939 |
| 2016 | $72,997 | $140,000 | $0 | $212,997 | $212,997 |
| 2015 | $74,056 | $121,500 | $0 | $195,556 | $195,556 |
| 2014 | $75,115 | $121,500 | $0 | $196,615 | $196,615 |
| 2013 | $46,429 | $121,500 | $0 | $167,929 | $167,929 |
| 2012 | $169,851 | $121,500 | $0 | $291,351 | $291,351 |
| 2011 | $172,166 | $135,000 | $0 | $307,166 | $307,166 |
| 2010 | $172,109 | $135,000 | $0 | $307,109 | $307,109 |
| 2009 | $179,635 | $150,000 | $0 | $329,635 | $329,635 |
| 2008 | $179,799 | $167,500 | $0 | $347,299 | $347,299 |
| 2007 | $182,322 | $150,000 | $0 | $332,322 | $332,322 |
Deed and Sales History
| 1 | 12/30/2021 | WD | Warranty Deed | FRIES, BRIAN | MULLEN TTEE, TRINE BIRGITTE THORUP | | | $627,000.00 | 51565 | 4537222 |
| 2 | 08/03/2020 | QCD | Quit Claim Deed | ISLAND COUNTY PUBLIC WORKS | FRIES, BRIAN | | | $0.00 | 44075 | 4492960 |
| 3 | 09/06/2018 | EZ | Easement | FRIES, BRIAN | FRIES, BRIAN | | | $0.00 | 35942 | 4451935 |
| 4 | 03/22/2018 | EZ | Easement | FRIES, BRIAN | FRIES, BRIAN | | | $500.00 | 33655 | 4442516 |
| 5 | 05/26/2016 | QCD | Quit Claim Deed | FRIES, BRIAN | FRIES, BRIAN | | | $0.00 | 24754 | 4401180 |
| 6 | 09/20/2012 | BARGSLD | Bargain And Sale Deed | FEDERAL HOME LOAN MORTGAGE CORPORATION | FRIES, BRIAN | | | $70,000.00 | 8965 | 4323851 |
| 7 | 03/16/2011 | TRUSTEED | Trustee's Deed | WILLIAMS, CARI L | FEDERAL HOME LOAN MORTGAGE CORPORATION | | | $212,973.00 | 3899 | 4292386 |
| 8 | 02/07/2008 | QCD | Quit Claim Deed | HAWKINS, CARI LYNN | WILLIAMS, CARI L | | | $0.00 | 80336 | 4221621 |
| 9 | 02/19/2004 | 5 | DNU - Marriage License/Name Change | LAWRIE, JAMES H.D. | HAWKINS, CARI LYNN | | | $0.00 | 70171 | 0 |
| 10 | 07/12/2000 | WD | Warranty Deed | THE MONEY STORE, | LAWRIE, JAMES H.D. | | | $126,000.00 | 2616 | 20012390 |
| 11 | 02/01/1999 | TRUSTEED | Trustee's Deed | DARIOTIS, DEAN C | THE MONEY STORE, | | | $100,113.00 | 90561 | 99003972 |
| 12 | 04/01/1991 | QCD | Quit Claim Deed | DARIOTIS, DEAN | DARIOTIS, DEAN C | | | $0.00 | 11175 | 91005023 |
| 13 | 01/01/1979 | OTHER | Other - Misc. Documents | Unknown | DARIOTIS, DEAN | | | $12,500.00 | 90477 | 346770 |
Payout Agreement
| No payout information available.. |