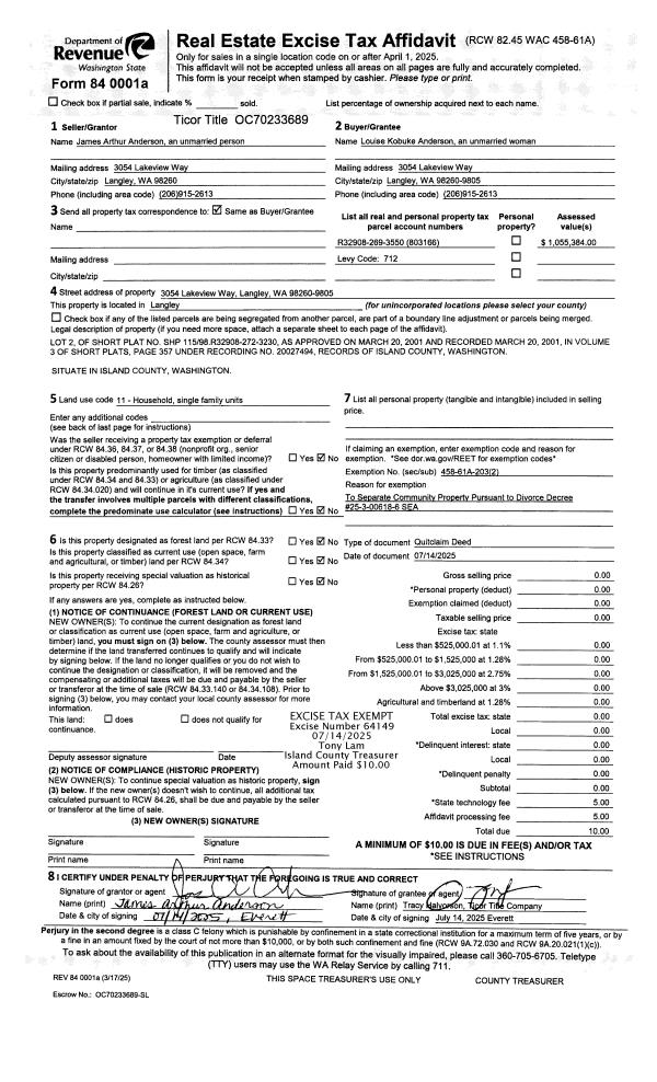
Property
Account |
| Property ID: | 82083 | Abbreviated Legal Description: | 42 - NE SW LY NLY OF WANAMAKER RD EX W/2 SW NE SW EX E484' |
| Geographic ID: | R23118-247-1930 | Agent Code: | |
| Type: | Real | | |
| Tax Area: | 312 - APPRAISER-Cpvl Schl Dist, outside Cpvl, improved, greater than 1 acre | Land Use Code | 11 |
| Open Space: | N | DFL | N |
| Historic Property: | N | Remodel Property: | N |
| Multi-Family Redevelopment: | N | | |
| Township: | 31 | Section: | 18 |
| Range: | R2 |
Location |
| Address: | 1218 RACE RD COUPEVILLE, WA 98239 | Mapsco: | |
| Neighborhood: | Cycle 2 | Map ID: | 489 |
| Neighborhood CD: | 2 |
Owner |
| Name: | YANDELL, ADAM THOMAS | Owner ID: | 301622 |
| Mailing Address: | 1218 RACE RD COUPEVILLE, WA 98239 | % Ownership: | 100.0000000000% |
| | | Exemptions: | |
Taxes and Assessment Details
Values
| (+) Improvement Homesite Value: | + | $0 | |
| (+) Improvement Non-Homesite Value: | + | $381,687 | |
| (+) Land Homesite Value: | + | $0 | |
| (+) Land Non-Homesite Value: | + | $356,935 | |
| (+) Curr Use (HS): | + | $0 | $0 |
| (+) Curr Use (NHS): | + | $0 | $0 |
| | | -------------------------- | |
| (=) Market Value: | = | $738,622 | |
| (–) Productivity Loss: | – | $0 | |
| | | -------------------------- | |
| (=) Subtotal: | = | $738,622 | |
| (+) Senior Appraised Value: | + | $0 | |
| (+) Non-Senior Appraised Value: | + | $738,622 | |
| | | -------------------------- | |
| (=) Total Appraised Value: | = | $738,622 | |
| (–) Senior Exemption Loss: | – | $0 | |
| (–) Exemption Loss: | – | $0 | |
| | | -------------------------- | |
| (=) Taxable Value: | = | $738,622 | |
Taxing Jurisdiction
| Owner: | YANDELL, ADAM THOMAS | | |
| % Ownership: | 100.0000000000% | | |
| Total Value: | $738,622 | | |
| Tax Area: | 312 - APPRAISER-Cpvl Schl Dist, outside Cpvl, improved, greater than 1 acre |
| CF | Conservation Futures | 0.0316035091 | $738,622 | $738,622 | $23.34 | | |
| CEM2 | Cemetery #2 | 0.0095056933 | $738,622 | $738,622 | $7.02 | | |
| FIRE5 | Fire & Rescue Dist #5 C Whidbey GEN | 1.2008080668 | $738,622 | $738,622 | $886.94 | | |
| FIRE5BOND | Fire & Rescue Dist #5 C Whidbey BOND | 0.1400090713 | $738,622 | $738,622 | $103.41 | | |
| HOBOND | Hospital BOND | 0.1910887512 | $738,622 | $738,622 | $141.14 | | |
| HOGEN | Hospital GEN | 0.3902502903 | $738,622 | $738,622 | $288.25 | | |
| CE | County Current Expense | 0.3708482477 | $738,622 | $738,622 | $273.92 | | |
| CR | County Roads | 0.4584763726 | $738,622 | $738,622 | $338.64 | | |
| ISLANDEMS | Hospital GEN (EMS) | 0.5000000000 | $738,622 | $738,622 | $369.31 | | |
| LIB | Library Sno-Isle GEN | 0.3153421757 | $738,622 | $738,622 | $232.92 | | |
| LIBCAP | Library Sno-Isle BOND (Cap Fac Imp Area) | 0.0543427938 | $738,622 | $738,622 | $40.14 | | |
| POCOUP | Port of Coupeville GEN | 0.1093371703 | $738,622 | $738,622 | $80.76 | | |
| POCOUPIDD | Port of Coupeville IDD | 0.3409740022 | $738,622 | $738,622 | $251.85 | | |
| COUPSDTECH | School 204 CP (TECH) | 0.7545480007 | $738,622 | $738,622 | $557.33 | | |
| SCH204MO | School 204 Enrichment | 0.6716186034 | $738,622 | $738,622 | $496.07 | | |
| ST | State School | 1.3035497053 | $738,622 | $738,622 | $962.83 | | |
| ST2 | State School Part 2 | 0.8169543533 | $738,622 | $738,622 | $603.42 | | |
| | Total Tax Rate: | 7.6592568070 | | | | | |
| | | | | Taxes w/Current Exemptions: | $5,657.29 | | |
| | | | | Taxes w/o Exemptions: | $5,657.29 | | |
Improvement / Building
| Improvement #1: | RESIDENTIAL | State Code: | Y | 3310.0 sqft | Value: | $381,687 |
| Bathrooms: | 3 | Bedrooms: | 3 | | Ceiling: | DRYWALL PAINTED | Exterior Wall/Cover: | WOOD SIDING | | Floor Covering: | HARDWOOD/CARP 20-80 | Floor Structure: | WOOD W/SUBFLOOR | | Foundation: | CONCRETE | Heating: | FHA GAS | | Interior Finish: | DRYWALL PAINT | Plumbing Fixture Cnt: | 13 | | Roof Slope: | 5" IN 12" | Roof Structure/Cover: | BEAM ALUMINUM HEAVY |
|
| | Type | Description | Class CD | Sub Class CD | Year Built | Area |
| | BAS | BASE/MAIN FLOOR | 3 | 0 | 1988 | 3078.0 |
| | LOF | LOFT | 3 | 0 | 1988 | 232.0 |
| | ENP | ENCLOSED PORCH | 3 | 0 | 1988 | 396.0 |
| | UTY | STORAGE/UTILITY | 3 | 0 | 1988 | 800.0 |
Sketch
Property Image
Land
| 1 | 91 | UNDEVELOPED LAND-METES AND BOUNDS | 10.6900 | 465656.40 | 0.00 | 0.00 | 1.00 | $136,935 | $0 |
| 2 | HS | HOMESITE | 1.0000 | 43560.00 | 0.00 | 0.00 | 1.00 | $220,000 | $0 |
Roll Value History
| 2026 | N/A | N/A | N/A | N/A | N/A |
| 2025 | $381,687 | $356,935 | $0 | $738,622 | $738,622 |
| 2024 | $387,199 | $310,000 | $0 | $697,199 | $697,199 |
| 2023 | $392,710 | $290,000 | $0 | $682,710 | $682,710 |
| 2022 | $360,600 | $260,000 | $0 | $620,600 | $620,600 |
| 2021 | $317,888 | $225,000 | $0 | $542,888 | $542,888 |
| 2020 | $311,174 | $215,000 | $0 | $526,174 | $526,174 |
| 2019 | $254,259 | $250,000 | $0 | $504,259 | $504,259 |
| 2018 | $275,516 | $220,000 | $0 | $495,516 | $495,516 |
| 2017 | $277,248 | $200,000 | $0 | $477,248 | $477,248 |
| 2016 | $280,711 | $140,000 | $0 | $420,711 | $420,711 |
| 2015 | $284,173 | $157,815 | $0 | $441,988 | $441,988 |
| 2014 | $287,637 | $157,815 | $0 | $445,452 | $445,452 |
| 2013 | $291,099 | $157,815 | $0 | $448,914 | $448,914 |
| 2012 | $295,553 | $157,815 | $0 | $453,368 | $453,368 |
| 2011 | $299,027 | $175,350 | $0 | $474,377 | $474,377 |
| 2010 | $310,691 | $175,350 | $0 | $486,041 | $486,041 |
| 2009 | $324,764 | $257,180 | $0 | $581,944 | $581,944 |
| 2008 | $330,070 | $233,800 | $0 | $563,870 | $563,870 |
Deed and Sales History
| 1 | 08/02/2021 | QCD | Quit Claim Deed | YANDELL, SHIYRA | YANDELL, ADAM THOMAS | | | $0.00 | 50521 | 4631628 |
| 2 | 08/12/2021 | WD | Warranty Deed | ROBERTSON, JEFFREY M | YANDELL, ADAM THOMAS | | | $610,000.00 | 50520 | 4531627 |
| 3 | 07/17/2019 | BARGSLD | Bargain And Sale Deed | HERITAGE BANK | ROBERTSON, JEFFREY M | | | $475,000.00 | 39567 | 4468041 |
| 4 | 06/08/2018 | WD | Warranty Deed | DENHAM, BARBARA H | HERITAGE BANK | | | $0.00 | 34553 | 4446289 |
| 5 | 09/04/2007 | OTHER | Other - Misc. Documents | DENHAM, DENNY J | DENHAM, BARBARA H | | | $0.00 | 80334 | 0 |
| 6 | 01/01/1900 | OTHER | Other - Misc. Documents | Unknown | DENHAM, DENNY J | | | $0.00 | 0 | 0 |
Payout Agreement
| No payout information available.. |