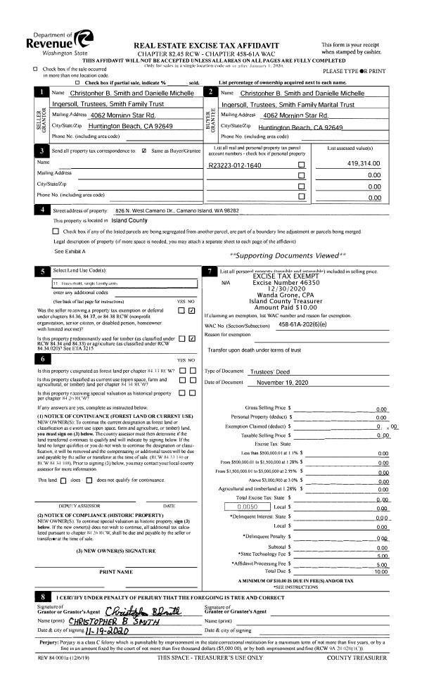
Property
Account |
| Property ID: | 82305 | Abbreviated Legal Description: | W400' OF E790' OF S/2 NW NW TGW EZ (LOT 26 V4 SUR P193 LAZY B ACRES AF#326368) |
| Geographic ID: | R23118-452-0950 | Agent Code: | |
| Type: | Real | | |
| Tax Area: | 312 - APPRAISER-Cpvl Schl Dist, outside Cpvl, improved, greater than 1 acre | Land Use Code | 11 |
| Open Space: | N | DFL | N |
| Historic Property: | N | Remodel Property: | N |
| Multi-Family Redevelopment: | N | | |
| Township: | 31 | Section: | 18 |
| Range: | R2 |
Location |
| Address: | 24 E SQUIRE RD COUPEVILLE, WA 98239 | Mapsco: | |
| Neighborhood: | Cycle 2 | Map ID: | 491 |
| Neighborhood CD: | 2 |
Owner |
| Name: | PETERSON, DOMINIC | Owner ID: | 284765 |
| Mailing Address: | HALLIE PETERSON 24 E SQUIRE RD COUPEVILLE, WA 98239 | % Ownership: | 100.0000000000% |
| | | Exemptions: | |
Taxes and Assessment Details
Values
| (+) Improvement Homesite Value: | + | $0 | |
| (+) Improvement Non-Homesite Value: | + | $208,447 | |
| (+) Land Homesite Value: | + | $0 | |
| (+) Land Non-Homesite Value: | + | $342,330 | |
| (+) Curr Use (HS): | + | $0 | $0 |
| (+) Curr Use (NHS): | + | $0 | $0 |
| | | -------------------------- | |
| (=) Market Value: | = | $550,777 | |
| (–) Productivity Loss: | – | $0 | |
| | | -------------------------- | |
| (=) Subtotal: | = | $550,777 | |
| (+) Senior Appraised Value: | + | $0 | |
| (+) Non-Senior Appraised Value: | + | $550,777 | |
| | | -------------------------- | |
| (=) Total Appraised Value: | = | $550,777 | |
| (–) Senior Exemption Loss: | – | $0 | |
| (–) Exemption Loss: | – | $0 | |
| | | -------------------------- | |
| (=) Taxable Value: | = | $550,777 | |
Taxing Jurisdiction
| Owner: | PETERSON, DOMINIC | | |
| % Ownership: | 100.0000000000% | | |
| Total Value: | $550,777 | | |
| Tax Area: | 312 - APPRAISER-Cpvl Schl Dist, outside Cpvl, improved, greater than 1 acre |
| CF | Conservation Futures | 0.0316035091 | $550,777 | $550,777 | $17.41 | | |
| CEM2 | Cemetery #2 | 0.0095056933 | $550,777 | $550,777 | $5.24 | | |
| FIRE5 | Fire & Rescue Dist #5 C Whidbey GEN | 1.2008080668 | $550,777 | $550,777 | $661.38 | | |
| FIRE5BOND | Fire & Rescue Dist #5 C Whidbey BOND | 0.1400090713 | $550,777 | $550,777 | $77.11 | | |
| HOBOND | Hospital BOND | 0.1910887512 | $550,777 | $550,777 | $105.25 | | |
| HOGEN | Hospital GEN | 0.3902502903 | $550,777 | $550,777 | $214.94 | | |
| CE | County Current Expense | 0.3708482477 | $550,777 | $550,777 | $204.25 | | |
| CR | County Roads | 0.4584763726 | $550,777 | $550,777 | $252.52 | | |
| ISLANDEMS | Hospital GEN (EMS) | 0.5000000000 | $550,777 | $550,777 | $275.39 | | |
| LIB | Library Sno-Isle GEN | 0.3153421757 | $550,777 | $550,777 | $173.68 | | |
| LIBCAP | Library Sno-Isle BOND (Cap Fac Imp Area) | 0.0543427938 | $550,777 | $550,777 | $29.93 | | |
| POCOUP | Port of Coupeville GEN | 0.1093371703 | $550,777 | $550,777 | $60.22 | | |
| POCOUPIDD | Port of Coupeville IDD | 0.3409740022 | $550,777 | $550,777 | $187.80 | | |
| COUPSDTECH | School 204 CP (TECH) | 0.7545480007 | $550,777 | $550,777 | $415.59 | | |
| SCH204MO | School 204 Enrichment | 0.6716186034 | $550,777 | $550,777 | $369.91 | | |
| ST | State School | 1.3035497053 | $550,777 | $550,777 | $717.97 | | |
| ST2 | State School Part 2 | 0.8169543533 | $550,777 | $550,777 | $449.96 | | |
| | Total Tax Rate: | 7.6592568070 | | | | | |
| | | | | Taxes w/Current Exemptions: | $4,218.55 | | |
| | | | | Taxes w/o Exemptions: | $4,218.55 | | |
Improvement / Building
| Improvement #1: | MANUFACTURED HOME | State Code: | Y | 1886.0 sqft | Value: | $208,447 |
| Bathrooms: | 1 | Bedrooms: | 2 | | Ceiling: | PLASTER PAINTED | Cooling: | EVAP NO DUCT | | Exterior Wall/Cover: | VINYL | Floor Covering: | CARPET 100% | | Floor Structure: | SLAB ON GRADE | Foundation: | SLAB | | Heating: | FHA ELECTRIC | Interior Finish: | PLASTER | | Roof Slope: | FLAT | Roof Structure/Cover: | CJ ALUMINIUM HEAVY |
|
| | Type | Description | Class CD | Sub Class CD | Year Built | Area |
| | BAS | BASE/MAIN FLOOR | 4 | 0 | 2019 | 1886.0 |
| | OWC | OPEN WOOD PORCH W/STEPS/ROOF/C | 4 | 0 | 2019 | 16.0 |
| | oCAR | CARPORT | 3 | 0 | 2019 | 648.0 |
Sketch
Property Image
Land
| 1 | 91 | UNDEVELOPED LAND-METES AND BOUNDS | 5.0900 | 221720.40 | 0.00 | 0.00 | 1.00 | $122,330 | $0 |
| 2 | HS | HOMESITE | 1.0000 | 43560.00 | 0.00 | 0.00 | 1.00 | $220,000 | $0 |
Roll Value History
| 2026 | N/A | N/A | N/A | N/A | N/A |
| 2025 | $208,447 | $342,330 | $0 | $550,777 | $550,777 |
| 2024 | $208,529 | $300,000 | $0 | $508,529 | $508,529 |
| 2023 | $185,178 | $280,000 | $0 | $465,178 | $465,178 |
| 2022 | $169,433 | $260,000 | $0 | $429,433 | $429,433 |
| 2021 | $148,846 | $170,000 | $0 | $318,846 | $318,846 |
| 2020 | $145,928 | $160,000 | $0 | $305,928 | $305,928 |
| 2019 | $1,530 | $100,000 | $0 | $101,530 | $101,530 |
| 2018 | $1,530 | $135,000 | $0 | $136,530 | $136,530 |
| 2017 | $1,530 | $135,000 | $0 | $136,530 | $136,530 |
| 2016 | $1,530 | $140,000 | $0 | $141,530 | $141,530 |
| 2015 | $1,530 | $123,687 | $0 | $125,217 | $125,217 |
| 2014 | $1,530 | $123,687 | $0 | $125,217 | $125,217 |
| 2013 | $1,530 | $123,687 | $0 | $125,217 | $125,217 |
| 2012 | $1,530 | $123,687 | $0 | $125,217 | $125,217 |
| 2011 | $1,530 | $137,430 | $0 | $138,960 | $138,960 |
| 2010 | $1,530 | $137,430 | $0 | $138,960 | $138,960 |
| 2009 | $1,565 | $152,700 | $0 | $154,265 | $154,265 |
| 2008 | $1,602 | $170,515 | $0 | $172,117 | $172,117 |
| 2007 | $1,647 | $115,070 | $0 | $116,717 | $116,717 |
Deed and Sales History
| 1 | 04/18/2018 | WD | Warranty Deed | HUBBART, JACK L | PETERSON, DOMINIC | | | $125,000.00 | 33832 | 4443308 |
| 2 | 10/27/2003 | WD | Warranty Deed | CAUSEY, DANIEL O | HUBBART, JACK L | | | $50,000.00 | 34967 | 4081383 |
| 3 | 04/01/1998 | WD | Warranty Deed | MELTON, MELVIN M | CAUSEY, DANIEL O | | | $41,644.00 | 81409 | 98007747 |
| 4 | 04/01/1998 | ESTSEPPROP | Establish Separate Property | BROWN, ARTHUR | MELTON, MELVIN M | | | $0.00 | 81408 | 98007746 |
| 5 | 06/01/1980 | CD | DNU - Correction Deed | MELTON, MELVIN M | BROWN, ARTHUR | | | $0.00 | 1928 | 369671 |
| 6 | 06/01/1980 | EXECUTORD | Executor Deed | WOLFORD, GERALD M | MELTON, MELVIN M | | | $12,190.00 | 1965 | 369824 |
| 7 | 11/01/1978 | OTHER | Other - Misc. Documents | CAUSEY, DANIEL O | WOLFORD, GERALD M | | | $12,500.00 | 85537 | 342993 |
| 8 | 01/01/1900 | OTHER | Other - Misc. Documents | Unknown | CAUSEY, DANIEL O | | | $0.00 | 81409 | 98007747 |
Payout Agreement
| No payout information available.. |