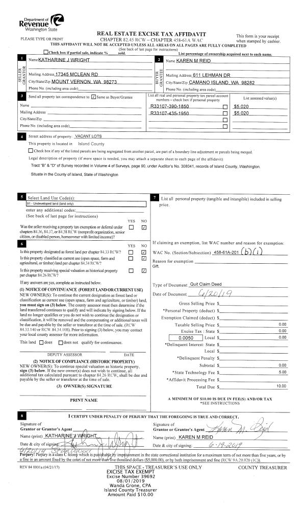
Property
Account |
| Property ID: | 82485 | Abbreviated Legal Description: | W/2 NE NE NW TGW EZ |
| Geographic ID: | R23118-517-2360 | Agent Code: | |
| Type: | Real | | |
| Tax Area: | 312 - APPRAISER-Cpvl Schl Dist, outside Cpvl, improved, greater than 1 acre | Land Use Code | 11 |
| Open Space: | N | DFL | N |
| Historic Property: | N | Remodel Property: | N |
| Multi-Family Redevelopment: | N | | |
| Township: | 31 | Section: | 18 |
| Range: | R2 |
Location |
| Address: | 155 E SQUIRE RD COUPEVILLE, WA 98239 | Mapsco: | |
| Neighborhood: | Cycle 2 | Map ID: | 491 |
| Neighborhood CD: | 2 |
Owner |
| Name: | MENDOZA, KANU | Owner ID: | 304615 |
| Mailing Address: | JULIE A BERTRAND TTTEE 155 E. SQUIRE RD COUPEVILLE, WA 98239 | % Ownership: | 100.0000000000% |
| | | Exemptions: | |
Taxes and Assessment Details
Values
| (+) Improvement Homesite Value: | + | $0 | |
| (+) Improvement Non-Homesite Value: | + | $701,840 | |
| (+) Land Homesite Value: | + | $0 | |
| (+) Land Non-Homesite Value: | + | $340,327 | |
| (+) Curr Use (HS): | + | $0 | $0 |
| (+) Curr Use (NHS): | + | $0 | $0 |
| | | -------------------------- | |
| (=) Market Value: | = | $1,042,167 | |
| (–) Productivity Loss: | – | $0 | |
| | | -------------------------- | |
| (=) Subtotal: | = | $1,042,167 | |
| (+) Senior Appraised Value: | + | $0 | |
| (+) Non-Senior Appraised Value: | + | $1,042,167 | |
| | | -------------------------- | |
| (=) Total Appraised Value: | = | $1,042,167 | |
| (–) Senior Exemption Loss: | – | $0 | |
| (–) Exemption Loss: | – | $0 | |
| | | -------------------------- | |
| (=) Taxable Value: | = | $1,042,167 | |
Taxing Jurisdiction
| Owner: | MENDOZA, KANU | | |
| % Ownership: | 100.0000000000% | | |
| Total Value: | $1,042,167 | | |
| Tax Area: | 312 - APPRAISER-Cpvl Schl Dist, outside Cpvl, improved, greater than 1 acre |
| CF | Conservation Futures | 0.0316035091 | $1,042,167 | $1,042,167 | $32.94 | | |
| CEM2 | Cemetery #2 | 0.0095056933 | $1,042,167 | $1,042,167 | $9.91 | | |
| FIRE5 | Fire & Rescue Dist #5 C Whidbey GEN | 1.2008080668 | $1,042,167 | $1,042,167 | $1,251.44 | | |
| FIRE5BOND | Fire & Rescue Dist #5 C Whidbey BOND | 0.1400090713 | $1,042,167 | $1,042,167 | $145.91 | | |
| HOBOND | Hospital BOND | 0.1910887512 | $1,042,167 | $1,042,167 | $199.15 | | |
| HOGEN | Hospital GEN | 0.3902502903 | $1,042,167 | $1,042,167 | $406.71 | | |
| CE | County Current Expense | 0.3708482477 | $1,042,167 | $1,042,167 | $386.49 | | |
| CR | County Roads | 0.4584763726 | $1,042,167 | $1,042,167 | $477.81 | | |
| ISLANDEMS | Hospital GEN (EMS) | 0.5000000000 | $1,042,167 | $1,042,167 | $521.08 | | |
| LIB | Library Sno-Isle GEN | 0.3153421757 | $1,042,167 | $1,042,167 | $328.64 | | |
| LIBCAP | Library Sno-Isle BOND (Cap Fac Imp Area) | 0.0543427938 | $1,042,167 | $1,042,167 | $56.63 | | |
| POCOUP | Port of Coupeville GEN | 0.1093371703 | $1,042,167 | $1,042,167 | $113.95 | | |
| POCOUPIDD | Port of Coupeville IDD | 0.3409740022 | $1,042,167 | $1,042,167 | $355.35 | | |
| COUPSDTECH | School 204 CP (TECH) | 0.7545480007 | $1,042,167 | $1,042,167 | $786.37 | | |
| SCH204MO | School 204 Enrichment | 0.6716186034 | $1,042,167 | $1,042,167 | $699.94 | | |
| ST | State School | 1.3035497053 | $1,042,167 | $1,042,167 | $1,358.52 | | |
| ST2 | State School Part 2 | 0.8169543533 | $1,042,167 | $1,042,167 | $851.40 | | |
| | Total Tax Rate: | 7.6592568070 | | | | | |
| | | | | Taxes w/Current Exemptions: | $7,982.24 | | |
| | | | | Taxes w/o Exemptions: | $7,982.24 | | |
Improvement / Building
| Improvement #1: | RESIDENTIAL | State Code: | Y | 4674.0 sqft | Value: | $701,840 |
| Bathrooms: | 3.5 | Bedrooms: | 3 | | Ceiling: | TONGUE & GROOVE | Exterior Wall/Cover: | LOG TO 10" | | Floor Covering: | COLORED CONCRETE | Floor Structure: | SLAB ABOVE GRADE | | Foundation: | SLAB | Heating: | RADIANT FLOOR | | Interior Finish: | DRYWALL PAINT | Plumbing Fixture Cnt: | 17 | | Roof Slope: | 12" IN 12" | Roof Structure/Cover: | BEAM ALUMINUM HEAVY |
|
| | Type | Description | Class CD | Sub Class CD | Year Built | Area |
| | BAS | BASE/MAIN FLOOR | 4 | 0 | 2006 | 1833.0 |
| | OWP | OPEN WOOD PORCH W/STEPS | 4 | 0 | 2006 | 467.6 |
| | OWC | OPEN WOOD PORCH W/STEPS/ROOF/C | 4 | 0 | 2006 | 384.0 |
| | OWC | OPEN WOOD PORCH W/STEPS/ROOF/C | 4 | 0 | 2006 | 400.0 |
| | UPS | UPPER STORY | 4 | 0 | 2006 | 744.0 |
| | LOF | LOFT | 4 | 0 | 2006 | 264.0 |
| | DWN | DOWNSTAIRS LIVING AREA | 4 | 0 | 2006 | 1833.0 |
| | oPOL | POLE BARN | 3 | 0 | 2005 | 1440.0 |
| | oCAR | CARPORT | 3 | 0 | 2005 | 256.0 |
Sketch
Property Image
Land
| 1 | HS | HOMESITE | 1.0000 | 43560.00 | 0.00 | 0.00 | 1.00 | $220,000 | $0 |
| 2 | 91 | UNDEVELOPED LAND-METES AND BOUNDS | 4.0700 | 177289.20 | 0.00 | 0.00 | 1.00 | $120,327 | $0 |
Roll Value History
| 2026 | N/A | N/A | N/A | N/A | N/A |
| 2025 | $701,840 | $340,327 | $0 | $1,042,167 | $1,042,167 |
| 2024 | $714,329 | $300,000 | $0 | $1,014,329 | $1,014,329 |
| 2023 | $722,807 | $280,000 | $0 | $1,002,807 | $1,002,807 |
| 2022 | $662,185 | $260,000 | $0 | $922,185 | $922,185 |
| 2021 | $584,145 | $170,000 | $0 | $754,145 | $754,145 |
| 2020 | $570,802 | $160,000 | $0 | $730,802 | $730,802 |
| 2019 | $487,266 | $230,000 | $0 | $717,266 | $717,266 |
| 2018 | $466,755 | $200,000 | $0 | $666,755 | $666,755 |
| 2017 | $469,158 | $200,000 | $0 | $669,158 | $669,158 |
| 2016 | $473,981 | $140,000 | $0 | $613,981 | $613,981 |
| 2015 | $478,806 | $121,500 | $0 | $600,306 | $600,306 |
| 2014 | $483,627 | $121,500 | $0 | $605,127 | $605,127 |
| 2013 | $488,450 | $121,500 | $0 | $609,950 | $609,950 |
| 2012 | $493,804 | $121,500 | $0 | $615,304 | $615,304 |
| 2011 | $498,628 | $135,000 | $0 | $633,628 | $633,628 |
| 2010 | $501,609 | $135,000 | $0 | $636,609 | $636,609 |
| 2009 | $521,524 | $150,000 | $0 | $671,524 | $671,524 |
| 2008 | $527,460 | $167,500 | $0 | $694,960 | $694,960 |
| 2007 | $528,568 | $150,000 | $0 | $678,568 | $678,568 |
Deed and Sales History
| 1 | 06/02/2022 | QCD | Quit Claim Deed | MENDOZA, KANU | MENDOZA, KANU | | | $0.00 | 53362 | 4546314 |
| 2 | 12/24/2020 | QCD | Quit Claim Deed | BERTRAND, JULIE | MENDOZA, KANU | | | $0.00 | 46382 | 4506733 |
| 3 | 08/15/2019 | WD | Warranty Deed | DAVIS, TIMOTHY W | BERTRAND, JULIE | | | $705,000.00 | 39939 | 4469759 |
| 4 | 02/08/2005 | WD | Warranty Deed | MARINOV, MARIN | DAVIS, TIMOTHY W | | | $75,000.00 | 50545 | 4125700 |
| 5 | 10/03/2003 | WD | Warranty Deed | MOON, SANDRA B | MARINOV, MARIN | | | $39,630.00 | 34525 | 4078225 |
| 6 | 12/01/1997 | DECREE | Divorce Decree/Legal Separation | MASSENGALE, CARL M | MOON, SANDRA B | | | $0.00 | 74226 | 97020217 |
| 7 | 12/01/1981 | EZ | Easement | MASSENGALE, CARL M | MASSENGALE, CARL M | | | $17,000.00 | 13705 | 390873 |
| 8 | 11/01/1981 | CD | DNU - Correction Deed | CROSS, CLIFTON C | MASSENGALE, CARL M | | | $1.00 | 13704 | 390872 |
| 9 | 12/01/1978 | OTHER | Other - Misc. Documents | Unknown | CROSS, CLIFTON C | | | $11,000.00 | 86154 | 344829 |
Payout Agreement
| No payout information available.. |