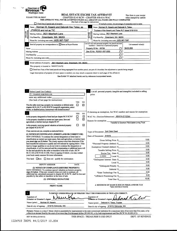
Property
Account |
| Property ID: | 82519 | Abbreviated Legal Description: | 31 - SE SE LY W OF HWY |
| Geographic ID: | R23119-051-4480 | Agent Code: | |
| Type: | Real | | |
| Tax Area: | 312 - APPRAISER-Cpvl Schl Dist, outside Cpvl, improved, greater than 1 acre | Land Use Code | 88 |
| Open Space: | N | DFL | Y |
| Historic Property: | N | Remodel Property: | N |
| Multi-Family Redevelopment: | N | | |
| Township: | 31 | Section: | 19 |
| Range: | R2 |
Location |
| Address: | 29069 SR525 COUPEVILLE, WA 98239 | Mapsco: | |
| Neighborhood: | Cycle 2 | Map ID: | 494 |
| Neighborhood CD: | 2 |
Owner |
| Name: | STEELE, NATHANIEL A | Owner ID: | 196210 |
| Mailing Address: | SHANTINA M STEELE 1103 NE LOVEJOY ST COUPEVILLE, WA 98239-9516 | % Ownership: | 100.0000000000% |
| | | Exemptions: | |
Taxes and Assessment Details
Values
| (+) Improvement Homesite Value: | + | $0 | |
| (+) Improvement Non-Homesite Value: | + | $302,279 | |
| (+) Land Homesite Value: | + | $0 | |
| (+) Land Non-Homesite Value: | + | $228,321 | |
| (+) Curr Use (HS): | + | $0 | $0 |
| (+) Curr Use (NHS): | + | $134,960 | $3,017 |
| | | -------------------------- | |
| (=) Market Value: | = | $665,560 | |
| (–) Productivity Loss: | – | $131,943 | |
| | | -------------------------- | |
| (=) Subtotal: | = | $533,617 | |
| (+) Senior Appraised Value: | + | $0 | |
| (+) Non-Senior Appraised Value: | + | $533,617 | |
| | | -------------------------- | |
| (=) Total Appraised Value: | = | $533,617 | |
| (–) Senior Exemption Loss: | – | $0 | |
| (–) Exemption Loss: | – | $0 | |
| | | -------------------------- | |
| (=) Taxable Value: | = | $533,617 | |
Taxing Jurisdiction
| Owner: | STEELE, NATHANIEL A | | |
| % Ownership: | 100.0000000000% | | |
| Total Value: | $665,560 | | |
| Tax Area: | 312 - APPRAISER-Cpvl Schl Dist, outside Cpvl, improved, greater than 1 acre |
| CF | Conservation Futures | 0.0316035091 | $533,617 | $533,617 | $16.86 | | |
| CEM2 | Cemetery #2 | 0.0095056933 | $533,617 | $533,617 | $5.07 | | |
| FIRE5 | Fire & Rescue Dist #5 C Whidbey GEN | 1.2008080668 | $533,617 | $533,617 | $640.77 | | |
| FIRE5BOND | Fire & Rescue Dist #5 C Whidbey BOND | 0.1400090713 | $533,617 | $533,617 | $74.71 | | |
| HOBOND | Hospital BOND | 0.1910887512 | $533,617 | $533,617 | $101.97 | | |
| HOGEN | Hospital GEN | 0.3902502903 | $533,617 | $533,617 | $208.24 | | |
| CE | County Current Expense | 0.3708482477 | $533,617 | $533,617 | $197.89 | | |
| CR | County Roads | 0.4584763726 | $533,617 | $533,617 | $244.65 | | |
| ISLANDEMS | Hospital GEN (EMS) | 0.5000000000 | $533,617 | $533,617 | $266.81 | | |
| LIB | Library Sno-Isle GEN | 0.3153421757 | $533,617 | $533,617 | $168.27 | | |
| LIBCAP | Library Sno-Isle BOND (Cap Fac Imp Area) | 0.0543427938 | $533,617 | $533,617 | $29.00 | | |
| POCOUP | Port of Coupeville GEN | 0.1093371703 | $533,617 | $533,617 | $58.34 | | |
| POCOUPIDD | Port of Coupeville IDD | 0.3409740022 | $533,617 | $533,617 | $181.95 | | |
| COUPSDTECH | School 204 CP (TECH) | 0.7545480007 | $533,617 | $533,617 | $402.64 | | |
| SCH204MO | School 204 Enrichment | 0.6716186034 | $533,617 | $533,617 | $358.39 | | |
| ST | State School | 1.3035497053 | $533,617 | $533,617 | $695.60 | | |
| ST2 | State School Part 2 | 0.8169543533 | $533,617 | $533,617 | $435.94 | | |
| | Total Tax Rate: | 7.6592568070 | | | | | |
| | | | | Taxes w/Current Exemptions: | $4,087.10 | | |
| | | | | Taxes w/o Exemptions: | $4,087.10 | | |
Improvement / Building
| Improvement #1: | RESIDENTIAL | State Code: | Y | 1065.5 sqft | Value: | $302,279 |
| Bathrooms: | 1 | Bedrooms: | 3 | | Ceiling: | TONGUE & GROOVE | Cooling: | HEAT PUMP/CONV/V | | Exterior Wall/Cover: | WOOD SIDING | Floor Covering: | HARDWOOD/CARP 60-40 | | Floor Structure: | WOOD W/SUBFLOOR | Foundation: | CONCRETE | | Interior Finish: | DRYWALL PAINT | Plumbing Fixture Cnt: | 6 | | Roof Slope: | 3" IN 12" | Roof Structure/Cover: | STEEL TERNE |
|
| | Type | Description | Class CD | Sub Class CD | Year Built | Area |
| | BAS | BASE/MAIN FLOOR | 3 | 0 | 2004 | 1065.5 |
| | OWP | OPEN WOOD PORCH W/STEPS | 3 | 0 | 2004 | 40.0 |
| | CPD | OPEN CARPORT DIRT FLOOR | 3 | 0 | 2004 | 1285.0 |
| | OWR | OPEN WOOD PORCH W/STEPS/ROOF | 3 | 0 | 2004 | 36.0 |
| | DGR | DETACHED GARAGE | 3 | 0 | 2004 | 836.0 |
Sketch
Property Image
Land
| 1 | 88 | DESIGNATED FOREST | 16.2200 | 706543.20 | 0.00 | 0.00 | 1.00 | $134,960 | $3,017 |
| 2 | HS | HOMESITE | 1.0000 | 43560.00 | 0.00 | 0.00 | 1.00 | $220,000 | $0 |
| 3 | 91 | UNDEVELOPED LAND-METES AND BOUNDS | 1.0000 | 43560.00 | 0.00 | 0.00 | 1.00 | $8,321 | $0 |
Roll Value History
| 2026 | N/A | N/A | N/A | N/A | N/A |
| 2025 | $302,279 | $363,281 | $3,017 | $533,617 | $533,617 |
| 2024 | $305,998 | $310,000 | $3,033 | $524,838 | $524,838 |
| 2023 | $309,720 | $290,000 | $2,903 | $344,456 | $344,456 |
| 2022 | $283,820 | $260,000 | $2,903 | $315,263 | $315,263 |
| 2021 | $249,728 | $225,000 | $2,903 | $277,329 | $277,329 |
| 2020 | $243,653 | $215,000 | $2,903 | $270,156 | $270,156 |
| 2019 | $176,925 | $250,000 | $2,806 | $207,173 | $207,173 |
| 2018 | $121,728 | $200,000 | $2,774 | $146,456 | $146,456 |
| 2017 | $122,424 | $225,000 | $2,774 | $149,881 | $149,881 |
| 2016 | $123,846 | $225,000 | $1,671 | $150,200 | $150,200 |
| 2015 | $125,271 | $201,331 | $1,671 | $149,042 | $149,042 |
| 2014 | $126,695 | $201,331 | $1,671 | $150,466 | $150,466 |
| 2013 | $128,117 | $201,331 | $1,671 | $151,888 | $151,888 |
| 2012 | $0 | $179,231 | $1,671 | $1,671 | $1,671 |
| 2011 | $0 | $210,860 | $1,671 | $1,671 | $1,671 |
| 2010 | $0 | $210,860 | $1,671 | $1,671 | $1,671 |
| 2009 | $0 | $194,640 | $1,671 | $1,671 | $1,671 |
| 2008 | $0 | $187,941 | $1,671 | $1,671 | $1,671 |
| 2007 | $0 | $187,949 | $1,671 | $1,671 | $1,671 |
Deed and Sales History
| 1 | 01/18/2006 | 5 | DNU - Marriage License/Name Change | STEELE, NATE A | STEELE, NATHANIEL A | | | $0.00 | 60309 | 4160610 |
| 2 | 12/18/2002 | WD | Warranty Deed | WB FORESTERS INC, | STEELE, NATE A | | | $60,000.00 | 25216 | 4042225 |
| 3 | 11/03/2000 | ESTSEPPROP | Establish Separate Property | FOREST, LAND S | WB FORESTERS INC, | | | $20,658.00 | 4224 | 20019336 |
| 4 | 05/01/1995 | WD | Warranty Deed | CORNELISON, CHARLES H | FOREST, LAND S | | | $75,100.00 | 51670 | 95007895 |
| 5 | 01/01/1900 | OTHER | Other - Misc. Documents | Unknown | CORNELISON, CHARLES H | | | $0.00 | 0 | 0 |
Payout Agreement
| No payout information available.. |