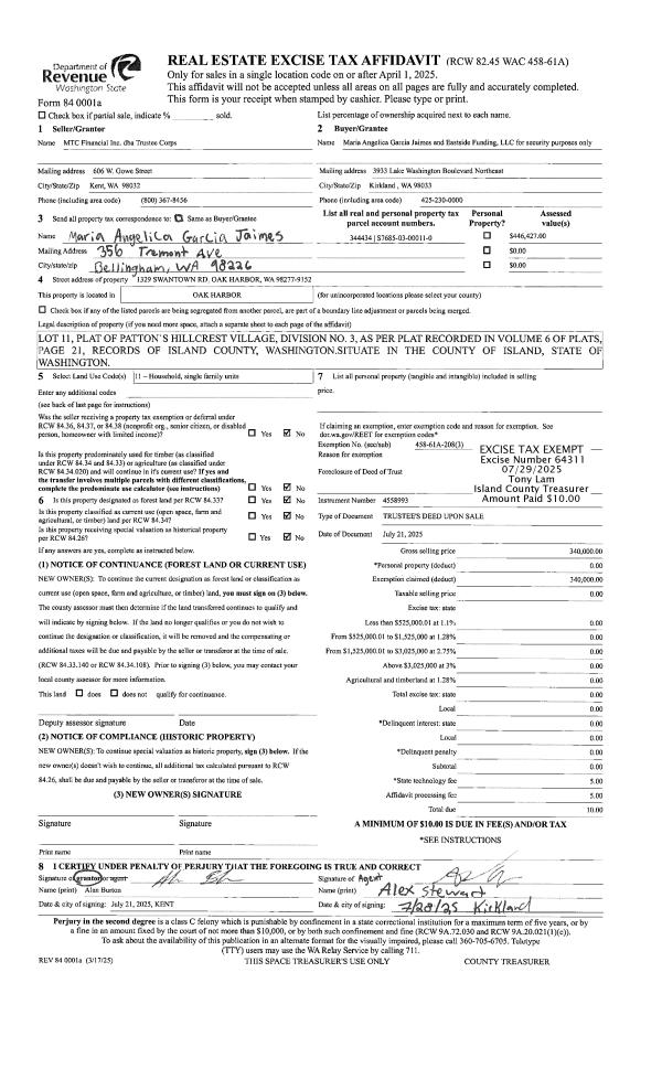
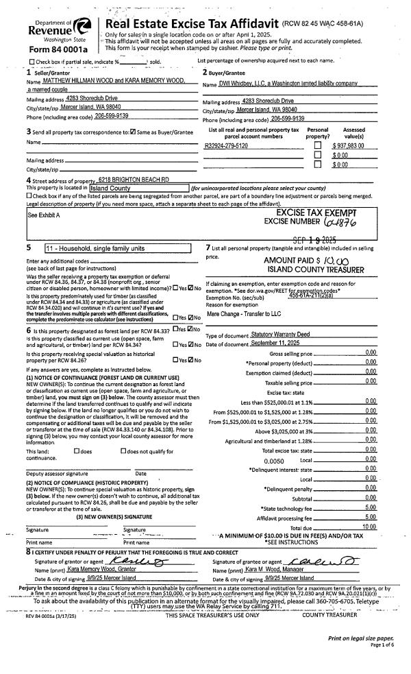
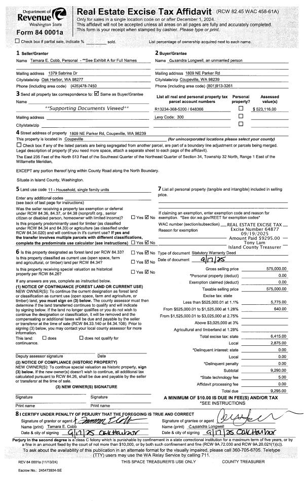
Property
Account |
| Property ID: | 8253 | Abbreviated Legal Description: | 2 - E/2 E/2 NW NE TGW EZ |
| Geographic ID: | R13111-463-3790 | Agent Code: | |
| Type: | Real | | |
| Tax Area: | 312 - APPRAISER-Cpvl Schl Dist, outside Cpvl, improved, greater than 1 acre | Land Use Code | 11 |
| Open Space: | N | DFL | N |
| Historic Property: | N | Remodel Property: | N |
| Multi-Family Redevelopment: | N | | |
| Township: | 31 | Section: | 11 |
| Range: | R1 |
Location |
| Address: | 527 PATMORE RD COUPEVILLE, WA 98239 | Mapsco: | |
| Neighborhood: | Cycle 2 | Map ID: | 53 |
| Neighborhood CD: | 2 |
Owner |
| Name: | ALLEN, GAIL J | Owner ID: | 316410 |
| Mailing Address: | PO BOX 797 COUPEVILLE, WA 98239 | % Ownership: | 100.0000000000% |
| | | Exemptions: | |
Taxes and Assessment Details
Values
| (+) Improvement Homesite Value: | + | $0 | |
| (+) Improvement Non-Homesite Value: | + | $410,136 | |
| (+) Land Homesite Value: | + | $0 | |
| (+) Land Non-Homesite Value: | + | $355,000 | |
| (+) Curr Use (HS): | + | $0 | $0 |
| (+) Curr Use (NHS): | + | $0 | $0 |
| | | -------------------------- | |
| (=) Market Value: | = | $765,136 | |
| (–) Productivity Loss: | – | $0 | |
| | | -------------------------- | |
| (=) Subtotal: | = | $765,136 | |
| (+) Senior Appraised Value: | + | $0 | |
| (+) Non-Senior Appraised Value: | + | $765,136 | |
| | | -------------------------- | |
| (=) Total Appraised Value: | = | $765,136 | |
| (–) Senior Exemption Loss: | – | $0 | |
| (–) Exemption Loss: | – | $0 | |
| | | -------------------------- | |
| (=) Taxable Value: | = | $765,136 | |
Taxing Jurisdiction
| Owner: | ALLEN, GAIL J | | |
| % Ownership: | 100.0000000000% | | |
| Total Value: | $765,136 | | |
| Tax Area: | 312 - APPRAISER-Cpvl Schl Dist, outside Cpvl, improved, greater than 1 acre |
| CF | Conservation Futures | 0.0316035091 | $765,136 | $765,136 | $24.18 | | |
| CEM2 | Cemetery #2 | 0.0095056933 | $765,136 | $765,136 | $7.27 | | |
| FIRE5 | Fire & Rescue Dist #5 C Whidbey GEN | 1.2008080668 | $765,136 | $765,136 | $918.78 | | |
| FIRE5BOND | Fire & Rescue Dist #5 C Whidbey BOND | 0.1400090713 | $765,136 | $765,136 | $107.13 | | |
| HOBOND | Hospital BOND | 0.1910887512 | $765,136 | $765,136 | $146.21 | | |
| HOGEN | Hospital GEN | 0.3902502903 | $765,136 | $765,136 | $298.59 | | |
| CE | County Current Expense | 0.3708482477 | $765,136 | $765,136 | $283.75 | | |
| CR | County Roads | 0.4584763726 | $765,136 | $765,136 | $350.80 | | |
| ISLANDEMS | Hospital GEN (EMS) | 0.5000000000 | $765,136 | $765,136 | $382.57 | | |
| LIB | Library Sno-Isle GEN | 0.3153421757 | $765,136 | $765,136 | $241.28 | | |
| LIBCAP | Library Sno-Isle BOND (Cap Fac Imp Area) | 0.0543427938 | $765,136 | $765,136 | $41.58 | | |
| POCOUP | Port of Coupeville GEN | 0.1093371703 | $765,136 | $765,136 | $83.66 | | |
| POCOUPIDD | Port of Coupeville IDD | 0.3409740022 | $765,136 | $765,136 | $260.89 | | |
| COUPSDTECH | School 204 CP (TECH) | 0.7545480007 | $765,136 | $765,136 | $577.33 | | |
| SCH204MO | School 204 Enrichment | 0.6716186034 | $765,136 | $765,136 | $513.88 | | |
| ST | State School | 1.3035497053 | $765,136 | $765,136 | $997.39 | | |
| ST2 | State School Part 2 | 0.8169543533 | $765,136 | $765,136 | $625.08 | | |
| | Total Tax Rate: | 7.6592568070 | | | | | |
| | | | | Taxes w/Current Exemptions: | $5,860.37 | | |
| | | | | Taxes w/o Exemptions: | $5,860.37 | | |
Improvement / Building
| Improvement #1: | MANUFACTURED HOME | State Code: | Y | 2632.9 sqft | Value: | $333,516 |
| Bathrooms: | 2.5 | Bedrooms: | 3 | | Ceiling: | PLASTER PAINTED | Cooling: | EVAP NO DUCT | | Exterior Wall/Cover: | VINYL | Floor Covering: | CARPET 100% | | Floor Structure: | SLAB ON GRADE | Foundation: | SLAB | | Heating: | FHA ELECTRIC | Interior Finish: | PLASTER | | Plumbing Fixture Cnt: | 1 | Roof Slope: | FLAT | | Roof Structure/Cover: | CJ ALUMINIUM HEAVY |   |   |
|
| | Type | Description | Class CD | Sub Class CD | Year Built | Area |
| | BAS | BASE/MAIN FLOOR | 4 | 0 | 1999 | 2632.9 |
| | OWR | OPEN WOOD PORCH W/STEPS/ROOF | 4 | 0 | 1999 | 72.0 |
| | OWR | OPEN WOOD PORCH W/STEPS/ROOF | 4 | 0 | 1999 | 221.8 |
| | oPOL | POLE BARN | 3 | 0 | 1999 | 576.0 |
| | oCAR | CARPORT | 3 | 0 | 1999 | 480.0 |
| | oCAR | CARPORT | 3 | 0 | 1999 | 600.0 |
| | oPOL | POLE BARN | 3 | 0 | 1999 | 1152.0 |
| | oPOL | POLE BARN | 3 | 0 | 1999 | 2160.0 |
| | oCB1 | CABIN UNFI | 4 | 0 | 1999 | 144.0 |
| Improvement #2: | MANUFACTURED HOME | State Code: | Y | 1002.0 sqft | Value: | $76,620 |
| Bathrooms: | 2 | Bedrooms: | 2 | | Ceiling: | PLASTER PAINTED | Cooling: | EVAP NO DUCT | | Exterior Wall/Cover: | VINYL | Floor Covering: | CARPET 100% | | Floor Structure: | SLAB ON GRADE | Foundation: | SLAB | | Heating: | FHA ELECTRIC | Interior Finish: | PLASTER | | Plumbing Fixture Cnt: | 1 | Roof Slope: | FLAT | | Roof Structure/Cover: | CJ ALUMINIUM HEAVY |   |   |
|
| | Type | Description | Class CD | Sub Class CD | Year Built | Area |
| | BAS | BASE/MAIN FLOOR | 3 | 0 | 2002 | 1002.0 |
| | OWC | OPEN WOOD PORCH W/STEPS/ROOF/C | 3 | 0 | 2002 | 78.0 |
| | OCP | OPEN CARPORT | 3 | 0 | 2002 | 240.0 |
Sketch
Property Image
Land
| 1 | 91 | UNDEVELOPED LAND-METES AND BOUNDS | 9.0000 | 392040.00 | 0.00 | 0.00 | 1.00 | $135,000 | $0 |
| 2 | HS | HOMESITE | 1.0000 | 43560.00 | 0.00 | 0.00 | 1.00 | $220,000 | $0 |
Roll Value History
| 2026 | N/A | N/A | N/A | N/A | N/A |
| 2025 | $410,136 | $355,000 | $0 | $765,136 | $765,136 |
| 2024 | $380,111 | $310,000 | $0 | $690,111 | $690,111 |
| 2023 | $350,272 | $290,000 | $0 | $640,272 | $640,272 |
| 2022 | $321,615 | $260,000 | $0 | $581,615 | $581,615 |
| 2021 | $287,255 | $225,000 | $0 | $512,255 | $512,255 |
| 2020 | $286,313 | $215,000 | $0 | $501,313 | $501,313 |
| 2019 | $231,446 | $250,000 | $0 | $481,446 | $481,446 |
| 2018 | $225,083 | $220,000 | $0 | $445,083 | $445,083 |
| 2017 | $227,444 | $200,000 | $0 | $427,444 | $427,444 |
| 2016 | $231,002 | $170,000 | $0 | $401,002 | $401,002 |
| 2015 | $234,559 | $250,000 | $0 | $484,559 | $484,559 |
| 2014 | $238,117 | $250,000 | $0 | $488,117 | $488,117 |
| 2013 | $241,092 | $218,700 | $0 | $459,792 | $459,792 |
| 2012 | $262,734 | $218,700 | $0 | $481,434 | $481,434 |
| 2011 | $266,148 | $243,000 | $0 | $509,148 | $509,148 |
| 2010 | $286,890 | $243,000 | $0 | $529,890 | $529,890 |
| 2009 | $299,910 | $250,000 | $0 | $549,910 | $549,910 |
| 2008 | $305,524 | $320,000 | $0 | $625,524 | $625,524 |
| 2007 | $309,282 | $321,905 | $0 | $631,187 | $631,187 |
Deed and Sales History
| 1 | 05/08/2025 | LACPROBATE | Lack of Probate | TANKARD, MARY GILLEN | ALLEN, GAIL J | | | $0.00 | 63408 | 4585536 |
| 2 | 05/08/2025 | MANHOME | Manufactured Home | TANKARD, MARY GILLEN | ALLEN, GAIL J | | | $0.00 | 63407 | |
| 3 | 02/01/1996 | WD | Warranty Deed | MCGINNIS, WILLIAM P | ALLEN, GAIL J | | | $40,000.00 | 60494 | 96002699 |
| 4 | 06/01/1995 | WD | Warranty Deed | ALOHA, LUMBER C | MCGINNIS, WILLIAM P | | | $30,000.00 | 52261 | 95010357 |
| 5 | 01/01/1993 | WD | Warranty Deed | EARNEY, SCOTT H | ALOHA, LUMBER C | | | $43,000.00 | 30316 | 93001637 |
| 6 | 05/01/1992 | WD | Warranty Deed | NAVAL, FRANK A | EARNEY, SCOTT H | | | $40,000.00 | 21762 | 92008415 |
| 7 | 12/01/1988 | WD | Warranty Deed | CAMPBELL, DONALD C | NAVAL, FRANK A | | | $30,000.00 | 84450 | 88016480 |
| 8 | 05/01/1981 | EXECUTORD | Executor Deed | ARRINGTON, EDITH H | CAMPBELL, DONALD C | | | $33,000.00 | 11622 | 383510 |
| 9 | 09/01/1978 | OTHER | Other - Misc. Documents | Unknown | ARRINGTON, EDITH H | | | $0.00 | 84490 | 339619 |
Payout Agreement
| No payout information available.. |