Property
Account |
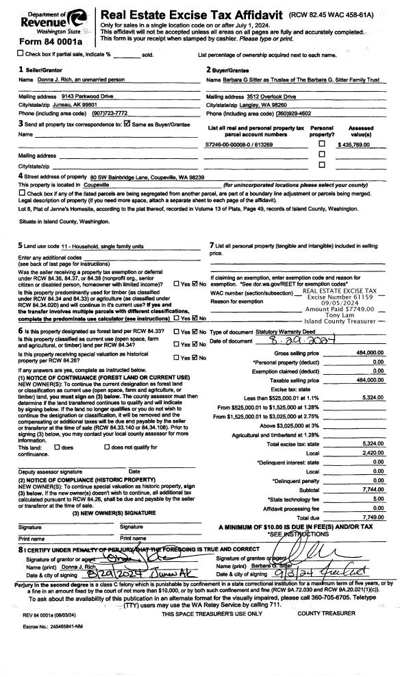
| Property ID: | 82699 | Abbreviated Legal Description: | 27 - PT NE NW LY WLY OF HWY EX PT PLATTED ADMIRALS COVE #7 TGW PT NW NW LY NLY & ELY OF ADMIRALS COVE #7 EX PT TO STATE OF WASH |
| Geographic ID: | R23119-479-1890 | Agent Code: | |
| Type: | Real | | |
| Tax Area: | 319 - APPRAISER-Cpvl Schl Dist, outside Cpvl, vacant & 50 acres or less | Land Use Code | 91 |
| Open Space: | N | DFL | N |
| Historic Property: | N | Remodel Property: | N |
| Multi-Family Redevelopment: | N | | |
| Township: | 31 | Section: | 19 |
| Range: | R2 |
Location |
| Address: | | Mapsco: | |
| Neighborhood: | Cycle 2 | Map ID: | 495 |
| Neighborhood CD: | 2 |
Owner |
| Name: | URE TRUSTEE, JENNA L | Owner ID: | 272414 |
| Mailing Address: | 1196 NIMITZ DR COUPEVILLE, WA 98239 | % Ownership: | 100.0000000000% |
| | | Exemptions: | |
Taxes and Assessment Details
Values
| (+) Improvement Homesite Value: | + | $0 | |
| (+) Improvement Non-Homesite Value: | + | $0 | |
| (+) Land Homesite Value: | + | $0 | |
| (+) Land Non-Homesite Value: | + | $266,114 | |
| (+) Curr Use (HS): | + | $0 | $0 |
| (+) Curr Use (NHS): | + | $0 | $0 |
| | | -------------------------- | |
| (=) Market Value: | = | $266,114 | |
| (–) Productivity Loss: | – | $0 | |
| | | -------------------------- | |
| (=) Subtotal: | = | $266,114 | |
| (+) Senior Appraised Value: | + | $0 | |
| (+) Non-Senior Appraised Value: | + | $266,114 | |
| | | -------------------------- | |
| (=) Total Appraised Value: | = | $266,114 | |
| (–) Senior Exemption Loss: | – | $0 | |
| (–) Exemption Loss: | – | $0 | |
| | | -------------------------- | |
| (=) Taxable Value: | = | $266,114 | |
Taxing Jurisdiction
| Owner: | URE TRUSTEE, JENNA L | | |
| % Ownership: | 100.0000000000% | | |
| Total Value: | $266,114 | | |
| Tax Area: | 319 - APPRAISER-Cpvl Schl Dist, outside Cpvl, vacant & 50 acres or less |
| CF | Conservation Futures | 0.0316035091 | $266,114 | $266,114 | $8.41 | | |
| CEM2 | Cemetery #2 | 0.0095056933 | $266,114 | $266,114 | $2.53 | | |
| HOBOND | Hospital BOND | 0.1910887512 | $266,114 | $266,114 | $50.85 | | |
| HOGEN | Hospital GEN | 0.3902502903 | $266,114 | $266,114 | $103.85 | | |
| CE | County Current Expense | 0.3708482477 | $266,114 | $266,114 | $98.69 | | |
| CR | County Roads | 0.4584763726 | $266,114 | $266,114 | $122.01 | | |
| ISLANDEMS | Hospital GEN (EMS) | 0.5000000000 | $266,114 | $266,114 | $133.06 | | |
| LIB | Library Sno-Isle GEN | 0.3153421757 | $266,114 | $266,114 | $83.92 | | |
| LIBCAP | Library Sno-Isle BOND (Cap Fac Imp Area) | 0.0543427938 | $266,114 | $266,114 | $14.46 | | |
| POCOUP | Port of Coupeville GEN | 0.1093371703 | $266,114 | $266,114 | $29.10 | | |
| POCOUPIDD | Port of Coupeville IDD | 0.3409740022 | $266,114 | $266,114 | $90.74 | | |
| COUPSDTECH | School 204 CP (TECH) | 0.7545480007 | $266,114 | $266,114 | $200.80 | | |
| SCH204MO | School 204 Enrichment | 0.6716186034 | $266,114 | $266,114 | $178.73 | | |
| ST | State School | 1.3035497053 | $266,114 | $266,114 | $346.89 | | |
| ST2 | State School Part 2 | 0.8169543533 | $266,114 | $266,114 | $217.40 | | |
| | Total Tax Rate: | 6.3184396689 | | | | | |
| | | | | Taxes w/Current Exemptions: | $1,681.44 | | |
| | | | | Taxes w/o Exemptions: | $1,681.44 | | |
Improvement / Building
Sketch
| No sketches available for this property. |
Property Image
Land
| 1 | 35 | AC (10.00-30.99) | 11.0400 | 480902.40 | 0.00 | 0.00 | 1.00 | $266,114 | $0 |
Roll Value History
| 2026 | N/A | N/A | N/A | N/A | N/A |
| 2025 | $0 | $266,114 | $0 | $266,114 | $266,114 |
| 2024 | $0 | $250,000 | $0 | $250,000 | $250,000 |
| 2023 | $0 | $240,000 | $0 | $240,000 | $240,000 |
| 2022 | $0 | $200,000 | $0 | $200,000 | $200,000 |
| 2021 | $0 | $170,000 | $0 | $170,000 | $170,000 |
| 2020 | $0 | $150,000 | $0 | $150,000 | $150,000 |
| 2019 | $0 | $150,000 | $0 | $150,000 | $150,000 |
| 2018 | $0 | $150,000 | $0 | $150,000 | $150,000 |
| 2017 | $0 | $135,000 | $0 | $135,000 | $135,000 |
| 2016 | $0 | $125,000 | $0 | $125,000 | $125,000 |
| 2015 | $0 | $130,520 | $0 | $130,520 | $130,520 |
| 2014 | $0 | $130,520 | $0 | $130,520 | $130,520 |
| 2013 | $0 | $130,520 | $0 | $130,520 | $130,520 |
| 2012 | $0 | $130,520 | $0 | $130,520 | $130,520 |
| 2011 | $0 | $130,520 | $0 | $130,520 | $130,520 |
| 2010 | $0 | $130,520 | $0 | $130,520 | $130,520 |
| 2009 | $0 | $200,800 | $0 | $200,800 | $200,800 |
| 2008 | $0 | $116,338 | $0 | $116,338 | $116,338 |
| 2007 | $0 | $116,339 | $0 | $116,339 | $116,339 |
Deed and Sales History
| 1 | 02/07/2024 | EZ | Easement | URE TRUSTEE, JENNA L | WHIDBEY TELEPHONE COMPANY | | | $10,000.00 | 59173 | 4569240 |
| 2 | 10/08/2015 | WD | Warranty Deed | BRAY, WENDY ANN | URE TRUSTEE, JENNA L | | | $0.00 | 21698 | 4387745 |
| 3 | 12/04/2014 | QCD | Quit Claim Deed | BRAY, ROLLO E | BRAY, WENDY ANN | | | $0.00 | 18832 | 4375062 |
| 4 | 12/17/1998 | OTHER | Other - Misc. Documents | BRAY, ROLLO E | BRAY TRUSTEE, ROLLO E | | | $0.00 | 68110 | 0 |
| 5 | 12/01/1995 | QCD | Quit Claim Deed | BRAY, ROLLO E | BRAY, ROLLO E | | | $0.00 | 60127 | 96000559 |
| 6 | 03/01/1988 | WD | Warranty Deed | ADMIRALS, COVE I | BRAY, ROLLO E | | | $35,000.00 | 90846 | 89003033 |
Payout Agreement
| No payout information available.. |