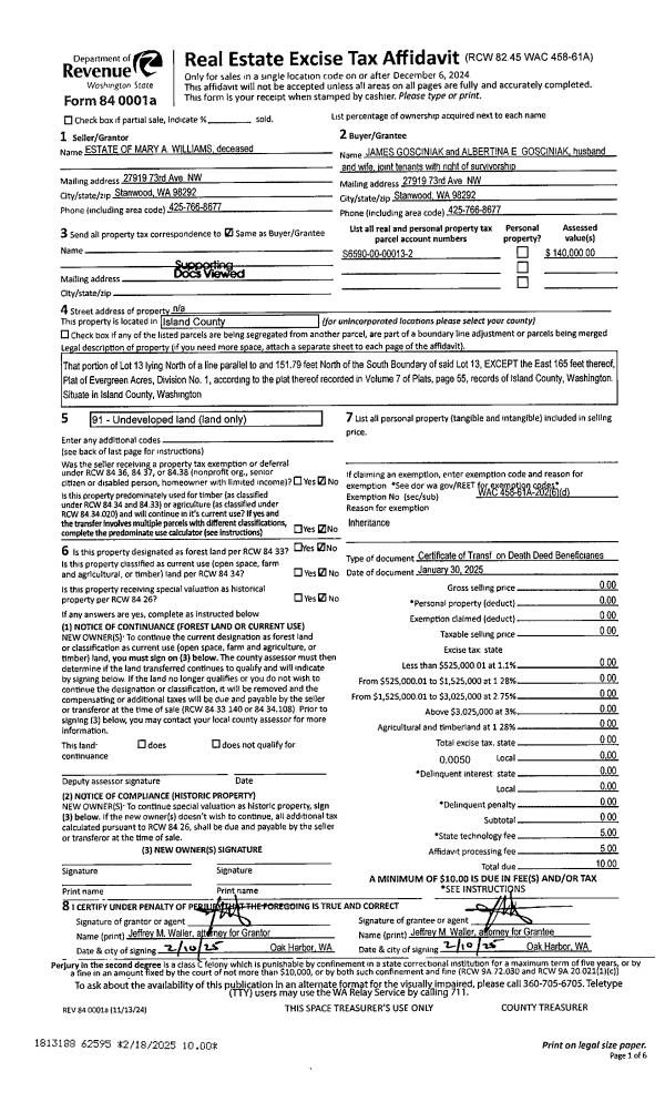
Property
Account |
| Property ID: | 82788 | Abbreviated Legal Description: | 14 - IN GL4:BG 100' S OF IP IN C/STREAM WHERE STRM INTER TIDE SLOUGH EXT HI TD W TO WLN GL4 S340' E TO ML NW ALG ML TP E OF W TPB EX BG NW CR OF ABOVE DESC TR N88*E245.38' TPB S1*E150' N88*E475.98' N29*W170.34' S88*W395.22' TPB |
| Geographic ID: | R23120-050-4570 | Agent Code: | |
| Type: | Real | | |
| Tax Area: | 312 - APPRAISER-Cpvl Schl Dist, outside Cpvl, improved, greater than 1 acre | Land Use Code | 11 |
| Open Space: | N | DFL | N |
| Historic Property: | N | Remodel Property: | N |
| Multi-Family Redevelopment: | N | | |
| Township: | 31 | Section: | 20 |
| Range: | R2 |
Location |
| Address: | | Mapsco: | |
| Neighborhood: | Area 2 Waterfront Eastside Res | Map ID: | 498 |
| Neighborhood CD: | 2WFTE01R |
Owner |
| Name: | PRICE TRUSTEE, GARY R | Owner ID: | 263597 |
| Mailing Address: | GLORIA J PRICE TRUSTEE 16116 MARKET ST SNOHOMISH, WA 98296 | % Ownership: | 100.0000000000% |
| | | Exemptions: | |
Taxes and Assessment Details
Values
| (+) Improvement Homesite Value: | + | $0 | |
| (+) Improvement Non-Homesite Value: | + | $26,717 | |
| (+) Land Homesite Value: | + | $0 | |
| (+) Land Non-Homesite Value: | + | $975,000 | |
| (+) Curr Use (HS): | + | $0 | $0 |
| (+) Curr Use (NHS): | + | $0 | $0 |
| | | -------------------------- | |
| (=) Market Value: | = | $1,001,717 | |
| (–) Productivity Loss: | – | $0 | |
| | | -------------------------- | |
| (=) Subtotal: | = | $1,001,717 | |
| (+) Senior Appraised Value: | + | $0 | |
| (+) Non-Senior Appraised Value: | + | $1,001,717 | |
| | | -------------------------- | |
| (=) Total Appraised Value: | = | $1,001,717 | |
| (–) Senior Exemption Loss: | – | $0 | |
| (–) Exemption Loss: | – | $0 | |
| | | -------------------------- | |
| (=) Taxable Value: | = | $1,001,717 | |
Taxing Jurisdiction
| Owner: | PRICE TRUSTEE, GARY R | | |
| % Ownership: | 100.0000000000% | | |
| Total Value: | $1,001,717 | | |
| Tax Area: | 312 - APPRAISER-Cpvl Schl Dist, outside Cpvl, improved, greater than 1 acre |
| CF | Conservation Futures | 0.0316035091 | $1,001,717 | $1,001,717 | $31.66 | | |
| CEM2 | Cemetery #2 | 0.0095056933 | $1,001,717 | $1,001,717 | $9.52 | | |
| FIRE5 | Fire & Rescue Dist #5 C Whidbey GEN | 1.2008080668 | $1,001,717 | $1,001,717 | $1,202.87 | | |
| FIRE5BOND | Fire & Rescue Dist #5 C Whidbey BOND | 0.1400090713 | $1,001,717 | $1,001,717 | $140.25 | | |
| HOBOND | Hospital BOND | 0.1910887512 | $1,001,717 | $1,001,717 | $191.42 | | |
| HOGEN | Hospital GEN | 0.3902502903 | $1,001,717 | $1,001,717 | $390.92 | | |
| CE | County Current Expense | 0.3708482477 | $1,001,717 | $1,001,717 | $371.48 | | |
| CR | County Roads | 0.4584763726 | $1,001,717 | $1,001,717 | $459.26 | | |
| ISLANDEMS | Hospital GEN (EMS) | 0.5000000000 | $1,001,717 | $1,001,717 | $500.86 | | |
| LIB | Library Sno-Isle GEN | 0.3153421757 | $1,001,717 | $1,001,717 | $315.88 | | |
| LIBCAP | Library Sno-Isle BOND (Cap Fac Imp Area) | 0.0543427938 | $1,001,717 | $1,001,717 | $54.44 | | |
| POCOUP | Port of Coupeville GEN | 0.1093371703 | $1,001,717 | $1,001,717 | $109.52 | | |
| POCOUPIDD | Port of Coupeville IDD | 0.3409740022 | $1,001,717 | $1,001,717 | $341.56 | | |
| COUPSDTECH | School 204 CP (TECH) | 0.7545480007 | $1,001,717 | $1,001,717 | $755.84 | | |
| SCH204MO | School 204 Enrichment | 0.6716186034 | $1,001,717 | $1,001,717 | $672.77 | | |
| ST | State School | 1.3035497053 | $1,001,717 | $1,001,717 | $1,305.79 | | |
| ST2 | State School Part 2 | 0.8169543533 | $1,001,717 | $1,001,717 | $818.36 | | |
| | Total Tax Rate: | 7.6592568070 | | | | | |
| | | | | Taxes w/Current Exemptions: | $7,672.40 | | |
| | | | | Taxes w/o Exemptions: | $7,672.40 | | |
Improvement / Building
| Improvement #1: | RESIDENTIAL | State Code: | Y | 327.0 sqft | Value: | $26,717 |
| Bathrooms: | 1 | Bedrooms: | 1 | | Ceiling: | DRYWALL PAINTED | Exterior Wall/Cover: | WOOD SIDING | | Floor Covering: | VINYL TILE | Floor Structure: | WOOD W/SUBFLOOR | | Foundation: | WOOD BLOCKS | Interior Finish: | DRYWALL PAINT | | Plumbing Fixture Cnt: | 1 | Roof Slope: | 6" IN 12" | | Roof Structure/Cover: | ALUM LIGHT |   |   |
|
| | Type | Description | Class CD | Sub Class CD | Year Built | Area |
| | BAS | BASE/MAIN FLOOR | 2 | 0 | 1945 | 327.0 |
| | OWP | OPEN WOOD PORCH W/STEPS | 2 | 0 | 1945 | 322.5 |
Sketch
Property Image
Land
| 1 | MB | MEDIUM BANK | 7.0000 | 304920.00 | 415.00 | 0.00 | 1.00 | $975,000 | $0 |
Roll Value History
| 2026 | N/A | N/A | N/A | N/A | N/A |
| 2025 | $26,717 | $975,000 | $0 | $1,001,717 | $1,001,717 |
| 2024 | $28,210 | $950,000 | $0 | $978,210 | $978,210 |
| 2023 | $28,834 | $925,000 | $0 | $953,834 | $953,834 |
| 2022 | $26,673 | $800,000 | $0 | $826,673 | $826,673 |
| 2021 | $23,685 | $650,000 | $0 | $673,685 | $673,685 |
| 2020 | $23,394 | $625,000 | $0 | $648,394 | $648,394 |
| 2019 | $17,975 | $675,000 | $0 | $692,975 | $692,975 |
| 2018 | $24,426 | $559,270 | $0 | $583,696 | $583,696 |
| 2017 | $24,426 | $509,270 | $0 | $533,696 | $533,696 |
| 2016 | $24,426 | $509,270 | $0 | $533,696 | $533,696 |
| 2015 | $24,426 | $509,270 | $0 | $533,696 | $533,696 |
| 2014 | $24,426 | $509,270 | $0 | $533,696 | $533,696 |
| 2013 | $24,445 | $470,066 | $0 | $494,511 | $494,511 |
| 2012 | $24,463 | $470,066 | $0 | $494,529 | $494,529 |
| 2011 | $24,481 | $470,066 | $0 | $494,547 | $494,547 |
| 2010 | $24,720 | $470,066 | $0 | $494,786 | $494,786 |
| 2009 | $24,807 | $545,078 | $0 | $569,885 | $569,885 |
| 2008 | $16,567 | $397,597 | $0 | $414,164 | $414,164 |
| 2007 | $24,939 | $670,100 | $0 | $695,039 | $695,039 |
Deed and Sales History
| 1 | 08/09/2013 | TRUSTEED | Trustee's Deed | PRICE, GARY R | PRICE TRUSTEE, GARY R | | | $0.00 | 12638 | 4347494 |
Payout Agreement
| No payout information available.. |