Property
Account |
| Property ID: | 82831 | Abbreviated Legal Description: | 6 - SW SE EX SE |
| Geographic ID: | R23120-090-2970 | Agent Code: | |
| Type: | Real | | |
| Tax Area: | 315 - Cpvl Schl Dist, outside Cpvl, vacant, combined for Forest Protection | Land Use Code | 91 |
| Open Space: | N | DFL | N |
| Historic Property: | N | Remodel Property: | N |
| Multi-Family Redevelopment: | N | | |
| Township: | 31 | Section: | 20 |
| Range: | R2 |
Location |
| Address: | | Mapsco: | |
| Neighborhood: | Cycle 2 | Map ID: | 498 |
| Neighborhood CD: | 2 |
Owner |
| Name: | WATERMAN ENTERPRISES INC | Owner ID: | 8037 |
| Mailing Address: | WATERMAN FAMILY PARTNERSHIP PO BOX 325 LANGLEY, WA 98260-0325 | % Ownership: | 100.0000000000% |
| | | Exemptions: | |
Taxes and Assessment Details
Values
| (+) Improvement Homesite Value: | + | $0 | |
| (+) Improvement Non-Homesite Value: | + | $0 | |
| (+) Land Homesite Value: | + | $0 | |
| (+) Land Non-Homesite Value: | + | $405,000 | |
| (+) Curr Use (HS): | + | $0 | $0 |
| (+) Curr Use (NHS): | + | $0 | $0 |
| | | -------------------------- | |
| (=) Market Value: | = | $405,000 | |
| (–) Productivity Loss: | – | $0 | |
| | | -------------------------- | |
| (=) Subtotal: | = | $405,000 | |
| (+) Senior Appraised Value: | + | $0 | |
| (+) Non-Senior Appraised Value: | + | $405,000 | |
| | | -------------------------- | |
| (=) Total Appraised Value: | = | $405,000 | |
| (–) Senior Exemption Loss: | – | $0 | |
| (–) Exemption Loss: | – | $0 | |
| | | -------------------------- | |
| (=) Taxable Value: | = | $405,000 | |
Taxing Jurisdiction
| Owner: | WATERMAN ENTERPRISES INC | | |
| % Ownership: | 100.0000000000% | | |
| Total Value: | $405,000 | | |
| Tax Area: | 315 - Cpvl Schl Dist, outside Cpvl, vacant, combined for Forest Protection |
| CF | Conservation Futures | 0.0316035091 | $405,000 | $405,000 | $12.80 | | |
| CEM2 | Cemetery #2 | 0.0095056933 | $405,000 | $405,000 | $3.85 | | |
| HOBOND | Hospital BOND | 0.1910887512 | $405,000 | $405,000 | $77.39 | | |
| HOGEN | Hospital GEN | 0.3902502903 | $405,000 | $405,000 | $158.05 | | |
| CE | County Current Expense | 0.3708482477 | $405,000 | $405,000 | $150.19 | | |
| CR | County Roads | 0.4584763726 | $405,000 | $405,000 | $185.68 | | |
| ISLANDEMS | Hospital GEN (EMS) | 0.5000000000 | $405,000 | $405,000 | $202.50 | | |
| LIB | Library Sno-Isle GEN | 0.3153421757 | $405,000 | $405,000 | $127.71 | | |
| LIBCAP | Library Sno-Isle BOND (Cap Fac Imp Area) | 0.0543427938 | $405,000 | $405,000 | $22.01 | | |
| POCOUP | Port of Coupeville GEN | 0.1093371703 | $405,000 | $405,000 | $44.28 | | |
| POCOUPIDD | Port of Coupeville IDD | 0.3409740022 | $405,000 | $405,000 | $138.09 | | |
| COUPSDTECH | School 204 CP (TECH) | 0.7545480007 | $405,000 | $405,000 | $305.59 | | |
| SCH204MO | School 204 Enrichment | 0.6716186034 | $405,000 | $405,000 | $272.01 | | |
| ST | State School | 1.3035497053 | $405,000 | $405,000 | $527.94 | | |
| ST2 | State School Part 2 | 0.8169543533 | $405,000 | $405,000 | $330.87 | | |
| | Total Tax Rate: | 6.3184396689 | | | | | |
| | | | | Taxes w/Current Exemptions: | $2,558.96 | | |
| | | | | Taxes w/o Exemptions: | $2,558.96 | | |
Improvement / Building
Sketch
| No sketches available for this property. |
Property Image
Land
| 1 | 35 | AC (10.00-30.99) | 30.0000 | 1306800.00 | 0.00 | 0.00 | 1.00 | $405,000 | $0 |
Roll Value History
| 2026 | N/A | N/A | N/A | N/A | N/A |
| 2025 | $0 | $405,000 | $0 | $405,000 | $405,000 |
| 2024 | $0 | $390,000 | $0 | $390,000 | $390,000 |
| 2023 | $0 | $360,000 | $0 | $360,000 | $360,000 |
| 2022 | $0 | $360,000 | $0 | $360,000 | $360,000 |
| 2021 | $0 | $250,000 | $0 | $250,000 | $250,000 |
| 2020 | $0 | $250,000 | $0 | $250,000 | $250,000 |
| 2019 | $0 | $250,000 | $0 | $250,000 | $250,000 |
| 2018 | $0 | $220,000 | $0 | $220,000 | $220,000 |
| 2017 | $0 | $220,000 | $0 | $220,000 | $220,000 |
| 2016 | $0 | $220,000 | $0 | $220,000 | $220,000 |
| 2015 | $0 | $261,000 | $0 | $261,000 | $261,000 |
| 2014 | $0 | $261,000 | $0 | $261,000 | $261,000 |
| 2013 | $0 | $261,000 | $0 | $261,000 | $261,000 |
| 2012 | $0 | $261,000 | $0 | $261,000 | $261,000 |
| 2011 | $0 | $261,000 | $0 | $261,000 | $261,000 |
| 2010 | $0 | $261,000 | $0 | $261,000 | $261,000 |
| 2009 | $0 | $360,000 | $0 | $360,000 | $360,000 |
| 2008 | $0 | $247,200 | $0 | $247,200 | $247,200 |
| 2007 | $0 | $247,200 | $0 | $247,200 | $247,200 |
Deed and Sales History
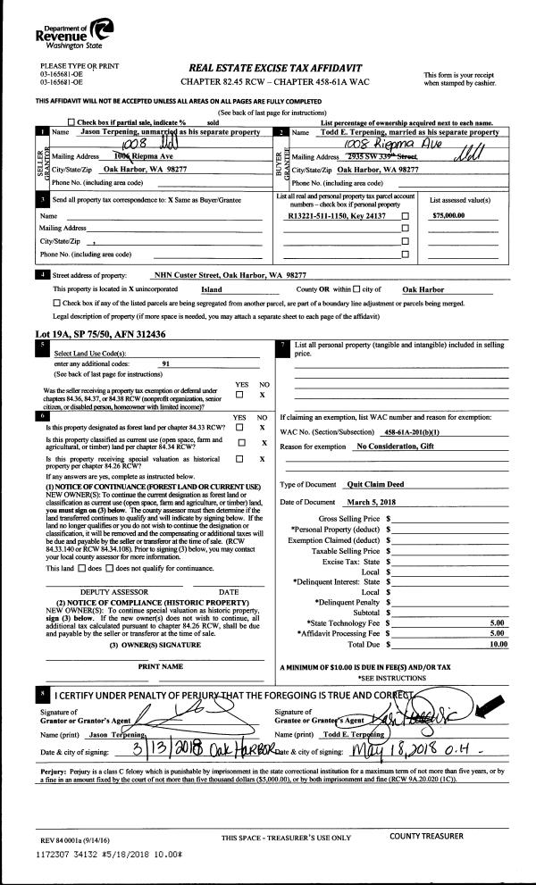
| 1 | 01/01/1995 | OTHER | Other - Misc. Documents | WATERMAN, FAMILY L | WATERMAN, ENTERPRISES I | | | $0.00 | 66203 | 0 |
| 2 | 08/01/1989 | QCD | Quit Claim Deed | WATERMAN, MARGARET E | WATERMAN, FAMILY L | | | $0.00 | 93522 | 89011849 |
| 3 | 03/01/1985 | QCD | Quit Claim Deed | SEA-1ST, NATL B | WATERMAN, MARGARET E | | | $0.00 | 51459 | 85005927 |
| 4 | 03/01/1981 | CD | DNU - Correction Deed | WATERMAN, BERNARD | SEA-1ST, NATL B | | | $0.00 | 11699 | 383811 |
| 5 | 05/01/1979 | OTHER | Other - Misc. Documents | BA, | WATERMAN, BERNARD | | | $78,000.00 | 92361 | 352541 |
| 6 | 10/01/1978 | OTHER | Other - Misc. Documents | Unknown | BA, | | | $78,000.00 | 862140 | 3450370 |
Payout Agreement
| No payout information available.. |