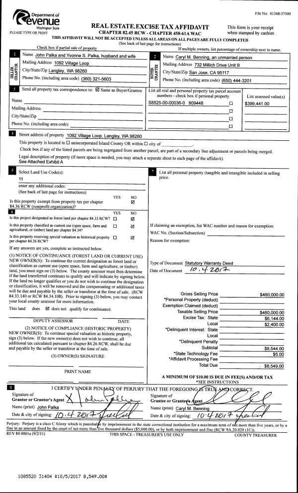
Property
Account |
| Property ID: | 82975 | Abbreviated Legal Description: | 19 - N200'OF GL3 |
| Geographic ID: | R23120-253-2970 | Agent Code: | |
| Type: | Real | | |
| Tax Area: | 319 - APPRAISER-Cpvl Schl Dist, outside Cpvl, vacant & 50 acres or less | Land Use Code | 91 |
| Open Space: | N | DFL | N |
| Historic Property: | N | Remodel Property: | N |
| Multi-Family Redevelopment: | N | | |
| Township: | 31 | Section: | 20 |
| Range: | R2 |
Location |
| Address: | | Mapsco: | |
| Neighborhood: | Area 2 Waterfront Eastside Res | Map ID: | 498 |
| Neighborhood CD: | 2WFTE01R |
Owner |
| Name: | STANDING ON HIGHER GROUND, LLC | Owner ID: | 289689 |
| Mailing Address: | PO BOX 246 GREENBANK, WA 98253 | % Ownership: | 100.0000000000% |
| | | Exemptions: | |
Taxes and Assessment Details
Values
| (+) Improvement Homesite Value: | + | $0 | |
| (+) Improvement Non-Homesite Value: | + | $0 | |
| (+) Land Homesite Value: | + | $0 | |
| (+) Land Non-Homesite Value: | + | $50,000 | |
| (+) Curr Use (HS): | + | $0 | $0 |
| (+) Curr Use (NHS): | + | $0 | $0 |
| | | -------------------------- | |
| (=) Market Value: | = | $50,000 | |
| (–) Productivity Loss: | – | $0 | |
| | | -------------------------- | |
| (=) Subtotal: | = | $50,000 | |
| (+) Senior Appraised Value: | + | $0 | |
| (+) Non-Senior Appraised Value: | + | $50,000 | |
| | | -------------------------- | |
| (=) Total Appraised Value: | = | $50,000 | |
| (–) Senior Exemption Loss: | – | $0 | |
| (–) Exemption Loss: | – | $0 | |
| | | -------------------------- | |
| (=) Taxable Value: | = | $50,000 | |
Taxing Jurisdiction
| Owner: | STANDING ON HIGHER GROUND, LLC | | |
| % Ownership: | 100.0000000000% | | |
| Total Value: | $50,000 | | |
| Tax Area: | 319 - APPRAISER-Cpvl Schl Dist, outside Cpvl, vacant & 50 acres or less |
| CF | Conservation Futures | 0.0316035091 | $50,000 | $50,000 | $1.58 | | |
| CEM2 | Cemetery #2 | 0.0095056933 | $50,000 | $50,000 | $0.48 | | |
| HOBOND | Hospital BOND | 0.1910887512 | $50,000 | $50,000 | $9.55 | | |
| HOGEN | Hospital GEN | 0.3902502903 | $50,000 | $50,000 | $19.51 | | |
| CE | County Current Expense | 0.3708482477 | $50,000 | $50,000 | $18.54 | | |
| CR | County Roads | 0.4584763726 | $50,000 | $50,000 | $22.92 | | |
| ISLANDEMS | Hospital GEN (EMS) | 0.5000000000 | $50,000 | $50,000 | $25.00 | | |
| LIB | Library Sno-Isle GEN | 0.3153421757 | $50,000 | $50,000 | $15.77 | | |
| LIBCAP | Library Sno-Isle BOND (Cap Fac Imp Area) | 0.0543427938 | $50,000 | $50,000 | $2.72 | | |
| POCOUP | Port of Coupeville GEN | 0.1093371703 | $50,000 | $50,000 | $5.47 | | |
| POCOUPIDD | Port of Coupeville IDD | 0.3409740022 | $50,000 | $50,000 | $17.05 | | |
| COUPSDTECH | School 204 CP (TECH) | 0.7545480007 | $50,000 | $50,000 | $37.73 | | |
| SCH204MO | School 204 Enrichment | 0.6716186034 | $50,000 | $50,000 | $33.58 | | |
| ST | State School | 1.3035497053 | $50,000 | $50,000 | $65.18 | | |
| ST2 | State School Part 2 | 0.8169543533 | $50,000 | $50,000 | $40.85 | | |
| | Total Tax Rate: | 6.3184396689 | | | | | |
| | | | | Taxes w/Current Exemptions: | $315.93 | | |
| | | | | Taxes w/o Exemptions: | $315.93 | | |
Improvement / Building
Sketch
| No sketches available for this property. |
Property Image
Land
| 1 | HB | HIGH BLUFF | 2.9000 | 126324.00 | 200.00 | 0.00 | 1.00 | $50,000 | $0 |
Roll Value History
| 2026 | N/A | N/A | N/A | N/A | N/A |
| 2025 | $0 | $50,000 | $0 | $50,000 | $50,000 |
| 2024 | $0 | $50,000 | $0 | $50,000 | $50,000 |
| 2023 | $0 | $50,000 | $0 | $50,000 | $50,000 |
| 2022 | $0 | $50,000 | $0 | $50,000 | $50,000 |
| 2021 | $0 | $50,000 | $0 | $50,000 | $50,000 |
| 2020 | $0 | $50,000 | $0 | $50,000 | $50,000 |
| 2019 | $0 | $50,000 | $0 | $50,000 | $50,000 |
| 2018 | $0 | $50,000 | $0 | $50,000 | $50,000 |
| 2017 | $0 | $50,000 | $0 | $50,000 | $50,000 |
| 2016 | $0 | $50,000 | $0 | $50,000 | $50,000 |
| 2015 | $0 | $50,000 | $0 | $50,000 | $50,000 |
| 2014 | $0 | $50,000 | $0 | $50,000 | $50,000 |
| 2013 | $0 | $71,291 | $0 | $71,291 | $71,291 |
| 2012 | $0 | $71,291 | $0 | $71,291 | $71,291 |
| 2011 | $0 | $71,291 | $0 | $71,291 | $71,291 |
| 2010 | $0 | $71,291 | $0 | $71,291 | $71,291 |
| 2009 | $0 | $83,172 | $0 | $83,172 | $83,172 |
| 2008 | $0 | $83,326 | $0 | $83,326 | $83,326 |
| 2007 | $0 | $81,808 | $0 | $81,808 | $81,808 |
Deed and Sales History
| 1 | 04/25/2019 | WD | Warranty Deed | INGRAM, VALERIE E | STANDING ON HIGHER GROUND, LLC | | | $37,500.00 | 38426 | 4462983 |
| 2 | 01/16/2018 | WD | Warranty Deed | INGRAM, EARL | INGRAM, VALERIE E | | | $15,000.00 | 32698 | 4437916 |
| 3 | 08/07/2002 | QCD | Quit Claim Deed | INGRAM, EARL | INGRAM, EARL | | | $0.00 | 23319 | 4029189 |
| 4 | 01/01/1900 | OTHER | Other - Misc. Documents | Unknown | INGRAM, EARL | | | $0.00 | 0 | 0 |
Payout Agreement
| No payout information available.. |