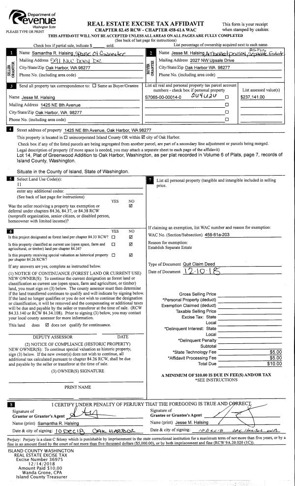
Property
Account |
| Property ID: | 83215 | Abbreviated Legal Description: | 108 - BG NE CR GL1 W496.66' S221.44' TPB S45*E74.7' S45 W38.28' M/L TO ML NWLY ALG ML TP S45*W FR TPB N45*E38. 28' M/L TPB INCL TIDES & TGW EZ |
| Geographic ID: | R23123-111-2220 | Agent Code: | |
| Type: | Real | | |
| Tax Area: | 510 - APPRAISER-Stan/Cam Schl Dist, improved & 1 acre or less | Land Use Code | 11 |
| Open Space: | N | DFL | N |
| Historic Property: | N | Remodel Property: | N |
| Multi-Family Redevelopment: | N | | |
| Township: | 31 | Section: | 23 |
| Range: | R2 |
Location |
| Address: | 1518 COVE BEACH WAY CAMANO ISLAND, WA 98282 | Mapsco: | |
| Neighborhood: | Cycle 5 | Map ID: | 500 |
| Neighborhood CD: | 5 |
Owner |
| Name: | FAY TTEE, WILLIAM | Owner ID: | 287860 |
| Mailing Address: | JODY BETH FAY, TTEE 707 WALDEN DR BEVERLY HILLS, CA 90210 | % Ownership: | 100.0000000000% |
| | | Exemptions: | |
Taxes and Assessment Details
Values
| (+) Improvement Homesite Value: | + | $0 | |
| (+) Improvement Non-Homesite Value: | + | $522,521 | |
| (+) Land Homesite Value: | + | $0 | |
| (+) Land Non-Homesite Value: | + | $575,750 | |
| (+) Curr Use (HS): | + | $0 | $0 |
| (+) Curr Use (NHS): | + | $0 | $0 |
| | | -------------------------- | |
| (=) Market Value: | = | $1,098,271 | |
| (–) Productivity Loss: | – | $0 | |
| | | -------------------------- | |
| (=) Subtotal: | = | $1,098,271 | |
| (+) Senior Appraised Value: | + | $0 | |
| (+) Non-Senior Appraised Value: | + | $1,098,271 | |
| | | -------------------------- | |
| (=) Total Appraised Value: | = | $1,098,271 | |
| (–) Senior Exemption Loss: | – | $0 | |
| (–) Exemption Loss: | – | $0 | |
| | | -------------------------- | |
| (=) Taxable Value: | = | $1,098,271 | |
Taxing Jurisdiction
| Owner: | FAY TTEE, WILLIAM | | |
| % Ownership: | 100.0000000000% | | |
| Total Value: | $1,098,271 | | |
| Tax Area: | 510 - APPRAISER-Stan/Cam Schl Dist, improved & 1 acre or less |
| CF | Conservation Futures | 0.0316035091 | $1,098,271 | $1,098,271 | $34.71 | | |
| EMS1 | Fire & Rescue Dist #1 Camano GEN (EMS) | 0.3677864386 | $1,098,271 | $1,098,271 | $403.93 | | |
| FIRE1 | Fire & Rescue Dist #1 Camano GEN | 1.2502910536 | $1,098,271 | $1,098,271 | $1,373.16 | | |
| FIRE1BOND | Fire & Rescue Dist #1 Camano BOND | 0.1570001679 | $1,098,271 | $1,098,271 | $172.43 | | |
| CE | County Current Expense | 0.3708482477 | $1,098,271 | $1,098,271 | $407.29 | | |
| CR | County Roads | 0.4584763726 | $1,098,271 | $1,098,271 | $503.53 | | |
| LCIB | Library Sno-Isle BOND (Camano Island) | 0.0396325772 | $1,098,271 | $1,098,271 | $43.53 | | |
| LIB | Library Sno-Isle GEN | 0.3153421757 | $1,098,271 | $1,098,271 | $346.33 | | |
| SCH205_401 | School 205-401 Enrichment | 1.2698420524 | $1,098,271 | $1,098,271 | $1,394.63 | | |
| SCH205BOND | School 205-401 BOND | 0.9396497583 | $1,098,271 | $1,098,271 | $1,031.99 | | |
| ST | State School | 1.3035497053 | $1,098,271 | $1,098,271 | $1,431.65 | | |
| ST2 | State School Part 2 | 0.8169543533 | $1,098,271 | $1,098,271 | $897.24 | | |
| | Total Tax Rate: | 7.3209764117 | | | | | |
| | | | | Taxes w/Current Exemptions: | $8,040.42 | | |
| | | | | Taxes w/o Exemptions: | $8,040.42 | | |
Improvement / Building
| Improvement #1: | RESIDENTIAL | State Code: | Y | 2922.0 sqft | Value: | $522,521 |
| Bathrooms: | 4.5 | Bedrooms: | 4 | | Ceiling: | TONGUE & GROOVE | Exterior Wall/Cover: | SHINGLE | | Floor Covering: | HARDWOOD/CARP 80-20 | Floor Structure: | WOOD W/SUBFLOOR | | Foundation: | CONCRETE | Heating: | FHA GAS | | Interior Finish: | DRYWALL PAINT | Plumbing Fixture Cnt: | 14 | | Roof Slope: | 4" IN 12" | Roof Structure/Cover: | CJ ALUMINIUM HEAVY |
|
| | Type | Description | Class CD | Sub Class CD | Year Built | Area |
| | BAS | BASE/MAIN FLOOR | 4 | 0 | 1996 | 1688.0 |
| | AGR | ATTACHED GARAGE | 4 | 0 | 1996 | 396.0 |
| | UPS | UPPER STORY | 4 | 0 | 1996 | 1234.0 |
| | OWP | OPEN WOOD PORCH W/STEPS | 4 | 0 | 1996 | 572.0 |
| | BAW | BALCONY WOOD RAIL | 4 | 0 | 1996 | 28.0 |
Sketch
Property Image
Land
| 1 | LB | LOW BANK | 0.0000 | 0.00 | 75.00 | 0.00 | 1.00 | $575,000 | $0 |
| 2 | 55 | TIDES | 0.0000 | 0.00 | 75.00 | 0.00 | 1.00 | $750 | $0 |
Roll Value History
| 2026 | N/A | N/A | N/A | N/A | N/A |
| 2025 | $522,521 | $575,750 | $0 | $1,098,271 | $1,098,271 |
| 2024 | $528,953 | $575,750 | $0 | $1,104,703 | $1,104,703 |
| 2023 | $535,384 | $575,750 | $0 | $1,111,134 | $1,111,134 |
| 2022 | $490,632 | $550,750 | $0 | $1,041,382 | $1,041,382 |
| 2021 | $411,616 | $500,750 | $0 | $912,366 | $912,366 |
| 2020 | $401,716 | $500,750 | $0 | $902,466 | $902,466 |
| 2019 | $311,198 | $525,750 | $0 | $836,948 | $836,948 |
| 2018 | $312,111 | $400,750 | $0 | $712,861 | $712,861 |
| 2017 | $313,937 | $400,750 | $0 | $714,687 | $714,687 |
| 2016 | $317,586 | $400,750 | $0 | $718,336 | $718,336 |
| 2015 | $304,827 | $400,750 | $0 | $705,577 | $705,577 |
| 2014 | $308,455 | $400,750 | $0 | $709,205 | $709,205 |
| 2013 | $319,779 | $398,335 | $0 | $718,114 | $718,114 |
| 2012 | $296,667 | $398,335 | $0 | $695,002 | $695,002 |
| 2011 | $300,243 | $497,731 | $0 | $797,974 | $797,974 |
| 2010 | $308,973 | $497,731 | $0 | $806,704 | $806,704 |
| 2009 | $340,094 | $536,366 | $0 | $876,460 | $876,460 |
| 2008 | $344,081 | $536,366 | $0 | $880,447 | $880,447 |
| 2007 | $348,045 | $813,992 | $0 | $1,162,037 | $1,162,037 |
Deed and Sales History
| 1 | 11/08/2018 | WD | Warranty Deed | LARSEN, ERIC P | FAY TTEE, WILLIAM | | | $1,125,000.00 | 36614 | 4454824 |
|   | |
| 2 | 11/08/2012 | WD | Warranty Deed | FAY, PATRICIA J | LARSEN, ERIC P | | | $825,000.00 | 9405 | 4326971 |
|   | |
| 3 | 12/01/1987 | WD | Warranty Deed | HOLTON, JOSEPH F | FAY, PATRICIA J | | | $135,000.00 | 74085 | 87017741 |
| 4 | 04/01/1980 | TRUSTEED | Trustee's Deed | MATTHEWS, PAUL R | HOLTON, JOSEPH F | | | $110,000.00 | 1492 | 368299 |
| 5 | 01/01/1900 | OTHER | Other - Misc. Documents | Unknown | MATTHEWS, PAUL R | | | $0.00 | 0 | 0 |
Payout Agreement
| No payout information available.. |