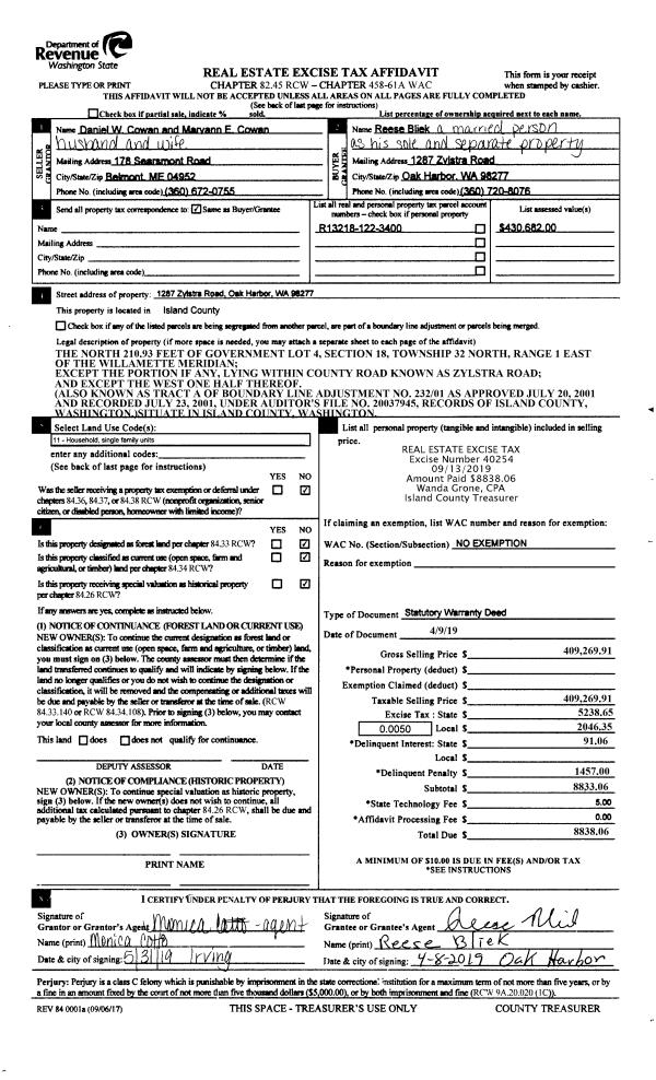
Property
Account |
| Property ID: | 8351 | Abbreviated Legal Description: | 8 - S/2 GL 4 EX NW5AC & RD |
| Geographic ID: | R13112-155-3520 | Agent Code: | |
| Type: | Real | | |
| Tax Area: | 319 - APPRAISER-Cpvl Schl Dist, outside Cpvl, vacant & 50 acres or less | Land Use Code | 91 |
| Open Space: | N | DFL | N |
| Historic Property: | N | Remodel Property: | N |
| Multi-Family Redevelopment: | N | | |
| Township: | 31 | Section: | 12 |
| Range: | R1 |
Location |
| Address: | | Mapsco: | |
| Neighborhood: | Cycle 2 | Map ID: | 55 |
| Neighborhood CD: | 2 |
Owner |
| Name: | OLF MINI STORAGE, LLC | Owner ID: | 291978 |
| Mailing Address: | PO BOX 609 FREELAND, WA 98249 | % Ownership: | 100.0000000000% |
| | | Exemptions: | |
Taxes and Assessment Details
Values
| (+) Improvement Homesite Value: | + | $0 | |
| (+) Improvement Non-Homesite Value: | + | $0 | |
| (+) Land Homesite Value: | + | $0 | |
| (+) Land Non-Homesite Value: | + | $269,994 | |
| (+) Curr Use (HS): | + | $0 | $0 |
| (+) Curr Use (NHS): | + | $0 | $0 |
| | | -------------------------- | |
| (=) Market Value: | = | $269,994 | |
| (–) Productivity Loss: | – | $0 | |
| | | -------------------------- | |
| (=) Subtotal: | = | $269,994 | |
| (+) Senior Appraised Value: | + | $0 | |
| (+) Non-Senior Appraised Value: | + | $269,994 | |
| | | -------------------------- | |
| (=) Total Appraised Value: | = | $269,994 | |
| (–) Senior Exemption Loss: | – | $0 | |
| (–) Exemption Loss: | – | $0 | |
| | | -------------------------- | |
| (=) Taxable Value: | = | $269,994 | |
Taxing Jurisdiction
| Owner: | OLF MINI STORAGE, LLC | | |
| % Ownership: | 100.0000000000% | | |
| Total Value: | $269,994 | | |
| Tax Area: | 319 - APPRAISER-Cpvl Schl Dist, outside Cpvl, vacant & 50 acres or less |
| CF | Conservation Futures | 0.0316035091 | $269,994 | $269,994 | $8.53 | | |
| CEM2 | Cemetery #2 | 0.0095056933 | $269,994 | $269,994 | $2.57 | | |
| HOBOND | Hospital BOND | 0.1910887512 | $269,994 | $269,994 | $51.59 | | |
| HOGEN | Hospital GEN | 0.3902502903 | $269,994 | $269,994 | $105.37 | | |
| CE | County Current Expense | 0.3708482477 | $269,994 | $269,994 | $100.13 | | |
| CR | County Roads | 0.4584763726 | $269,994 | $269,994 | $123.79 | | |
| ISLANDEMS | Hospital GEN (EMS) | 0.5000000000 | $269,994 | $269,994 | $135.00 | | |
| LIB | Library Sno-Isle GEN | 0.3153421757 | $269,994 | $269,994 | $85.14 | | |
| LIBCAP | Library Sno-Isle BOND (Cap Fac Imp Area) | 0.0543427938 | $269,994 | $269,994 | $14.67 | | |
| POCOUP | Port of Coupeville GEN | 0.1093371703 | $269,994 | $269,994 | $29.52 | | |
| POCOUPIDD | Port of Coupeville IDD | 0.3409740022 | $269,994 | $269,994 | $92.06 | | |
| COUPSDTECH | School 204 CP (TECH) | 0.7545480007 | $269,994 | $269,994 | $203.72 | | |
| SCH204MO | School 204 Enrichment | 0.6716186034 | $269,994 | $269,994 | $181.33 | | |
| ST | State School | 1.3035497053 | $269,994 | $269,994 | $351.95 | | |
| ST2 | State School Part 2 | 0.8169543533 | $269,994 | $269,994 | $220.57 | | |
| | Total Tax Rate: | 6.3184396689 | | | | | |
| | | | | Taxes w/Current Exemptions: | $1,705.94 | | |
| | | | | Taxes w/o Exemptions: | $1,705.94 | | |
Improvement / Building
Sketch
| No sketches available for this property. |
Property Image
Land
| 1 | 35 | AC (10.00-30.99) | 14.8000 | 644688.00 | 0.00 | 0.00 | 1.00 | $269,994 | $0 |
Roll Value History
| 2026 | N/A | N/A | N/A | N/A | N/A |
| 2025 | $0 | $269,994 | $0 | $269,994 | $269,994 |
| 2024 | $0 | $250,000 | $0 | $250,000 | $250,000 |
| 2023 | $0 | $240,000 | $0 | $240,000 | $240,000 |
| 2022 | $0 | $200,000 | $0 | $200,000 | $200,000 |
| 2021 | $0 | $170,000 | $0 | $170,000 | $170,000 |
| 2020 | $0 | $150,000 | $0 | $150,000 | $150,000 |
| 2019 | $0 | $150,000 | $0 | $150,000 | $150,000 |
| 2018 | $0 | $150,000 | $0 | $150,000 | $150,000 |
| 2017 | $0 | $135,000 | $0 | $135,000 | $135,000 |
| 2016 | $0 | $125,000 | $0 | $125,000 | $125,000 |
| 2015 | $0 | $90,000 | $0 | $90,000 | $90,000 |
| 2014 | $0 | $90,000 | $0 | $90,000 | $90,000 |
| 2013 | $0 | $90,000 | $0 | $90,000 | $90,000 |
| 2012 | $0 | $147,000 | $0 | $147,000 | $147,000 |
| 2011 | $0 | $147,000 | $0 | $147,000 | $147,000 |
| 2010 | $0 | $147,000 | $0 | $147,000 | $147,000 |
| 2009 | $0 | $141,600 | $0 | $141,600 | $141,600 |
| 2008 | $0 | $141,600 | $0 | $141,600 | $141,600 |
| 2007 | $0 | $145,200 | $0 | $145,200 | $145,200 |
Deed and Sales History
| 1 | 07/13/2023 | WD | Warranty Deed | OLF MINI STORAGE, LLC | STATE OF WASHINGTON- DOT | | | $0.00 | 57376 | 4562526 |
| 2 | 09/24/2019 | WD | Warranty Deed | COLE, GREGORY J | OLF MINI STORAGE, LLC | | | $135,000.00 | 40422 | 4472099 |
| 3 | 06/20/2019 | PRD | Personal Representatives Deed | COLE, GORDON J & GREGORY J | COLE, GREGORY J | | | $0.00 | 39438 | 4467389 |
| 4 | 01/01/1900 | OTHER | Other - Misc. Documents | Unknown | COLE, GORDON J & GREGORY J | | | $0.00 | 0 | 0 |
Payout Agreement
| No payout information available.. |