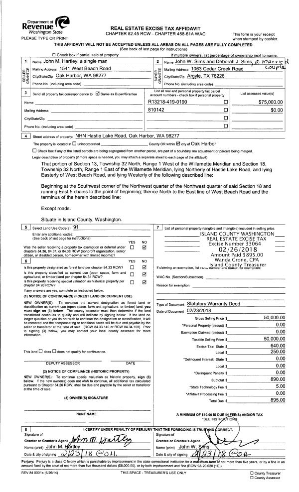
Property
Account |
| Property ID: | 83723 | Abbreviated Legal Description: | 45 - IN GL 3: BG 1/16 POST NECR GL3 W1422.7'M/L S678' TPB (SWCR L5 CAMP COMFORT) S26*E41'M/L TO NLN CARL L HANSEN PROPERTY AF#60034 E69'M/L ALG NLN SD PROPERTY TO BCH RD NLY 37'M/L ALG WLN BCH RD TO SECR L5 CAMP COMFORT W89' ALG SLN SD LOT TPB |
| Geographic ID: | R23123-330-1310 | Agent Code: | |
| Type: | Real | | |
| Tax Area: | 510 - APPRAISER-Stan/Cam Schl Dist, improved & 1 acre or less | Land Use Code | 11 |
| Open Space: | N | DFL | N |
| Historic Property: | N | Remodel Property: | N |
| Multi-Family Redevelopment: | N | | |
| Township: | 31 | Section: | 23 |
| Range: | R2 |
Location |
| Address: | 1355 BYTHESEA WAY CAMANO ISLAND, WA 98282 | Mapsco: | |
| Neighborhood: | Cycle 5 | Map ID: | 502 |
| Neighborhood CD: | 5 |
Owner |
| Name: | MAYER, LENORA A | Owner ID: | 284292 |
| Mailing Address: | 1355BYTHESEA WAY CAMANO ISLAND, WA 98282 | % Ownership: | 100.0000000000% |
| | | Exemptions: | |
Taxes and Assessment Details
Values
| (+) Improvement Homesite Value: | + | $0 | |
| (+) Improvement Non-Homesite Value: | + | $122,835 | |
| (+) Land Homesite Value: | + | $0 | |
| (+) Land Non-Homesite Value: | + | $575,000 | |
| (+) Curr Use (HS): | + | $0 | $0 |
| (+) Curr Use (NHS): | + | $0 | $0 |
| | | -------------------------- | |
| (=) Market Value: | = | $697,835 | |
| (–) Productivity Loss: | – | $0 | |
| | | -------------------------- | |
| (=) Subtotal: | = | $697,835 | |
| (+) Senior Appraised Value: | + | $0 | |
| (+) Non-Senior Appraised Value: | + | $697,835 | |
| | | -------------------------- | |
| (=) Total Appraised Value: | = | $697,835 | |
| (–) Senior Exemption Loss: | – | $0 | |
| (–) Exemption Loss: | – | $0 | |
| | | -------------------------- | |
| (=) Taxable Value: | = | $697,835 | |
Taxing Jurisdiction
| Owner: | MAYER, LENORA A | | |
| % Ownership: | 100.0000000000% | | |
| Total Value: | $697,835 | | |
| Tax Area: | 510 - APPRAISER-Stan/Cam Schl Dist, improved & 1 acre or less |
| CF | Conservation Futures | 0.0316035091 | $697,835 | $697,835 | $22.05 | | |
| EMS1 | Fire & Rescue Dist #1 Camano GEN (EMS) | 0.3677864386 | $697,835 | $697,835 | $256.65 | | |
| FIRE1 | Fire & Rescue Dist #1 Camano GEN | 1.2502910536 | $697,835 | $697,835 | $872.50 | | |
| FIRE1BOND | Fire & Rescue Dist #1 Camano BOND | 0.1570001679 | $697,835 | $697,835 | $109.56 | | |
| CE | County Current Expense | 0.3708482477 | $697,835 | $697,835 | $258.79 | | |
| CR | County Roads | 0.4584763726 | $697,835 | $697,835 | $319.94 | | |
| LCIB | Library Sno-Isle BOND (Camano Island) | 0.0396325772 | $697,835 | $697,835 | $27.66 | | |
| LIB | Library Sno-Isle GEN | 0.3153421757 | $697,835 | $697,835 | $220.06 | | |
| SCH205_401 | School 205-401 Enrichment | 1.2698420524 | $697,835 | $697,835 | $886.14 | | |
| SCH205BOND | School 205-401 BOND | 0.9396497583 | $697,835 | $697,835 | $655.72 | | |
| ST | State School | 1.3035497053 | $697,835 | $697,835 | $909.66 | | |
| ST2 | State School Part 2 | 0.8169543533 | $697,835 | $697,835 | $570.10 | | |
| | Total Tax Rate: | 7.3209764117 | | | | | |
| | | | | Taxes w/Current Exemptions: | $5,108.83 | | |
| | | | | Taxes w/o Exemptions: | $5,108.83 | | |
Improvement / Building
| Improvement #1: | MANUFACTURED HOME | State Code: | Y | 756.0 sqft | Value: | $122,835 |
| Bathrooms: | 1 | Bedrooms: | 2 | | Ceiling: | PLASTER PAINTED | Cooling: | EVAP NO DUCT | | Exterior Wall/Cover: | VINYL | Floor Covering: | CARPET 100% | | Floor Structure: | SLAB ON GRADE | Foundation: | SLAB | | Heating: | FHA ELECTRIC | Interior Finish: | PLASTER | | Roof Slope: | FLAT | Roof Structure/Cover: | CJ ALUMINIUM HEAVY |
|
| | Type | Description | Class CD | Sub Class CD | Year Built | Area |
| | BAS | BASE/MAIN FLOOR | 4 | 0 | 2014 | 756.0 |
| | OWC | OPEN WOOD PORCH W/STEPS/ROOF/C | 4 | 0 | 2014 | 216.0 |
| | OWP | OPEN WOOD PORCH W/STEPS | 4 | 0 | 2014 | 63.0 |
| | UTY | STORAGE/UTILITY | 4 | 0 | 2014 | 756.0 |
Sketch
Property Image
Land
| 1 | LB | LOW BANK | 0.0000 | 0.00 | 37.00 | 0.00 | 1.00 | $575,000 | $0 |
Roll Value History
| 2026 | N/A | N/A | N/A | N/A | N/A |
| 2025 | $122,835 | $575,000 | $0 | $697,835 | $697,835 |
| 2024 | $124,171 | $575,000 | $0 | $699,171 | $699,171 |
| 2023 | $109,135 | $575,000 | $0 | $684,135 | $684,135 |
| 2022 | $100,924 | $550,000 | $0 | $650,924 | $650,924 |
| 2021 | $73,595 | $275,000 | $0 | $348,595 | $348,595 |
| 2020 | $72,196 | $275,000 | $0 | $347,196 | $347,196 |
| 2019 | $57,521 | $275,000 | $0 | $332,521 | $332,521 |
| 2018 | $58,745 | $250,000 | $0 | $308,745 | $308,745 |
| 2017 | $59,356 | $250,000 | $0 | $309,356 | $309,356 |
| 2016 | $59,968 | $250,000 | $0 | $309,968 | $309,968 |
| 2015 | $60,580 | $250,000 | $0 | $310,580 | $310,580 |
| 2014 | $60,580 | $250,000 | $0 | $310,580 | $310,580 |
| 2013 | $4,000 | $199,209 | $0 | $203,209 | $203,209 |
| 2012 | $52,808 | $199,209 | $0 | $252,017 | $252,017 |
| 2011 | $53,864 | $249,011 | $0 | $302,875 | $302,875 |
| 2010 | $62,834 | $249,011 | $0 | $311,845 | $311,845 |
| 2009 | $68,432 | $279,194 | $0 | $347,626 | $347,626 |
| 2008 | $52,315 | $296,453 | $0 | $348,768 | $348,768 |
| 2007 | $45,340 | $303,428 | $0 | $348,768 | $348,768 |
Deed and Sales History
| 1 | 03/09/2018 | MANHOME | Manufactured Home | MAYER, LENORA A | MAYER, LENORA A | | | $0.00 | 33325 | |
| 2 | 03/09/2018 | SPWARDEED | Special Warranty Deed | ESMAY, ROBERT G | MAYER, LENORA A | | | $0.00 | 33324 | 4441126 |
| 3 | 04/19/2002 | TRUSTEED | Trustee's Deed | DOWNSTREAM INC, A WASHINGTON C | ESMAY, ROBERT G | | | $200,000.00 | 24100 | 4034153 |
| 4 | 04/19/2002 | WD | Warranty Deed | PERRY, WALTER I | DOWNSTREAM INC, A WASHINGTON C | | | $200,000.00 | 21468 | 4017548 |
| 5 | 05/26/1999 | QCD | Quit Claim Deed | PERRY, WALTER I | PERRY, WALTER I | | | $0.00 | 92108 | 99013110 |
| 6 | 01/01/1988 | QCD | Quit Claim Deed | WALKER, HOWARD B | PERRY, WALTER I | | | $0.00 | 80408 | 88001692 |
| 7 | 10/01/1982 | WD | Warranty Deed | HANSEN, FLORENCE | WALKER, HOWARD B | | | $68,000.00 | 22718 | 402579 |
| 8 | 01/01/1900 | OTHER | Other - Misc. Documents | Unknown | HANSEN, FLORENCE | | | $0.00 | 0 | 0 |
Payout Agreement
| No payout information available.. |