Property
Account |
| Property ID: | 83803 | Abbreviated Legal Description: | 32 - IN GL 3: BG PT 1251'W OF NECR GL 3 S9*E367'TPB E150' S9*E98.60' W150' N9*W98.14'TPB |
| Geographic ID: | R23123-360-1560 | Agent Code: | |
| Type: | Real | | |
| Tax Area: | 510 - APPRAISER-Stan/Cam Schl Dist, improved & 1 acre or less | Land Use Code | 11 |
| Open Space: | N | DFL | N |
| Historic Property: | N | Remodel Property: | N |
| Multi-Family Redevelopment: | N | | |
| Township: | 31 | Section: | 23 |
| Range: | R2 |
Location |
| Address: | 727 INDIAN BEACH RD CAMANO ISLAND, WA 98282 | Mapsco: | |
| Neighborhood: | Cycle 5 | Map ID: | 502 |
| Neighborhood CD: | 5 |
Owner |
| Name: | LOWE, TRENT C | Owner ID: | 282899 |
| Mailing Address: | EMILY C LOWE 370 N EAST CAMANO DR SUITE 5 #73 CAMANO ISLAND, WA 98282 | % Ownership: | 100.0000000000% |
| | | Exemptions: | |
Taxes and Assessment Details
Values
| (+) Improvement Homesite Value: | + | $0 | |
| (+) Improvement Non-Homesite Value: | + | $603,816 | |
| (+) Land Homesite Value: | + | $0 | |
| (+) Land Non-Homesite Value: | + | $280,000 | |
| (+) Curr Use (HS): | + | $0 | $0 |
| (+) Curr Use (NHS): | + | $0 | $0 |
| | | -------------------------- | |
| (=) Market Value: | = | $883,816 | |
| (–) Productivity Loss: | – | $0 | |
| | | -------------------------- | |
| (=) Subtotal: | = | $883,816 | |
| (+) Senior Appraised Value: | + | $0 | |
| (+) Non-Senior Appraised Value: | + | $883,816 | |
| | | -------------------------- | |
| (=) Total Appraised Value: | = | $883,816 | |
| (–) Senior Exemption Loss: | – | $0 | |
| (–) Exemption Loss: | – | $0 | |
| | | -------------------------- | |
| (=) Taxable Value: | = | $883,816 | |
Taxing Jurisdiction
| Owner: | LOWE, TRENT C | | |
| % Ownership: | 100.0000000000% | | |
| Total Value: | $883,816 | | |
| Tax Area: | 510 - APPRAISER-Stan/Cam Schl Dist, improved & 1 acre or less |
| CF | Conservation Futures | 0.0316035091 | $883,816 | $883,816 | $27.93 | | |
| EMS1 | Fire & Rescue Dist #1 Camano GEN (EMS) | 0.3677864386 | $883,816 | $883,816 | $325.06 | | |
| FIRE1 | Fire & Rescue Dist #1 Camano GEN | 1.2502910536 | $883,816 | $883,816 | $1,105.03 | | |
| FIRE1BOND | Fire & Rescue Dist #1 Camano BOND | 0.1570001679 | $883,816 | $883,816 | $138.76 | | |
| CE | County Current Expense | 0.3708482477 | $883,816 | $883,816 | $327.76 | | |
| CR | County Roads | 0.4584763726 | $883,816 | $883,816 | $405.21 | | |
| LCIB | Library Sno-Isle BOND (Camano Island) | 0.0396325772 | $883,816 | $883,816 | $35.03 | | |
| LIB | Library Sno-Isle GEN | 0.3153421757 | $883,816 | $883,816 | $278.70 | | |
| SCH205_401 | School 205-401 Enrichment | 1.2698420524 | $883,816 | $883,816 | $1,122.31 | | |
| SCH205BOND | School 205-401 BOND | 0.9396497583 | $883,816 | $883,816 | $830.48 | | |
| ST | State School | 1.3035497053 | $883,816 | $883,816 | $1,152.10 | | |
| ST2 | State School Part 2 | 0.8169543533 | $883,816 | $883,816 | $722.04 | | |
| | Total Tax Rate: | 7.3209764117 | | | | | |
| | | | | Taxes w/Current Exemptions: | $6,470.41 | | |
| | | | | Taxes w/o Exemptions: | $6,470.41 | | |
Improvement / Building
| Improvement #1: | RESIDENTIAL | State Code: | Y | 2841.0 sqft | Value: | $603,816 |
| Bathrooms: | 2 | Bedrooms: | 3 | | Ceiling: | DRYWALL PAINTED | Cooling: | HEAT PUMP/CONV/V | | Exterior Wall/Cover: | WOOD SIDING | Floor Covering: | SOFTWOOD/VINYL 60-40 | | Floor Structure: | WOOD W/SUBFLOOR | Foundation: | CONCRETE | | Interior Finish: | DRYWALL PAINT | Plumbing Fixture Cnt: | 13 | | Roof Slope: | FLAT | Roof Structure/Cover: | CJ ALUMINIUM HEAVY |
|
| | Type | Description | Class CD | Sub Class CD | Year Built | Area |
| | BAS | BASE/MAIN FLOOR | 4 | 0 | 2019 | 1873.0 |
| | BIG | BUILT IN GARAGE | 4 | 0 | 2019 | 1117.8 |
| | DWN | DOWNSTAIRS LIVING AREA | 4 | 0 | 2019 | 968.0 |
| | OWP | OPEN WOOD PORCH W/STEPS | 4 | 0 | 2019 | 960.0 |
| | OWC | OPEN WOOD PORCH W/STEPS/ROOF/C | 4 | 0 | 2019 | 174.0 |
Sketch
Property Image
Land
| 1 | 15 | SQ (12001-21780) | 0.3500 | 15246.00 | 0.00 | 0.00 | 1.00 | $280,000 | $0 |
Roll Value History
| 2026 | N/A | N/A | N/A | N/A | N/A |
| 2025 | $603,816 | $280,000 | $0 | $883,816 | $883,816 |
| 2024 | $608,685 | $270,000 | $0 | $878,685 | $878,685 |
| 2023 | $613,555 | $270,000 | $0 | $883,555 | $883,555 |
| 2022 | $560,002 | $240,000 | $0 | $800,002 | $800,002 |
| 2021 | $475,881 | $150,000 | $0 | $625,881 | $625,881 |
| 2020 | $467,304 | $120,000 | $0 | $587,304 | $587,304 |
| 2019 | $366,355 | $160,000 | $0 | $526,355 | $526,355 |
| 2018 | $0 | $70,000 | $0 | $70,000 | $70,000 |
| 2017 | $0 | $75,000 | $0 | $75,000 | $75,000 |
| 2016 | $0 | $75,000 | $0 | $75,000 | $75,000 |
| 2015 | $0 | $50,000 | $0 | $50,000 | $50,000 |
| 2014 | $0 | $50,000 | $0 | $50,000 | $50,000 |
| 2013 | $0 | $47,000 | $0 | $47,000 | $47,000 |
| 2012 | $0 | $47,000 | $0 | $47,000 | $47,000 |
| 2011 | $0 | $47,000 | $0 | $47,000 | $47,000 |
| 2010 | $0 | $47,000 | $0 | $47,000 | $47,000 |
| 2009 | $0 | $55,000 | $0 | $55,000 | $55,000 |
| 2008 | $0 | $65,270 | $0 | $65,270 | $65,270 |
| 2007 | $0 | $65,270 | $0 | $65,270 | $65,270 |
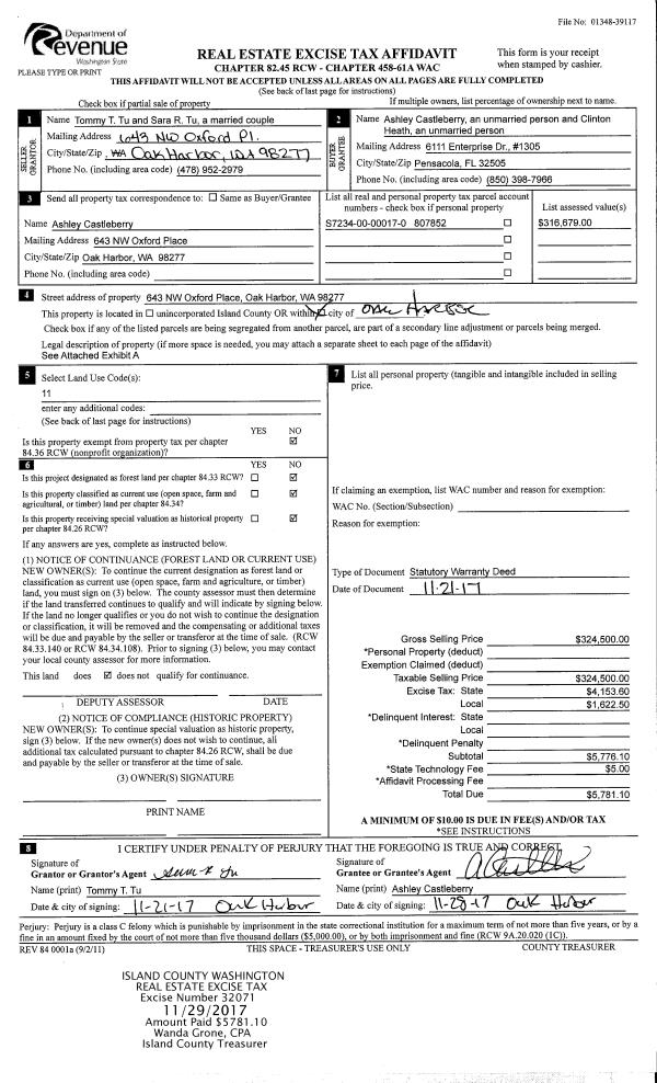
Deed and Sales History
| 1 | 11/10/2017 | WD | Warranty Deed | DEDONKER, MICHAEL R | LOWE, TRENT C | | | $143,000.00 | 31909 | 4434119 |
| 2 | 03/31/2017 | WD | Warranty Deed | CRANE, WILTON L | DEDONKER, MICHAEL R | | | $109,000.00 | 28739 | 4420197 |
| 3 | 09/16/2003 | WD | Warranty Deed | ADAMS, ROBERT W | CRANE, WILTON L | | | $64,000.00 | 34176 | 4075605 |
| 4 | 03/01/1970 | TRUSTEED | Trustee's Deed | SKAAR, ARDEN M | ADAMS, ROBERT W | | | $5,150.00 | 38412 | 0 |
| 5 | 01/01/1900 | OTHER | Other - Misc. Documents | Unknown | SKAAR, ARDEN M | | | $0.00 | 0 | 0 |
Payout Agreement
| No payout information available.. |