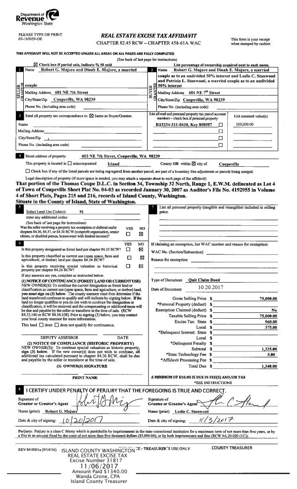
Property
Account |
| Property ID: | 83929 | Abbreviated Legal Description: | 96 - IN GL3: BG INTER NLN CAMP COMFORT & CLN HANSEN ST S89*W274.80' N3*W126.03' TPB N77*W89' N12*E40' S77*E TP N3*W FR TPB S3*E41.5' M/L TPB (S/2 TR H UNREC INDIAN BCH) |
| Geographic ID: | R23123-369-1170 | Agent Code: | |
| Type: | Real | | |
| Tax Area: | 519 - APPRAISER-Stan/Cam Schl Dist, vacant & 50 acres or less | Land Use Code | 91 |
| Open Space: | N | DFL | N |
| Historic Property: | N | Remodel Property: | N |
| Multi-Family Redevelopment: | N | | |
| Township: | 31 | Section: | 23 |
| Range: | R2 |
Location |
| Address: | 1325 SANDPIPER LOOP CAMANO ISLAND, WA 98282 | Mapsco: | |
| Neighborhood: | Cycle 5 | Map ID: | 502 |
| Neighborhood CD: | 5 |
Owner |
| Name: | PETERSON, PETER E | Owner ID: | 278281 |
| Mailing Address: | PETER G PETERSON PO BOX 2261 ISSAQUAH, WA 98027 | % Ownership: | 100.0000000000% |
| | | Exemptions: | |
Taxes and Assessment Details
Values
| (+) Improvement Homesite Value: | + | $0 | |
| (+) Improvement Non-Homesite Value: | + | $0 | |
| (+) Land Homesite Value: | + | $0 | |
| (+) Land Non-Homesite Value: | + | $160,000 | |
| (+) Curr Use (HS): | + | $0 | $0 |
| (+) Curr Use (NHS): | + | $0 | $0 |
| | | -------------------------- | |
| (=) Market Value: | = | $160,000 | |
| (–) Productivity Loss: | – | $0 | |
| | | -------------------------- | |
| (=) Subtotal: | = | $160,000 | |
| (+) Senior Appraised Value: | + | $0 | |
| (+) Non-Senior Appraised Value: | + | $160,000 | |
| | | -------------------------- | |
| (=) Total Appraised Value: | = | $160,000 | |
| (–) Senior Exemption Loss: | – | $0 | |
| (–) Exemption Loss: | – | $0 | |
| | | -------------------------- | |
| (=) Taxable Value: | = | $160,000 | |
Taxing Jurisdiction
| Owner: | PETERSON, PETER E | | |
| % Ownership: | 100.0000000000% | | |
| Total Value: | $160,000 | | |
| Tax Area: | 519 - APPRAISER-Stan/Cam Schl Dist, vacant & 50 acres or less |
| CF | Conservation Futures | 0.0316035091 | $160,000 | $160,000 | $5.06 | | |
| EMS1 | Fire & Rescue Dist #1 Camano GEN (EMS) | 0.3677864386 | $160,000 | $160,000 | $58.85 | | |
| CE | County Current Expense | 0.3708482477 | $160,000 | $160,000 | $59.34 | | |
| CR | County Roads | 0.4584763726 | $160,000 | $160,000 | $73.36 | | |
| LCIB | Library Sno-Isle BOND (Camano Island) | 0.0396325772 | $160,000 | $160,000 | $6.34 | | |
| LIB | Library Sno-Isle GEN | 0.3153421757 | $160,000 | $160,000 | $50.45 | | |
| SCH205_401 | School 205-401 Enrichment | 1.2698420524 | $160,000 | $160,000 | $203.17 | | |
| SCH205BOND | School 205-401 BOND | 0.9396497583 | $160,000 | $160,000 | $150.34 | | |
| ST | State School | 1.3035497053 | $160,000 | $160,000 | $208.57 | | |
| ST2 | State School Part 2 | 0.8169543533 | $160,000 | $160,000 | $130.71 | | |
| | Total Tax Rate: | 5.9136851902 | | | | | |
| | | | | Taxes w/Current Exemptions: | $946.19 | | |
| | | | | Taxes w/o Exemptions: | $946.19 | | |
Improvement / Building
Sketch
| No sketches available for this property. |
Property Image
Land
| 1 | 12 | SQ (00000-06000) | 0.0800 | 3484.80 | 0.00 | 0.00 | 1.00 | $160,000 | $0 |
Roll Value History
| 2026 | N/A | N/A | N/A | N/A | N/A |
| 2025 | $0 | $160,000 | $0 | $160,000 | $160,000 |
| 2024 | $0 | $160,000 | $0 | $160,000 | $160,000 |
| 2023 | $0 | $140,000 | $0 | $140,000 | $140,000 |
| 2022 | $0 | $140,000 | $0 | $140,000 | $140,000 |
| 2021 | $0 | $120,000 | $0 | $120,000 | $120,000 |
| 2020 | $0 | $110,000 | $0 | $110,000 | $110,000 |
| 2019 | $0 | $110,000 | $0 | $110,000 | $110,000 |
| 2018 | $0 | $90,000 | $0 | $90,000 | $90,000 |
| 2017 | $0 | $80,000 | $0 | $80,000 | $80,000 |
| 2016 | $0 | $80,000 | $0 | $80,000 | $80,000 |
| 2015 | $0 | $50,000 | $0 | $50,000 | $50,000 |
| 2014 | $0 | $50,000 | $0 | $50,000 | $50,000 |
| 2013 | $0 | $41,850 | $0 | $41,850 | $41,850 |
| 2012 | $0 | $41,850 | $0 | $41,850 | $41,850 |
| 2011 | $0 | $41,850 | $0 | $41,850 | $41,850 |
| 2010 | $0 | $41,850 | $0 | $41,850 | $41,850 |
| 2009 | $0 | $45,000 | $0 | $45,000 | $45,000 |
| 2008 | $0 | $63,000 | $0 | $63,000 | $63,000 |
| 2007 | $0 | $63,000 | $0 | $63,000 | $63,000 |
Deed and Sales History
| 1 | 12/22/2016 | PRD | Personal Representatives Deed | PETERSON, PETER E | PETERSON, PETER E | | | $0.00 | 27787 | 4415469 |
| 2 | 04/26/2004 | WD | Warranty Deed | PETERSON, PETER E | PETERSON, PETER E | | | $35,000.00 | 41779 | 4099149 |
| 3 | 02/01/1993 | QCD | Quit Claim Deed | PETERSON, NELS E | PETERSON, PETER E | | | $0.00 | 30577 | 93003085 |
Payout Agreement
| No payout information available.. |