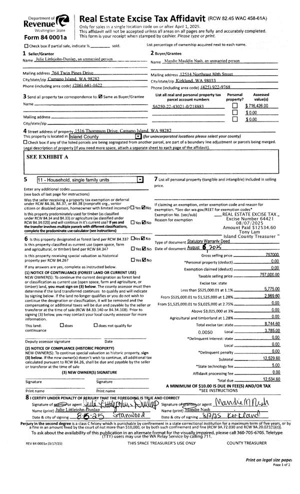
Property
Account |
| Property ID: | 8404 | Abbreviated Legal Description: | 17 - N/2 OF N660' OF GL4 EX RDS TGW EZ OVER N15' OF S/2 OF N660' TGW PT GL5 DESC: BG SECR GL5 S88*W ALG SLN 620.95' TPB S88*W200' N1*W50' N88*E200' S1*E50' TPB |
| Geographic ID: | R13112-248-3300 | Agent Code: | |
| Type: | Real | | |
| Tax Area: | 312 - APPRAISER-Cpvl Schl Dist, outside Cpvl, improved, greater than 1 acre | Land Use Code | 11 |
| Open Space: | N | DFL | N |
| Historic Property: | N | Remodel Property: | N |
| Multi-Family Redevelopment: | N | | |
| Township: | 31 | Section: | 12 |
| Range: | R1 |
Location |
| Address: | 17872 SR20 COUPEVILLE, WA 98239 | Mapsco: | |
| Neighborhood: | Cycle 2 | Map ID: | 55 |
| Neighborhood CD: | 2 |
Owner |
| Name: | BURROUS LE, LOIS J | Owner ID: | 187864 |
| Mailing Address: | SCOTT BURROUS 17872 STATE ROUTE 20 COUPEVILLE, WA 98239-4039 | % Ownership: | 100.0000000000% |
| | | Exemptions: | SNR/DSBL |
Taxes and Assessment Details
Values
| (+) Improvement Homesite Value: | + | $37,756 | |
| (+) Improvement Non-Homesite Value: | + | $0 | |
| (+) Land Homesite Value: | + | $279,329 | |
| (+) Land Non-Homesite Value: | + | $75,939 | |
| (+) Curr Use (HS): | + | $0 | $0 |
| (+) Curr Use (NHS): | + | $0 | $0 |
| | | -------------------------- | |
| (=) Market Value: | = | $393,024 | |
| (–) Productivity Loss: | – | $0 | |
| | | -------------------------- | |
| (=) Subtotal: | = | $393,024 | |
| (+) Senior Appraised Value: | + | $143,879 | |
| (+) Non-Senior Appraised Value: | + | $75,939 | |
| | | -------------------------- | |
| (=) Total Appraised Value: | = | $219,818 | |
| (–) Senior Exemption Loss: | – | $86,327 | |
| (–) Exemption Loss: | – | $0 | |
| | | -------------------------- | |
| (=) Taxable Value: | = | $133,491 | |
Taxing Jurisdiction
| Owner: | BURROUS LE, LOIS J | | |
| % Ownership: | 100.0000000000% | | |
| Total Value: | $393,024 | | |
| Tax Area: | 312 - APPRAISER-Cpvl Schl Dist, outside Cpvl, improved, greater than 1 acre |
| CF | Conservation Futures | 0.0316035091 | $393,024 | $133,491 | $4.22 | | |
| CEM2 | Cemetery #2 | 0.0095056933 | $393,024 | $133,491 | $1.27 | | |
| FIRE5 | Fire & Rescue Dist #5 C Whidbey GEN | 1.2008080668 | $393,024 | $133,491 | $160.30 | | |
| FIRE5BOND | Fire & Rescue Dist #5 C Whidbey BOND | 0.0000000000 | $393,024 | $75,939 | $10.63 | | |
| HOBOND | Hospital BOND | 0.0000000000 | $393,024 | $75,939 | $14.51 | | |
| HOGEN | Hospital GEN | 0.3902502903 | $393,024 | $133,491 | $52.09 | | |
| CE | County Current Expense | 0.3708482477 | $393,024 | $133,491 | $49.50 | | |
| CR | County Roads | 0.4584763726 | $393,024 | $133,491 | $61.20 | | |
| ISLANDEMS | Hospital GEN (EMS) | 0.5000000000 | $393,024 | $133,491 | $66.75 | | |
| LIB | Library Sno-Isle GEN | 0.3153421757 | $393,024 | $133,491 | $42.10 | | |
| LIBCAP | Library Sno-Isle BOND (Cap Fac Imp Area) | 0.0000000000 | $393,024 | $75,939 | $4.13 | | |
| POCOUP | Port of Coupeville GEN | 0.1093371703 | $393,024 | $133,491 | $14.60 | | |
| POCOUPIDD | Port of Coupeville IDD | 0.3409740022 | $393,024 | $133,491 | $45.52 | | |
| COUPSDTECH | School 204 CP (TECH) | 0.0000000000 | $393,024 | $75,939 | $57.30 | | |
| SCH204MO | School 204 Enrichment | 0.0000000000 | $393,024 | $75,939 | $51.00 | | |
| ST | State School | 1.3035497053 | $393,024 | $133,491 | $174.01 | | |
| ST2 | State School Part 2 | 0.0000000000 | $393,024 | $75,939 | $62.04 | | |
| | Total Tax Rate: | 5.0306952333 | | | | | |
| | | | | Taxes w/Current Exemptions: | $871.17 | | |
| | | | | Taxes w/o Exemptions: | $3,010.28 | | |
Improvement / Building
| Improvement #1: | MANUFACTURED HOME | State Code: | Y | 840.0 sqft | Value: | $37,756 |
| Bathrooms: | 0 | Bedrooms: | 0 | | Ceiling: | PLASTER PAINTED | Cooling: | EVAP NO DUCT | | Exterior Wall/Cover: | VINYL | Floor Covering: | CARPET 100% | | Floor Structure: | SLAB ON GRADE | Foundation: | SLAB | | Heating: | FHA ELECTRIC | Interior Finish: | PLASTER | | Plumbing Fixture Cnt: | 1 | Roof Slope: | FLAT | | Roof Structure/Cover: | CJ ALUMINIUM HEAVY |   |   |
|
| | Type | Description | Class CD | Sub Class CD | Year Built | Area |
| | BAS | BASE/MAIN FLOOR | 3 | 0 | 1982 | 840.0 |
| | UTY | STORAGE/UTILITY | 3 | 0 | 1982 | 1860.0 |
| | UTY | STORAGE/UTILITY | 3 | 0 | 1982 | 1054.4 |
Sketch
Property Image
Land
| 1 | 91 | UNDEVELOPED LAND-METES AND BOUNDS | 9.1200 | 397267.20 | 0.00 | 0.00 | 1.00 | $135,268 | $0 |
| 2 | HS | HOMESITE | 1.0000 | 43560.00 | 0.00 | 0.00 | 1.00 | $220,000 | $0 |
Roll Value History
| 2026 | N/A | N/A | N/A | N/A | N/A |
| 2025 | $37,756 | $355,268 | $0 | $393,024 | $133,491 |
| 2024 | $38,116 | $310,000 | $0 | $348,116 | $214,381 |
| 2023 | $38,834 | $290,000 | $0 | $328,834 | $204,263 |
| 2022 | $38,242 | $260,000 | $0 | $298,242 | $189,086 |
| 2021 | $37,620 | $225,000 | $0 | $262,620 | $171,379 |
| 2020 | $37,647 | $215,000 | $0 | $252,647 | $166,320 |
| 2019 | $36,272 | $250,000 | $0 | $286,272 | $286,272 |
| 2018 | $31,589 | $220,000 | $0 | $251,589 | $220,000 |
| 2017 | $31,637 | $200,000 | $0 | $231,637 | $200,000 |
| 2016 | $31,731 | $140,000 | $0 | $171,731 | $140,000 |
| 2015 | $31,826 | $136,620 | $0 | $168,446 | $85,210 |
| 2014 | $31,921 | $136,620 | $0 | $168,541 | $95,210 |
| 2013 | $32,015 | $136,620 | $0 | $168,635 | $95,210 |
| 2012 | $32,110 | $136,620 | $0 | $168,730 | $95,210 |
| 2011 | $32,204 | $151,800 | $0 | $184,004 | $102,890 |
| 2010 | $32,453 | $151,800 | $0 | $184,253 | $102,890 |
| 2009 | $144,042 | $222,640 | $110,000 | $144,042 | $26,089 |
| 2008 | $110,304 | $151,800 | $75,000 | $110,304 | $26,089 |
| 2007 | $111,605 | $151,800 | $75,000 | $111,605 | $26,089 |
Deed and Sales History
| 1 | 03/08/2005 | BLA | DNU - Boundary Line Adjustment | BURROUS LE, LOIS J | BURROUS LE, LOIS J | | | $0.00 | 70496 | 4095465 |
| 2 | 03/29/2004 | QCD | Quit Claim Deed | BURROUS LE, LOIS J | BURROUS LE, LOIS J | | | $649.00 | 41332 | 4096318 |
| 3 | 05/10/2002 | QCD | Quit Claim Deed | BURROUS, LOIS J | BURROUS LE, LOIS J | | | $0.00 | 21862 | 4020240 |
| 4 | 04/25/2002 | 5 | DNU - Marriage License/Name Change | BURROUS, WILLIAM H | BURROUS, LOIS J | | | $0.00 | 69403 | 20041589 |
| 5 | 07/01/1984 | OTHER | Other - Misc. Documents | Unknown | BURROUS, WILLIAM H | | | $17,400.00 | 42085 | 0 |
Payout Agreement
| No payout information available.. |