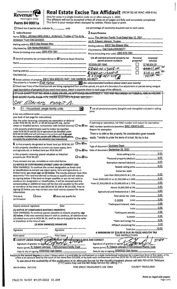
Property
Account |
| Property ID: | 84125 | Abbreviated Legal Description: | 53 - IN GL3: BG PT 1269'W OF NECR GL3 S9*E467' S89*W 247.52' N3*W300' TPB N3*W58 .85' N89*E63.4' TO CTRLN RD S26*E65' TP N89*E OF TPB S89*W89.4' TPB EX E15' |
| Geographic ID: | R23123-387-1250 | Agent Code: | |
| Type: | Real | | |
| Tax Area: | 510 - APPRAISER-Stan/Cam Schl Dist, improved & 1 acre or less | Land Use Code | 11 |
| Open Space: | N | DFL | N |
| Historic Property: | N | Remodel Property: | N |
| Multi-Family Redevelopment: | N | | |
| Township: | 31 | Section: | 23 |
| Range: | R2 |
Location |
| Address: | 771 INDIAN BEACH RD CAMANO ISLAND, WA 98282 | Mapsco: | |
| Neighborhood: | Cycle 5 | Map ID: | 502 |
| Neighborhood CD: | 5 |
Owner |
| Name: | JONES, CHERI J | Owner ID: | 313297 |
| Mailing Address: | RICK E JONES ANNE S JONES 205 N BRIDGETON, SLIP 7 PORTLAND, OR 97217 | % Ownership: | 100.0000000000% |
| | | Exemptions: | |
Taxes and Assessment Details
Values
| (+) Improvement Homesite Value: | + | $0 | |
| (+) Improvement Non-Homesite Value: | + | $191,632 | |
| (+) Land Homesite Value: | + | $0 | |
| (+) Land Non-Homesite Value: | + | $260,000 | |
| (+) Curr Use (HS): | + | $0 | $0 |
| (+) Curr Use (NHS): | + | $0 | $0 |
| | | -------------------------- | |
| (=) Market Value: | = | $451,632 | |
| (–) Productivity Loss: | – | $0 | |
| | | -------------------------- | |
| (=) Subtotal: | = | $451,632 | |
| (+) Senior Appraised Value: | + | $0 | |
| (+) Non-Senior Appraised Value: | + | $451,632 | |
| | | -------------------------- | |
| (=) Total Appraised Value: | = | $451,632 | |
| (–) Senior Exemption Loss: | – | $0 | |
| (–) Exemption Loss: | – | $0 | |
| | | -------------------------- | |
| (=) Taxable Value: | = | $451,632 | |
Taxing Jurisdiction
| Owner: | JONES, CHERI J | | |
| % Ownership: | 100.0000000000% | | |
| Total Value: | $451,632 | | |
| Tax Area: | 510 - APPRAISER-Stan/Cam Schl Dist, improved & 1 acre or less |
| CF | Conservation Futures | 0.0316035091 | $451,632 | $451,632 | $14.27 | | |
| EMS1 | Fire & Rescue Dist #1 Camano GEN (EMS) | 0.3677864386 | $451,632 | $451,632 | $166.10 | | |
| FIRE1 | Fire & Rescue Dist #1 Camano GEN | 1.2502910536 | $451,632 | $451,632 | $564.67 | | |
| FIRE1BOND | Fire & Rescue Dist #1 Camano BOND | 0.1570001679 | $451,632 | $451,632 | $70.91 | | |
| CE | County Current Expense | 0.3708482477 | $451,632 | $451,632 | $167.49 | | |
| CR | County Roads | 0.4584763726 | $451,632 | $451,632 | $207.06 | | |
| LCIB | Library Sno-Isle BOND (Camano Island) | 0.0396325772 | $451,632 | $451,632 | $17.90 | | |
| LIB | Library Sno-Isle GEN | 0.3153421757 | $451,632 | $451,632 | $142.42 | | |
| SCH205_401 | School 205-401 Enrichment | 1.2698420524 | $451,632 | $451,632 | $573.50 | | |
| SCH205BOND | School 205-401 BOND | 0.9396497583 | $451,632 | $451,632 | $424.38 | | |
| ST | State School | 1.3035497053 | $451,632 | $451,632 | $588.72 | | |
| ST2 | State School Part 2 | 0.8169543533 | $451,632 | $451,632 | $368.96 | | |
| | Total Tax Rate: | 7.3209764117 | | | | | |
| | | | | Taxes w/Current Exemptions: | $3,306.38 | | |
| | | | | Taxes w/o Exemptions: | $3,306.38 | | |
Improvement / Building
| Improvement #1: | RESIDENTIAL | State Code: | Y | 1188.0 sqft | Value: | $191,632 |
| Bathrooms: | 1 | Bedrooms: | 2 | | Ceiling: | DRYWALL PAINTED | Exterior Wall/Cover: | SHINGLE | | Floor Covering: | VINYL 100% | Floor Structure: | WOOD W/SUBFLOOR | | Foundation: | CONCRETE | Heating: | BASEBOARD ELECTRIC | | Interior Finish: | DRYWALL PAINT | Plumbing Fixture Cnt: | 7 | | Roof Slope: | 8" IN 12" | Roof Structure/Cover: | CJ ASPHALT |
|
| | Type | Description | Class CD | Sub Class CD | Year Built | Area |
| | BAS | BASE/MAIN FLOOR | 3 | 0 | 1950 | 1188.0 |
| | OWP | OPEN WOOD PORCH W/STEPS | 3 | 0 | 1950 | 493.0 |
| | UB6 | BASEMENT UNFINISHED 6" | 3 | 0 | 1950 | 948.0 |
| | ATF | ATTIC FINISHED | 3 | 0 | 1950 | 420.0 |
| | BIG | BUILT IN GARAGE | 3 | 0 | 1950 | 240.0 |
Sketch
Property Image
Land
| 1 | 12 | SQ (00000-06000) | 0.0000 | 0.00 | 0.00 | 0.00 | 1.00 | $260,000 | $0 |
Roll Value History
| 2026 | N/A | N/A | N/A | N/A | N/A |
| 2025 | $191,632 | $260,000 | $0 | $451,632 | $451,632 |
| 2024 | $198,602 | $260,000 | $0 | $458,602 | $458,602 |
| 2023 | $201,694 | $250,000 | $0 | $451,694 | $451,694 |
| 2022 | $185,443 | $240,000 | $0 | $425,443 | $425,443 |
| 2021 | $143,204 | $160,000 | $0 | $303,204 | $303,204 |
| 2020 | $140,410 | $150,000 | $0 | $290,410 | $290,410 |
| 2019 | $101,210 | $180,000 | $0 | $281,210 | $281,210 |
| 2018 | $101,623 | $150,000 | $0 | $251,623 | $251,623 |
| 2017 | $93,085 | $130,000 | $0 | $223,085 | $223,085 |
| 2016 | $94,585 | $110,000 | $0 | $204,585 | $204,585 |
| 2015 | $41,541 | $85,000 | $0 | $126,541 | $126,541 |
| 2014 | $42,634 | $85,000 | $0 | $127,634 | $127,634 |
| 2013 | $43,727 | $86,400 | $0 | $130,127 | $130,127 |
| 2012 | $44,821 | $86,400 | $0 | $131,221 | $131,221 |
| 2011 | $45,914 | $108,000 | $0 | $153,914 | $153,914 |
| 2010 | $59,586 | $108,000 | $0 | $167,586 | $167,586 |
| 2009 | $77,324 | $125,000 | $0 | $202,324 | $202,324 |
| 2008 | $77,324 | $152,250 | $0 | $229,574 | $229,574 |
| 2007 | $78,793 | $152,250 | $0 | $231,043 | $231,043 |
Deed and Sales History
| 1 | 06/21/2012 | QCD | Quit Claim Deed | CLINK, DAVID E | CLINK TRUSTEE, DAVID E | | | $0.00 | 60909 | 4575721 |
| 2 | 07/25/2024 | QCD | Quit Claim Deed | JONES, SCOTT | JONES, ANNE S | | | $0.00 | 60759 | 4575103 |
| 3 | 07/25/2024 | QCD | Quit Claim Deed | JONES TTEE, CHERI J | JONES, CHERI J | | | $0.00 | 60758 | 4575102 |
| 4 | 07/26/2024 | QCD | Quit Claim Deed | VAN VALKENBURG, CRAIG J | JONES TTEE, CHERI J | | | $301,129.00 | 60755 | 4575095 |
| 5 | 05/10/2016 | TRUSTEED | Trustee's Deed | VAN VALKENBURG 33.33% INT, CRAIG J | VAN VALKENBURG, CRAIG J | | | $0.00 | 24329 | 4399403 |
| 6 | 06/21/2012 | TRUSTEED | Trustee's Deed | CLINK, DAVID E | CLINK TRUSTEE, DAVID E | | | $0.00 | 8427 | 4320425 |
| 7 | 03/09/2009 | QCD | Quit Claim Deed | VAN VALKENBURG ET AL, CRAIG J | VAN VALKENBURG, CRAIG | | | $44,758.00 | 90522 | 4246170 |
| 8 | 10/02/2006 | TRUSTEED | Trustee's Deed | VAN VALKENBURG, CRAIG J | VAN VALKENBURG ET AL, CRAIG J | | | $0.00 | 72732 | 4209250 |
| 9 | 05/12/1999 | QCD | Quit Claim Deed | VAN, VALKENBURG, J | VAN VALKENBURG, CRAIG J | | | $0.00 | 92564 | 99015427 |
| 10 | 06/01/1993 | QCD | Quit Claim Deed | WHITE, JANET A | VAN, VALKENBURG, J | | | $0.00 | 32170 | 93011194 |
| 11 | 01/01/1989 | QCD | Quit Claim Deed | WHITE, JANET A | WHITE, JANET A | | | $0.00 | 90403 | 89001369 |
| 12 | 04/01/1981 | CD | DNU - Correction Deed | WHITE, JANET A | WHITE, JANET A | | | $1.00 | 11224 | 382160 |
| 13 | 12/01/1976 | CD | DNU - Correction Deed | WHITE, JANET A | WHITE, JANET A | | | $0.00 | 64333 | 0 |
| 14 | 01/01/1900 | OTHER | Other - Misc. Documents | Unknown | WHITE, JANET A | | | $0.00 | 0 | 0 |
Payout Agreement
| No payout information available.. |