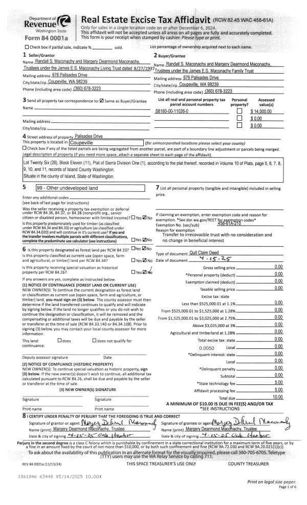
Property
Account |
| Property ID: | 8431 | Abbreviated Legal Description: | 31 - TR 9 V4 SUR P21 AF#302929 |
| Geographic ID: | R13112-352-5110 | Agent Code: | |
| Type: | Real | | |
| Tax Area: | 312 - APPRAISER-Cpvl Schl Dist, outside Cpvl, improved, greater than 1 acre | Land Use Code | 11 |
| Open Space: | N | DFL | N |
| Historic Property: | N | Remodel Property: | N |
| Multi-Family Redevelopment: | N | | |
| Township: | 31 | Section: | 12 |
| Range: | R1 |
Location |
| Address: | 20 W WELCHER RD COUPEVILLE, WA 98239 | Mapsco: | |
| Neighborhood: | Cycle 2 | Map ID: | 57 |
| Neighborhood CD: | 2 |
Owner |
| Name: | ENGLE, ROBERT W | Owner ID: | 280669 |
| Mailing Address: | MARY K ENGLE 20 W WELCHER RD COUPEVILLE, WA 98239 | % Ownership: | 100.0000000000% |
| | | Exemptions: | |
Taxes and Assessment Details
Values
| (+) Improvement Homesite Value: | + | $0 | |
| (+) Improvement Non-Homesite Value: | + | $550,340 | |
| (+) Land Homesite Value: | + | $0 | |
| (+) Land Non-Homesite Value: | + | $340,524 | |
| (+) Curr Use (HS): | + | $0 | $0 |
| (+) Curr Use (NHS): | + | $0 | $0 |
| | | -------------------------- | |
| (=) Market Value: | = | $890,864 | |
| (–) Productivity Loss: | – | $0 | |
| | | -------------------------- | |
| (=) Subtotal: | = | $890,864 | |
| (+) Senior Appraised Value: | + | $0 | |
| (+) Non-Senior Appraised Value: | + | $890,864 | |
| | | -------------------------- | |
| (=) Total Appraised Value: | = | $890,864 | |
| (–) Senior Exemption Loss: | – | $0 | |
| (–) Exemption Loss: | – | $0 | |
| | | -------------------------- | |
| (=) Taxable Value: | = | $890,864 | |
Taxing Jurisdiction
| Owner: | ENGLE, ROBERT W | | |
| % Ownership: | 100.0000000000% | | |
| Total Value: | $890,864 | | |
| Tax Area: | 312 - APPRAISER-Cpvl Schl Dist, outside Cpvl, improved, greater than 1 acre |
| CF | Conservation Futures | 0.0316035091 | $890,864 | $890,864 | $28.15 | | |
| CEM2 | Cemetery #2 | 0.0095056933 | $890,864 | $890,864 | $8.47 | | |
| FIRE5 | Fire & Rescue Dist #5 C Whidbey GEN | 1.2008080668 | $890,864 | $890,864 | $1,069.76 | | |
| FIRE5BOND | Fire & Rescue Dist #5 C Whidbey BOND | 0.1400090713 | $890,864 | $890,864 | $124.73 | | |
| HOBOND | Hospital BOND | 0.1910887512 | $890,864 | $890,864 | $170.23 | | |
| HOGEN | Hospital GEN | 0.3902502903 | $890,864 | $890,864 | $347.66 | | |
| CE | County Current Expense | 0.3708482477 | $890,864 | $890,864 | $330.38 | | |
| CR | County Roads | 0.4584763726 | $890,864 | $890,864 | $408.44 | | |
| ISLANDEMS | Hospital GEN (EMS) | 0.5000000000 | $890,864 | $890,864 | $445.43 | | |
| LIB | Library Sno-Isle GEN | 0.3153421757 | $890,864 | $890,864 | $280.93 | | |
| LIBCAP | Library Sno-Isle BOND (Cap Fac Imp Area) | 0.0543427938 | $890,864 | $890,864 | $48.41 | | |
| POCOUP | Port of Coupeville GEN | 0.1093371703 | $890,864 | $890,864 | $97.40 | | |
| POCOUPIDD | Port of Coupeville IDD | 0.3409740022 | $890,864 | $890,864 | $303.76 | | |
| COUPSDTECH | School 204 CP (TECH) | 0.7545480007 | $890,864 | $890,864 | $672.20 | | |
| SCH204MO | School 204 Enrichment | 0.6716186034 | $890,864 | $890,864 | $598.32 | | |
| ST | State School | 1.3035497053 | $890,864 | $890,864 | $1,161.29 | | |
| ST2 | State School Part 2 | 0.8169543533 | $890,864 | $890,864 | $727.80 | | |
| | Total Tax Rate: | 7.6592568070 | | | | | |
| | | | | Taxes w/Current Exemptions: | $6,823.36 | | |
| | | | | Taxes w/o Exemptions: | $6,823.36 | | |
Improvement / Building
| Improvement #1: | RESIDENTIAL | State Code: | Y | 2651.5 sqft | Value: | $550,340 |
| Bathrooms: | 2.5 | Bedrooms: | 3 | | Ceiling: | DRYWALL PAINTED | Exterior Wall/Cover: | CEMENT FIBER | | Floor Covering: | VINYL 100% | Floor Structure: | WOOD W/SUBFLOOR | | Foundation: | CONCRETE | Heating: | FHA GAS | | Interior Finish: | DRYWALL PAINT | Plumbing Fixture Cnt: | 14 | | Roof Slope: | 5" IN 12" | Roof Structure/Cover: | CJ ASPHALT |
|
| | Type | Description | Class CD | Sub Class CD | Year Built | Area |
| | BAS | BASE/MAIN FLOOR | 4 | 0 | 2005 | 1606.5 |
| | OP1 | OPEN PORCH SLAB | 4 | 0 | 2005 | 688.0 |
| | AGR | ATTACHED GARAGE | 4 | 0 | 2005 | 617.0 |
| | UPS | UPPER STORY | 4 | 0 | 2005 | 1045.0 |
| | OWR | OPEN WOOD PORCH W/STEPS/ROOF | 4 | 0 | 2005 | 334.5 |
| | UTY | STORAGE/UTILITY | 4 | 0 | 2005 | 1080.0 |
| | CPD | OPEN CARPORT DIRT FLOOR | 4 | 0 | 2005 | 360.0 |
Sketch
| No sketches available for this property. |
Property Image
Land
| 1 | HS | HOMESITE | 1.0000 | 43560.00 | 0.00 | 0.00 | 1.00 | $220,000 | $0 |
| 2 | 91 | UNDEVELOPED LAND-METES AND BOUNDS | 4.1200 | 179467.20 | 0.00 | 0.00 | 1.00 | $120,524 | $0 |
Roll Value History
| 2026 | N/A | N/A | N/A | N/A | N/A |
| 2025 | $550,340 | $340,524 | $0 | $890,864 | $890,864 |
| 2024 | $545,960 | $290,000 | $0 | $835,960 | $835,960 |
| 2023 | $552,599 | $280,000 | $0 | $832,599 | $832,599 |
| 2022 | $506,397 | $250,000 | $0 | $756,397 | $756,397 |
| 2021 | $445,567 | $170,000 | $0 | $615,567 | $615,567 |
| 2020 | $434,286 | $160,000 | $0 | $594,286 | $594,286 |
| 2019 | $326,875 | $230,000 | $0 | $556,875 | $556,875 |
| 2018 | $318,396 | $200,000 | $0 | $518,396 | $518,396 |
| 2017 | $320,066 | $200,000 | $0 | $520,066 | $520,066 |
| 2016 | $323,468 | $140,000 | $0 | $463,468 | $463,468 |
| 2015 | $326,871 | $124,416 | $0 | $451,287 | $451,287 |
| 2014 | $330,274 | $124,416 | $0 | $454,690 | $454,690 |
| 2013 | $333,676 | $124,416 | $0 | $458,092 | $458,092 |
| 2012 | $338,166 | $124,416 | $0 | $462,582 | $462,582 |
| 2011 | $341,580 | $138,240 | $0 | $479,820 | $479,820 |
| 2010 | $351,572 | $138,240 | $0 | $489,812 | $489,812 |
| 2009 | $362,603 | $153,600 | $0 | $516,203 | $516,203 |
| 2008 | $366,967 | $171,520 | $0 | $538,487 | $538,487 |
| 2007 | $371,043 | $153,600 | $0 | $524,643 | $524,643 |
Deed and Sales History
| 1 | 06/26/2017 | WD | Warranty Deed | FORD, BRYAN B | ENGLE, ROBERT W | | | $518,000.00 | 30014 | 4425398 |
| 2 | 01/21/2015 | WD | Warranty Deed | HUFF, DAVID K & KAREN A | FORD, BRYAN B | | | $415,000.00 | 18297 | 4372155 |
| 3 | 03/01/1997 | QCD | Quit Claim Deed | HUFF, DAVID K | HUFF, DAVID K | | | $40,000.00 | 70668 | 97003016 |
| 4 | 11/01/1993 | OTHER | Other - Misc. Documents | HUFF, DAVID K & KAREN A | HUFF, DAVID K | | | $42,500.00 | 11111111 | 0 |
| 5 | 10/22/1989 | WD | Warranty Deed | HUFF, RONALD K | HUFF, DAVID K & KAREN A | | | $0.00 | 81376 | 98007619 |
| 6 | 10/01/1989 | WD | Warranty Deed | MILLER, JOHN H | HUFF, RONALD K | | | $16,653.00 | 95055 | 89016321 |
| 7 | 09/01/1985 | DECREE | Divorce Decree/Legal Separation | MILLER, JOHN H | MILLER, JOHN H | | | $0.00 | 62291 | 86010496 |
| 8 | 10/01/1976 | EXECUTORD | Executor Deed | FARMER, CHARLES W | MILLER, JOHN H | | | $0.00 | 63656 | 321212 |
| 9 | 01/01/1900 | OTHER | Other - Misc. Documents | Unknown | FARMER, CHARLES W | | | $0.00 | 0 | 0 |
Payout Agreement
| No payout information available.. |