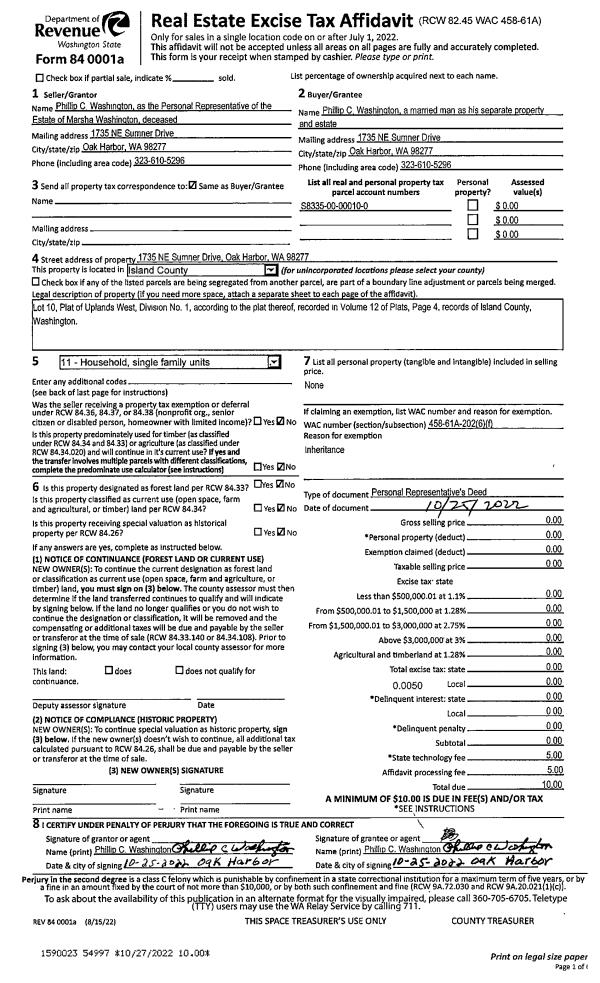
Property
Account |
| Property ID: | 84713 | Abbreviated Legal Description: | 31 - W525' OF S220' OF N440 OF NW SW SUB EZ |
| Geographic ID: | R23124-234-0300 | Agent Code: | |
| Type: | Real | | |
| Tax Area: | 512 - APPRAISER-Stan/Cam Schl Dist, improved, greater than 1 acre | Land Use Code | 11 |
| Open Space: | N | DFL | N |
| Historic Property: | N | Remodel Property: | N |
| Multi-Family Redevelopment: | N | | |
| Township: | 31 | Section: | 24 |
| Range: | R2 |
Location |
| Address: | | Mapsco: | |
| Neighborhood: | Cycle 5 | Map ID: | 504 |
| Neighborhood CD: | 5 |
Owner |
| Name: | GRIFFITH, DALE J | Owner ID: | 58412 |
| Mailing Address: | EARLENE J GRIFFITH 1422 MIDCREST RD CAMANO ISLAND, WA 98282 | % Ownership: | 100.0000000000% |
| | | Exemptions: | |
Taxes and Assessment Details
Values
| (+) Improvement Homesite Value: | + | $0 | |
| (+) Improvement Non-Homesite Value: | + | $290,202 | |
| (+) Land Homesite Value: | + | $0 | |
| (+) Land Non-Homesite Value: | + | $300,000 | |
| (+) Curr Use (HS): | + | $0 | $0 |
| (+) Curr Use (NHS): | + | $0 | $0 |
| | | -------------------------- | |
| (=) Market Value: | = | $590,202 | |
| (–) Productivity Loss: | – | $0 | |
| | | -------------------------- | |
| (=) Subtotal: | = | $590,202 | |
| (+) Senior Appraised Value: | + | $0 | |
| (+) Non-Senior Appraised Value: | + | $590,202 | |
| | | -------------------------- | |
| (=) Total Appraised Value: | = | $590,202 | |
| (–) Senior Exemption Loss: | – | $0 | |
| (–) Exemption Loss: | – | $0 | |
| | | -------------------------- | |
| (=) Taxable Value: | = | $590,202 | |
Taxing Jurisdiction
| Owner: | GRIFFITH, DALE J | | |
| % Ownership: | 100.0000000000% | | |
| Total Value: | $590,202 | | |
| Tax Area: | 512 - APPRAISER-Stan/Cam Schl Dist, improved, greater than 1 acre |
| CF | Conservation Futures | 0.0316035091 | $590,202 | $590,202 | $18.65 | | |
| EMS1 | Fire & Rescue Dist #1 Camano GEN (EMS) | 0.3677864386 | $590,202 | $590,202 | $217.07 | | |
| FIRE1 | Fire & Rescue Dist #1 Camano GEN | 1.2502910536 | $590,202 | $590,202 | $737.92 | | |
| FIRE1BOND | Fire & Rescue Dist #1 Camano BOND | 0.1570001679 | $590,202 | $590,202 | $92.66 | | |
| CE | County Current Expense | 0.3708482477 | $590,202 | $590,202 | $218.88 | | |
| CR | County Roads | 0.4584763726 | $590,202 | $590,202 | $270.59 | | |
| LCIB | Library Sno-Isle BOND (Camano Island) | 0.0396325772 | $590,202 | $590,202 | $23.39 | | |
| LIB | Library Sno-Isle GEN | 0.3153421757 | $590,202 | $590,202 | $186.12 | | |
| SCH205_401 | School 205-401 Enrichment | 1.2698420524 | $590,202 | $590,202 | $749.46 | | |
| SCH205BOND | School 205-401 BOND | 0.9396497583 | $590,202 | $590,202 | $554.58 | | |
| ST | State School | 1.3035497053 | $590,202 | $590,202 | $769.36 | | |
| ST2 | State School Part 2 | 0.8169543533 | $590,202 | $590,202 | $482.17 | | |
| | Total Tax Rate: | 7.3209764117 | | | | | |
| | | | | Taxes w/Current Exemptions: | $4,320.85 | | |
| | | | | Taxes w/o Exemptions: | $4,320.85 | | |
Improvement / Building
| Improvement #1: | RESIDENTIAL | State Code: | Y | 2045.4 sqft | Value: | $290,202 |
| Bathrooms: | 3 | Bedrooms: | 3 | | Ceiling: | DRYWALL PAINTED | Exterior Wall/Cover: | CEMENT FIBER | | Floor Covering: | VINYL TILE/CARP 20-80 | Floor Structure: | WOOD W/SUBFLOOR | | Foundation: | CONCRETE | Heating: | FHA GAS | | Interior Finish: | DRYWALL PAINT | Plumbing Fixture Cnt: | 12 | | Roof Slope: | 8" IN 12" | Roof Structure/Cover: | CJ ASPHALT |
|
| | Type | Description | Class CD | Sub Class CD | Year Built | Area |
| | BAS | BASE/MAIN FLOOR | 3 | 0 | 1998 | 811.2 |
| | BIG | BUILT IN GARAGE | 3 | 0 | 1998 | 600.0 |
| | UPS | UPPER STORY | 3 | 0 | 1998 | 400.0 |
| | UPS | UPPER STORY | 3 | 0 | 1998 | 834.2 |
| | OWP | OPEN WOOD PORCH W/STEPS | 3 | 0 | 1998 | 200.0 |
| | OWC | OPEN WOOD PORCH W/STEPS/ROOF/C | 3 | 0 | 1998 | 51.0 |
Sketch
Property Image
Land
| 1 | 18 | AC (02.01-03.00) | 2.6600 | 115869.60 | 0.00 | 0.00 | 1.00 | $300,000 | $0 |
Roll Value History
| 2026 | N/A | N/A | N/A | N/A | N/A |
| 2025 | $290,202 | $300,000 | $0 | $590,202 | $590,202 |
| 2024 | $294,059 | $280,000 | $0 | $574,059 | $574,059 |
| 2023 | $297,915 | $270,000 | $0 | $567,915 | $567,915 |
| 2022 | $273,261 | $260,000 | $0 | $533,261 | $533,261 |
| 2021 | $240,647 | $180,000 | $0 | $420,647 | $420,647 |
| 2020 | $234,661 | $150,000 | $0 | $384,661 | $384,661 |
| 2019 | $178,482 | $200,000 | $0 | $378,482 | $378,482 |
| 2018 | $179,029 | $150,000 | $0 | $329,029 | $329,029 |
| 2017 | $180,094 | $135,000 | $0 | $315,094 | $315,094 |
| 2016 | $182,291 | $100,000 | $0 | $282,291 | $282,291 |
| 2015 | $196,514 | $90,000 | $0 | $286,514 | $286,514 |
| 2014 | $198,892 | $83,200 | $0 | $282,092 | $282,092 |
| 2013 | $201,270 | $83,200 | $0 | $284,470 | $284,470 |
| 2012 | $203,648 | $83,200 | $0 | $286,848 | $286,848 |
| 2011 | $206,024 | $104,000 | $0 | $310,024 | $310,024 |
| 2010 | $211,162 | $104,000 | $0 | $315,162 | $315,162 |
| 2009 | $217,832 | $119,600 | $0 | $337,432 | $337,432 |
| 2008 | $220,290 | $130,000 | $0 | $350,290 | $350,290 |
| 2007 | $222,739 | $130,000 | $0 | $352,739 | $352,739 |
Deed and Sales History
| 1 | 09/17/2002 | WD | Warranty Deed | WELLS, CHARLES A | GRIFFITH, DALE J | | | $239,000.00 | 23766 | 4031889 |
| 2 | 04/01/1997 | WD | Warranty Deed | DONOVAN, GREGORY C | WELLS, CHARLES A | | | $28,000.00 | 71481 | 97006790 |
| 3 | 06/01/1990 | WD | Warranty Deed | DONOVAN, EDWARD J | DONOVAN, GREGORY C | | | $12,500.00 | 3949 | 90012851 |
| 4 | 05/01/1988 | QCD | Quit Claim Deed | TEEL, NANCY T | DONOVAN, EDWARD J | | | $0.00 | 81359 | 88005108 |
| 5 | 07/01/1980 | EZ | Easement | DONOVAN, EDWARD J | TEEL, NANCY T | | | $0.00 | 2243 | 370700 |
| 6 | 10/01/1978 | OTHER | Other - Misc. Documents | Unknown | DONOVAN, EDWARD J | | | $0.00 | 85303 | 342082 |
Payout Agreement
| No payout information available.. |