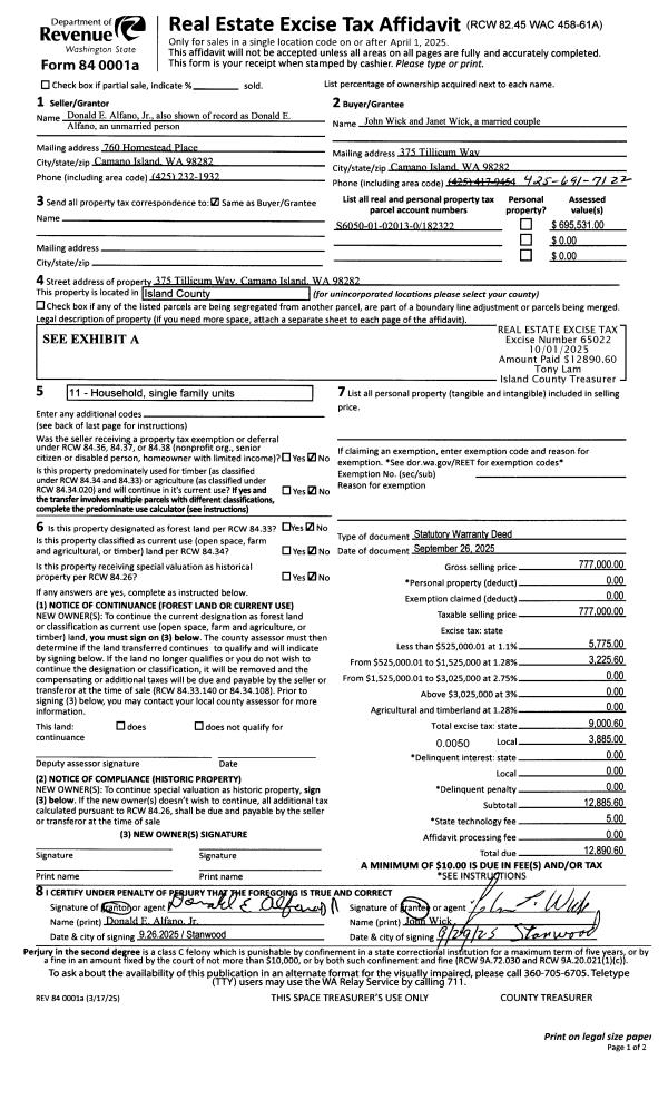
Property
Account |
| Property ID: | 84786 | Abbreviated Legal Description: | 44 - S220'OF N1100'OF SW NW EX E330'& EX W525' |
| Geographic ID: | R23124-303-0780 | Agent Code: | |
| Type: | Real | | |
| Tax Area: | 512 - APPRAISER-Stan/Cam Schl Dist, improved, greater than 1 acre | Land Use Code | 11 |
| Open Space: | N | DFL | N |
| Historic Property: | N | Remodel Property: | N |
| Multi-Family Redevelopment: | N | | |
| Township: | 31 | Section: | 24 |
| Range: | R2 |
Location |
| Address: | | Mapsco: | |
| Neighborhood: | Cycle 5 | Map ID: | 506 |
| Neighborhood CD: | 5 |
Owner |
| Name: | LANCIERI, PETER RYAN | Owner ID: | 302699 |
| Mailing Address: | TAMMY LANCIERI 1359 MIDCREST RD CAMANO ISLAND, WA 98282 | % Ownership: | 100.0000000000% |
| | | Exemptions: | |
Taxes and Assessment Details
Values
| (+) Improvement Homesite Value: | + | $0 | |
| (+) Improvement Non-Homesite Value: | + | $53,784 | |
| (+) Land Homesite Value: | + | $0 | |
| (+) Land Non-Homesite Value: | + | $170,000 | |
| (+) Curr Use (HS): | + | $0 | $0 |
| (+) Curr Use (NHS): | + | $0 | $0 |
| | | -------------------------- | |
| (=) Market Value: | = | $223,784 | |
| (–) Productivity Loss: | – | $0 | |
| | | -------------------------- | |
| (=) Subtotal: | = | $223,784 | |
| (+) Senior Appraised Value: | + | $0 | |
| (+) Non-Senior Appraised Value: | + | $223,784 | |
| | | -------------------------- | |
| (=) Total Appraised Value: | = | $223,784 | |
| (–) Senior Exemption Loss: | – | $0 | |
| (–) Exemption Loss: | – | $0 | |
| | | -------------------------- | |
| (=) Taxable Value: | = | $223,784 | |
Taxing Jurisdiction
| Owner: | LANCIERI, PETER RYAN | | |
| % Ownership: | 100.0000000000% | | |
| Total Value: | $223,784 | | |
| Tax Area: | 512 - APPRAISER-Stan/Cam Schl Dist, improved, greater than 1 acre |
| CF | Conservation Futures | 0.0316035091 | $223,784 | $223,784 | $7.07 | | |
| EMS1 | Fire & Rescue Dist #1 Camano GEN (EMS) | 0.3677864386 | $223,784 | $223,784 | $82.30 | | |
| FIRE1 | Fire & Rescue Dist #1 Camano GEN | 1.2502910536 | $223,784 | $223,784 | $279.80 | | |
| FIRE1BOND | Fire & Rescue Dist #1 Camano BOND | 0.1570001679 | $223,784 | $223,784 | $35.13 | | |
| CE | County Current Expense | 0.3708482477 | $223,784 | $223,784 | $82.99 | | |
| CR | County Roads | 0.4584763726 | $223,784 | $223,784 | $102.60 | | |
| LCIB | Library Sno-Isle BOND (Camano Island) | 0.0396325772 | $223,784 | $223,784 | $8.87 | | |
| LIB | Library Sno-Isle GEN | 0.3153421757 | $223,784 | $223,784 | $70.57 | | |
| SCH205_401 | School 205-401 Enrichment | 1.2698420524 | $223,784 | $223,784 | $284.17 | | |
| SCH205BOND | School 205-401 BOND | 0.9396497583 | $223,784 | $223,784 | $210.28 | | |
| ST | State School | 1.3035497053 | $223,784 | $223,784 | $291.71 | | |
| ST2 | State School Part 2 | 0.8169543533 | $223,784 | $223,784 | $182.82 | | |
| | Total Tax Rate: | 7.3209764117 | | | | | |
| | | | | Taxes w/Current Exemptions: | $1,638.31 | | |
| | | | | Taxes w/o Exemptions: | $1,638.31 | | |
Improvement / Building
| Improvement #1: | RESIDENTIAL | State Code: | A3 | 0.0 sqft | Value: | $53,784 |
Sketch
| No sketches available for this property. |
Property Image
Land
| 1 | 18 | AC (02.01-03.00) | 2.3500 | 102366.00 | 0.00 | 0.00 | 1.00 | $170,000 | $0 |
Roll Value History
| 2026 | N/A | N/A | N/A | N/A | N/A |
| 2025 | $53,784 | $170,000 | $0 | $223,784 | $223,784 |
| 2024 | $100 | $150,000 | $0 | $150,100 | $150,100 |
| 2023 | $100 | $140,000 | $0 | $140,100 | $140,100 |
| 2022 | $100 | $130,000 | $0 | $130,100 | $130,100 |
| 2021 | $0 | $100,000 | $0 | $100,000 | $100,000 |
| 2020 | $0 | $90,000 | $0 | $90,000 | $90,000 |
| 2019 | $0 | $90,000 | $0 | $90,000 | $90,000 |
| 2018 | $0 | $80,000 | $0 | $80,000 | $80,000 |
| 2017 | $0 | $80,000 | $0 | $80,000 | $80,000 |
| 2016 | $0 | $70,000 | $0 | $70,000 | $70,000 |
| 2015 | $0 | $80,000 | $0 | $80,000 | $80,000 |
| 2014 | $0 | $96,000 | $0 | $96,000 | $96,000 |
| 2013 | $0 | $96,000 | $0 | $96,000 | $96,000 |
| 2012 | $0 | $96,000 | $0 | $96,000 | $96,000 |
| 2011 | $0 | $96,000 | $0 | $96,000 | $96,000 |
| 2010 | $0 | $96,000 | $0 | $96,000 | $96,000 |
| 2009 | $0 | $104,000 | $0 | $104,000 | $104,000 |
| 2008 | $0 | $96,000 | $0 | $96,000 | $96,000 |
| 2007 | $0 | $80,000 | $0 | $80,000 | $80,000 |
Deed and Sales History
| 1 | 01/14/2022 | WD | Warranty Deed | FINE, ANDREA R | LANCIERI, PETER RYAN | | | $615,000.00 | 51699 | 4538165 |
|   | |
| 2 | 05/16/2018 | WD | Warranty Deed | BATES, ALEXANDER C | FINE, ANDREA R | | | $435,000.00 | 34183 | 4444826 |
|   | |
| 3 | 11/13/2014 | WD | Warranty Deed | HUGHES, ERIK A | BATES, ALEXANDER C | | | $334,000.00 | 17583 | 4368646 |
|   | |
| 4 | 09/08/2005 | WD | Warranty Deed | PAYNE, ARNOLD L | HUGHES, ERIK A | | | $66,300.00 | 54619 | 4147659 |
| 5 | 01/01/1900 | OTHER | Other - Misc. Documents | Unknown | PAYNE, ARNOLD L | | | $0.00 | 0 | 0 |
Payout Agreement
| No payout information available.. |