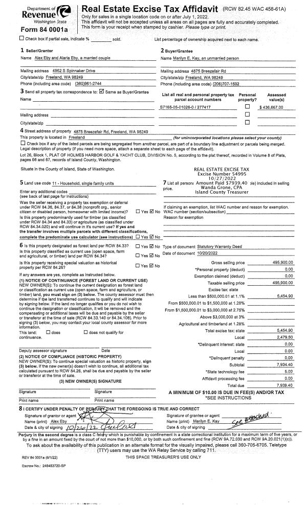
Property
Account |
| Property ID: | 84802 | Abbreviated Legal Description: | 17 - W525' OF S220' OF N880 OF SW NW SUB TO EZ |
| Geographic ID: | R23124-325-0290 | Agent Code: | |
| Type: | Real | | |
| Tax Area: | 512 - APPRAISER-Stan/Cam Schl Dist, improved, greater than 1 acre | Land Use Code | 11 |
| Open Space: | N | DFL | N |
| Historic Property: | N | Remodel Property: | N |
| Multi-Family Redevelopment: | N | | |
| Township: | 31 | Section: | 24 |
| Range: | R2 |
Location |
| Address: | 1358 MIDCREST RD CAMANO ISLAND, WA 98282 | Mapsco: | |
| Neighborhood: | Cycle 5 | Map ID: | 506 |
| Neighborhood CD: | 5 |
Owner |
| Name: | STILES, GARY W | Owner ID: | 58426 |
| Mailing Address: | 1358 MIDCREST RD CAMANO ISLAND, WA 98282-8449 | % Ownership: | 100.0000000000% |
| | | Exemptions: | |
Taxes and Assessment Details
Values
| (+) Improvement Homesite Value: | + | $0 | |
| (+) Improvement Non-Homesite Value: | + | $120,743 | |
| (+) Land Homesite Value: | + | $0 | |
| (+) Land Non-Homesite Value: | + | $300,000 | |
| (+) Curr Use (HS): | + | $0 | $0 |
| (+) Curr Use (NHS): | + | $0 | $0 |
| | | -------------------------- | |
| (=) Market Value: | = | $420,743 | |
| (–) Productivity Loss: | – | $0 | |
| | | -------------------------- | |
| (=) Subtotal: | = | $420,743 | |
| (+) Senior Appraised Value: | + | $0 | |
| (+) Non-Senior Appraised Value: | + | $420,743 | |
| | | -------------------------- | |
| (=) Total Appraised Value: | = | $420,743 | |
| (–) Senior Exemption Loss: | – | $0 | |
| (–) Exemption Loss: | – | $0 | |
| | | -------------------------- | |
| (=) Taxable Value: | = | $420,743 | |
Taxing Jurisdiction
| Owner: | STILES, GARY W | | |
| % Ownership: | 100.0000000000% | | |
| Total Value: | $420,743 | | |
| Tax Area: | 512 - APPRAISER-Stan/Cam Schl Dist, improved, greater than 1 acre |
| CF | Conservation Futures | 0.0316035091 | $420,743 | $420,743 | $13.30 | | |
| EMS1 | Fire & Rescue Dist #1 Camano GEN (EMS) | 0.3677864386 | $420,743 | $420,743 | $154.74 | | |
| FIRE1 | Fire & Rescue Dist #1 Camano GEN | 1.2502910536 | $420,743 | $420,743 | $526.05 | | |
| FIRE1BOND | Fire & Rescue Dist #1 Camano BOND | 0.1570001679 | $420,743 | $420,743 | $66.06 | | |
| CE | County Current Expense | 0.3708482477 | $420,743 | $420,743 | $156.03 | | |
| CR | County Roads | 0.4584763726 | $420,743 | $420,743 | $192.90 | | |
| LCIB | Library Sno-Isle BOND (Camano Island) | 0.0396325772 | $420,743 | $420,743 | $16.68 | | |
| LIB | Library Sno-Isle GEN | 0.3153421757 | $420,743 | $420,743 | $132.68 | | |
| SCH205_401 | School 205-401 Enrichment | 1.2698420524 | $420,743 | $420,743 | $534.28 | | |
| SCH205BOND | School 205-401 BOND | 0.9396497583 | $420,743 | $420,743 | $395.35 | | |
| ST | State School | 1.3035497053 | $420,743 | $420,743 | $548.46 | | |
| ST2 | State School Part 2 | 0.8169543533 | $420,743 | $420,743 | $343.73 | | |
| | Total Tax Rate: | 7.3209764117 | | | | | |
| | | | | Taxes w/Current Exemptions: | $3,080.26 | | |
| | | | | Taxes w/o Exemptions: | $3,080.26 | | |
Improvement / Building
| Improvement #1: | MANUFACTURED HOME | State Code: | Y | 1512.0 sqft | Value: | $120,743 |
| Bathrooms: | 0 | Bedrooms: | 0 | | Ceiling: | PLASTER PAINTED | Cooling: | EVAP NO DUCT | | Exterior Wall/Cover: | VINYL | Floor Covering: | CARPET 100% | | Floor Structure: | SLAB ON GRADE | Foundation: | SLAB | | Heating: | FHA ELECTRIC | Interior Finish: | PLASTER | | Plumbing Fixture Cnt: | 1 | Roof Slope: | FLAT | | Roof Structure/Cover: | CJ ALUMINIUM HEAVY |   |   |
|
| | Type | Description | Class CD | Sub Class CD | Year Built | Area |
| | BAS | BASE/MAIN FLOOR | 4 | 0 | 1998 | 1512.0 |
| | OWP | OPEN WOOD PORCH W/STEPS | 4 | 0 | 1998 | 224.0 |
| | OWP | OPEN WOOD PORCH W/STEPS | 4 | 0 | 1998 | 464.0 |
Sketch
Property Image
Land
| 1 | 18 | AC (02.01-03.00) | 2.6500 | 115434.00 | 0.00 | 0.00 | 1.00 | $300,000 | $0 |
Roll Value History
| 2026 | N/A | N/A | N/A | N/A | N/A |
| 2025 | $120,743 | $300,000 | $0 | $420,743 | $420,743 |
| 2024 | $122,421 | $280,000 | $0 | $402,421 | $402,421 |
| 2023 | $109,365 | $270,000 | $0 | $379,365 | $379,365 |
| 2022 | $101,677 | $260,000 | $0 | $361,677 | $361,677 |
| 2021 | $72,340 | $180,000 | $0 | $252,340 | $252,340 |
| 2020 | $71,203 | $150,000 | $0 | $221,203 | $221,203 |
| 2019 | $57,619 | $200,000 | $0 | $257,619 | $257,619 |
| 2018 | $59,155 | $150,000 | $0 | $209,155 | $209,155 |
| 2017 | $60,692 | $135,000 | $0 | $195,692 | $195,692 |
| 2016 | $62,228 | $100,000 | $0 | $162,228 | $162,228 |
| 2015 | $64,853 | $90,000 | $0 | $154,853 | $154,853 |
| 2014 | $66,310 | $83,200 | $0 | $149,510 | $149,510 |
| 2013 | $67,767 | $83,200 | $0 | $150,967 | $150,967 |
| 2012 | $69,224 | $83,200 | $0 | $152,424 | $152,424 |
| 2011 | $70,681 | $104,000 | $0 | $174,681 | $174,681 |
| 2010 | $68,133 | $104,000 | $0 | $172,133 | $172,133 |
| 2009 | $69,036 | $130,000 | $0 | $199,036 | $199,036 |
| 2008 | $69,986 | $130,000 | $0 | $199,986 | $199,986 |
| 2007 | $71,719 | $130,000 | $0 | $201,719 | $201,719 |
Deed and Sales History
| 1 | 11/01/1998 | PACD | Purchaser's Assignment | STILES, GARY W | STILES, GARY W | | | $56,000.00 | 0 | 0 |
| 2 | 10/13/1998 | QCD | Quit Claim Deed | POWERS, VICKI A | STILES, GARY W | | | $0.00 | 84370 | 98023708 |
| 3 | 06/01/1996 | WD | Warranty Deed | LAMBERTSON, DANIEL | POWERS, VICKI A | | | $58,165.00 | 62264 | 96011202 |
| 4 | 04/01/1990 | WD | Warranty Deed | HAWKINS, ERIC W | LAMBERTSON, DANIEL | | | $29,300.00 | 2508 | 90008071 |
| 5 | 01/01/1900 | OTHER | Other - Misc. Documents | Unknown | HAWKINS, ERIC W | | | $0.00 | 0 | 0 |
Payout Agreement
| No payout information available.. |