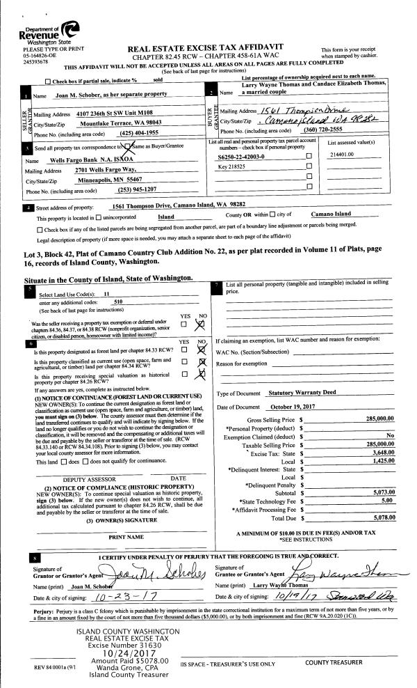
Property
Account |
| Property ID: | 849 | Abbreviated Legal Description: | 14 - S165' OF NE NE EX W440' EX RD TGW & SUB EZ AF#85014073 |
| Geographic ID: | R03224-404-4730 | Agent Code: | |
| Type: | Real | | |
| Tax Area: | 332 - APPRAISER-Cpvl Schl Dist, Special Dist, improved, greater than 1 acre | Land Use Code | 11 |
| Open Space: | N | DFL | N |
| Historic Property: | N | Remodel Property: | N |
| Multi-Family Redevelopment: | N | | |
| Township: | 32 | Section: | 24 |
| Range: | R0 |
Location |
| Address: | 1109 OLSON RD COUPEVILLE, WA 98239 | Mapsco: | |
| Neighborhood: | Cycle 2 | Map ID: | 6 |
| Neighborhood CD: | 2 |
Owner |
| Name: | MARTIN JR, BOBBIE J | Owner ID: | 44813 |
| Mailing Address: | KAREN E MARTIN 1093 OLSON RD COUPEVILLE, WA 98239 | % Ownership: | 100.0000000000% |
| | | Exemptions: | |
Taxes and Assessment Details
Values
| (+) Improvement Homesite Value: | + | $0 | |
| (+) Improvement Non-Homesite Value: | + | $283,415 | |
| (+) Land Homesite Value: | + | $0 | |
| (+) Land Non-Homesite Value: | + | $320,495 | |
| (+) Curr Use (HS): | + | $0 | $0 |
| (+) Curr Use (NHS): | + | $0 | $0 |
| | | -------------------------- | |
| (=) Market Value: | = | $603,910 | |
| (–) Productivity Loss: | – | $0 | |
| | | -------------------------- | |
| (=) Subtotal: | = | $603,910 | |
| (+) Senior Appraised Value: | + | $0 | |
| (+) Non-Senior Appraised Value: | + | $603,910 | |
| | | -------------------------- | |
| (=) Total Appraised Value: | = | $603,910 | |
| (–) Senior Exemption Loss: | – | $0 | |
| (–) Exemption Loss: | – | $0 | |
| | | -------------------------- | |
| (=) Taxable Value: | = | $603,910 | |
Taxing Jurisdiction
| Owner: | MARTIN JR, BOBBIE J | | |
| % Ownership: | 100.0000000000% | | |
| Total Value: | $603,910 | | |
| Tax Area: | 332 - APPRAISER-Cpvl Schl Dist, Special Dist, improved, greater than 1 acre |
| CF | Conservation Futures | 0.0316035091 | $603,910 | $603,910 | $19.09 | | |
| CEM2 | Cemetery #2 | 0.0095056933 | $603,910 | $603,910 | $5.74 | | |
| FIRE2 | Fire & Rescue Dist #2 N Whidbey GEN | 0.5475949600 | $603,910 | $603,910 | $330.70 | | |
| HOBOND | Hospital BOND | 0.1910887512 | $603,910 | $603,910 | $115.40 | | |
| HOGEN | Hospital GEN | 0.3902502903 | $603,910 | $603,910 | $235.68 | | |
| CE | County Current Expense | 0.3708482477 | $603,910 | $603,910 | $223.96 | | |
| CR | County Roads | 0.4584763726 | $603,910 | $603,910 | $276.88 | | |
| ISLANDEMS | Hospital GEN (EMS) | 0.5000000000 | $603,910 | $603,910 | $301.96 | | |
| LIB | Library Sno-Isle GEN | 0.3153421757 | $603,910 | $603,910 | $190.44 | | |
| LIBCAP | Library Sno-Isle BOND (Cap Fac Imp Area) | 0.0543427938 | $603,910 | $603,910 | $32.82 | | |
| POCOUP | Port of Coupeville GEN | 0.1093371703 | $603,910 | $603,910 | $66.03 | | |
| POCOUPIDD | Port of Coupeville IDD | 0.3409740022 | $603,910 | $603,910 | $205.92 | | |
| COUPSDTECH | School 204 CP (TECH) | 0.7545480007 | $603,910 | $603,910 | $455.68 | | |
| SCH204MO | School 204 Enrichment | 0.6716186034 | $603,910 | $603,910 | $405.60 | | |
| ST | State School | 1.3035497053 | $603,910 | $603,910 | $787.23 | | |
| ST2 | State School Part 2 | 0.8169543533 | $603,910 | $603,910 | $493.37 | | |
| | Total Tax Rate: | 6.8660346289 | | | | | |
| | | | | Taxes w/Current Exemptions: | $4,146.50 | | |
| | | | | Taxes w/o Exemptions: | $4,146.50 | | |
Improvement / Building
| Improvement #1: | RESIDENTIAL | State Code: | Y | 1443.3 sqft | Value: | $283,415 |
| Bathrooms: | 1.75 | Bedrooms: | 3 | | Ceiling: | DRYWALL PAINTED | Exterior Wall/Cover: | WOOD SIDING | | Floor Covering: | CARPET/VINYL 60-40 | Floor Structure: | WOOD W/SUBFLOOR | | Foundation: | CONCRETE | Heating: | BASEBOARD ELECTRIC | | Interior Finish: | DRYWALL PAINT | Plumbing Fixture Cnt: | 9 | | Roof Slope: | 4" IN 12" | Roof Structure/Cover: | CJ ASPHALT |
|
| | Type | Description | Class CD | Sub Class CD | Year Built | Area |
| | BAS | BASE/MAIN FLOOR | 3 | 0 | 1982 | 745.0 |
| | OWP | OPEN WOOD PORCH W/STEPS | 3 | 0 | 1982 | 387.5 |
| | ENP | ENCLOSED PORCH | 3 | 0 | 1982 | 100.0 |
| | DWN | DOWNSTAIRS LIVING AREA | 3 | 0 | 1982 | 698.3 |
| | DGR | DETACHED GARAGE | 3 | 0 | 1982 | 480.0 |
| | DGR | DETACHED GARAGE | 3 | 0 | 1982 | 840.0 |
| | CPD | OPEN CARPORT DIRT FLOOR | 3 | 0 | 1982 | 320.0 |
Sketch
Property Image
Land
| 1 | HS | HOMESITE | 1.0000 | 43560.00 | 0.00 | 0.00 | 1.00 | $220,000 | $0 |
| 2 | 91 | UNDEVELOPED LAND-METES AND BOUNDS | 2.2600 | 98445.60 | 0.00 | 0.00 | 1.00 | $100,495 | $0 |
Roll Value History
| 2026 | N/A | N/A | N/A | N/A | N/A |
| 2025 | $283,415 | $320,495 | $0 | $603,910 | $603,910 |
| 2024 | $293,188 | $300,000 | $0 | $593,188 | $593,188 |
| 2023 | $266,272 | $280,000 | $0 | $546,272 | $546,272 |
| 2022 | $244,610 | $290,000 | $0 | $534,610 | $534,610 |
| 2021 | $215,728 | $220,000 | $0 | $435,728 | $435,728 |
| 2020 | $210,525 | $200,000 | $0 | $410,525 | $410,525 |
| 2019 | $152,843 | $250,000 | $0 | $402,843 | $402,843 |
| 2018 | $128,446 | $180,000 | $0 | $308,446 | $308,446 |
| 2017 | $129,249 | $170,000 | $0 | $299,249 | $299,249 |
| 2016 | $130,973 | $160,000 | $0 | $290,973 | $290,973 |
| 2015 | $132,697 | $125,000 | $0 | $257,697 | $257,697 |
| 2014 | $134,421 | $108,558 | $0 | $242,979 | $242,979 |
| 2013 | $136,144 | $108,558 | $0 | $244,702 | $244,702 |
| 2012 | $145,990 | $108,558 | $0 | $254,548 | $254,548 |
| 2011 | $147,565 | $120,620 | $0 | $268,185 | $268,185 |
| 2010 | $154,161 | $133,000 | $0 | $287,161 | $287,161 |
| 2009 | $160,441 | $136,105 | $0 | $296,546 | $296,546 |
| 2008 | $163,016 | $136,105 | $0 | $299,121 | $299,121 |
| 2007 | $165,370 | $116,000 | $0 | $281,370 | $281,370 |
Deed and Sales History
| 1 | 01/22/2021 | WD | Warranty Deed | PLEASANCE, RANDALL LEE | MARTIN JR, BOBBIE J | | | $433,000.00 | 46843 | 4510166 |
| 2 | 11/15/2017 | PRD | Personal Representatives Deed | PLEASANCE, RANDALL | PLEASANCE, RANDALL LEE | | | $0.00 | 31994 | 4434510 |
| 3 | 04/01/2005 | WD | Warranty Deed | ECK, DAVID S | PLEASANCE, RANDALL | | | $292,000.00 | 51435 | 4130501 |
| 4 | 09/01/1997 | WD | Warranty Deed | JARRELS, JOHN M | ECK, DAVID S | | | $139,000.00 | 73173 | 97015010 |
| 5 | 02/01/1988 | WD | Warranty Deed | YADON, DENNIS R | JARRELS, JOHN M | | | $66,000.00 | 80280 | 88001247 |
| 6 | 06/01/1982 | TRUSTEED | Trustee's Deed | BUCHHOLZ, DUANE C | YADON, DENNIS R | | | $15,000.00 | 21586 | 398076 |
| 7 | 01/01/1900 | OTHER | Other - Misc. Documents | Unknown | BUCHHOLZ, DUANE C | | | $0.00 | 0 | 0 |
Payout Agreement
| No payout information available.. |