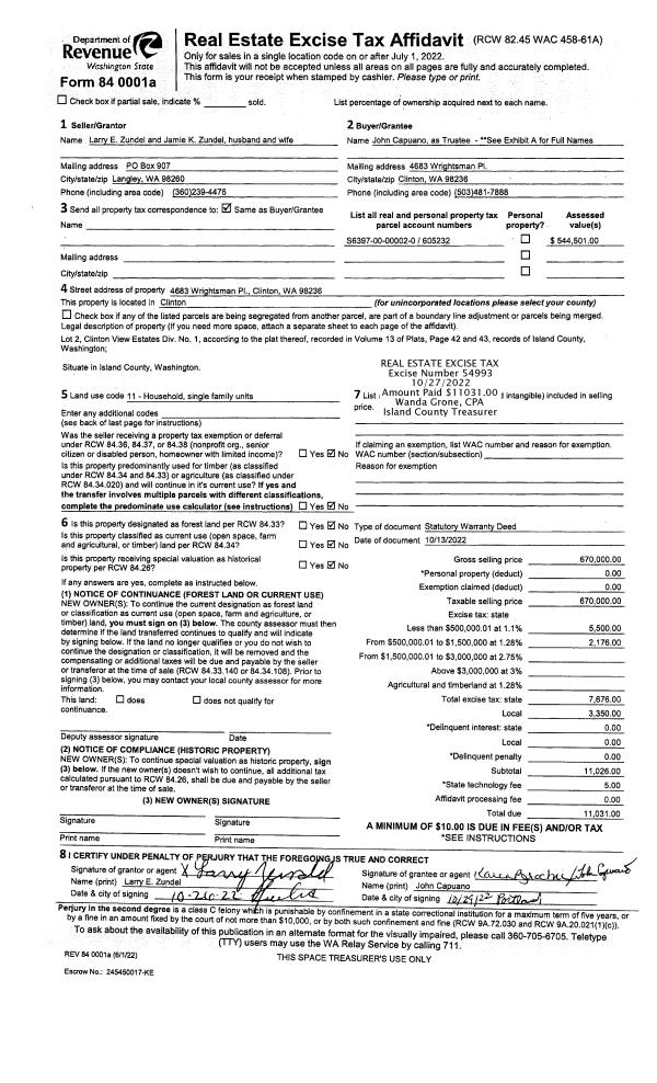
Property
Account |
| Property ID: | 84900 | Abbreviated Legal Description: | 27 - W525' OF S220' OF N440 OF SW NW SUB TO EZ |
| Geographic ID: | R23124-370-0290 | Agent Code: | |
| Type: | Real | | |
| Tax Area: | 512 - APPRAISER-Stan/Cam Schl Dist, improved, greater than 1 acre | Land Use Code | 11 |
| Open Space: | N | DFL | N |
| Historic Property: | N | Remodel Property: | N |
| Multi-Family Redevelopment: | N | | |
| Township: | 31 | Section: | 24 |
| Range: | R2 |
Location |
| Address: | 1324 MIDCREST RD CAMANO ISLAND, WA 98282 | Mapsco: | |
| Neighborhood: | Cycle 5 | Map ID: | 506 |
| Neighborhood CD: | 5 |
Owner |
| Name: | BLAIR, JIM | Owner ID: | 178497 |
| Mailing Address: | RITA WETZLER PO BOX 550 STANWOOD, WA 98292-0550 | % Ownership: | 100.0000000000% |
| | | Exemptions: | |
Taxes and Assessment Details
Values
| (+) Improvement Homesite Value: | + | $0 | |
| (+) Improvement Non-Homesite Value: | + | $10,627 | |
| (+) Land Homesite Value: | + | $0 | |
| (+) Land Non-Homesite Value: | + | $300,000 | |
| (+) Curr Use (HS): | + | $0 | $0 |
| (+) Curr Use (NHS): | + | $0 | $0 |
| | | -------------------------- | |
| (=) Market Value: | = | $310,627 | |
| (–) Productivity Loss: | – | $0 | |
| | | -------------------------- | |
| (=) Subtotal: | = | $310,627 | |
| (+) Senior Appraised Value: | + | $0 | |
| (+) Non-Senior Appraised Value: | + | $310,627 | |
| | | -------------------------- | |
| (=) Total Appraised Value: | = | $310,627 | |
| (–) Senior Exemption Loss: | – | $0 | |
| (–) Exemption Loss: | – | $0 | |
| | | -------------------------- | |
| (=) Taxable Value: | = | $310,627 | |
Taxing Jurisdiction
| Owner: | BLAIR, JIM | | |
| % Ownership: | 100.0000000000% | | |
| Total Value: | $310,627 | | |
| Tax Area: | 512 - APPRAISER-Stan/Cam Schl Dist, improved, greater than 1 acre |
| CF | Conservation Futures | 0.0316035091 | $310,627 | $310,627 | $9.82 | | |
| EMS1 | Fire & Rescue Dist #1 Camano GEN (EMS) | 0.3677864386 | $310,627 | $310,627 | $114.24 | | |
| FIRE1 | Fire & Rescue Dist #1 Camano GEN | 1.2502910536 | $310,627 | $310,627 | $388.37 | | |
| FIRE1BOND | Fire & Rescue Dist #1 Camano BOND | 0.1570001679 | $310,627 | $310,627 | $48.77 | | |
| CE | County Current Expense | 0.3708482477 | $310,627 | $310,627 | $115.20 | | |
| CR | County Roads | 0.4584763726 | $310,627 | $310,627 | $142.42 | | |
| LCIB | Library Sno-Isle BOND (Camano Island) | 0.0396325772 | $310,627 | $310,627 | $12.31 | | |
| LIB | Library Sno-Isle GEN | 0.3153421757 | $310,627 | $310,627 | $97.95 | | |
| SCH205_401 | School 205-401 Enrichment | 1.2698420524 | $310,627 | $310,627 | $394.45 | | |
| SCH205BOND | School 205-401 BOND | 0.9396497583 | $310,627 | $310,627 | $291.88 | | |
| ST | State School | 1.3035497053 | $310,627 | $310,627 | $404.92 | | |
| ST2 | State School Part 2 | 0.8169543533 | $310,627 | $310,627 | $253.77 | | |
| | Total Tax Rate: | 7.3209764117 | | | | | |
| | | | | Taxes w/Current Exemptions: | $2,274.10 | | |
| | | | | Taxes w/o Exemptions: | $2,274.10 | | |
Improvement / Building
| Improvement #1: | MANUFACTURED HOME | State Code: | Y | 840.0 sqft | Value: | $10,627 |
| Bathrooms: | 0 | Bedrooms: | 0 | | Ceiling: | PLASTER PAINTED | Cooling: | EVAP NO DUCT | | Exterior Wall/Cover: | VINYL | Floor Covering: | CARPET 100% | | Floor Structure: | SLAB ON GRADE | Foundation: | SLAB | | Heating: | FHA ELECTRIC | Interior Finish: | PLASTER | | Plumbing Fixture Cnt: | 1 | Roof Slope: | FLAT | | Roof Structure/Cover: | CJ ALUMINIUM HEAVY |   |   |
|
| | Type | Description | Class CD | Sub Class CD | Year Built | Area |
| | BAS | BASE/MAIN FLOOR | 3 | 0 | 1976 | 840.0 |
| | OWC | OPEN WOOD PORCH W/STEPS/ROOF/C | 3 | 0 | 1976 | 104.0 |
| | OWP | OPEN WOOD PORCH W/STEPS | 3 | 0 | 1976 | 64.0 |
| | UTY | STORAGE/UTILITY | 3 | 0 | 1976 | 672.0 |
Sketch
Property Image
Land
| 1 | 18 | AC (02.01-03.00) | 2.6600 | 115869.60 | 0.00 | 0.00 | 1.00 | $300,000 | $0 |
Roll Value History
| 2026 | N/A | N/A | N/A | N/A | N/A |
| 2025 | $10,627 | $300,000 | $0 | $310,627 | $310,627 |
| 2024 | $11,071 | $280,000 | $0 | $291,071 | $291,071 |
| 2023 | $11,957 | $270,000 | $0 | $281,957 | $281,957 |
| 2022 | $11,226 | $260,000 | $0 | $271,226 | $271,226 |
| 2021 | $8,254 | $180,000 | $0 | $188,254 | $188,254 |
| 2020 | $8,311 | $150,000 | $0 | $158,311 | $158,311 |
| 2019 | $7,016 | $200,000 | $0 | $207,016 | $122,329 |
| 2018 | $7,249 | $150,000 | $0 | $157,249 | $97,249 |
| 2017 | $7,716 | $135,000 | $0 | $142,716 | $82,716 |
| 2016 | $8,186 | $100,000 | $0 | $108,186 | $54,093 |
| 2015 | $25,244 | $90,000 | $0 | $115,244 | $57,621 |
| 2014 | $25,433 | $83,200 | $0 | $108,633 | $54,316 |
| 2013 | $25,812 | $83,200 | $0 | $109,012 | $54,505 |
| 2012 | $26,192 | $83,200 | $0 | $109,392 | $54,695 |
| 2011 | $26,760 | $104,000 | $0 | $130,760 | $70,760 |
| 2010 | $27,892 | $104,000 | $0 | $131,892 | $71,892 |
| 2009 | $27,641 | $130,000 | $0 | $157,641 | $97,641 |
| 2008 | $27,845 | $130,000 | $0 | $157,845 | $63,138 |
| 2007 | $28,049 | $130,000 | $0 | $158,049 | $158,049 |
Deed and Sales History
| 1 | 01/26/2000 | QCD | Quit Claim Deed | BLAIR, JIM | BLAIR, JIM | | | $0.00 | 338 | 20001758 |
| 2 | 02/01/1998 | OTHER | Other - Misc. Documents | BLAIR, JIM | BLAIR, JIM | | | $0.00 | 80610 | 0 |
| 3 | 02/01/1998 | WD | Warranty Deed | HAMILTON, DONALD R | BLAIR, JIM | | | $20,160.00 | 80589 | 98003134 |
| 4 | 02/01/1998 | WD | Warranty Deed | BLAIR, JIM | BLAIR, JIM | | | $84,000.00 | 80589 | 98003134 |
| 5 | 04/01/1995 | REC | Real Estate Contract | SHAW, MICHAEL L | HAMILTON, DONALD | | | $0.00 | 80022 | 0 |
| 6 | 04/01/1995 | TRUSTEED | Trustee's Deed | HAMILTON, DONALD R | HAMILTON, DONALD R | | | $0.00 | 51564 | 95007389 |
| 7 | 04/01/1995 | WD | Warranty Deed | HAMILTON, DONALD | HAMILTON, DONALD R | | | $0.00 | 51564 | 98000107 |
| 8 | 08/01/1993 | OTHER | Other - Misc. Documents | SHAW, MICHAEL L | SHAW, MICHAEL L | | | $0.00 | 33327 | 0 |
| 9 | 11/01/1991 | OTHER | Other - Misc. Documents | GAMBIL, LORENA J | SHAW, MICHAEL L | | | $15,000.00 | 14138 | 0 |
| 10 | 11/01/1991 | WD | Warranty Deed | SHAW, MICHAEL L | SHAW, MICHAEL L | | | $52,500.00 | 14139 | 91017908 |
| 11 | 10/01/1988 | OTHER | Other - Misc. Documents | GAMBILL, LORENA J | GAMBIL, LORENA J | | | $0.00 | 83594 | 0 |
| 12 | 05/01/1984 | OTHER | Other - Misc. Documents | GAMBILL, LORENA J | GAMBILL, LORENA J | | | $0.00 | 60621 | 0 |
| 13 | 03/01/1983 | OTHER | Other - Misc. Documents | GAMBILL, FRED W | GAMBIL, LORENA J | | | $0.00 | 59878 | 0 |
| 14 | 03/01/1983 | OTHER | Other - Misc. Documents | GAMBIL, LORENA J | GAMBILL, LORENA J | | | $0.00 | 59878 | 0 |
| 15 | 01/01/1900 | OTHER | Other - Misc. Documents | Unknown | GAMBIL, FRED W | | | $0.00 | 0 | 0 |
| 16 | 01/01/1900 | OTHER | Other - Misc. Documents | GAMBIL, FRED W | GAMBILL, FRED W | | | $0.00 | 0 | 0 |
Payout Agreement
| No payout information available.. |