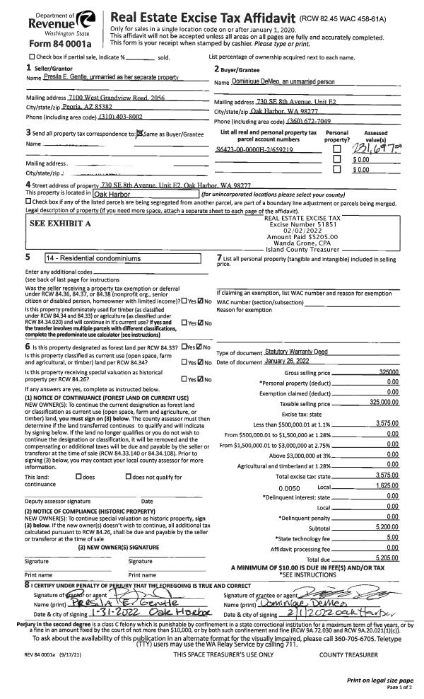
Property
Account |
| Property ID: | 85008 | Abbreviated Legal Description: | 54 - PT NW NW SEC 24 & NE NE SEC 23: BG NWCR SEC 24 S585' TPB S89*E1317.43' S192.85' S88*W947.41' TO CLN EZ AF#324192 ALG SD CLN S86*W402.01' N145.61' N21*W 99.43' S89*E67.40' TPB TGW EZ |
| Geographic ID: | R23124-465-0640 | Agent Code: | |
| Type: | Real | | |
| Tax Area: | 512 - APPRAISER-Stan/Cam Schl Dist, improved, greater than 1 acre | Land Use Code | 11 |
| Open Space: | N | DFL | N |
| Historic Property: | N | Remodel Property: | N |
| Multi-Family Redevelopment: | N | | |
| Township: | 31 | Section: | 24 |
| Range: | R2 |
Location |
| Address: | 1249 YOUNGWOOD RD CAMANO ISLAND, WA 98282 | Mapsco: | |
| Neighborhood: | Cycle 5 | Map ID: | 506 |
| Neighborhood CD: | 5 |
Owner |
| Name: | JOYCE, LARRY R | Owner ID: | 268315 |
| Mailing Address: | 1249 YOUNGWOOD RD CAMANO ISLAND, WA 98282-7614 | % Ownership: | 100.0000000000% |
| | | Exemptions: | |
Taxes and Assessment Details
Values
| (+) Improvement Homesite Value: | + | $0 | |
| (+) Improvement Non-Homesite Value: | + | $368,706 | |
| (+) Land Homesite Value: | + | $0 | |
| (+) Land Non-Homesite Value: | + | $410,000 | |
| (+) Curr Use (HS): | + | $0 | $0 |
| (+) Curr Use (NHS): | + | $0 | $0 |
| | | -------------------------- | |
| (=) Market Value: | = | $778,706 | |
| (–) Productivity Loss: | – | $0 | |
| | | -------------------------- | |
| (=) Subtotal: | = | $778,706 | |
| (+) Senior Appraised Value: | + | $0 | |
| (+) Non-Senior Appraised Value: | + | $778,706 | |
| | | -------------------------- | |
| (=) Total Appraised Value: | = | $778,706 | |
| (–) Senior Exemption Loss: | – | $0 | |
| (–) Exemption Loss: | – | $0 | |
| | | -------------------------- | |
| (=) Taxable Value: | = | $778,706 | |
Taxing Jurisdiction
| Owner: | JOYCE, LARRY R | | |
| % Ownership: | 100.0000000000% | | |
| Total Value: | $778,706 | | |
| Tax Area: | 512 - APPRAISER-Stan/Cam Schl Dist, improved, greater than 1 acre |
| CF | Conservation Futures | 0.0316035091 | $778,706 | $778,706 | $24.61 | | |
| EMS1 | Fire & Rescue Dist #1 Camano GEN (EMS) | 0.3677864386 | $778,706 | $778,706 | $286.40 | | |
| FIRE1 | Fire & Rescue Dist #1 Camano GEN | 1.2502910536 | $778,706 | $778,706 | $973.61 | | |
| FIRE1BOND | Fire & Rescue Dist #1 Camano BOND | 0.1570001679 | $778,706 | $778,706 | $122.26 | | |
| CE | County Current Expense | 0.3708482477 | $778,706 | $778,706 | $288.78 | | |
| CR | County Roads | 0.4584763726 | $778,706 | $778,706 | $357.02 | | |
| LCIB | Library Sno-Isle BOND (Camano Island) | 0.0396325772 | $778,706 | $778,706 | $30.86 | | |
| LIB | Library Sno-Isle GEN | 0.3153421757 | $778,706 | $778,706 | $245.56 | | |
| SCH205_401 | School 205-401 Enrichment | 1.2698420524 | $778,706 | $778,706 | $988.83 | | |
| SCH205BOND | School 205-401 BOND | 0.9396497583 | $778,706 | $778,706 | $731.71 | | |
| ST | State School | 1.3035497053 | $778,706 | $778,706 | $1,015.08 | | |
| ST2 | State School Part 2 | 0.8169543533 | $778,706 | $778,706 | $636.17 | | |
| | Total Tax Rate: | 7.3209764117 | | | | | |
| | | | | Taxes w/Current Exemptions: | $5,700.89 | | |
| | | | | Taxes w/o Exemptions: | $5,700.89 | | |
Improvement / Building
| Improvement #1: | RESIDENTIAL | State Code: | Y | 2312.0 sqft | Value: | $368,706 |
| Bathrooms: | 3 | Bedrooms: | 3 | | Ceiling: | DRYWALL PAINTED | Exterior Wall/Cover: | PLY/HARDBOARD T-111 | | Floor Covering: | HARDWOOD/CARP 80-20 | Floor Structure: | WOOD W/SUBFLOOR | | Foundation: | CONCRETE | Heating: | WALL HEAT ELECTRIC | | Interior Finish: | DRYWALL PAINT | Plumbing Fixture Cnt: | 12 | | Roof Slope: | 12" IN 12" | Roof Structure/Cover: | CJ ASPHALT |
|
| | Type | Description | Class CD | Sub Class CD | Year Built | Area |
| | BAS | BASE/MAIN FLOOR | 3 | 0 | 1995 | 952.0 |
| | DWN | DOWNSTAIRS LIVING AREA | 3 | 0 | 1995 | 408.0 |
| | BIG | BUILT IN GARAGE | 3 | 0 | 1995 | 544.0 |
| | UPS | UPPER STORY | 3 | 0 | 1995 | 952.0 |
| | OWP | OPEN WOOD PORCH W/STEPS | 3 | 0 | 1995 | 308.0 |
| | OWP | OPEN WOOD PORCH W/STEPS | 3 | 0 | 1995 | 48.0 |
| | ENP | ENCLOSED PORCH | 3 | 0 | 1995 | 396.0 |
| | ENP | ENCLOSED PORCH | 3 | 0 | 1995 | 36.0 |
| | CPD | OPEN CARPORT DIRT FLOOR | 3 | 0 | 1995 | 396.0 |
Sketch
Property Image
Land
| 1 | 32 | AC (03.01-09.99) | 6.5200 | 284011.20 | 0.00 | 0.00 | 1.00 | $410,000 | $0 |
Roll Value History
| 2026 | N/A | N/A | N/A | N/A | N/A |
| 2025 | $368,706 | $410,000 | $0 | $778,706 | $778,706 |
| 2024 | $373,357 | $390,000 | $0 | $763,357 | $763,357 |
| 2023 | $378,010 | $380,000 | $0 | $758,010 | $758,010 |
| 2022 | $346,497 | $350,000 | $0 | $696,497 | $696,497 |
| 2021 | $272,367 | $210,000 | $0 | $482,367 | $482,367 |
| 2020 | $265,473 | $200,000 | $0 | $465,473 | $465,473 |
| 2019 | $198,439 | $250,000 | $0 | $448,439 | $448,439 |
| 2018 | $199,067 | $220,000 | $0 | $419,067 | $419,067 |
| 2017 | $200,317 | $170,000 | $0 | $370,317 | $370,317 |
| 2016 | $202,823 | $150,000 | $0 | $352,823 | $352,823 |
| 2015 | $188,427 | $165,610 | $0 | $354,037 | $354,037 |
| 2014 | $190,699 | $165,610 | $0 | $356,309 | $356,309 |
| 2013 | $192,975 | $119,242 | $0 | $312,217 | $312,217 |
| 2012 | $195,250 | $119,242 | $0 | $314,492 | $314,492 |
| 2011 | $197,521 | $149,050 | $0 | $346,571 | $346,571 |
| 2010 | $203,687 | $149,050 | $0 | $352,737 | $352,737 |
| 2009 | $199,946 | $176,650 | $0 | $376,596 | $376,596 |
| 2008 | $202,608 | $176,650 | $0 | $379,258 | $379,258 |
| 2007 | $205,366 | $176,650 | $0 | $382,016 | $382,016 |
Deed and Sales History
| 1 | 10/29/2014 | BARGSLD | Bargain And Sale Deed | BANK OF NEW YORK MELLON TRUST COMPANY | JOYCE, LARRY R | | | $273,000.00 | 17429 | 4367948 |
| 2 | 06/25/2014 | TRUSTEED | Trustee's Deed | GENTRY, CLARK W | BANK OF NEW YORK MELLON TRUST COMPANY | | | $197,319.00 | 15782 | 4361457 |
| 3 | 01/01/1990 | WD | Warranty Deed | ANDERSEN, RUSSELL E | GENTRY, CLARK W | | | $23,000.00 | 260 | 90000772 |
| 4 | 08/01/1978 | OTHER | Other - Misc. Documents | Unknown | ANDERSEN, RUSSELL E | | | $14,900.00 | 83837 | 337813 |
Payout Agreement
| No payout information available.. |