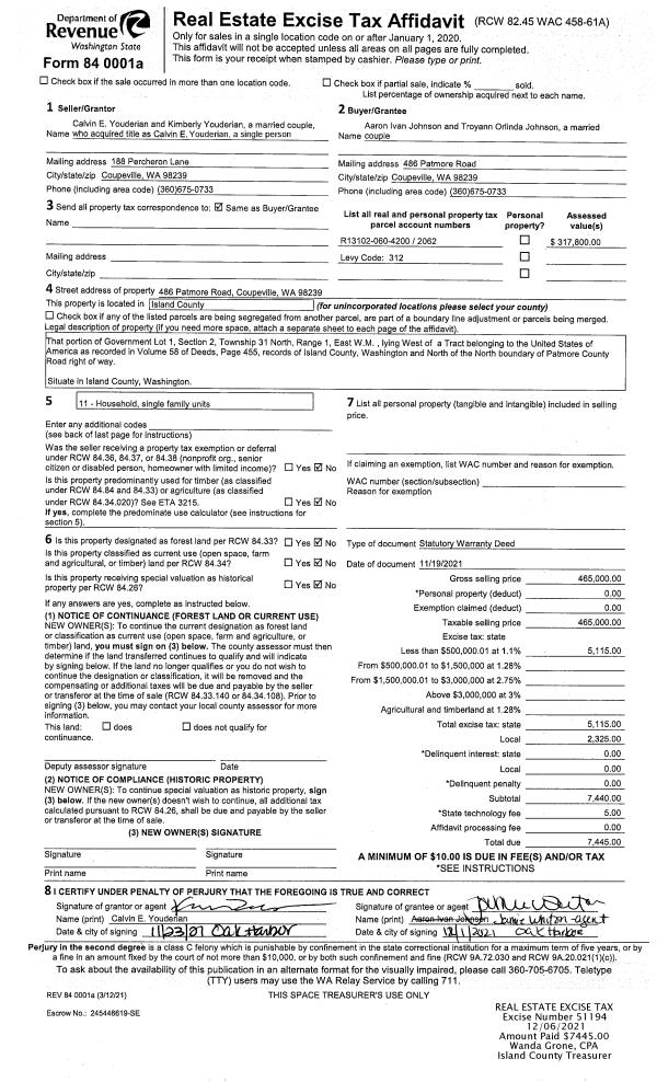
Property
Account |
| Property ID: | 85044 | Abbreviated Legal Description: | 51 - N195' OF NW NW SEC 24 & N195' OF NE NE SEC 23 ELY CLN EZ TGW EZ |
| Geographic ID: | R23124-526-0580 | Agent Code: | |
| Type: | Real | | |
| Tax Area: | 512 - APPRAISER-Stan/Cam Schl Dist, improved, greater than 1 acre | Land Use Code | 11 |
| Open Space: | N | DFL | N |
| Historic Property: | N | Remodel Property: | N |
| Multi-Family Redevelopment: | N | | |
| Township: | 31 | Section: | 24 |
| Range: | R2 |
Location |
| Address: | 1209 YOUNGWOOD RD CAMANO ISLAND, WA 98282 | Mapsco: | |
| Neighborhood: | Cycle 5 | Map ID: | 506 |
| Neighborhood CD: | 5 |
Owner |
| Name: | WHITE, ARON | Owner ID: | 301072 |
| Mailing Address: | MING WU 13004 NE 71ST ST KIRKLAND, WA 98033 | % Ownership: | 100.0000000000% |
| | | Exemptions: | |
Taxes and Assessment Details
Values
| (+) Improvement Homesite Value: | + | $0 | |
| (+) Improvement Non-Homesite Value: | + | $343,250 | |
| (+) Land Homesite Value: | + | $0 | |
| (+) Land Non-Homesite Value: | + | $330,000 | |
| (+) Curr Use (HS): | + | $0 | $0 |
| (+) Curr Use (NHS): | + | $0 | $0 |
| | | -------------------------- | |
| (=) Market Value: | = | $673,250 | |
| (–) Productivity Loss: | – | $0 | |
| | | -------------------------- | |
| (=) Subtotal: | = | $673,250 | |
| (+) Senior Appraised Value: | + | $0 | |
| (+) Non-Senior Appraised Value: | + | $673,250 | |
| | | -------------------------- | |
| (=) Total Appraised Value: | = | $673,250 | |
| (–) Senior Exemption Loss: | – | $0 | |
| (–) Exemption Loss: | – | $0 | |
| | | -------------------------- | |
| (=) Taxable Value: | = | $673,250 | |
Taxing Jurisdiction
| Owner: | WHITE, ARON | | |
| % Ownership: | 100.0000000000% | | |
| Total Value: | $673,250 | | |
| Tax Area: | 512 - APPRAISER-Stan/Cam Schl Dist, improved, greater than 1 acre |
| CF | Conservation Futures | 0.0316035091 | $673,250 | $673,250 | $21.28 | | |
| EMS1 | Fire & Rescue Dist #1 Camano GEN (EMS) | 0.3677864386 | $673,250 | $673,250 | $247.61 | | |
| FIRE1 | Fire & Rescue Dist #1 Camano GEN | 1.2502910536 | $673,250 | $673,250 | $841.76 | | |
| FIRE1BOND | Fire & Rescue Dist #1 Camano BOND | 0.1570001679 | $673,250 | $673,250 | $105.70 | | |
| CE | County Current Expense | 0.3708482477 | $673,250 | $673,250 | $249.67 | | |
| CR | County Roads | 0.4584763726 | $673,250 | $673,250 | $308.67 | | |
| LCIB | Library Sno-Isle BOND (Camano Island) | 0.0396325772 | $673,250 | $673,250 | $26.68 | | |
| LIB | Library Sno-Isle GEN | 0.3153421757 | $673,250 | $673,250 | $212.30 | | |
| SCH205_401 | School 205-401 Enrichment | 1.2698420524 | $673,250 | $673,250 | $854.92 | | |
| SCH205BOND | School 205-401 BOND | 0.9396497583 | $673,250 | $673,250 | $632.62 | | |
| ST | State School | 1.3035497053 | $673,250 | $673,250 | $877.61 | | |
| ST2 | State School Part 2 | 0.8169543533 | $673,250 | $673,250 | $550.01 | | |
| | Total Tax Rate: | 7.3209764117 | | | | | |
| | | | | Taxes w/Current Exemptions: | $4,928.83 | | |
| | | | | Taxes w/o Exemptions: | $4,928.83 | | |
Improvement / Building
| Improvement #1: | RESIDENTIAL | State Code: | Y | 1624.0 sqft | Value: | $343,250 |
| Bathrooms: | 1.5 | Bedrooms: | 3 | | Ceiling: | BEAM PAINTED | Exterior Wall/Cover: | WOOD SIDING | | Floor Covering: | CARPET/VINYL 80-20 | Floor Structure: | WOOD W/SUBFLOOR | | Foundation: | CONCRETE | Heating: | FHA ELECTRIC | | Interior Finish: | DRYWALL PAINT | Plumbing Fixture Cnt: | 9 | | Roof Slope: | 4" IN 12" | Roof Structure/Cover: | BEAM ASPHALT |
|
| | Type | Description | Class CD | Sub Class CD | Year Built | Area |
| | BAS | BASE/MAIN FLOOR | 4 | 0 | 1978 | 1080.0 |
| | UPS | UPPER STORY | 4 | 0 | 1978 | 544.0 |
| | OWP | OPEN WOOD PORCH W/STEPS | 4 | 0 | 1978 | 1100.0 |
Sketch
Property Image
Land
| 1 | 32 | AC (03.01-09.99) | 7.2300 | 314938.80 | 0.00 | 0.00 | 1.00 | $330,000 | $0 |
Roll Value History
| 2026 | N/A | N/A | N/A | N/A | N/A |
| 2025 | $343,250 | $330,000 | $0 | $673,250 | $673,250 |
| 2024 | $342,083 | $300,000 | $0 | $642,083 | $642,083 |
| 2023 | $346,346 | $290,000 | $0 | $636,346 | $636,346 |
| 2022 | $293,309 | $290,000 | $0 | $583,309 | $583,309 |
| 2021 | $248,357 | $190,000 | $0 | $438,357 | $438,357 |
| 2020 | $242,318 | $160,000 | $0 | $402,318 | $402,318 |
| 2019 | $180,581 | $230,000 | $0 | $410,581 | $410,581 |
| 2018 | $181,137 | $175,000 | $0 | $356,137 | $356,137 |
| 2017 | $182,247 | $150,000 | $0 | $332,247 | $332,247 |
| 2016 | $184,471 | $125,000 | $0 | $309,471 | $309,471 |
| 2015 | $120,850 | $50,052 | $0 | $170,902 | $170,902 |
| 2014 | $122,749 | $50,052 | $0 | $172,801 | $69,120 |
| 2013 | $124,649 | $43,252 | $0 | $167,901 | $67,160 |
| 2012 | $126,548 | $43,252 | $0 | $169,800 | $67,920 |
| 2011 | $128,447 | $54,052 | $0 | $182,499 | $73,000 |
| 2010 | $138,188 | $54,052 | $0 | $192,240 | $76,896 |
| 2009 | $145,856 | $64,052 | $0 | $209,908 | $83,963 |
| 2008 | $147,916 | $64,052 | $0 | $211,968 | $211,968 |
| 2007 | $149,945 | $64,052 | $0 | $213,997 | $213,997 |
Deed and Sales History
| 1 | 08/30/2021 | WD | Warranty Deed | GARRINGER TTEE, GAVIN D | WHITE, ARON | | | $705,000.00 | 49965 | 4528720 |
| 2 | 08/31/2020 | WD | Warranty Deed | GARRINGER, GAVIN | GARRINGER TTEE, GAVIN D | | | $0.00 | 44844 | 4497206 |
| 3 | 02/17/2016 | WD | Warranty Deed | KESSLER, BONNIE | GARRINGER, GAVIN | | | $337,500.00 | 23218 | 4394435 |
| 4 | 04/01/1978 | OTHER | Other - Misc. Documents | Unknown | KESSLER, BONNIE | | | $13,500.00 | 81452 | 3305760 |
Payout Agreement
| No payout information available.. |