Property
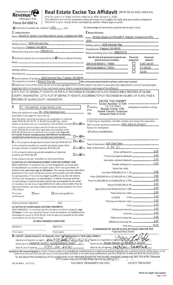
Account |
| Property ID: | 85197 | Abbreviated Legal Description: | 51 - S/2 NW SW SE TGW & SUBJ TO EZ |
| Geographic ID: | R23125-085-2960 | Agent Code: | |
| Type: | Real | | |
| Tax Area: | 512 - APPRAISER-Stan/Cam Schl Dist, improved, greater than 1 acre | Land Use Code | 11 |
| Open Space: | N | DFL | N |
| Historic Property: | N | Remodel Property: | N |
| Multi-Family Redevelopment: | N | | |
| Township: | 31 | Section: | 25 |
| Range: | R2 |
Location |
| Address: | 1940 CRANBERRY LN CAMANO ISLAND, WA 98282 | Mapsco: | |
| Neighborhood: | Cycle 5 | Map ID: | 509 |
| Neighborhood CD: | 5 |
Owner |
| Name: | VAUGHN, DAN L | Owner ID: | 4281 |
| Mailing Address: | 1940 CRANBERRY LN CAMANO ISLAND, WA 98282-6362 | % Ownership: | 100.0000000000% |
| | | Exemptions: | |
Taxes and Assessment Details
Values
| (+) Improvement Homesite Value: | + | $0 | |
| (+) Improvement Non-Homesite Value: | + | $309,695 | |
| (+) Land Homesite Value: | + | $0 | |
| (+) Land Non-Homesite Value: | + | $330,000 | |
| (+) Curr Use (HS): | + | $0 | $0 |
| (+) Curr Use (NHS): | + | $0 | $0 |
| | | -------------------------- | |
| (=) Market Value: | = | $639,695 | |
| (–) Productivity Loss: | – | $0 | |
| | | -------------------------- | |
| (=) Subtotal: | = | $639,695 | |
| (+) Senior Appraised Value: | + | $0 | |
| (+) Non-Senior Appraised Value: | + | $639,695 | |
| | | -------------------------- | |
| (=) Total Appraised Value: | = | $639,695 | |
| (–) Senior Exemption Loss: | – | $0 | |
| (–) Exemption Loss: | – | $0 | |
| | | -------------------------- | |
| (=) Taxable Value: | = | $639,695 | |
Taxing Jurisdiction
| Owner: | VAUGHN, DAN L | | |
| % Ownership: | 100.0000000000% | | |
| Total Value: | $639,695 | | |
| Tax Area: | 512 - APPRAISER-Stan/Cam Schl Dist, improved, greater than 1 acre |
| CF | Conservation Futures | 0.0316035091 | $639,695 | $639,695 | $20.22 | | |
| EMS1 | Fire & Rescue Dist #1 Camano GEN (EMS) | 0.3677864386 | $639,695 | $639,695 | $235.27 | | |
| FIRE1 | Fire & Rescue Dist #1 Camano GEN | 1.2502910536 | $639,695 | $639,695 | $799.80 | | |
| FIRE1BOND | Fire & Rescue Dist #1 Camano BOND | 0.1570001679 | $639,695 | $639,695 | $100.43 | | |
| CE | County Current Expense | 0.3708482477 | $639,695 | $639,695 | $237.23 | | |
| CR | County Roads | 0.4584763726 | $639,695 | $639,695 | $293.29 | | |
| LCIB | Library Sno-Isle BOND (Camano Island) | 0.0396325772 | $639,695 | $639,695 | $25.35 | | |
| LIB | Library Sno-Isle GEN | 0.3153421757 | $639,695 | $639,695 | $201.72 | | |
| SCH205_401 | School 205-401 Enrichment | 1.2698420524 | $639,695 | $639,695 | $812.31 | | |
| SCH205BOND | School 205-401 BOND | 0.9396497583 | $639,695 | $639,695 | $601.09 | | |
| ST | State School | 1.3035497053 | $639,695 | $639,695 | $833.87 | | |
| ST2 | State School Part 2 | 0.8169543533 | $639,695 | $639,695 | $522.60 | | |
| | Total Tax Rate: | 7.3209764117 | | | | | |
| | | | | Taxes w/Current Exemptions: | $4,683.18 | | |
| | | | | Taxes w/o Exemptions: | $4,683.18 | | |
Improvement / Building
| Improvement #1: | RESIDENTIAL | State Code: | Y | 1882.5 sqft | Value: | $309,695 |
| Bathrooms: | 2.5 | Bedrooms: | 4 | | Ceiling: | DRYWALL PAINTED | Exterior Wall/Cover: | WOOD SIDING | | Floor Covering: | HARDWOOD/CARP 60-40 | Floor Structure: | WOOD W/SUBFLOOR | | Foundation: | CONCRETE | Heating: | FHA ELECTRIC | | Interior Finish: | DRYWALL PAINT | Plumbing Fixture Cnt: | 11 | | Roof Slope: | 3" IN 12" | Roof Structure/Cover: | CJ ASPHALT |
|
| | Type | Description | Class CD | Sub Class CD | Year Built | Area |
| | BAS | BASE/MAIN FLOOR | 3 | 0 | 1983 | 994.5 |
| | AGR | ATTACHED GARAGE | 3 | 0 | 1983 | 471.2 |
| | UTY | STORAGE/UTILITY | 3 | 0 | 1983 | 72.0 |
| | UPS | UPPER STORY | 3 | 0 | 1983 | 888.0 |
| | OWC | OPEN WOOD PORCH W/STEPS/ROOF/C | 3 | 0 | 1983 | 157.5 |
| | DGR | DETACHED GARAGE | 3 | 0 | 1983 | 800.0 |
| | OWP | OPEN WOOD PORCH W/STEPS | 3 | 0 | 1983 | 182.0 |
Sketch
Property Image
Land
| 1 | 32 | AC (03.01-09.99) | 5.0000 | 0.00 | 0.00 | 0.00 | 1.00 | $330,000 | $0 |
Roll Value History
| 2026 | N/A | N/A | N/A | N/A | N/A |
| 2025 | $309,695 | $330,000 | $0 | $639,695 | $639,695 |
| 2024 | $314,042 | $300,000 | $0 | $614,042 | $614,042 |
| 2023 | $318,387 | $290,000 | $0 | $608,387 | $608,387 |
| 2022 | $292,237 | $260,000 | $0 | $552,237 | $552,237 |
| 2021 | $227,615 | $190,000 | $0 | $417,615 | $417,615 |
| 2020 | $222,328 | $160,000 | $0 | $382,328 | $382,328 |
| 2019 | $165,644 | $230,000 | $0 | $395,644 | $395,644 |
| 2018 | $166,209 | $175,000 | $0 | $341,209 | $341,209 |
| 2017 | $167,339 | $150,000 | $0 | $317,339 | $317,339 |
| 2016 | $169,600 | $125,000 | $0 | $294,600 | $294,600 |
| 2015 | $158,241 | $125,000 | $0 | $283,241 | $283,241 |
| 2014 | $160,270 | $125,000 | $0 | $285,270 | $285,270 |
| 2013 | $162,299 | $108,000 | $0 | $270,299 | $270,299 |
| 2012 | $164,327 | $108,000 | $0 | $272,327 | $272,327 |
| 2011 | $166,356 | $135,000 | $0 | $301,356 | $301,356 |
| 2010 | $177,215 | $135,000 | $0 | $312,215 | $312,215 |
| 2009 | $192,037 | $160,000 | $0 | $352,037 | $352,037 |
| 2008 | $195,020 | $160,000 | $0 | $355,020 | $355,020 |
| 2007 | $195,981 | $160,000 | $0 | $355,981 | $355,981 |
Deed and Sales History
| 1 | 03/01/1994 | DECREE | Divorce Decree/Legal Separation | VAUGHN, DAN L | VAUGHN, DAN L | | | $0.00 | 40937 | 94006150 |
| 2 | 01/01/1983 | REC | Real Estate Contract | ATKINSON, L E | VAUGHN, DAN L | | | $18,500.00 | 30154 | 405032 |
| 3 | 03/01/1979 | OTHER | Other - Misc. Documents | , | ATKINSON, L E | | | $0.00 | 91692 | 350838 |
| 4 | 06/01/1978 | OTHER | Other - Misc. Documents | Unknown | , | | | $11,500.00 | 825640 | 3339320 |
Payout Agreement
| No payout information available.. |