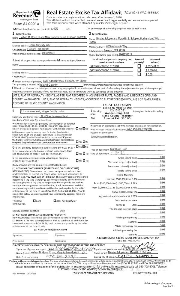
Property
Account |
| Property ID: | 85204 | Abbreviated Legal Description: | 52 - S/2 NE SW SE TGW & SUBJ EZ |
| Geographic ID: | R23125-085-3630 | Agent Code: | |
| Type: | Real | | |
| Tax Area: | 512 - APPRAISER-Stan/Cam Schl Dist, improved, greater than 1 acre | Land Use Code | 11 |
| Open Space: | N | DFL | N |
| Historic Property: | N | Remodel Property: | N |
| Multi-Family Redevelopment: | N | | |
| Township: | 31 | Section: | 25 |
| Range: | R2 |
Location |
| Address: | 1941 CRANBERRY LN CAMANO ISLAND, WA 98282 | Mapsco: | |
| Neighborhood: | Cycle 5 | Map ID: | 509 |
| Neighborhood CD: | 5 |
Owner |
| Name: | FALKNER, MITCHELL A | Owner ID: | 194677 |
| Mailing Address: | BRIANNE FALKNER 1941 CRANBERRY LN CAMANO ISLAND, WA 98282-6362 | % Ownership: | 100.0000000000% |
| | | Exemptions: | |
Taxes and Assessment Details
Values
| (+) Improvement Homesite Value: | + | $0 | |
| (+) Improvement Non-Homesite Value: | + | $395,139 | |
| (+) Land Homesite Value: | + | $0 | |
| (+) Land Non-Homesite Value: | + | $330,000 | |
| (+) Curr Use (HS): | + | $0 | $0 |
| (+) Curr Use (NHS): | + | $0 | $0 |
| | | -------------------------- | |
| (=) Market Value: | = | $725,139 | |
| (–) Productivity Loss: | – | $0 | |
| | | -------------------------- | |
| (=) Subtotal: | = | $725,139 | |
| (+) Senior Appraised Value: | + | $0 | |
| (+) Non-Senior Appraised Value: | + | $725,139 | |
| | | -------------------------- | |
| (=) Total Appraised Value: | = | $725,139 | |
| (–) Senior Exemption Loss: | – | $0 | |
| (–) Exemption Loss: | – | $0 | |
| | | -------------------------- | |
| (=) Taxable Value: | = | $725,139 | |
Taxing Jurisdiction
| Owner: | FALKNER, MITCHELL A | | |
| % Ownership: | 100.0000000000% | | |
| Total Value: | $725,139 | | |
| Tax Area: | 512 - APPRAISER-Stan/Cam Schl Dist, improved, greater than 1 acre |
| CF | Conservation Futures | 0.0316035091 | $725,139 | $725,139 | $22.92 | | |
| EMS1 | Fire & Rescue Dist #1 Camano GEN (EMS) | 0.3677864386 | $725,139 | $725,139 | $266.70 | | |
| FIRE1 | Fire & Rescue Dist #1 Camano GEN | 1.2502910536 | $725,139 | $725,139 | $906.63 | | |
| FIRE1BOND | Fire & Rescue Dist #1 Camano BOND | 0.1570001679 | $725,139 | $725,139 | $113.85 | | |
| CE | County Current Expense | 0.3708482477 | $725,139 | $725,139 | $268.92 | | |
| CR | County Roads | 0.4584763726 | $725,139 | $725,139 | $332.46 | | |
| LCIB | Library Sno-Isle BOND (Camano Island) | 0.0396325772 | $725,139 | $725,139 | $28.74 | | |
| LIB | Library Sno-Isle GEN | 0.3153421757 | $725,139 | $725,139 | $228.67 | | |
| SCH205_401 | School 205-401 Enrichment | 1.2698420524 | $725,139 | $725,139 | $920.81 | | |
| SCH205BOND | School 205-401 BOND | 0.9396497583 | $725,139 | $725,139 | $681.38 | | |
| ST | State School | 1.3035497053 | $725,139 | $725,139 | $945.25 | | |
| ST2 | State School Part 2 | 0.8169543533 | $725,139 | $725,139 | $592.41 | | |
| | Total Tax Rate: | 7.3209764117 | | | | | |
| | | | | Taxes w/Current Exemptions: | $5,308.74 | | |
| | | | | Taxes w/o Exemptions: | $5,308.74 | | |
Improvement / Building
| Improvement #1: | RESIDENTIAL | State Code: | Y | 1752.4 sqft | Value: | $269,249 |
| Bathrooms: | 2 | Bedrooms: | 2 | | Ceiling: | TONGUE & GROOVE | Exterior Wall/Cover: | CEMENT FIBER | | Floor Covering: | VINYL/HARDWOOD 20-80 | Floor Structure: | WOOD W/SUBFLOOR | | Foundation: | CONCRETE | Heating: | FHA ELECTRIC | | Interior Finish: | DRYWALL PAINT | Plumbing Fixture Cnt: | 9 | | Roof Slope: | 8" IN 12" | Roof Structure/Cover: | BEAM ASPHALT |
|
| | Type | Description | Class CD | Sub Class CD | Year Built | Area |
| | BAS | BASE/MAIN FLOOR | 3 | 0 | 1978 | 1432.4 |
| | OP2 | OPEN PORCH W/STEPS | 3 | 0 | 1978 | 583.6 |
| | OWR | OPEN WOOD PORCH W/STEPS/ROOF | 3 | 0 | 1978 | 533.0 |
| | LOF | LOFT | 3 | 0 | 1978 | 320.0 |
| Improvement #2: | RESIDENTIAL | State Code: | Y | 1033.6 sqft | Value: | $125,890 |
| Bathrooms: | 1 | Bedrooms: | 1 | | Ceiling: | (NONE) | Exterior Wall/Cover: | WOOD SIDING | | Floor Covering: | (NONE) | Floor Structure: | WOOD W/SUBFLOOR | | Foundation: | CONCRETE | Interior Finish: | (NONE) | | Plumbing Fixture Cnt: | 6 | Roof Slope: | 4" IN 12" | | Roof Structure/Cover: | CJ ASPHALT |   |   |
|
| | Type | Description | Class CD | Sub Class CD | Year Built | Area |
| | BAS | BASE/MAIN FLOOR | 3 | 0 | 2003 | 1033.6 |
| | OP3 | OPEN PORCH W/ROOF | 3 | 0 | 2003 | 211.2 |
| | AGR | ATTACHED GARAGE | 3 | 0 | 2003 | 233.6 |
| | CPD | OPEN CARPORT DIRT FLOOR | 3 | 0 | 2003 | 576.0 |
Sketch
Property Image
Land
| 1 | 32 | AC (03.01-09.99) | 5.0000 | 0.00 | 0.00 | 0.00 | 1.00 | $330,000 | $0 |
Roll Value History
| 2026 | N/A | N/A | N/A | N/A | N/A |
| 2025 | $395,139 | $330,000 | $0 | $725,139 | $725,139 |
| 2024 | $400,424 | $300,000 | $0 | $700,424 | $700,424 |
| 2023 | $405,707 | $290,000 | $0 | $695,707 | $695,707 |
| 2022 | $372,163 | $260,000 | $0 | $632,163 | $632,163 |
| 2021 | $280,335 | $190,000 | $0 | $470,335 | $470,335 |
| 2020 | $273,949 | $160,000 | $0 | $433,949 | $433,949 |
| 2019 | $199,355 | $230,000 | $0 | $429,355 | $429,355 |
| 2018 | $200,041 | $175,000 | $0 | $375,041 | $375,041 |
| 2017 | $201,322 | $150,000 | $0 | $351,322 | $351,322 |
| 2016 | $204,064 | $125,000 | $0 | $329,064 | $329,064 |
| 2015 | $195,480 | $125,000 | $0 | $320,480 | $320,480 |
| 2014 | $198,156 | $125,000 | $0 | $323,156 | $323,156 |
| 2013 | $200,833 | $108,000 | $0 | $308,833 | $308,833 |
| 2012 | $203,508 | $108,000 | $0 | $311,508 | $311,508 |
| 2011 | $206,184 | $135,000 | $0 | $341,184 | $341,184 |
| 2010 | $205,420 | $135,000 | $0 | $340,420 | $340,420 |
| 2009 | $203,781 | $160,114 | $0 | $363,895 | $363,895 |
| 2008 | $209,656 | $158,162 | $0 | $367,818 | $367,818 |
| 2007 | $155,705 | $160,000 | $0 | $315,705 | $315,705 |
Deed and Sales History
| 1 | 04/18/2005 | WD | Warranty Deed | WHITE, JOHN L | FALKNER, MITCHELL A | | | $199,000.00 | 51714 | 4132124 |
| 2 | 07/01/1988 | WD | Warranty Deed | HOWE, GORDON | WHITE, JOHN L | | | $46,300.00 | 82162 | 88007950 |
| 3 | 05/01/1979 | EZ | Easement | AUSTIN, KAREN M | HOWE, GORDON | | | $36,184.00 | 92801 | 353684 |
| 4 | 05/01/1978 | OTHER | Other - Misc. Documents | Unknown | AUSTIN, KAREN M | | | $22,000.00 | 82434 | 333555 |
Payout Agreement
| No payout information available.. |