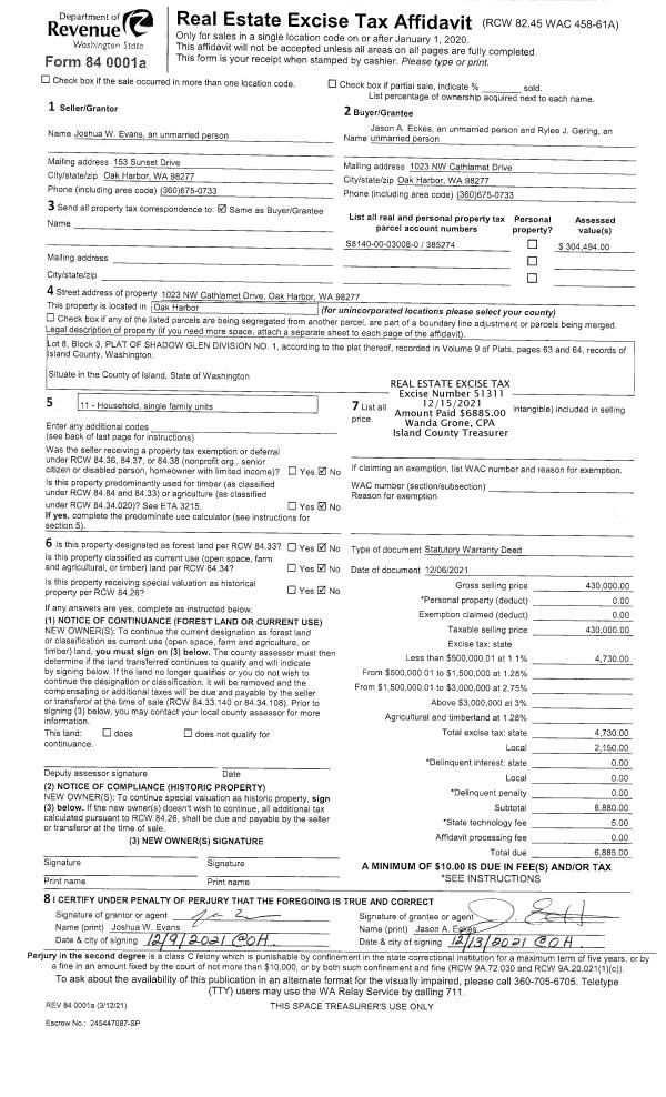
Property
Account |
| Property ID: | 85259 | Abbreviated Legal Description: | 53 - N/2 NE SW SE EX N30' TGW SUB EZ |
| Geographic ID: | R23125-116-3630 | Agent Code: | |
| Type: | Real | | |
| Tax Area: | 512 - APPRAISER-Stan/Cam Schl Dist, improved, greater than 1 acre | Land Use Code | 11 |
| Open Space: | N | DFL | N |
| Historic Property: | N | Remodel Property: | N |
| Multi-Family Redevelopment: | N | | |
| Township: | 31 | Section: | 25 |
| Range: | R2 |
Location |
| Address: | 1915 CRANBERRY LN CAMANO ISLAND, WA 98282 | Mapsco: | |
| Neighborhood: | Cycle 5 | Map ID: | 509 |
| Neighborhood CD: | 5 |
Owner |
| Name: | CUNNINGHAM, MAUREEN MARY | Owner ID: | 269303 |
| Mailing Address: | 30502 237TH DR NE ARLINGTON, WA 98223 | % Ownership: | 100.0000000000% |
| | | Exemptions: | |
Taxes and Assessment Details
Values
| (+) Improvement Homesite Value: | + | $0 | |
| (+) Improvement Non-Homesite Value: | + | $60,000 | |
| (+) Land Homesite Value: | + | $0 | |
| (+) Land Non-Homesite Value: | + | $240,000 | |
| (+) Curr Use (HS): | + | $0 | $0 |
| (+) Curr Use (NHS): | + | $0 | $0 |
| | | -------------------------- | |
| (=) Market Value: | = | $300,000 | |
| (–) Productivity Loss: | – | $0 | |
| | | -------------------------- | |
| (=) Subtotal: | = | $300,000 | |
| (+) Senior Appraised Value: | + | $0 | |
| (+) Non-Senior Appraised Value: | + | $300,000 | |
| | | -------------------------- | |
| (=) Total Appraised Value: | = | $300,000 | |
| (–) Senior Exemption Loss: | – | $0 | |
| (–) Exemption Loss: | – | $0 | |
| | | -------------------------- | |
| (=) Taxable Value: | = | $300,000 | |
Taxing Jurisdiction
| Owner: | CUNNINGHAM, MAUREEN MARY | | |
| % Ownership: | 100.0000000000% | | |
| Total Value: | $300,000 | | |
| Tax Area: | 512 - APPRAISER-Stan/Cam Schl Dist, improved, greater than 1 acre |
| CF | Conservation Futures | 0.0316035091 | $300,000 | $300,000 | $9.48 | | |
| EMS1 | Fire & Rescue Dist #1 Camano GEN (EMS) | 0.3677864386 | $300,000 | $300,000 | $110.34 | | |
| FIRE1 | Fire & Rescue Dist #1 Camano GEN | 1.2502910536 | $300,000 | $300,000 | $375.09 | | |
| FIRE1BOND | Fire & Rescue Dist #1 Camano BOND | 0.1570001679 | $300,000 | $300,000 | $47.10 | | |
| CE | County Current Expense | 0.3708482477 | $300,000 | $300,000 | $111.25 | | |
| CR | County Roads | 0.4584763726 | $300,000 | $300,000 | $137.54 | | |
| LCIB | Library Sno-Isle BOND (Camano Island) | 0.0396325772 | $300,000 | $300,000 | $11.89 | | |
| LIB | Library Sno-Isle GEN | 0.3153421757 | $300,000 | $300,000 | $94.60 | | |
| SCH205_401 | School 205-401 Enrichment | 1.2698420524 | $300,000 | $300,000 | $380.95 | | |
| SCH205BOND | School 205-401 BOND | 0.9396497583 | $300,000 | $300,000 | $281.89 | | |
| ST | State School | 1.3035497053 | $300,000 | $300,000 | $391.06 | | |
| ST2 | State School Part 2 | 0.8169543533 | $300,000 | $300,000 | $245.09 | | |
| | Total Tax Rate: | 7.3209764117 | | | | | |
| | | | | Taxes w/Current Exemptions: | $2,196.28 | | |
| | | | | Taxes w/o Exemptions: | $2,196.28 | | |
Improvement / Building
| Improvement #1: | MISC | State Code: | Y | 0.0 sqft | Value: | $60,000 |
Sketch
Property Image
Land
| 1 | 32 | AC (03.01-09.99) | 4.5500 | 0.00 | 0.00 | 0.00 | 1.00 | $240,000 | $0 |
Roll Value History
| 2026 | N/A | N/A | N/A | N/A | N/A |
| 2025 | $60,000 | $240,000 | $0 | $300,000 | $300,000 |
| 2024 | $60,000 | $220,000 | $0 | $280,000 | $280,000 |
| 2023 | $60,000 | $200,000 | $0 | $260,000 | $260,000 |
| 2022 | $60,000 | $180,000 | $0 | $240,000 | $240,000 |
| 2021 | $40,000 | $140,000 | $0 | $180,000 | $180,000 |
| 2020 | $40,000 | $100,000 | $0 | $140,000 | $140,000 |
| 2019 | $40,000 | $100,000 | $0 | $140,000 | $140,000 |
| 2018 | $40,000 | $175,000 | $0 | $215,000 | $215,000 |
| 2017 | $40,000 | $150,000 | $0 | $190,000 | $190,000 |
| 2016 | $40,000 | $125,000 | $0 | $165,000 | $165,000 |
| 2015 | $46,313 | $113,750 | $0 | $160,063 | $160,063 |
| 2014 | $46,313 | $113,750 | $0 | $160,063 | $160,063 |
| 2013 | $46,313 | $98,280 | $0 | $144,593 | $144,593 |
| 2012 | $46,313 | $98,280 | $0 | $144,593 | $144,593 |
| 2011 | $46,313 | $122,850 | $0 | $169,163 | $169,163 |
| 2010 | $46,313 | $122,850 | $0 | $169,163 | $169,163 |
| 2009 | $47,288 | $136,500 | $0 | $183,788 | $183,788 |
| 2008 | $47,775 | $95,550 | $0 | $143,325 | $143,325 |
| 2007 | $9,484 | $95,894 | $0 | $105,378 | $105,378 |
Deed and Sales History
| 1 | 02/11/2015 | WD | Warranty Deed | CUNNINGHAM, LAWRENCE | CUNNINGHAM, MAUREEN MARY | | | $0.00 | 18581 | 4373821 |
| 2 | 05/20/2005 | WD | Warranty Deed | WHITE, JOHN L | CUNNINGHAM, LAWRENCE | | | $95,000.00 | 52659 | 4136964 |
| 3 | 07/01/1988 | WD | Warranty Deed | HOWE, GORDON D | WHITE, JOHN L | | | $18,700.00 | 82162 | 88007950 |
| 4 | 05/01/1979 | EZ | Easement | COOPER, LAVERN J | HOWE, GORDON D | | | $36,184.00 | 92801 | 353684 |
| 5 | 01/01/1900 | OTHER | Other - Misc. Documents | Unknown | COOPER, LAVERN J | | | $0.00 | 0 | 0 |
Payout Agreement
| No payout information available.. |