Property
Account |
| Property ID: | 85400 | Abbreviated Legal Description: | 36 - S/2 N/2 W/2 SE SE NE SUBJ TO EZ |
| Geographic ID: | R23125-307-4800 | Agent Code: | |
| Type: | Real | | |
| Tax Area: | 512 - APPRAISER-Stan/Cam Schl Dist, improved, greater than 1 acre | Land Use Code | 11 |
| Open Space: | N | DFL | N |
| Historic Property: | N | Remodel Property: | N |
| Multi-Family Redevelopment: | N | | |
| Township: | 31 | Section: | 25 |
| Range: | R2 |
Location |
| Address: | 43 W DRY LAKE RD CAMANO IS, WA 98282 | Mapsco: | |
| Neighborhood: | Cycle 5 | Map ID: | 511 |
| Neighborhood CD: | 5 |
Owner |
| Name: | GOLDER, JED ALLEN | Owner ID: | 303175 |
| Mailing Address: | SARAH ANNE EDVALDS 43 W DRY LAKE ROAD CAMANO ISLAND, WA 98282 | % Ownership: | 100.0000000000% |
| | | Exemptions: | |
Taxes and Assessment Details
Values
| (+) Improvement Homesite Value: | + | $0 | |
| (+) Improvement Non-Homesite Value: | + | $529,845 | |
| (+) Land Homesite Value: | + | $0 | |
| (+) Land Non-Homesite Value: | + | $260,000 | |
| (+) Curr Use (HS): | + | $0 | $0 |
| (+) Curr Use (NHS): | + | $0 | $0 |
| | | -------------------------- | |
| (=) Market Value: | = | $789,845 | |
| (–) Productivity Loss: | – | $0 | |
| | | -------------------------- | |
| (=) Subtotal: | = | $789,845 | |
| (+) Senior Appraised Value: | + | $0 | |
| (+) Non-Senior Appraised Value: | + | $789,845 | |
| | | -------------------------- | |
| (=) Total Appraised Value: | = | $789,845 | |
| (–) Senior Exemption Loss: | – | $0 | |
| (–) Exemption Loss: | – | $0 | |
| | | -------------------------- | |
| (=) Taxable Value: | = | $789,845 | |
Taxing Jurisdiction
| Owner: | GOLDER, JED ALLEN | | |
| % Ownership: | 100.0000000000% | | |
| Total Value: | $789,845 | | |
| Tax Area: | 512 - APPRAISER-Stan/Cam Schl Dist, improved, greater than 1 acre |
| CF | Conservation Futures | 0.0316035091 | $789,845 | $789,845 | $24.96 | | |
| EMS1 | Fire & Rescue Dist #1 Camano GEN (EMS) | 0.3677864386 | $789,845 | $789,845 | $290.49 | | |
| FIRE1 | Fire & Rescue Dist #1 Camano GEN | 1.2502910536 | $789,845 | $789,845 | $987.54 | | |
| FIRE1BOND | Fire & Rescue Dist #1 Camano BOND | 0.1570001679 | $789,845 | $789,845 | $124.01 | | |
| CE | County Current Expense | 0.3708482477 | $789,845 | $789,845 | $292.91 | | |
| CR | County Roads | 0.4584763726 | $789,845 | $789,845 | $362.13 | | |
| LCIB | Library Sno-Isle BOND (Camano Island) | 0.0396325772 | $789,845 | $789,845 | $31.30 | | |
| LIB | Library Sno-Isle GEN | 0.3153421757 | $789,845 | $789,845 | $249.07 | | |
| SCH205_401 | School 205-401 Enrichment | 1.2698420524 | $789,845 | $789,845 | $1,002.98 | | |
| SCH205BOND | School 205-401 BOND | 0.9396497583 | $789,845 | $789,845 | $742.18 | | |
| ST | State School | 1.3035497053 | $789,845 | $789,845 | $1,029.60 | | |
| ST2 | State School Part 2 | 0.8169543533 | $789,845 | $789,845 | $645.27 | | |
| | Total Tax Rate: | 7.3209764117 | | | | | |
| | | | | Taxes w/Current Exemptions: | $5,782.44 | | |
| | | | | Taxes w/o Exemptions: | $5,782.44 | | |
Improvement / Building
| Improvement #1: | RESIDENTIAL | State Code: | Y | 2174.0 sqft | Value: | $529,845 |
| Bathrooms: | 2.5 | Bedrooms: | 3 | | Ceiling: | DRYWALL PAINTED | Cooling: | HEAT PUMP/CONV/V | | Exterior Wall/Cover: | CEMENT FIBER | Floor Covering: | HARDWOOD/CARP 60-40 | | Floor Structure: | WOOD W/SUBFLOOR | Foundation: | CONCRETE | | Interior Finish: | DRYWALL PAINT | Plumbing Fixture Cnt: | 13 | | Roof Slope: | 6" IN 12" | Roof Structure/Cover: | CJ ASPHALT |
|
| | Type | Description | Class CD | Sub Class CD | Year Built | Area |
| | BAS | BASE/MAIN FLOOR | 4 | 0 | 2021 | 2174.0 |
| | AGR | ATTACHED GARAGE | 4 | 0 | 2021 | 528.0 |
| | OWC | OPEN WOOD PORCH W/STEPS/ROOF/C | 4 | 0 | 2021 | 258.8 |
Sketch
Property Image
Land
| 1 | 17 | AC (01.01-02.00) | 1.2500 | 54450.00 | 0.00 | 0.00 | 1.00 | $260,000 | $0 |
Roll Value History
| 2026 | N/A | N/A | N/A | N/A | N/A |
| 2025 | $529,845 | $260,000 | $0 | $789,845 | $789,845 |
| 2024 | $535,408 | $240,000 | $0 | $775,408 | $775,408 |
| 2023 | $545,143 | $220,000 | $0 | $765,143 | $765,143 |
| 2022 | $503,706 | $240,000 | $0 | $743,706 | $743,706 |
| 2021 | $0 | $80,000 | $0 | $80,000 | $80,000 |
| 2020 | $0 | $80,000 | $0 | $80,000 | $80,000 |
| 2019 | $0 | $70,000 | $0 | $70,000 | $70,000 |
| 2018 | $0 | $65,000 | $0 | $65,000 | $65,000 |
| 2017 | $0 | $65,000 | $0 | $65,000 | $65,000 |
| 2016 | $0 | $70,000 | $0 | $70,000 | $70,000 |
| 2015 | $0 | $65,000 | $0 | $65,000 | $65,000 |
| 2014 | $0 | $65,000 | $0 | $65,000 | $65,000 |
| 2013 | $0 | $65,000 | $0 | $65,000 | $65,000 |
| 2012 | $0 | $65,000 | $0 | $65,000 | $65,000 |
| 2011 | $0 | $90,000 | $0 | $90,000 | $90,000 |
| 2010 | $0 | $90,000 | $0 | $90,000 | $90,000 |
| 2009 | $0 | $120,000 | $0 | $120,000 | $120,000 |
| 2008 | $0 | $120,000 | $0 | $120,000 | $120,000 |
| 2007 | $0 | $90,000 | $0 | $90,000 | $90,000 |
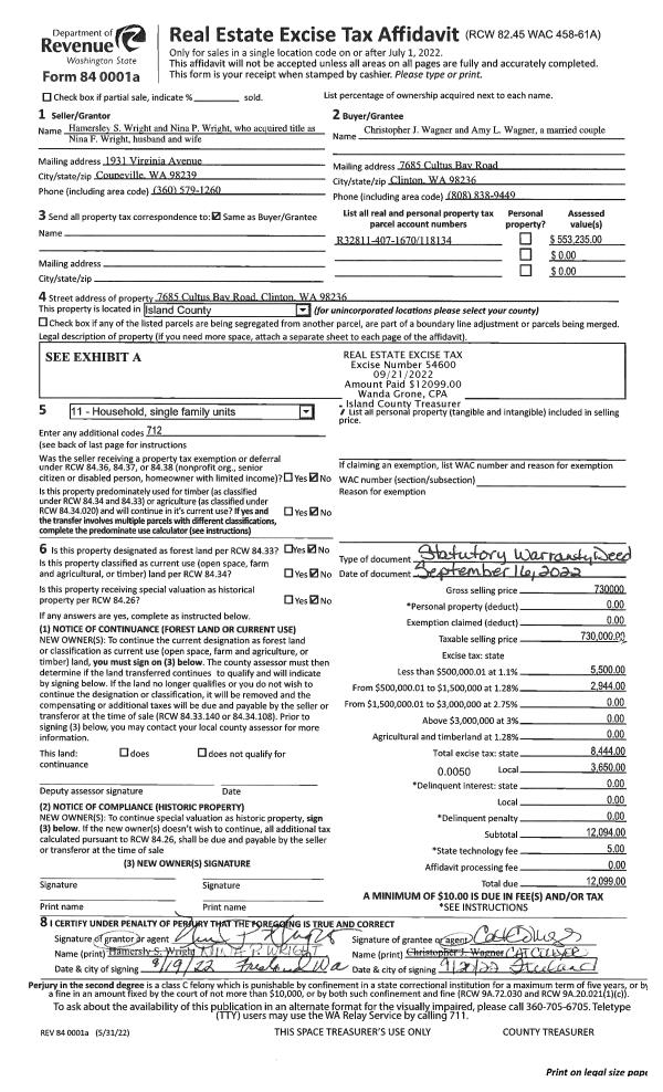
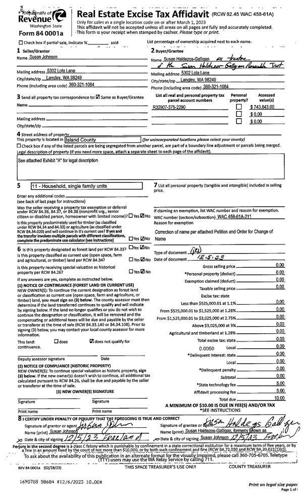
Deed and Sales History
| 1 | 02/16/2022 | WD | Warranty Deed | BOOTS GENERAL CONTRACTING, INC | GOLDER, JED ALLEN | | | $799,000.00 | 52125 | 4540659 |
| 2 | 03/04/2021 | WD | Warranty Deed | CANIGLIA, MICHAEL S | BOOTS GENERAL CONTRACTING, INC | | | $110,000.00 | 47225 | 4512792 |
| 3 | 10/24/2005 | WD | Warranty Deed | MOODIE, MARIETTE F | CANIGLIA, MICHAEL S | | | $48,807.00 | 55597 | 4153171 |
| 4 | 02/18/2003 | SEG | DNU - Segregation | MOODIE, MARIETTE F | MOODIE, MARIETTE F | | | $0.00 | 69723 | 0 |
| 5 | 02/01/1991 | OTHER | Other - Misc. Documents | MOODIE, WILLIAM D | MOODIE, MARIETTE F | | | $0.00 | 64065 | 0 |
| 6 | 01/01/1900 | OTHER | Other - Misc. Documents | Unknown | MOODIE, WILLIAM D | | | $0.00 | 0 | 0 |
Payout Agreement
| No payout information available.. |