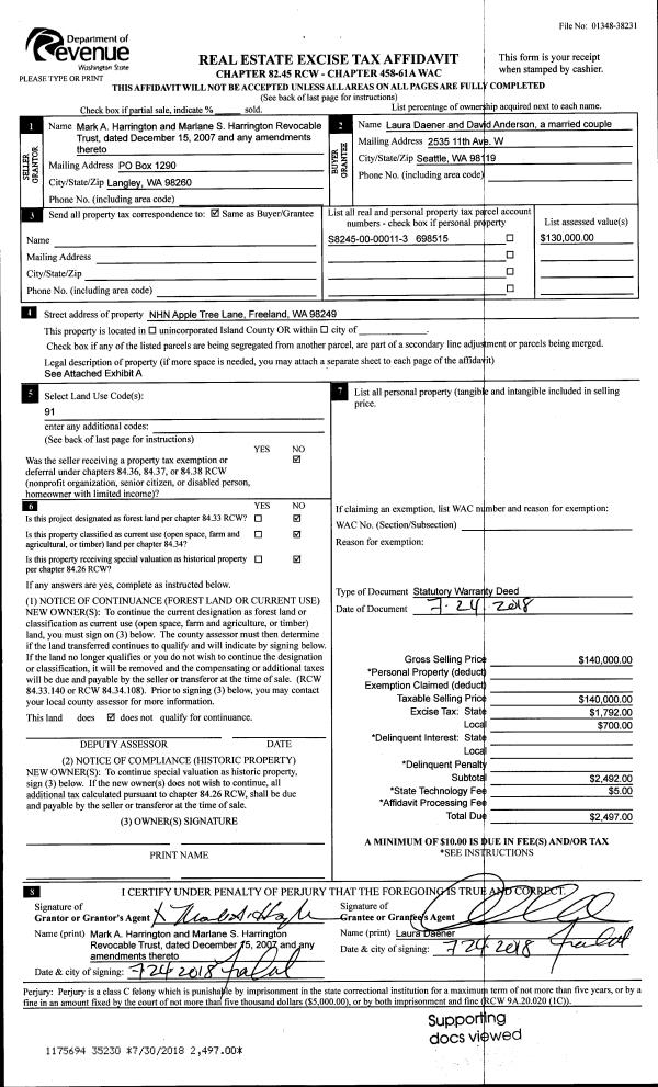
Property
Account |
| Property ID: | 8547 | Abbreviated Legal Description: | 25 - TR 3 V4P21 GOOD DESC - N333.5' OF S673.5' OF NE NE LY W OF CLN 60' EZ AF70089 AF321212 |
| Geographic ID: | R13112-447-4290 | Agent Code: | |
| Type: | Real | | |
| Tax Area: | 312 - APPRAISER-Cpvl Schl Dist, outside Cpvl, improved, greater than 1 acre | Land Use Code | 11 |
| Open Space: | N | DFL | N |
| Historic Property: | N | Remodel Property: | N |
| Multi-Family Redevelopment: | N | | |
| Township: | 31 | Section: | 12 |
| Range: | R1 |
Location |
| Address: | 458 WANDERING LN COUPEVILLE, WA 98239 | Mapsco: | |
| Neighborhood: | Cycle 2 | Map ID: | 57 |
| Neighborhood CD: | 2 |
Owner |
| Name: | BOTTOM, BERT G | Owner ID: | 285876 |
| Mailing Address: | 451 WANDERING LN COUPEVILLE, WA 98239 | % Ownership: | 100.0000000000% |
| | | Exemptions: | |
Taxes and Assessment Details
Values
| (+) Improvement Homesite Value: | + | $0 | |
| (+) Improvement Non-Homesite Value: | + | $50,642 | |
| (+) Land Homesite Value: | + | $0 | |
| (+) Land Non-Homesite Value: | + | $340,050 | |
| (+) Curr Use (HS): | + | $0 | $0 |
| (+) Curr Use (NHS): | + | $0 | $0 |
| | | -------------------------- | |
| (=) Market Value: | = | $390,692 | |
| (–) Productivity Loss: | – | $0 | |
| | | -------------------------- | |
| (=) Subtotal: | = | $390,692 | |
| (+) Senior Appraised Value: | + | $0 | |
| (+) Non-Senior Appraised Value: | + | $390,692 | |
| | | -------------------------- | |
| (=) Total Appraised Value: | = | $390,692 | |
| (–) Senior Exemption Loss: | – | $0 | |
| (–) Exemption Loss: | – | $0 | |
| | | -------------------------- | |
| (=) Taxable Value: | = | $390,692 | |
Taxing Jurisdiction
| Owner: | BOTTOM, BERT G | | |
| % Ownership: | 100.0000000000% | | |
| Total Value: | $390,692 | | |
| Tax Area: | 312 - APPRAISER-Cpvl Schl Dist, outside Cpvl, improved, greater than 1 acre |
| CF | Conservation Futures | 0.0316035091 | $390,692 | $390,692 | $12.35 | | |
| CEM2 | Cemetery #2 | 0.0095056933 | $390,692 | $390,692 | $3.71 | | |
| FIRE5 | Fire & Rescue Dist #5 C Whidbey GEN | 1.2008080668 | $390,692 | $390,692 | $469.15 | | |
| FIRE5BOND | Fire & Rescue Dist #5 C Whidbey BOND | 0.1400090713 | $390,692 | $390,692 | $54.70 | | |
| HOBOND | Hospital BOND | 0.1910887512 | $390,692 | $390,692 | $74.66 | | |
| HOGEN | Hospital GEN | 0.3902502903 | $390,692 | $390,692 | $152.47 | | |
| CE | County Current Expense | 0.3708482477 | $390,692 | $390,692 | $144.89 | | |
| CR | County Roads | 0.4584763726 | $390,692 | $390,692 | $179.12 | | |
| ISLANDEMS | Hospital GEN (EMS) | 0.5000000000 | $390,692 | $390,692 | $195.35 | | |
| LIB | Library Sno-Isle GEN | 0.3153421757 | $390,692 | $390,692 | $123.20 | | |
| LIBCAP | Library Sno-Isle BOND (Cap Fac Imp Area) | 0.0543427938 | $390,692 | $390,692 | $21.23 | | |
| POCOUP | Port of Coupeville GEN | 0.1093371703 | $390,692 | $390,692 | $42.72 | | |
| POCOUPIDD | Port of Coupeville IDD | 0.3409740022 | $390,692 | $390,692 | $133.22 | | |
| COUPSDTECH | School 204 CP (TECH) | 0.7545480007 | $390,692 | $390,692 | $294.80 | | |
| SCH204MO | School 204 Enrichment | 0.6716186034 | $390,692 | $390,692 | $262.40 | | |
| ST | State School | 1.3035497053 | $390,692 | $390,692 | $509.29 | | |
| ST2 | State School Part 2 | 0.8169543533 | $390,692 | $390,692 | $319.18 | | |
| | Total Tax Rate: | 7.6592568070 | | | | | |
| | | | | Taxes w/Current Exemptions: | $2,992.44 | | |
| | | | | Taxes w/o Exemptions: | $2,992.44 | | |
Improvement / Building
| Improvement #1: | MANUFACTURED HOME | State Code: | Y | 1344.0 sqft | Value: | $50,642 |
| Bathrooms: | 2 | Bedrooms: | 3 | | Ceiling: | PLASTER PAINTED | Cooling: | EVAP NO DUCT | | Exterior Wall/Cover: | VINYL | Floor Covering: | CARPET 100% | | Floor Structure: | SLAB ON GRADE | Foundation: | SLAB | | Heating: | FHA ELECTRIC | Interior Finish: | PLASTER | | Plumbing Fixture Cnt: | 1 | Roof Slope: | FLAT | | Roof Structure/Cover: | CJ ALUMINIUM HEAVY |   |   |
|
| | Type | Description | Class CD | Sub Class CD | Year Built | Area |
| | BAS | BASE/MAIN FLOOR | 4 | 0 | 1978 | 1344.0 |
| | oUTI | UTILITY | 2 | 0 | 1978 | 1792.0 |
| | OWP | OPEN WOOD PORCH W/STEPS | 4 | 0 | 1978 | 88.0 |
Sketch
| No sketches available for this property. |
Property Image
Land
| 1 | HS | HOMESITE | 1.0000 | 43560.00 | 0.00 | 0.00 | 1.00 | $220,000 | $0 |
| 2 | 91 | UNDEVELOPED LAND-METES AND BOUNDS | 4.0100 | 174675.60 | 0.00 | 0.00 | 1.00 | $120,050 | $0 |
Roll Value History
| 2026 | N/A | N/A | N/A | N/A | N/A |
| 2025 | $50,642 | $340,050 | $0 | $390,692 | $390,692 |
| 2024 | $40,458 | $290,000 | $0 | $330,458 | $330,458 |
| 2023 | $40,458 | $280,000 | $0 | $320,458 | $320,458 |
| 2022 | $40,367 | $250,000 | $0 | $290,367 | $290,367 |
| 2021 | $39,215 | $170,000 | $0 | $209,215 | $209,215 |
| 2020 | $39,453 | $160,000 | $0 | $199,453 | $199,453 |
| 2019 | $36,241 | $230,000 | $0 | $266,241 | $266,241 |
| 2018 | $37,637 | $200,000 | $0 | $237,637 | $237,637 |
| 2017 | $38,823 | $200,000 | $0 | $238,823 | $238,823 |
| 2016 | $39,417 | $140,000 | $0 | $179,417 | $179,417 |
| 2015 | $40,604 | $121,743 | $0 | $162,347 | $162,347 |
| 2014 | $41,790 | $121,743 | $0 | $163,533 | $163,533 |
| 2013 | $43,570 | $121,743 | $0 | $165,313 | $165,313 |
| 2012 | $44,757 | $121,743 | $0 | $166,500 | $166,500 |
| 2011 | $45,944 | $135,270 | $0 | $181,214 | $181,214 |
| 2010 | $42,879 | $135,270 | $0 | $178,149 | $178,149 |
| 2009 | $45,459 | $150,300 | $0 | $195,759 | $195,759 |
| 2008 | $49,058 | $167,835 | $0 | $216,893 | $216,893 |
| 2007 | $52,025 | $150,300 | $0 | $202,325 | $202,325 |
Deed and Sales History
| 1 | 06/27/2018 | QCD | Quit Claim Deed | BOTTOM TRUSTEE, BERT GREGORY | BOTTOM, BERT G | | | $0.00 | 34863 | 4447453 |
| 2 | 02/08/2012 | QCD | Quit Claim Deed | HOLDINGS LLC, BOTTOM | BOTTOM TRUSTEE, BERT GREGORY | | | $0.00 | 6879 | 4310053 |
| 3 | 07/31/2003 | 5 | DNU - Marriage License/Name Change | BOTTOM, ERNEST E | HOLDINGS LLC, BOTTOM | | | $0.00 | 33356 | 4069290 |
| 4 | 03/01/1993 | QCD | Quit Claim Deed | BOTTOM, ERNEST E | BOTTOM, ERNEST E | | | $0.00 | 31100 | 93005661 |
| 5 | 01/01/1900 | OTHER | Other - Misc. Documents | Unknown | BOTTOM, ERNEST E | | | $0.00 | 0 | 0 |
Payout Agreement
| No payout information available.. |