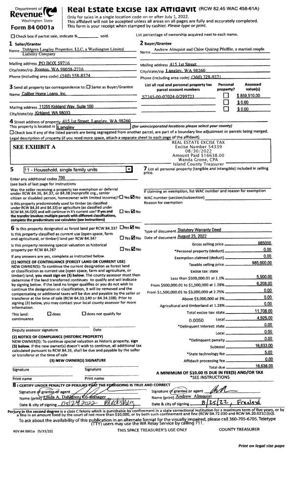
Property
Account |
| Property ID: | 85491 | Abbreviated Legal Description: | 25 - W/2 NW SW NE EX CO RD |
| Geographic ID: | R23125-368-2830 | Agent Code: | |
| Type: | Real | | |
| Tax Area: | 512 - APPRAISER-Stan/Cam Schl Dist, improved, greater than 1 acre | Land Use Code | 11 |
| Open Space: | N | DFL | N |
| Historic Property: | N | Remodel Property: | N |
| Multi-Family Redevelopment: | N | | |
| Township: | 31 | Section: | 25 |
| Range: | R2 |
Location |
| Address: | 180 W DRY LAKE RD CAMANO ISLAND, WA 98282 | Mapsco: | |
| Neighborhood: | Cycle 5 | Map ID: | 511 |
| Neighborhood CD: | 5 |
Owner |
| Name: | WALDO TRUSTEE, PETER GERALD | Owner ID: | 278949 |
| Mailing Address: | PAMELA COTTON WALDO TRUSTEE 180 W DRY LAKE RD CAMANO ISLAND, WA 98282 | % Ownership: | 100.0000000000% |
| | | Exemptions: | |
Taxes and Assessment Details
Values
| (+) Improvement Homesite Value: | + | $0 | |
| (+) Improvement Non-Homesite Value: | + | $570,404 | |
| (+) Land Homesite Value: | + | $0 | |
| (+) Land Non-Homesite Value: | + | $330,000 | |
| (+) Curr Use (HS): | + | $0 | $0 |
| (+) Curr Use (NHS): | + | $0 | $0 |
| | | -------------------------- | |
| (=) Market Value: | = | $900,404 | |
| (–) Productivity Loss: | – | $0 | |
| | | -------------------------- | |
| (=) Subtotal: | = | $900,404 | |
| (+) Senior Appraised Value: | + | $0 | |
| (+) Non-Senior Appraised Value: | + | $900,404 | |
| | | -------------------------- | |
| (=) Total Appraised Value: | = | $900,404 | |
| (–) Senior Exemption Loss: | – | $0 | |
| (–) Exemption Loss: | – | $0 | |
| | | -------------------------- | |
| (=) Taxable Value: | = | $900,404 | |
Taxing Jurisdiction
| Owner: | WALDO TRUSTEE, PETER GERALD | | |
| % Ownership: | 100.0000000000% | | |
| Total Value: | $900,404 | | |
| Tax Area: | 512 - APPRAISER-Stan/Cam Schl Dist, improved, greater than 1 acre |
| CF | Conservation Futures | 0.0316035091 | $900,404 | $900,404 | $28.46 | | |
| EMS1 | Fire & Rescue Dist #1 Camano GEN (EMS) | 0.3677864386 | $900,404 | $900,404 | $331.16 | | |
| FIRE1 | Fire & Rescue Dist #1 Camano GEN | 1.2502910536 | $900,404 | $900,404 | $1,125.77 | | |
| FIRE1BOND | Fire & Rescue Dist #1 Camano BOND | 0.1570001679 | $900,404 | $900,404 | $141.36 | | |
| CE | County Current Expense | 0.3708482477 | $900,404 | $900,404 | $333.91 | | |
| CR | County Roads | 0.4584763726 | $900,404 | $900,404 | $412.81 | | |
| LCIB | Library Sno-Isle BOND (Camano Island) | 0.0396325772 | $900,404 | $900,404 | $35.69 | | |
| LIB | Library Sno-Isle GEN | 0.3153421757 | $900,404 | $900,404 | $283.94 | | |
| SCH205_401 | School 205-401 Enrichment | 1.2698420524 | $900,404 | $900,404 | $1,143.37 | | |
| SCH205BOND | School 205-401 BOND | 0.9396497583 | $900,404 | $900,404 | $846.06 | | |
| ST | State School | 1.3035497053 | $900,404 | $900,404 | $1,173.72 | | |
| ST2 | State School Part 2 | 0.8169543533 | $900,404 | $900,404 | $735.59 | | |
| | Total Tax Rate: | 7.3209764117 | | | | | |
| | | | | Taxes w/Current Exemptions: | $6,591.84 | | |
| | | | | Taxes w/o Exemptions: | $6,591.84 | | |
Improvement / Building
| Improvement #1: | RESIDENTIAL | State Code: | Y | 2421.0 sqft | Value: | $570,404 |
| Bathrooms: | 2.5 | Bedrooms: | 2 | | Ceiling: | DRYWALL PAINTED | Cooling: | HEAT PUMP/CONV/V | | Exterior Wall/Cover: | CEMENT FIBER | Floor Covering: | HARDWOOD/CARP 60-40 | | Floor Structure: | WOOD W/SUBFLOOR | Foundation: | CONCRETE | | Interior Finish: | DRYWALL PAINT | Plumbing Fixture Cnt: | 13 | | Roof Slope: | 5" IN 12" | Roof Structure/Cover: | CJ ASPHALT |
|
| | Type | Description | Class CD | Sub Class CD | Year Built | Area |
| | BAS | BASE/MAIN FLOOR | 4 | 0 | 2016 | 2421.0 |
| | OWC | OPEN WOOD PORCH W/STEPS/ROOF/C | 4 | 0 | 2016 | 112.0 |
| | AGR | ATTACHED GARAGE | 4 | 0 | 2016 | 882.2 |
| | OWP | OPEN WOOD PORCH W/STEPS | 4 | 0 | 2016 | 364.0 |
| | OP4 | OPEN PORCH W/CEILING-ROOF | 4 | 0 | 2016 | 72.2 |
Sketch
Property Image
Land
| 1 | 32 | AC (03.01-09.99) | 4.7700 | 0.00 | 0.00 | 0.00 | 1.00 | $330,000 | $0 |
Roll Value History
| 2026 | N/A | N/A | N/A | N/A | N/A |
| 2025 | $570,404 | $330,000 | $0 | $900,404 | $900,404 |
| 2024 | $574,968 | $300,000 | $0 | $874,968 | $874,968 |
| 2023 | $579,531 | $290,000 | $0 | $869,531 | $869,531 |
| 2022 | $530,293 | $290,000 | $0 | $820,293 | $820,293 |
| 2021 | $449,138 | $190,000 | $0 | $639,138 | $639,138 |
| 2020 | $436,185 | $160,000 | $0 | $596,185 | $596,185 |
| 2019 | $330,122 | $230,000 | $0 | $560,122 | $560,122 |
| 2018 | $330,969 | $175,000 | $0 | $505,969 | $505,969 |
| 2017 | $332,667 | $150,000 | $0 | $482,667 | $482,667 |
| 2016 | $185,708 | $80,000 | $0 | $265,708 | $265,708 |
| 2015 | $0 | $95,400 | $0 | $95,400 | $95,400 |
| 2014 | $0 | $95,400 | $0 | $95,400 | $95,400 |
| 2013 | $0 | $119,250 | $0 | $119,250 | $119,250 |
| 2012 | $0 | $119,250 | $0 | $119,250 | $119,250 |
| 2011 | $0 | $119,250 | $0 | $119,250 | $119,250 |
| 2010 | $0 | $119,250 | $0 | $119,250 | $119,250 |
| 2009 | $0 | $143,100 | $0 | $143,100 | $143,100 |
| 2008 | $0 | $181,260 | $0 | $181,260 | $181,260 |
| 2007 | $0 | $100,170 | $0 | $100,170 | $100,170 |
Deed and Sales History
| 1 | 03/13/2017 | QCD | Quit Claim Deed | WALDO, PETER | WALDO TRUSTEE, PETER GERALD | | | $0.00 | 28462 | 4418934 |
| 2 | 08/21/2015 | WD | Warranty Deed | FUNK, CARRIE KAY & DANIEL | WALDO, PETER | | | $77,500.00 | 21124 | 4384951 |
| 3 | 11/27/2001 | QCD | Quit Claim Deed | FUNK, CARRIE KAY & DANIEL | FUNK, CARRIE KAY & DANIEL | | | $0.00 | 20160 | 4008299 |
| 4 | 11/15/2001 | WD | Warranty Deed | LARSON, EDWIN A | FUNK, CARRIE KAY & DANIEL | | | $0.00 | 14640 | 4005171 |
| 5 | 01/01/1989 | OTHER | Other - Misc. Documents | LARSON, EDWIN A | LARSON, EDWIN A | | | $0.00 | 63020 | 89000868 |
| 6 | 05/01/1985 | WD | Warranty Deed | NICHOLAS, WALTON B | LARSON, EDWIN A | | | $22,780.00 | 51340 | 85005456 |
| 7 | 06/01/1979 | EXECUTORD | Executor Deed | HOLBROOK, ROBERT S | NICHOLAS, WALTON B | | | $17,500.00 | 93139 | 354777 |
| 8 | 01/01/1900 | OTHER | Other - Misc. Documents | Unknown | HOLBROOK, ROBERT S | | | $0.00 | 0 | 0 |
Payout Agreement
| No payout information available.. |