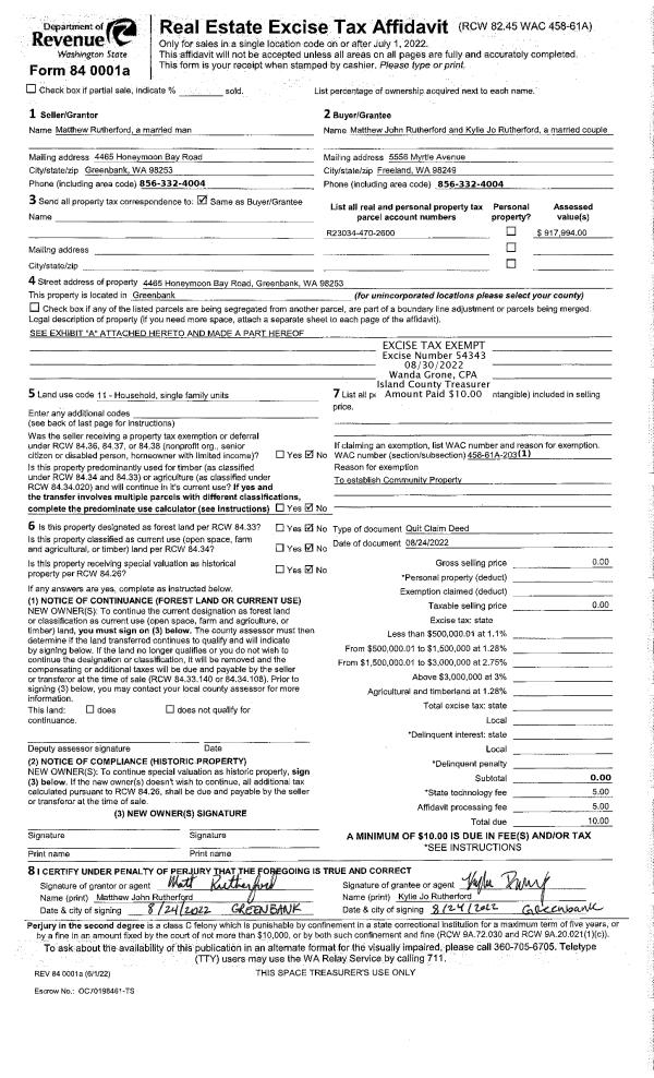
Property
Account |
| Property ID: | 85516 | Abbreviated Legal Description: | 11 - E/2 NW SE NE EX CO RD EX E/2 EX S30'RD |
| Geographic ID: | R23125-368-4400 | Agent Code: | |
| Type: | Real | | |
| Tax Area: | 512 - APPRAISER-Stan/Cam Schl Dist, improved, greater than 1 acre | Land Use Code | 11 |
| Open Space: | N | DFL | N |
| Historic Property: | N | Remodel Property: | N |
| Multi-Family Redevelopment: | N | | |
| Township: | 31 | Section: | 25 |
| Range: | R2 |
Location |
| Address: | 68 W DRY LAKE RD CAMANO ISLAND, WA 98282 | Mapsco: | |
| Neighborhood: | Cycle 5 | Map ID: | 511 |
| Neighborhood CD: | 5 |
Owner |
| Name: | FRASER, GENE R | Owner ID: | 58501 |
| Mailing Address: | 68 W DRY LAKE RD CAMANO ISLAND, WA 98282-8363 | % Ownership: | 100.0000000000% |
| | | Exemptions: | |
Taxes and Assessment Details
Values
| (+) Improvement Homesite Value: | + | $0 | |
| (+) Improvement Non-Homesite Value: | + | $395,293 | |
| (+) Land Homesite Value: | + | $0 | |
| (+) Land Non-Homesite Value: | + | $300,000 | |
| (+) Curr Use (HS): | + | $0 | $0 |
| (+) Curr Use (NHS): | + | $0 | $0 |
| | | -------------------------- | |
| (=) Market Value: | = | $695,293 | |
| (–) Productivity Loss: | – | $0 | |
| | | -------------------------- | |
| (=) Subtotal: | = | $695,293 | |
| (+) Senior Appraised Value: | + | $0 | |
| (+) Non-Senior Appraised Value: | + | $695,293 | |
| | | -------------------------- | |
| (=) Total Appraised Value: | = | $695,293 | |
| (–) Senior Exemption Loss: | – | $0 | |
| (–) Exemption Loss: | – | $0 | |
| | | -------------------------- | |
| (=) Taxable Value: | = | $695,293 | |
Taxing Jurisdiction
| Owner: | FRASER, GENE R | | |
| % Ownership: | 100.0000000000% | | |
| Total Value: | $695,293 | | |
| Tax Area: | 512 - APPRAISER-Stan/Cam Schl Dist, improved, greater than 1 acre |
| CF | Conservation Futures | 0.0316035091 | $695,293 | $695,293 | $21.97 | | |
| EMS1 | Fire & Rescue Dist #1 Camano GEN (EMS) | 0.3677864386 | $695,293 | $695,293 | $255.72 | | |
| FIRE1 | Fire & Rescue Dist #1 Camano GEN | 1.2502910536 | $695,293 | $695,293 | $869.32 | | |
| FIRE1BOND | Fire & Rescue Dist #1 Camano BOND | 0.1570001679 | $695,293 | $695,293 | $109.16 | | |
| CE | County Current Expense | 0.3708482477 | $695,293 | $695,293 | $257.85 | | |
| CR | County Roads | 0.4584763726 | $695,293 | $695,293 | $318.78 | | |
| LCIB | Library Sno-Isle BOND (Camano Island) | 0.0396325772 | $695,293 | $695,293 | $27.56 | | |
| LIB | Library Sno-Isle GEN | 0.3153421757 | $695,293 | $695,293 | $219.26 | | |
| SCH205_401 | School 205-401 Enrichment | 1.2698420524 | $695,293 | $695,293 | $882.91 | | |
| SCH205BOND | School 205-401 BOND | 0.9396497583 | $695,293 | $695,293 | $653.33 | | |
| ST | State School | 1.3035497053 | $695,293 | $695,293 | $906.35 | | |
| ST2 | State School Part 2 | 0.8169543533 | $695,293 | $695,293 | $568.02 | | |
| | Total Tax Rate: | 7.3209764117 | | | | | |
| | | | | Taxes w/Current Exemptions: | $5,090.23 | | |
| | | | | Taxes w/o Exemptions: | $5,090.23 | | |
Improvement / Building
| Improvement #1: | RESIDENTIAL | State Code: | Y | 2840.8 sqft | Value: | $395,293 |
| Bathrooms: | 3 | Bedrooms: | 3 | | Ceiling: | DRYWALL PAINTED | Exterior Wall/Cover: | WOOD SIDING | | Floor Covering: | CARPET/VINYL 80-20 | Floor Structure: | WOOD W/SUBFLOOR | | Foundation: | CONCRETE | Heating: | FHA GAS | | Interior Finish: | DRYWALL PAINT | Plumbing Fixture Cnt: | 12 | | Roof Slope: | 5" IN 12" | Roof Structure/Cover: | CJ ASPHALT |
|
| | Type | Description | Class CD | Sub Class CD | Year Built | Area |
| | BAS | BASE/MAIN FLOOR | 3 | 0 | 1994 | 1728.6 |
| | BGR | BASEMENT GARAGE | 3 | 0 | 1994 | 624.0 |
| | UTY | STORAGE/UTILITY | 3 | 0 | 1994 | 132.0 |
| | OWP | OPEN WOOD PORCH W/STEPS | 3 | 0 | 1994 | 852.9 |
| | DWN | DOWNSTAIRS LIVING AREA | 3 | 0 | 1994 | 1112.2 |
Sketch
Property Image
Land
| 1 | 18 | AC (02.01-03.00) | 2.3900 | 104108.40 | 0.00 | 0.00 | 1.00 | $300,000 | $0 |
Roll Value History
| 2026 | N/A | N/A | N/A | N/A | N/A |
| 2025 | $395,293 | $300,000 | $0 | $695,293 | $695,293 |
| 2024 | $400,158 | $280,000 | $0 | $680,158 | $680,158 |
| 2023 | $405,023 | $270,000 | $0 | $675,023 | $675,023 |
| 2022 | $371,153 | $260,000 | $0 | $631,153 | $631,153 |
| 2021 | $303,601 | $180,000 | $0 | $483,601 | $483,601 |
| 2020 | $296,643 | $150,000 | $0 | $446,643 | $446,643 |
| 2019 | $235,669 | $200,000 | $0 | $435,669 | $435,669 |
| 2018 | $236,394 | $150,000 | $0 | $386,394 | $386,394 |
| 2017 | $237,782 | $135,000 | $0 | $372,782 | $372,782 |
| 2016 | $240,681 | $100,000 | $0 | $340,681 | $340,681 |
| 2015 | $214,600 | $83,200 | $0 | $297,800 | $297,800 |
| 2014 | $217,306 | $83,200 | $0 | $300,506 | $300,506 |
| 2013 | $220,014 | $83,200 | $0 | $303,214 | $303,214 |
| 2012 | $222,722 | $83,200 | $0 | $305,922 | $305,922 |
| 2011 | $225,429 | $104,000 | $0 | $329,429 | $329,429 |
| 2010 | $233,763 | $104,000 | $0 | $337,763 | $337,763 |
| 2009 | $235,149 | $119,600 | $0 | $354,749 | $354,749 |
| 2008 | $238,250 | $130,000 | $0 | $368,250 | $368,250 |
| 2007 | $241,353 | $130,000 | $0 | $371,353 | $371,353 |
Deed and Sales History
| 1 | 03/01/1982 | TRUSTEED | Trustee's Deed | LOUDENBACK, LAWRENCE L | FRASER, GENE R | | | $15,000.00 | 20692 | 394530 |
| 2 | 01/01/1900 | OTHER | Other - Misc. Documents | Unknown | LOUDENBACK, LAWRENCE L | | | $0.00 | 0 | 0 |
Payout Agreement
| No payout information available.. |