Property
Account |
| Property ID: | 8565 | Abbreviated Legal Description: | 26 - TR 4 V4P21 GOOD DESC - N301.50'OF S975'OF NENE LY W OF CLN 60'EZ DESC A63655 AF321212 |
| Geographic ID: | R13112-478-4320 | Agent Code: | |
| Type: | Real | | |
| Tax Area: | 319 - APPRAISER-Cpvl Schl Dist, outside Cpvl, vacant & 50 acres or less | Land Use Code | 91 |
| Open Space: | N | DFL | N |
| Historic Property: | N | Remodel Property: | N |
| Multi-Family Redevelopment: | N | | |
| Township: | 31 | Section: | 12 |
| Range: | R1 |
Location |
| Address: | | Mapsco: | |
| Neighborhood: | Cycle 2 | Map ID: | 57 |
| Neighborhood CD: | 2 |
Owner |
| Name: | BOTTOM, BERT G | Owner ID: | 285876 |
| Mailing Address: | 451 WANDERING LN COUPEVILLE, WA 98239 | % Ownership: | 100.0000000000% |
| | | Exemptions: | |
Taxes and Assessment Details
Values
| (+) Improvement Homesite Value: | + | $0 | |
| (+) Improvement Non-Homesite Value: | + | $0 | |
| (+) Land Homesite Value: | + | $0 | |
| (+) Land Non-Homesite Value: | + | $157,663 | |
| (+) Curr Use (HS): | + | $0 | $0 |
| (+) Curr Use (NHS): | + | $0 | $0 |
| | | -------------------------- | |
| (=) Market Value: | = | $157,663 | |
| (–) Productivity Loss: | – | $0 | |
| | | -------------------------- | |
| (=) Subtotal: | = | $157,663 | |
| (+) Senior Appraised Value: | + | $0 | |
| (+) Non-Senior Appraised Value: | + | $157,663 | |
| | | -------------------------- | |
| (=) Total Appraised Value: | = | $157,663 | |
| (–) Senior Exemption Loss: | – | $0 | |
| (–) Exemption Loss: | – | $0 | |
| | | -------------------------- | |
| (=) Taxable Value: | = | $157,663 | |
Taxing Jurisdiction
| Owner: | BOTTOM, BERT G | | |
| % Ownership: | 100.0000000000% | | |
| Total Value: | $157,663 | | |
| Tax Area: | 319 - APPRAISER-Cpvl Schl Dist, outside Cpvl, vacant & 50 acres or less |
| CF | Conservation Futures | 0.0316035091 | $157,663 | $157,663 | $4.98 | | |
| CEM2 | Cemetery #2 | 0.0095056933 | $157,663 | $157,663 | $1.50 | | |
| HOBOND | Hospital BOND | 0.1910887512 | $157,663 | $157,663 | $30.13 | | |
| HOGEN | Hospital GEN | 0.3902502903 | $157,663 | $157,663 | $61.53 | | |
| CE | County Current Expense | 0.3708482477 | $157,663 | $157,663 | $58.47 | | |
| CR | County Roads | 0.4584763726 | $157,663 | $157,663 | $72.28 | | |
| ISLANDEMS | Hospital GEN (EMS) | 0.5000000000 | $157,663 | $157,663 | $78.83 | | |
| LIB | Library Sno-Isle GEN | 0.3153421757 | $157,663 | $157,663 | $49.72 | | |
| LIBCAP | Library Sno-Isle BOND (Cap Fac Imp Area) | 0.0543427938 | $157,663 | $157,663 | $8.57 | | |
| POCOUP | Port of Coupeville GEN | 0.1093371703 | $157,663 | $157,663 | $17.24 | | |
| POCOUPIDD | Port of Coupeville IDD | 0.3409740022 | $157,663 | $157,663 | $53.76 | | |
| COUPSDTECH | School 204 CP (TECH) | 0.7545480007 | $157,663 | $157,663 | $118.96 | | |
| SCH204MO | School 204 Enrichment | 0.6716186034 | $157,663 | $157,663 | $105.89 | | |
| ST | State School | 1.3035497053 | $157,663 | $157,663 | $205.52 | | |
| ST2 | State School Part 2 | 0.8169543533 | $157,663 | $157,663 | $128.80 | | |
| | Total Tax Rate: | 6.3184396689 | | | | | |
| | | | | Taxes w/Current Exemptions: | $996.18 | | |
| | | | | Taxes w/o Exemptions: | $996.18 | | |
Improvement / Building
Sketch
| No sketches available for this property. |
Property Image
Land
| 1 | 32 | AC (03.01-09.99) | 5.0200 | 0.00 | 0.00 | 0.00 | 1.00 | $157,663 | $0 |
Roll Value History
| 2026 | N/A | N/A | N/A | N/A | N/A |
| 2025 | $0 | $157,663 | $0 | $157,663 | $157,663 |
| 2024 | $0 | $140,000 | $0 | $140,000 | $140,000 |
| 2023 | $0 | $140,000 | $0 | $140,000 | $140,000 |
| 2022 | $0 | $130,000 | $0 | $130,000 | $130,000 |
| 2021 | $0 | $130,000 | $0 | $130,000 | $130,000 |
| 2020 | $0 | $120,000 | $0 | $120,000 | $120,000 |
| 2019 | $0 | $100,000 | $0 | $100,000 | $100,000 |
| 2018 | $0 | $100,000 | $0 | $100,000 | $100,000 |
| 2017 | $0 | $100,000 | $0 | $100,000 | $100,000 |
| 2016 | $0 | $75,000 | $0 | $75,000 | $75,000 |
| 2015 | $0 | $100,400 | $0 | $100,400 | $100,400 |
| 2014 | $0 | $100,400 | $0 | $100,400 | $100,400 |
| 2013 | $0 | $100,400 | $0 | $100,400 | $100,400 |
| 2012 | $0 | $100,400 | $0 | $100,400 | $100,400 |
| 2011 | $0 | $100,400 | $0 | $100,400 | $100,400 |
| 2010 | $0 | $100,400 | $0 | $100,400 | $100,400 |
| 2009 | $0 | $122,990 | $0 | $122,990 | $122,990 |
| 2008 | $0 | $130,520 | $0 | $130,520 | $130,520 |
| 2007 | $0 | $115,460 | $0 | $115,460 | $115,460 |
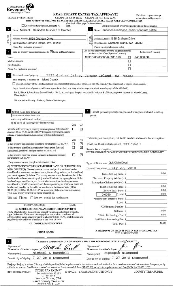
Deed and Sales History
| 1 | 06/27/2018 | QCD | Quit Claim Deed | BOTTOM TRUSTEE, BERT GREGORY | BOTTOM, BERT G | | | $0.00 | 34864 | 4447452 |
| 2 | 02/06/2012 | QCD | Quit Claim Deed | BOTTOM TTEE, ERNEST E | BOTTOM TRUSTEE, BERT GREGORY | | | $0.00 | 6881 | 4310054 |
| 3 | 03/06/2007 | QCD | Quit Claim Deed | BOTTOM, ERNEST E | BOTTOM TTEE, ERNEST E | | | $0.00 | 70879 | 4196699 |
| 4 | 03/01/1993 | QCD | Quit Claim Deed | BOTTOM, ERNEST E | BOTTOM, ERNEST E | | | $0.00 | 31100 | 93005660 |
| 5 | 02/01/1986 | WD | Warranty Deed | HARDY, JAMES W | BOTTOM, ERNEST E | | | $12,000.00 | 60554 | 86002697 |
| 6 | 01/01/1900 | OTHER | Other - Misc. Documents | Unknown | HARDY, JAMES W | | | $0.00 | 0 | 0 |
Payout Agreement
| No payout information available.. |