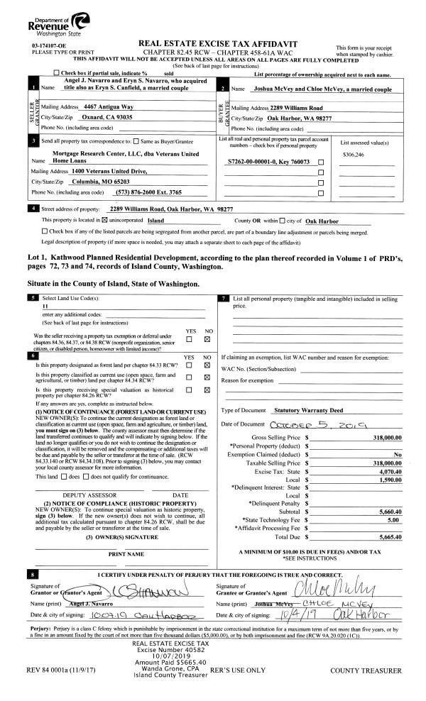
| 1 | 10/27/2023 | WD | Warranty Deed | HILL, HOLLIS R | BLUFF VIEW LLC | | | $1,065,000.00 | 58366 | 4566185 |
| 2 | 11/26/2019 | WD | Warranty Deed | LTD PREMIER PROPERTIES, LLC | HILL, HOLLIS R | | | $685,000.00 | 41465 | 4477494 |
| 3 | 11/01/2019 | QCD | Quit Claim Deed | GRAHAM, JOSE | LTD PREMIER PROPERTIES, LLC | | | $0.00 | 41197 | 4476080 |
| 4 | 01/08/2019 | WD | Warranty Deed | RAWLINGS, JOHN F AND SALLY M | GRAHAM, JOSE | | | $431,000.00 | 37287 | 4457781 |
| 5 | 10/09/2008 | EZ | Easement | RAWLINGS, JOHN F AND SALLY M | RAWLINGS, JOHN F AND SALLY M | | | $4,750.00 | 83005 | 4240435 |
| 6 | 08/26/1998 | WD | Warranty Deed | GRIFFIN, JOHN W | RAWLINGS, JOHN F AND SALLY M | | | $172,000.00 | 83574 | 98018646 |
| 7 | 11/01/1992 | QCD | Quit Claim Deed | AAKER, LEONA M | GRIFFIN, JOHN W | | | $0.00 | 24744 | 92023308 |
| 8 | 10/01/1988 | WD | Warranty Deed | GRIFFIN, JOHN W | AAKER, LEONA M | | | $0.00 | 83494 | 88013044 |
| 9 | 10/01/1988 | WD | Warranty Deed | AAKER, LEONA M | GRIFFIN, JOHN W | | | $86,000.00 | 83885 | 88014506 |
| 10 | 07/01/1983 | REC | Real Estate Contract | CONNORS, PHYLLIS | AAKER, LEONA M | | | $90,000.00 | 31839 | 411752 |
| 11 | 06/01/1979 | CD | DNU - Correction Deed | CONNORS, PHYLLIS | CONNORS, PHYLLIS | | | $0.00 | 92871 | 353893 |
| 12 | 06/01/1977 | QCD | Quit Claim Deed | CONNORS, PHYLLIS | CONNORS, PHYLLIS | | | $0.00 | 22818 | 402944 |
| 13 | 01/01/1900 | OTHER | Other - Misc. Documents | Unknown | CONNORS, PHYLLIS | | | $0.00 | 0 | 0 |