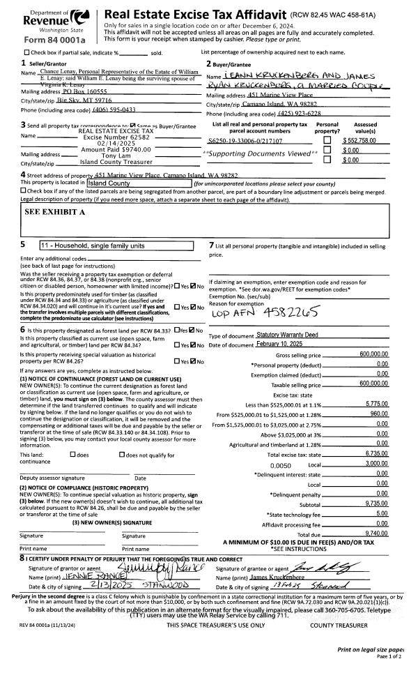
Property
Account |
| Property ID: | 85874 | Abbreviated Legal Description: | IN GL2: BG SWCR GL2 E534.21 M/L TO ELN RD FOLL SD RD N12*W345.5' N15*W194.37' N12*W407.26' TPB E631.4' TO ML ALG SD ML S2*W100' W604 .8' TO RD NLY TPB INCL ADJ TIDES (LOT 21 UNREC GLENWOOD BCH) |
| Geographic ID: | R23128-356-0580 | Agent Code: | |
| Type: | Real | | |
| Tax Area: | 312 - APPRAISER-Cpvl Schl Dist, outside Cpvl, improved, greater than 1 acre | Land Use Code | 11 |
| Open Space: | N | DFL | N |
| Historic Property: | N | Remodel Property: | N |
| Multi-Family Redevelopment: | N | | |
| Township: | 31 | Section: | 28 |
| Range: | R2 |
Location |
| Address: | 1735 NORTH BLUFF RD COUPEVILLE, WA 98239 | Mapsco: | |
| Neighborhood: | Area 2 Waterfront Eastside Res | Map ID: | 515 |
| Neighborhood CD: | 2WFTE01R |
Owner |
| Name: | SYREEN, JOHN MICHAEL | Owner ID: | 289475 |
| Mailing Address: | ELIZABETH SYREEN 1735 N BLUFF RD COUPEVILLE, WA 98239 | % Ownership: | 100.0000000000% |
| | | Exemptions: | |
Taxes and Assessment Details
Values
| (+) Improvement Homesite Value: | + | $0 | |
| (+) Improvement Non-Homesite Value: | + | $419,265 | |
| (+) Land Homesite Value: | + | $0 | |
| (+) Land Non-Homesite Value: | + | $601,000 | |
| (+) Curr Use (HS): | + | $0 | $0 |
| (+) Curr Use (NHS): | + | $0 | $0 |
| | | -------------------------- | |
| (=) Market Value: | = | $1,020,265 | |
| (–) Productivity Loss: | – | $0 | |
| | | -------------------------- | |
| (=) Subtotal: | = | $1,020,265 | |
| (+) Senior Appraised Value: | + | $0 | |
| (+) Non-Senior Appraised Value: | + | $1,020,265 | |
| | | -------------------------- | |
| (=) Total Appraised Value: | = | $1,020,265 | |
| (–) Senior Exemption Loss: | – | $0 | |
| (–) Exemption Loss: | – | $0 | |
| | | -------------------------- | |
| (=) Taxable Value: | = | $1,020,265 | |
Taxing Jurisdiction
| Owner: | SYREEN, JOHN MICHAEL | | |
| % Ownership: | 100.0000000000% | | |
| Total Value: | $1,020,265 | | |
| Tax Area: | 312 - APPRAISER-Cpvl Schl Dist, outside Cpvl, improved, greater than 1 acre |
| CF | Conservation Futures | 0.0316035091 | $1,020,265 | $1,020,265 | $32.24 | | |
| CEM2 | Cemetery #2 | 0.0095056933 | $1,020,265 | $1,020,265 | $9.70 | | |
| FIRE5 | Fire & Rescue Dist #5 C Whidbey GEN | 1.2008080668 | $1,020,265 | $1,020,265 | $1,225.14 | | |
| FIRE5BOND | Fire & Rescue Dist #5 C Whidbey BOND | 0.1400090713 | $1,020,265 | $1,020,265 | $142.85 | | |
| HOBOND | Hospital BOND | 0.1910887512 | $1,020,265 | $1,020,265 | $194.96 | | |
| HOGEN | Hospital GEN | 0.3902502903 | $1,020,265 | $1,020,265 | $398.16 | | |
| CE | County Current Expense | 0.3708482477 | $1,020,265 | $1,020,265 | $378.36 | | |
| CR | County Roads | 0.4584763726 | $1,020,265 | $1,020,265 | $467.77 | | |
| ISLANDEMS | Hospital GEN (EMS) | 0.5000000000 | $1,020,265 | $1,020,265 | $510.13 | | |
| LIB | Library Sno-Isle GEN | 0.3153421757 | $1,020,265 | $1,020,265 | $321.73 | | |
| LIBCAP | Library Sno-Isle BOND (Cap Fac Imp Area) | 0.0543427938 | $1,020,265 | $1,020,265 | $55.44 | | |
| POCOUP | Port of Coupeville GEN | 0.1093371703 | $1,020,265 | $1,020,265 | $111.55 | | |
| POCOUPIDD | Port of Coupeville IDD | 0.3409740022 | $1,020,265 | $1,020,265 | $347.88 | | |
| COUPSDTECH | School 204 CP (TECH) | 0.7545480007 | $1,020,265 | $1,020,265 | $769.84 | | |
| SCH204MO | School 204 Enrichment | 0.6716186034 | $1,020,265 | $1,020,265 | $685.23 | | |
| ST | State School | 1.3035497053 | $1,020,265 | $1,020,265 | $1,329.97 | | |
| ST2 | State School Part 2 | 0.8169543533 | $1,020,265 | $1,020,265 | $833.51 | | |
| | Total Tax Rate: | 7.6592568070 | | | | | |
| | | | | Taxes w/Current Exemptions: | $7,814.46 | | |
| | | | | Taxes w/o Exemptions: | $7,814.46 | | |
Improvement / Building
| Improvement #1: | RESIDENTIAL | State Code: | Y | 2682.0 sqft | Value: | $419,265 |
| Bathrooms: | 2 | Bedrooms: | 2 | | Ceiling: | DRYWALL PAINTED | Exterior Wall/Cover: | COMMON BRICK VENEER | | Floor Covering: | HARDWOOD/CARP 20-80 | Floor Structure: | WOOD W/SUBFLOOR | | Foundation: | CONCRETE | Heating: | BASEBOARD ELECTRIC | | Interior Finish: | DRYWALL PAINT | Plumbing Fixture Cnt: | 9 | | Roof Slope: | 8" IN 12" | Roof Structure/Cover: | CJ WOOD SHAKES |
|
| | Type | Description | Class CD | Sub Class CD | Year Built | Area |
| | BAS | BASE/MAIN FLOOR | 4 | 0 | 1962 | 1696.0 |
| | OWP | OPEN WOOD PORCH W/STEPS | 4 | 0 | 1962 | 1049.0 |
| | OP4 | OPEN PORCH W/CEILING-ROOF | 4 | 0 | 1962 | 16.0 |
| | AGR | ATTACHED GARAGE | 4 | 0 | 1962 | 451.0 |
| | UPS | UPPER STORY | 4 | 0 | 1962 | 986.0 |
| | DGR | DETACHED GARAGE | 4 | 0 | 1962 | 576.0 |
| | OCP | OPEN CARPORT | 4 | 0 | 1962 | 250.0 |
| | UTY | STORAGE/UTILITY | 4 | 0 | 1962 | 192.0 |
Sketch
| No sketches available for this property. |
Property Image
Land
| 1 | HB | HIGH BLUFF | 1.4000 | 60984.00 | 99.00 | 0.00 | 1.00 | $600,000 | $0 |
| 2 | 55 | TIDES | 0.0000 | 0.00 | 100.00 | 0.00 | 1.00 | $1,000 | $0 |
Roll Value History
| 2026 | N/A | N/A | N/A | N/A | N/A |
| 2025 | $419,265 | $601,000 | $0 | $1,020,265 | $1,020,265 |
| 2024 | $409,863 | $576,000 | $0 | $985,863 | $985,863 |
| 2023 | $416,242 | $551,000 | $0 | $967,242 | $967,242 |
| 2022 | $382,696 | $426,000 | $0 | $808,696 | $808,696 |
| 2021 | $337,797 | $401,000 | $0 | $738,797 | $738,797 |
| 2020 | $331,232 | $326,000 | $0 | $657,232 | $657,232 |
| 2019 | $255,368 | $376,000 | $0 | $631,368 | $631,368 |
| 2018 | $230,200 | $300,000 | $0 | $530,200 | $530,200 |
| 2017 | $231,921 | $251,000 | $0 | $482,921 | $482,921 |
| 2016 | $235,370 | $251,000 | $0 | $486,370 | $486,370 |
| 2015 | $238,817 | $251,000 | $0 | $489,817 | $489,817 |
| 2014 | $242,264 | $251,000 | $0 | $493,264 | $493,264 |
| 2013 | $245,710 | $111,448 | $0 | $357,158 | $357,158 |
| 2012 | $246,818 | $111,448 | $0 | $358,266 | $358,266 |
| 2011 | $250,215 | $111,448 | $0 | $361,663 | $361,663 |
| 2010 | $269,672 | $111,448 | $0 | $381,120 | $381,120 |
| 2009 | $281,254 | $205,330 | $0 | $486,584 | $486,584 |
| 2008 | $285,017 | $205,330 | $0 | $490,347 | $490,347 |
| 2007 | $288,958 | $204,630 | $0 | $493,588 | $493,588 |
Deed and Sales History
| 1 | 04/25/2019 | QCD | Quit Claim Deed | SYREEN, JOHN MICHAEL | SYREEN, JOHN MICHAEL | | | $0.00 | 38212 | 4462023 |
| 2 | 01/20/2011 | ESTSEPPROP | Establish Separate Property | SYREEN, J MIKE | SYREEN, JOHN MICHAEL | | | $0.00 | 3448 | 4289412 |
| 3 | 09/15/2008 | EZ | Easement | SYREEN, JOHN M | SYREEN, J MIKE | | | $4,000.00 | 83004 | 4240424 |
| 4 | 04/01/1994 | WD | Warranty Deed | GLOVER, ELLSWORTH W | SYREEN, JOHN M | | | $199,500.00 | 41529 | 94009383 |
| 5 | 05/01/1992 | WD | Warranty Deed | MUNOZ, ELOUISE A | GLOVER, ELLSWORTH W | | | $145,000.00 | 21696 | 92008069 |
| 6 | 07/01/1987 | WD | Warranty Deed | GODFREY, EDWARD V | MUNOZ, ELOUISE A | | | $99,000.00 | 72179 | 87009845 |
| 7 | 01/01/1900 | OTHER | Other - Misc. Documents | Unknown | GODFREY, EDWARD V | | | $0.00 | 0 | 0 |
Payout Agreement
| No payout information available.. |