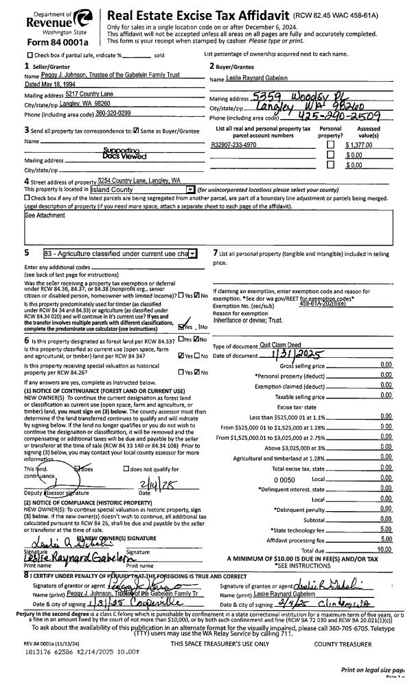
Property
Account |
| Property ID: | 85909 | Abbreviated Legal Description: | N90' OF LOT 18 UNREC GLENWOOD BCH INCL ADJ TIDES EX W15' FOR RD SUB TO EZ |
| Geographic ID: | R23128-386-0510 | Agent Code: | |
| Type: | Real | | |
| Tax Area: | 312 - APPRAISER-Cpvl Schl Dist, outside Cpvl, improved, greater than 1 acre | Land Use Code | 11 |
| Open Space: | N | DFL | N |
| Historic Property: | N | Remodel Property: | N |
| Multi-Family Redevelopment: | N | | |
| Township: | 31 | Section: | 28 |
| Range: | R2 |
Location |
| Address: | 1717 NORTH BLUFF RD COUPEVILLE, WA 98239 | Mapsco: | |
| Neighborhood: | Area 2 Waterfront Eastside Res | Map ID: | 515 |
| Neighborhood CD: | 2WFTE01R |
Owner |
| Name: | REYNOLDS, MICHAEL J | Owner ID: | 8092 |
| Mailing Address: | 21607 SE 400TH ST ENUMCLAW, WA 98022-8909 | % Ownership: | 100.0000000000% |
| | | Exemptions: | |
Taxes and Assessment Details
Values
| (+) Improvement Homesite Value: | + | $0 | |
| (+) Improvement Non-Homesite Value: | + | $71,234 | |
| (+) Land Homesite Value: | + | $0 | |
| (+) Land Non-Homesite Value: | + | $600,900 | |
| (+) Curr Use (HS): | + | $0 | $0 |
| (+) Curr Use (NHS): | + | $0 | $0 |
| | | -------------------------- | |
| (=) Market Value: | = | $672,134 | |
| (–) Productivity Loss: | – | $0 | |
| | | -------------------------- | |
| (=) Subtotal: | = | $672,134 | |
| (+) Senior Appraised Value: | + | $0 | |
| (+) Non-Senior Appraised Value: | + | $672,134 | |
| | | -------------------------- | |
| (=) Total Appraised Value: | = | $672,134 | |
| (–) Senior Exemption Loss: | – | $0 | |
| (–) Exemption Loss: | – | $0 | |
| | | -------------------------- | |
| (=) Taxable Value: | = | $672,134 | |
Taxing Jurisdiction
| Owner: | REYNOLDS, MICHAEL J | | |
| % Ownership: | 100.0000000000% | | |
| Total Value: | $672,134 | | |
| Tax Area: | 312 - APPRAISER-Cpvl Schl Dist, outside Cpvl, improved, greater than 1 acre |
| CF | Conservation Futures | 0.0316035091 | $672,134 | $672,134 | $21.24 | | |
| CEM2 | Cemetery #2 | 0.0095056933 | $672,134 | $672,134 | $6.39 | | |
| FIRE5 | Fire & Rescue Dist #5 C Whidbey GEN | 1.2008080668 | $672,134 | $672,134 | $807.10 | | |
| FIRE5BOND | Fire & Rescue Dist #5 C Whidbey BOND | 0.1400090713 | $672,134 | $672,134 | $94.10 | | |
| HOBOND | Hospital BOND | 0.1910887512 | $672,134 | $672,134 | $128.44 | | |
| HOGEN | Hospital GEN | 0.3902502903 | $672,134 | $672,134 | $262.30 | | |
| CE | County Current Expense | 0.3708482477 | $672,134 | $672,134 | $249.26 | | |
| CR | County Roads | 0.4584763726 | $672,134 | $672,134 | $308.16 | | |
| ISLANDEMS | Hospital GEN (EMS) | 0.5000000000 | $672,134 | $672,134 | $336.07 | | |
| LIB | Library Sno-Isle GEN | 0.3153421757 | $672,134 | $672,134 | $211.95 | | |
| LIBCAP | Library Sno-Isle BOND (Cap Fac Imp Area) | 0.0543427938 | $672,134 | $672,134 | $36.53 | | |
| POCOUP | Port of Coupeville GEN | 0.1093371703 | $672,134 | $672,134 | $73.49 | | |
| POCOUPIDD | Port of Coupeville IDD | 0.3409740022 | $672,134 | $672,134 | $229.18 | | |
| COUPSDTECH | School 204 CP (TECH) | 0.7545480007 | $672,134 | $672,134 | $507.16 | | |
| SCH204MO | School 204 Enrichment | 0.6716186034 | $672,134 | $672,134 | $451.42 | | |
| ST | State School | 1.3035497053 | $672,134 | $672,134 | $876.16 | | |
| ST2 | State School Part 2 | 0.8169543533 | $672,134 | $672,134 | $549.10 | | |
| | Total Tax Rate: | 7.6592568070 | | | | | |
| | | | | Taxes w/Current Exemptions: | $5,148.05 | | |
| | | | | Taxes w/o Exemptions: | $5,148.05 | | |
Improvement / Building
| Improvement #1: | RESIDENTIAL | State Code: | Y | 252.0 sqft | Value: | $71,234 |
| Bathrooms: | 0 | Bedrooms: | 1 | | Ceiling: | TONGUE & GROOVE | Exterior Wall/Cover: | SHINGLE | | Floor Covering: | SOFTWOOD 100% | Floor Structure: | WOOD ON WOOD JOIST | | Foundation: | PEIRS | Heating: | (NONE) | | Interior Finish: | TONGUE & GROOVE DRYWALL 40/60 | Plumbing Fixture Cnt: | 1 | | Roof Slope: | 8" IN 12" | Roof Structure/Cover: | CJ ALUMINIUM HEAVY |
|
| | Type | Description | Class CD | Sub Class CD | Year Built | Area |
| | BAS | BASE/MAIN FLOOR | 2 | 0 | 1900 | 252.0 |
| | DGR | DETACHED GARAGE | 2 | 0 | 1900 | 288.0 |
| | OWP | OPEN WOOD PORCH W/STEPS | 2 | 0 | 1900 | 123.9 |
| | OWC | OPEN WOOD PORCH W/STEPS/ROOF/C | 2 | 0 | 1900 | 296.4 |
| | CPD | OPEN CARPORT DIRT FLOOR | 2 | 0 | 1900 | 520.0 |
| | OWP | OPEN WOOD PORCH W/STEPS | 2 | 0 | 1900 | 336.0 |
| | oCB2 | CABIN FIN | 2 | 0 | 1900 | 100.0 |
| | oCB2 | CABIN FIN | 2 | 0 | 1900 | 120.0 |
| | OWP | OPEN WOOD PORCH W/STEPS | 2 | 0 | 1900 | 282.6 |
Sketch
| No sketches available for this property. |
Property Image
Land
| 1 | HB | HIGH BLUFF | 1.3000 | 56628.00 | 90.00 | 0.00 | 1.00 | $600,000 | $0 |
| 2 | 55 | TIDES | 0.0000 | 0.00 | 90.00 | 0.00 | 1.00 | $900 | $0 |
Roll Value History
| 2026 | N/A | N/A | N/A | N/A | N/A |
| 2025 | $71,234 | $600,900 | $0 | $672,134 | $672,134 |
| 2024 | $59,299 | $575,900 | $0 | $635,199 | $635,199 |
| 2023 | $60,192 | $550,900 | $0 | $611,092 | $611,092 |
| 2022 | $54,730 | $425,900 | $0 | $480,630 | $480,630 |
| 2021 | $48,290 | $400,900 | $0 | $449,190 | $449,190 |
| 2020 | $47,405 | $325,900 | $0 | $373,305 | $373,305 |
| 2019 | $35,833 | $375,900 | $0 | $411,733 | $411,733 |
| 2018 | $14,390 | $300,000 | $0 | $314,390 | $314,390 |
| 2017 | $14,390 | $250,900 | $0 | $265,290 | $265,290 |
| 2016 | $14,390 | $250,900 | $0 | $265,290 | $265,290 |
| 2015 | $14,390 | $250,900 | $0 | $265,290 | $265,290 |
| 2014 | $14,390 | $250,900 | $0 | $265,290 | $265,290 |
| 2013 | $47,272 | $114,615 | $0 | $161,887 | $161,887 |
| 2012 | $47,272 | $114,615 | $0 | $161,887 | $161,887 |
| 2011 | $47,272 | $114,615 | $0 | $161,887 | $161,887 |
| 2010 | $48,112 | $114,615 | $0 | $162,727 | $162,727 |
| 2009 | $26,034 | $210,640 | $0 | $236,674 | $236,674 |
| 2008 | $26,045 | $211,273 | $0 | $237,318 | $237,318 |
| 2007 | $26,546 | $210,643 | $0 | $237,189 | $237,189 |
Deed and Sales History
| 1 | 09/30/2008 | EZ | Easement | REYNOLDS, MICHAEL J | REYNOLDS, MICHAEL J | | | $2,100.00 | 90634 | 4247255 |
| 2 | 11/01/1993 | DECREE | Divorce Decree/Legal Separation | REYNOLDS, MICHAEL J | REYNOLDS, MICHAEL J | | | $0.00 | 34539 | 93023669 |
| 3 | 06/01/1970 | CD | DNU - Correction Deed | Unknown | REYNOLDS, MICHAEL J | | | $9,600.00 | 38792 | 0 |
Payout Agreement
| No payout information available.. |