Property
Account |
| Property ID: | 85927 | Abbreviated Legal Description: | LOTS 15 & N/2 LOT 16 GLENWOOD BCH(UNREC) INCL ADJ TIDELANDS |
| Geographic ID: | R23128-409-0400 | Agent Code: | |
| Type: | Real | | |
| Tax Area: | 312 - APPRAISER-Cpvl Schl Dist, outside Cpvl, improved, greater than 1 acre | Land Use Code | 11 |
| Open Space: | N | DFL | N |
| Historic Property: | N | Remodel Property: | N |
| Multi-Family Redevelopment: | N | | |
| Township: | 31 | Section: | 28 |
| Range: | R2 |
Location |
| Address: | 1697 NORTH BLUFF RD COUPEVILLE, WA 98239 | Mapsco: | |
| Neighborhood: | Area 2 Waterfront Eastside Res | Map ID: | 515 |
| Neighborhood CD: | 2WFTE01R |
Owner |
| Name: | GILL, AARON PATRICK | Owner ID: | 263979 |
| Mailing Address: | ANNE MARIE GILL 1697 NORTH BLUFF RD COUPEVILLE, WA 98239 | % Ownership: | 100.0000000000% |
| | | Exemptions: | |
Taxes and Assessment Details
Values
| (+) Improvement Homesite Value: | + | $0 | |
| (+) Improvement Non-Homesite Value: | + | $240,937 | |
| (+) Land Homesite Value: | + | $0 | |
| (+) Land Non-Homesite Value: | + | $651,370 | |
| (+) Curr Use (HS): | + | $0 | $0 |
| (+) Curr Use (NHS): | + | $0 | $0 |
| | | -------------------------- | |
| (=) Market Value: | = | $892,307 | |
| (–) Productivity Loss: | – | $0 | |
| | | -------------------------- | |
| (=) Subtotal: | = | $892,307 | |
| (+) Senior Appraised Value: | + | $0 | |
| (+) Non-Senior Appraised Value: | + | $892,307 | |
| | | -------------------------- | |
| (=) Total Appraised Value: | = | $892,307 | |
| (–) Senior Exemption Loss: | – | $0 | |
| (–) Exemption Loss: | – | $0 | |
| | | -------------------------- | |
| (=) Taxable Value: | = | $892,307 | |
Taxing Jurisdiction
| Owner: | GILL, AARON PATRICK | | |
| % Ownership: | 100.0000000000% | | |
| Total Value: | $892,307 | | |
| Tax Area: | 312 - APPRAISER-Cpvl Schl Dist, outside Cpvl, improved, greater than 1 acre |
| CF | Conservation Futures | 0.0316035091 | $892,307 | $892,307 | $28.20 | | |
| CEM2 | Cemetery #2 | 0.0095056933 | $892,307 | $892,307 | $8.48 | | |
| FIRE5 | Fire & Rescue Dist #5 C Whidbey GEN | 1.2008080668 | $892,307 | $892,307 | $1,071.49 | | |
| FIRE5BOND | Fire & Rescue Dist #5 C Whidbey BOND | 0.1400090713 | $892,307 | $892,307 | $124.93 | | |
| HOBOND | Hospital BOND | 0.1910887512 | $892,307 | $892,307 | $170.51 | | |
| HOGEN | Hospital GEN | 0.3902502903 | $892,307 | $892,307 | $348.22 | | |
| CE | County Current Expense | 0.3708482477 | $892,307 | $892,307 | $330.91 | | |
| CR | County Roads | 0.4584763726 | $892,307 | $892,307 | $409.10 | | |
| ISLANDEMS | Hospital GEN (EMS) | 0.5000000000 | $892,307 | $892,307 | $446.15 | | |
| LIB | Library Sno-Isle GEN | 0.3153421757 | $892,307 | $892,307 | $281.38 | | |
| LIBCAP | Library Sno-Isle BOND (Cap Fac Imp Area) | 0.0543427938 | $892,307 | $892,307 | $48.49 | | |
| POCOUP | Port of Coupeville GEN | 0.1093371703 | $892,307 | $892,307 | $97.56 | | |
| POCOUPIDD | Port of Coupeville IDD | 0.3409740022 | $892,307 | $892,307 | $304.25 | | |
| COUPSDTECH | School 204 CP (TECH) | 0.7545480007 | $892,307 | $892,307 | $673.29 | | |
| SCH204MO | School 204 Enrichment | 0.6716186034 | $892,307 | $892,307 | $599.29 | | |
| ST | State School | 1.3035497053 | $892,307 | $892,307 | $1,163.17 | | |
| ST2 | State School Part 2 | 0.8169543533 | $892,307 | $892,307 | $728.97 | | |
| | Total Tax Rate: | 7.6592568070 | | | | | |
| | | | | Taxes w/Current Exemptions: | $6,834.39 | | |
| | | | | Taxes w/o Exemptions: | $6,834.39 | | |
Improvement / Building
| Improvement #1: | RESIDENTIAL | State Code: | Y | 1592.0 sqft | Value: | $240,937 |
| Bathrooms: | 1.5 | Bedrooms: | 3 | | Ceiling: | DRYWALL PAINTED | Exterior Wall/Cover: | CEMENT FIBER | | Floor Covering: | HARDWOOD 100% | Floor Structure: | WOOD W/SUBFLOOR | | Foundation: | CONCRETE | Heating: | FHA ELECTRIC | | Interior Finish: | DRYWALL PAINT | Plumbing Fixture Cnt: | 8 | | Roof Slope: | 6" IN 12" | Roof Structure/Cover: | CJ ASPHALT |
|
| | Type | Description | Class CD | Sub Class CD | Year Built | Area |
| | BAS | BASE/MAIN FLOOR | 3 | 0 | 1932 | 1092.0 |
| | UB6 | BASEMENT UNFINISHED 6" | 3 | 0 | 1932 | 240.0 |
| | OP4 | OPEN PORCH W/CEILING-ROOF | 3 | 0 | 1932 | 276.0 |
| | OWP | OPEN WOOD PORCH W/STEPS | 3 | 0 | 1932 | 299.0 |
| | DWN | DOWNSTAIRS LIVING AREA | 3 | 0 | 1932 | 500.0 |
| | DGR | DETACHED GARAGE | 3 | 0 | 1932 | 676.0 |
| | OCP | OPEN CARPORT | 3 | 0 | 1932 | 105.0 |
| | OWC | OPEN WOOD PORCH W/STEPS/ROOF/C | 3 | 0 | 1932 | 104.0 |
Sketch
| No sketches available for this property. |
Property Image
Land
| 1 | HB | HIGH BLUFF | 2.7300 | 118918.80 | 137.00 | 0.00 | 1.00 | $650,000 | $0 |
| 2 | 55 | TIDES | 0.0000 | 0.00 | 137.00 | 0.00 | 1.00 | $1,370 | $0 |
Roll Value History
| 2026 | N/A | N/A | N/A | N/A | N/A |
| 2025 | $240,937 | $651,370 | $0 | $892,307 | $892,307 |
| 2024 | $206,064 | $626,370 | $0 | $832,434 | $832,434 |
| 2023 | $209,725 | $601,370 | $0 | $811,095 | $811,095 |
| 2022 | $193,238 | $476,370 | $0 | $669,608 | $669,608 |
| 2021 | $170,907 | $426,370 | $0 | $597,277 | $597,277 |
| 2020 | $167,612 | $351,370 | $0 | $518,982 | $518,982 |
| 2019 | $124,132 | $401,370 | $0 | $525,502 | $525,502 |
| 2018 | $96,487 | $300,000 | $0 | $396,487 | $396,487 |
| 2017 | $97,267 | $251,370 | $0 | $348,637 | $348,637 |
| 2016 | $98,828 | $251,370 | $0 | $350,198 | $350,198 |
| 2015 | $100,390 | $251,370 | $0 | $351,760 | $351,760 |
| 2014 | $101,951 | $251,370 | $0 | $353,321 | $353,321 |
| 2013 | $103,512 | $165,262 | $0 | $268,774 | $268,774 |
| 2012 | $100,985 | $165,262 | $0 | $266,247 | $266,247 |
| 2011 | $102,566 | $165,262 | $0 | $267,828 | $267,828 |
| 2010 | $113,645 | $165,262 | $0 | $278,907 | $278,907 |
| 2009 | $116,220 | $304,570 | $0 | $420,790 | $420,790 |
| 2008 | $118,045 | $304,570 | $0 | $422,615 | $422,615 |
| 2007 | $119,870 | $303,611 | $0 | $423,481 | $423,481 |
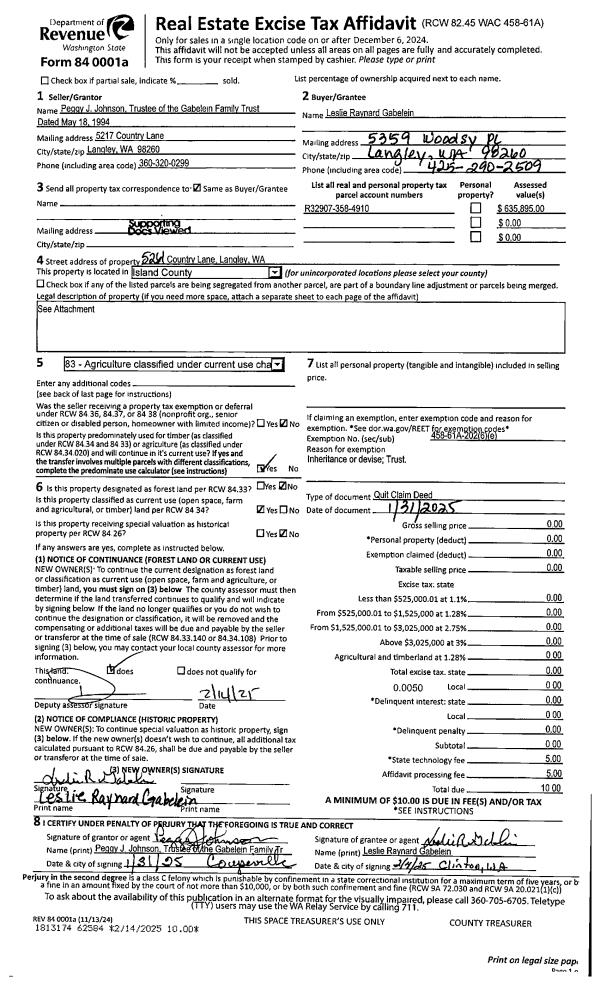
Deed and Sales History
| 1 | 10/14/2013 | WD | Warranty Deed | PARKHURST, MERLIN THOMAS | GILL, AARON PATRICK | | | $285,000.00 | 13130 | 4349756 |
| 2 | 04/09/2010 | QCD | Quit Claim Deed | PARKHURST, MERLIN | PARKHURST, MERLIN THOMAS | | | $0.00 | 917 | 4272400 |
| 3 | 05/10/2006 | QCD | Quit Claim Deed | PARKHURST, NYIT YOUNG C | PARKHURST, MERLIN | | | $0.00 | 62095 | 4170470 |
| 4 | 09/16/1999 | QCD | Quit Claim Deed | PARKHURST, CHARLES E | PARKHURST, NYIT YOUNG C | | | $0.00 | 93968 | 99022036 |
| 5 | 01/01/1900 | OTHER | Other - Misc. Documents | Unknown | PARKHURST, CHARLES E | | | $0.00 | 0 | 0 |
Payout Agreement
| No payout information available.. |