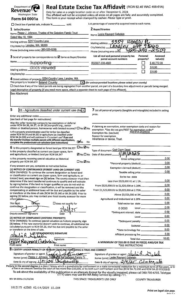
Property
Account |
| Property ID: | 85945 | Abbreviated Legal Description: | LOT 12 GLENWOOD BCH(UNREC) INCL ADJ TIDELANDS |
| Geographic ID: | R23128-440-0170 | Agent Code: | |
| Type: | Real | | |
| Tax Area: | 312 - APPRAISER-Cpvl Schl Dist, outside Cpvl, improved, greater than 1 acre | Land Use Code | 11 |
| Open Space: | N | DFL | N |
| Historic Property: | N | Remodel Property: | N |
| Multi-Family Redevelopment: | N | | |
| Township: | 31 | Section: | 28 |
| Range: | R2 |
Location |
| Address: | 1675 NORTH BLUFF RD COUPEVILLE, WA 98239 | Mapsco: | |
| Neighborhood: | Area 2 Waterfront Eastside Res | Map ID: | 515 |
| Neighborhood CD: | 2WFTE01R |
Owner |
| Name: | MAZICK, MICHAEL J | Owner ID: | 311527 |
| Mailing Address: | 1675 N BLUFF RD COUPEVILLE, WA 98239 | % Ownership: | 100.0000000000% |
| | | Exemptions: | |
Taxes and Assessment Details
Values
| (+) Improvement Homesite Value: | + | $0 | |
| (+) Improvement Non-Homesite Value: | + | $514,430 | |
| (+) Land Homesite Value: | + | $0 | |
| (+) Land Non-Homesite Value: | + | $626,000 | |
| (+) Curr Use (HS): | + | $0 | $0 |
| (+) Curr Use (NHS): | + | $0 | $0 |
| | | -------------------------- | |
| (=) Market Value: | = | $1,140,430 | |
| (–) Productivity Loss: | – | $0 | |
| | | -------------------------- | |
| (=) Subtotal: | = | $1,140,430 | |
| (+) Senior Appraised Value: | + | $0 | |
| (+) Non-Senior Appraised Value: | + | $1,140,430 | |
| | | -------------------------- | |
| (=) Total Appraised Value: | = | $1,140,430 | |
| (–) Senior Exemption Loss: | – | $0 | |
| (–) Exemption Loss: | – | $0 | |
| | | -------------------------- | |
| (=) Taxable Value: | = | $1,140,430 | |
Taxing Jurisdiction
| Owner: | MAZICK, MICHAEL J | | |
| % Ownership: | 100.0000000000% | | |
| Total Value: | $1,140,430 | | |
| Tax Area: | 312 - APPRAISER-Cpvl Schl Dist, outside Cpvl, improved, greater than 1 acre |
| CF | Conservation Futures | 0.0316035091 | $1,140,430 | $1,140,430 | $36.04 | | |
| CEM2 | Cemetery #2 | 0.0095056933 | $1,140,430 | $1,140,430 | $10.84 | | |
| FIRE5 | Fire & Rescue Dist #5 C Whidbey GEN | 1.2008080668 | $1,140,430 | $1,140,430 | $1,369.44 | | |
| FIRE5BOND | Fire & Rescue Dist #5 C Whidbey BOND | 0.1400090713 | $1,140,430 | $1,140,430 | $159.67 | | |
| HOBOND | Hospital BOND | 0.1910887512 | $1,140,430 | $1,140,430 | $217.92 | | |
| HOGEN | Hospital GEN | 0.3902502903 | $1,140,430 | $1,140,430 | $445.05 | | |
| CE | County Current Expense | 0.3708482477 | $1,140,430 | $1,140,430 | $422.93 | | |
| CR | County Roads | 0.4584763726 | $1,140,430 | $1,140,430 | $522.86 | | |
| ISLANDEMS | Hospital GEN (EMS) | 0.5000000000 | $1,140,430 | $1,140,430 | $570.22 | | |
| LIB | Library Sno-Isle GEN | 0.3153421757 | $1,140,430 | $1,140,430 | $359.63 | | |
| LIBCAP | Library Sno-Isle BOND (Cap Fac Imp Area) | 0.0543427938 | $1,140,430 | $1,140,430 | $61.97 | | |
| POCOUP | Port of Coupeville GEN | 0.1093371703 | $1,140,430 | $1,140,430 | $124.69 | | |
| POCOUPIDD | Port of Coupeville IDD | 0.3409740022 | $1,140,430 | $1,140,430 | $388.86 | | |
| COUPSDTECH | School 204 CP (TECH) | 0.7545480007 | $1,140,430 | $1,140,430 | $860.51 | | |
| SCH204MO | School 204 Enrichment | 0.6716186034 | $1,140,430 | $1,140,430 | $765.93 | | |
| ST | State School | 1.3035497053 | $1,140,430 | $1,140,430 | $1,486.61 | | |
| ST2 | State School Part 2 | 0.8169543533 | $1,140,430 | $1,140,430 | $931.68 | | |
| | Total Tax Rate: | 7.6592568070 | | | | | |
| | | | | Taxes w/Current Exemptions: | $8,734.85 | | |
| | | | | Taxes w/o Exemptions: | $8,734.85 | | |
Improvement / Building
| Improvement #1: | RESIDENTIAL | State Code: | Y | 956.0 sqft | Value: | $213,764 |
| Bathrooms: | 1 | Bedrooms: | 2 | | Ceiling: | DRYWALL PAINTED | Exterior Wall/Cover: | CEMENT FIBER | | Floor Covering: | CARPET/VINYL 80-20 | Floor Structure: | WOOD W/SUBFLOOR | | Foundation: | CONCRETE | Heating: | WALL HEAT ELECTRIC | | Interior Finish: | DRYWALL PAINT | Plumbing Fixture Cnt: | 8 | | Roof Slope: | 4" IN 12" | Roof Structure/Cover: | CJ ASPHALT |
|
| | Type | Description | Class CD | Sub Class CD | Year Built | Area |
| | BAS | BASE/MAIN FLOOR | 3 | 0 | 2001 | 794.0 |
| | DWN | DOWNSTAIRS LIVING AREA | 3 | 0 | 2001 | 90.0 |
| | DWN | DOWNSTAIRS LIVING AREA | 3 | 0 | 2001 | 72.0 |
| | BIG | BUILT IN GARAGE | 3 | 0 | 2001 | 918.0 |
| | OWP | OPEN WOOD PORCH W/STEPS | 3 | 0 | 2001 | 96.0 |
| | OWR | OPEN WOOD PORCH W/STEPS/ROOF | 3 | 0 | 2001 | 28.0 |
| Improvement #2: | RESIDENTIAL | State Code: | Y | 1567.9 sqft | Value: | $300,666 |
| Bathrooms: | 1.5 | Bedrooms: | 1 | | Ceiling: | DRYWALL PAINTED | Exterior Wall/Cover: | WOOD SIDING | | Floor Covering: | HARDWOOD/CARP 60-40 | Floor Structure: | WOOD W/SUBFLOOR | | Foundation: | CONCRETE | Heating: | GAS HEATERS | | Interior Finish: | DRYWALL PAINT | Plumbing Fixture Cnt: | 8 | | Roof Slope: | 6" IN 12" | Roof Structure/Cover: | CJ ASPHALT |
|
| | Type | Description | Class CD | Sub Class CD | Year Built | Area |
| | BAS | BASE/MAIN FLOOR | 3 | 0 | 2007 | 879.9 |
| | OP1 | OPEN PORCH SLAB | 3 | 0 | 2007 | 244.9 |
| | OP3 | OPEN PORCH W/ROOF | 3 | 0 | 2007 | 234.1 |
| | UPS | UPPER STORY | 3 | 0 | 2007 | 688.0 |
| | BAW | BALCONY WOOD RAIL | 3 | 0 | 2007 | 96.0 |
| | OWP | OPEN WOOD PORCH W/STEPS | 3 | 0 | 2007 | 333.3 |
Sketch
| No sketches available for this property. |
Property Image
Land
| 1 | MB | MEDIUM BANK | 1.8100 | 78843.60 | 88.00 | 0.00 | 1.00 | $625,000 | $0 |
| 2 | 55 | TIDES | 0.0000 | 0.00 | 100.00 | 0.00 | 1.00 | $1,000 | $0 |
Roll Value History
| 2026 | N/A | N/A | N/A | N/A | N/A |
| 2025 | $514,430 | $626,000 | $0 | $1,140,430 | $1,140,430 |
| 2024 | $503,413 | $601,000 | $0 | $1,104,413 | $1,104,413 |
| 2023 | $509,354 | $576,000 | $0 | $1,085,354 | $1,085,354 |
| 2022 | $466,393 | $451,000 | $0 | $917,393 | $917,393 |
| 2021 | $415,157 | $451,000 | $0 | $866,157 | $866,157 |
| 2020 | $403,218 | $451,000 | $0 | $854,218 | $854,218 |
| 2019 | $289,516 | $501,000 | $0 | $790,516 | $790,516 |
| 2018 | $263,368 | $351,000 | $0 | $614,368 | $614,368 |
| 2017 | $264,798 | $301,000 | $0 | $565,798 | $565,798 |
| 2016 | $267,823 | $301,000 | $0 | $568,823 | $568,823 |
| 2015 | $270,848 | $301,000 | $0 | $571,848 | $571,848 |
| 2014 | $273,872 | $301,000 | $0 | $574,872 | $574,872 |
| 2013 | $276,895 | $278,587 | $0 | $555,482 | $555,482 |
| 2012 | $279,918 | $278,587 | $0 | $558,505 | $558,505 |
| 2011 | $282,943 | $278,587 | $0 | $561,530 | $561,530 |
| 2010 | $299,389 | $278,587 | $0 | $577,976 | $577,976 |
| 2009 | $311,914 | $323,776 | $0 | $635,690 | $635,690 |
| 2008 | $312,584 | $183,979 | $0 | $496,563 | $496,563 |
| 2007 | $126,284 | $183,279 | $0 | $309,563 | $309,563 |
Deed and Sales History
| 1 | 08/06/2020 | CPADC | Comm Prop Agmnt & Death Cert | MAZICK, MICHAEL J | MAZICK, MICHAEL J | | | $0.00 | 59287 | 4569773 |
| 2 | 10/28/1999 | WD | Warranty Deed | PHILLIPS, ELAINE | MAZICK, MICHAEL J | | | $140,000.00 | 94556 | 99025108 |
| 3 | 04/01/1997 | 5 | DNU - Marriage License/Name Change | FORD, ELAINE M | PHILLIPS, ELAINE | | | $0.00 | 67368 | 0 |
| 4 | 09/01/1988 | OTHER | Other - Misc. Documents | BAILEY, ELAINE M | FORD, ELAINE M | | | $0.00 | 62838 | 0 |
| 5 | 03/01/1984 | PRD | Personal Representatives Deed | BAILEY, ELAINE M | BAILEY, ELAINE M | | | $0.00 | 40731 | 422302 |
| 6 | 04/01/1979 | OTHER | Other - Misc. Documents | Unknown | BAILEY, ELAINE M | | | $0.00 | 91956 | 351537 |
Payout Agreement
| No payout information available.. |