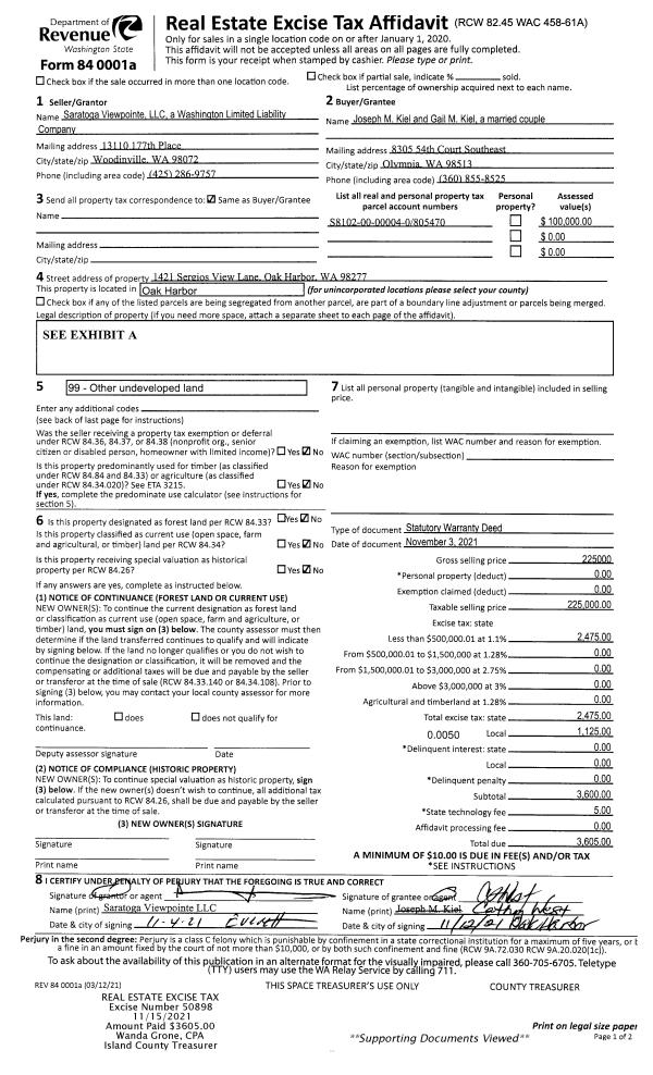
Property
Account |
| Property ID: | 86025 | Abbreviated Legal Description: | 26 - IN SW SW: N8AC OF S16AC OF PT OF SW SW LY E OF ST HWY EX PT TO ST HWY AF#20010883 |
| Geographic ID: | R23129-055-0830 | Agent Code: | |
| Type: | Real | | |
| Tax Area: | 319 - APPRAISER-Cpvl Schl Dist, outside Cpvl, vacant & 50 acres or less | Land Use Code | 91 |
| Open Space: | N | DFL | N |
| Historic Property: | N | Remodel Property: | N |
| Multi-Family Redevelopment: | N | | |
| Township: | 31 | Section: | 29 |
| Range: | R2 |
Location |
| Address: | 28180 SR 525 COUPEVILLE, WA 98239 | Mapsco: | |
| Neighborhood: | Cycle 2 | Map ID: | 516 |
| Neighborhood CD: | 2 |
Owner |
| Name: | HELVEY JR, FRANK DOUGLAS | Owner ID: | 298388 |
| Mailing Address: | ANNETTE MARIE BJORKMAN-BANKS 3152 FOREST KNOLL LN LANGLEY, WA 98260 | % Ownership: | 100.0000000000% |
| | | Exemptions: | |
Taxes and Assessment Details
Values
| (+) Improvement Homesite Value: | + | $0 | |
| (+) Improvement Non-Homesite Value: | + | $0 | |
| (+) Land Homesite Value: | + | $0 | |
| (+) Land Non-Homesite Value: | + | $166,176 | |
| (+) Curr Use (HS): | + | $0 | $0 |
| (+) Curr Use (NHS): | + | $0 | $0 |
| | | -------------------------- | |
| (=) Market Value: | = | $166,176 | |
| (–) Productivity Loss: | – | $0 | |
| | | -------------------------- | |
| (=) Subtotal: | = | $166,176 | |
| (+) Senior Appraised Value: | + | $0 | |
| (+) Non-Senior Appraised Value: | + | $166,176 | |
| | | -------------------------- | |
| (=) Total Appraised Value: | = | $166,176 | |
| (–) Senior Exemption Loss: | – | $0 | |
| (–) Exemption Loss: | – | $0 | |
| | | -------------------------- | |
| (=) Taxable Value: | = | $166,176 | |
Taxing Jurisdiction
| Owner: | HELVEY JR, FRANK DOUGLAS | | |
| % Ownership: | 100.0000000000% | | |
| Total Value: | $166,176 | | |
| Tax Area: | 319 - APPRAISER-Cpvl Schl Dist, outside Cpvl, vacant & 50 acres or less |
| CF | Conservation Futures | 0.0316035091 | $166,176 | $166,176 | $5.25 | | |
| CEM2 | Cemetery #2 | 0.0095056933 | $166,176 | $166,176 | $1.58 | | |
| HOBOND | Hospital BOND | 0.1910887512 | $166,176 | $166,176 | $31.75 | | |
| HOGEN | Hospital GEN | 0.3902502903 | $166,176 | $166,176 | $64.85 | | |
| CE | County Current Expense | 0.3708482477 | $166,176 | $166,176 | $61.63 | | |
| CR | County Roads | 0.4584763726 | $166,176 | $166,176 | $76.19 | | |
| ISLANDEMS | Hospital GEN (EMS) | 0.5000000000 | $166,176 | $166,176 | $83.09 | | |
| LIB | Library Sno-Isle GEN | 0.3153421757 | $166,176 | $166,176 | $52.40 | | |
| LIBCAP | Library Sno-Isle BOND (Cap Fac Imp Area) | 0.0543427938 | $166,176 | $166,176 | $9.03 | | |
| POCOUP | Port of Coupeville GEN | 0.1093371703 | $166,176 | $166,176 | $18.17 | | |
| POCOUPIDD | Port of Coupeville IDD | 0.3409740022 | $166,176 | $166,176 | $56.66 | | |
| COUPSDTECH | School 204 CP (TECH) | 0.7545480007 | $166,176 | $166,176 | $125.39 | | |
| SCH204MO | School 204 Enrichment | 0.6716186034 | $166,176 | $166,176 | $111.61 | | |
| ST | State School | 1.3035497053 | $166,176 | $166,176 | $216.62 | | |
| ST2 | State School Part 2 | 0.8169543533 | $166,176 | $166,176 | $135.76 | | |
| | Total Tax Rate: | 6.3184396689 | | | | | |
| | | | | Taxes w/Current Exemptions: | $1,049.98 | | |
| | | | | Taxes w/o Exemptions: | $1,049.98 | | |
Improvement / Building
Sketch
| No sketches available for this property. |
Property Image
Land
| 1 | 32 | AC (03.01-09.99) | 7.7100 | 335847.60 | 0.00 | 0.00 | 1.00 | $166,176 | $0 |
Roll Value History
| 2026 | N/A | N/A | N/A | N/A | N/A |
| 2025 | $0 | $166,176 | $0 | $166,176 | $166,176 |
| 2024 | $0 | $140,000 | $0 | $140,000 | $140,000 |
| 2023 | $0 | $140,000 | $0 | $140,000 | $140,000 |
| 2022 | $0 | $130,000 | $0 | $130,000 | $130,000 |
| 2021 | $0 | $130,000 | $0 | $130,000 | $130,000 |
| 2020 | $0 | $120,000 | $0 | $120,000 | $120,000 |
| 2019 | $0 | $125,000 | $0 | $125,000 | $125,000 |
| 2018 | $0 | $100,000 | $0 | $100,000 | $100,000 |
| 2017 | $0 | $55,000 | $0 | $55,000 | $55,000 |
| 2016 | $0 | $75,000 | $0 | $75,000 | $75,000 |
| 2015 | $0 | $65,000 | $0 | $65,000 | $65,000 |
| 2014 | $0 | $65,000 | $0 | $65,000 | $65,000 |
| 2013 | $0 | $65,000 | $0 | $65,000 | $65,000 |
| 2012 | $0 | $65,000 | $0 | $65,000 | $65,000 |
| 2011 | $0 | $65,000 | $0 | $65,000 | $65,000 |
| 2010 | $0 | $65,000 | $0 | $65,000 | $65,000 |
| 2009 | $0 | $100,000 | $0 | $100,000 | $100,000 |
| 2008 | $0 | $84,000 | $0 | $84,000 | $84,000 |
| 2007 | $0 | $84,000 | $0 | $84,000 | $84,000 |
Deed and Sales History
| 1 | 02/22/2021 | WD | Warranty Deed | MINOGUE, MICHAEL / SUSAN J | HELVEY JR, FRANK DOUGLAS | | | $139,000.00 | 47249 | 4512868 |
| 2 | 05/24/2000 | WD | Warranty Deed | MINOGUE, MICHAEL/SUSAN J | MINOGUE, MICHAEL/SUSAN J | | | $3,000.00 | 2273 | 20010883 |
| 3 | 04/01/1997 | WD | Warranty Deed | EPSTEIN, ROGER H | MINOGUE, MICHAEL/SUSAN J | | | $46,000.00 | 71386 | 97006279 |
| 4 | 03/01/1981 | REC | Real Estate Contract | EPSTEIN, ROGER H | EPSTEIN, ROGER H | | | $45,000.00 | 11075 | 381684 |
| 5 | 03/01/1981 | REC | Real Estate Contract | KOLLMAR, GERALDINE M | EPSTEIN, ROGER H | | | $22,500.00 | 11075 | 381684 |
| 6 | 09/01/1978 | OTHER | Other - Misc. Documents | Unknown | KOLLMAR, GERALDINE M | | | $16,000.00 | 84739 | 340335 |
Payout Agreement
| No payout information available.. |