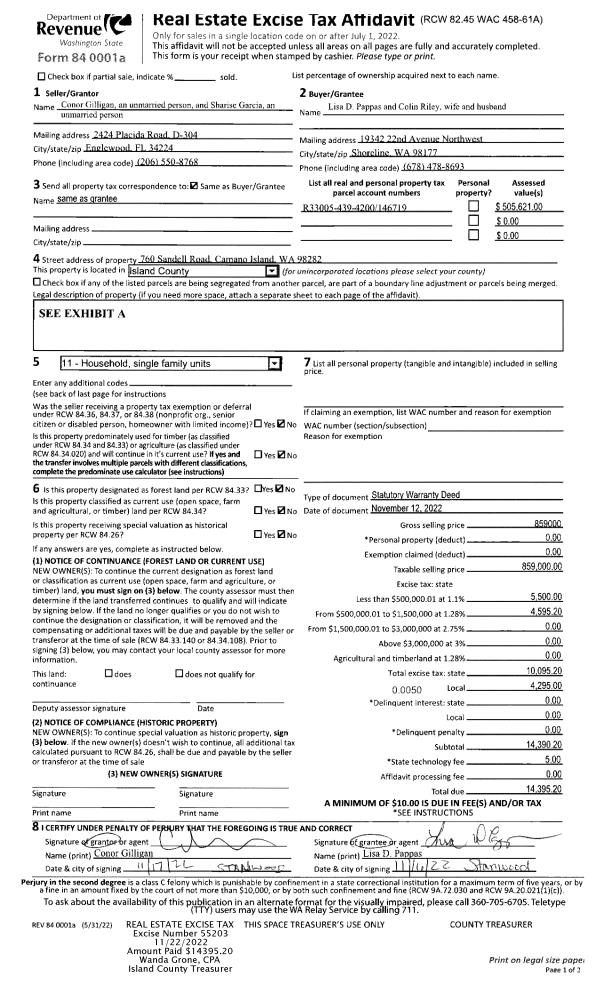
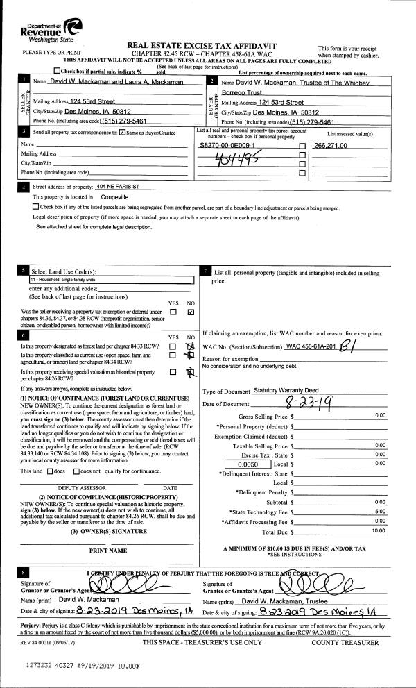
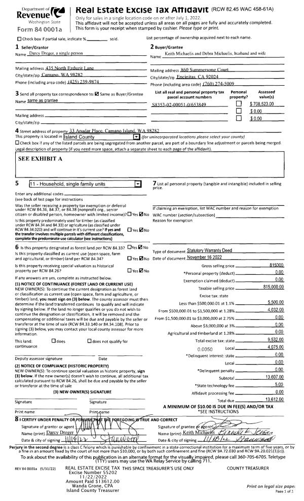
Property
Account |
| Property ID: | 86472 | Abbreviated Legal Description: | 33 - N200'OF S620'OF GL 2 |
| Geographic ID: | R23130-321-0970 | Agent Code: | |
| Type: | Real | | |
| Tax Area: | 312 - APPRAISER-Cpvl Schl Dist, outside Cpvl, improved, greater than 1 acre | Land Use Code | 11 |
| Open Space: | N | DFL | N |
| Historic Property: | N | Remodel Property: | N |
| Multi-Family Redevelopment: | N | | |
| Township: | 31 | Section: | 30 |
| Range: | R2 |
Location |
| Address: | 94 DONAHEY RD COUPEVILLE, WA 98239 | Mapsco: | |
| Neighborhood: | Area 2 Waterfront Westside Residential | Map ID: | 522 |
| Neighborhood CD: | 2WFW01R |
Owner |
| Name: | CANON INVESTMENTS, LLC | Owner ID: | 310912 |
| Mailing Address: | PO BOX 2117 CAREFREE, AZ 85377 | % Ownership: | 100.0000000000% |
| | | Exemptions: | |
Taxes and Assessment Details
Values
| (+) Improvement Homesite Value: | + | $0 | |
| (+) Improvement Non-Homesite Value: | + | $1,527,972 | |
| (+) Land Homesite Value: | + | $0 | |
| (+) Land Non-Homesite Value: | + | $650,000 | |
| (+) Curr Use (HS): | + | $0 | $0 |
| (+) Curr Use (NHS): | + | $0 | $0 |
| | | -------------------------- | |
| (=) Market Value: | = | $2,177,972 | |
| (–) Productivity Loss: | – | $0 | |
| | | -------------------------- | |
| (=) Subtotal: | = | $2,177,972 | |
| (+) Senior Appraised Value: | + | $0 | |
| (+) Non-Senior Appraised Value: | + | $2,177,972 | |
| | | -------------------------- | |
| (=) Total Appraised Value: | = | $2,177,972 | |
| (–) Senior Exemption Loss: | – | $0 | |
| (–) Exemption Loss: | – | $0 | |
| | | -------------------------- | |
| (=) Taxable Value: | = | $2,177,972 | |
Taxing Jurisdiction
| Owner: | CANON INVESTMENTS, LLC | | |
| % Ownership: | 100.0000000000% | | |
| Total Value: | $2,177,972 | | |
| Tax Area: | 312 - APPRAISER-Cpvl Schl Dist, outside Cpvl, improved, greater than 1 acre |
| CF | Conservation Futures | 0.0316035091 | $2,177,972 | $2,177,972 | $68.83 | | |
| CEM2 | Cemetery #2 | 0.0095056933 | $2,177,972 | $2,177,972 | $20.70 | | |
| FIRE5 | Fire & Rescue Dist #5 C Whidbey GEN | 1.2008080668 | $2,177,972 | $2,177,972 | $2,615.33 | | |
| FIRE5BOND | Fire & Rescue Dist #5 C Whidbey BOND | 0.1400090713 | $2,177,972 | $2,177,972 | $304.94 | | |
| HOBOND | Hospital BOND | 0.1910887512 | $2,177,972 | $2,177,972 | $416.19 | | |
| HOGEN | Hospital GEN | 0.3902502903 | $2,177,972 | $2,177,972 | $849.95 | | |
| CE | County Current Expense | 0.3708482477 | $2,177,972 | $2,177,972 | $807.70 | | |
| CR | County Roads | 0.4584763726 | $2,177,972 | $2,177,972 | $998.55 | | |
| ISLANDEMS | Hospital GEN (EMS) | 0.5000000000 | $2,177,972 | $2,177,972 | $1,088.99 | | |
| LIB | Library Sno-Isle GEN | 0.3153421757 | $2,177,972 | $2,177,972 | $686.81 | | |
| LIBCAP | Library Sno-Isle BOND (Cap Fac Imp Area) | 0.0543427938 | $2,177,972 | $2,177,972 | $118.36 | | |
| POCOUP | Port of Coupeville GEN | 0.1093371703 | $2,177,972 | $2,177,972 | $238.13 | | |
| POCOUPIDD | Port of Coupeville IDD | 0.3409740022 | $2,177,972 | $2,177,972 | $742.63 | | |
| COUPSDTECH | School 204 CP (TECH) | 0.7545480007 | $2,177,972 | $2,177,972 | $1,643.38 | | |
| SCH204MO | School 204 Enrichment | 0.6716186034 | $2,177,972 | $2,177,972 | $1,462.77 | | |
| ST | State School | 1.3035497053 | $2,177,972 | $2,177,972 | $2,839.09 | | |
| ST2 | State School Part 2 | 0.8169543533 | $2,177,972 | $2,177,972 | $1,779.30 | | |
| | Total Tax Rate: | 7.6592568070 | | | | | |
| | | | | Taxes w/Current Exemptions: | $16,681.65 | | |
| | | | | Taxes w/o Exemptions: | $16,681.65 | | |
Improvement / Building
| Improvement #1: | RESIDENTIAL | State Code: | Y | 4229.0 sqft | Value: | $1,527,972 |
| Bathrooms: | 3 | Bedrooms: | 3 | | Ceiling: | TONGUE & GROOVE | Cooling: | HEAT PUMP/CONV/V | | Exterior Wall/Cover: | WOOD SIDING | Floor Covering: | CERAMIC TILE/HWD 40/60 | | Floor Structure: | WOOD W/SUBFLOOR | Foundation: | CONCRETE | | Interior Finish: | DRYWALL PAINT | Plumbing Fixture Cnt: | 17 | | Roof Slope: | 6" IN 12" | Roof Structure/Cover: | BEAM ALUMINUM HEAVY |
|
| | Type | Description | Class CD | Sub Class CD | Year Built | Area |
| | DGR | DETACHED GARAGE | 6 | 0 | 2011 | 720.0 |
| | BAS | BASE/MAIN FLOOR | 6 | 0 | 2011 | 3147.0 |
| | OP4 | OPEN PORCH W/CEILING-ROOF | 6 | 0 | 2011 | 48.0 |
| | UPS | UPPER STORY | 6 | 0 | 2011 | 1082.0 |
| | OP2 | OPEN PORCH W/STEPS | 6 | 0 | 2011 | 144.0 |
| | OP2 | OPEN PORCH W/STEPS | 6 | 0 | 2011 | 539.0 |
| | OP4 | OPEN PORCH W/CEILING-ROOF | 6 | 0 | 2011 | 182.0 |
| | UTY | STORAGE/UTILITY | 3 | 0 | 2011 | 280.0 |
| | AGR | ATTACHED GARAGE | 6 | 0 | 2011 | 944.0 |
| | OP4 | OPEN PORCH W/CEILING-ROOF | 6 | 0 | 2011 | 108.0 |
Sketch
| No sketches available for this property. |
Property Image
Land
| 1 | HB | HIGH BLUFF | 2.6000 | 113256.00 | 200.00 | 0.00 | 1.00 | $650,000 | $0 |
Roll Value History
| 2026 | N/A | N/A | N/A | N/A | N/A |
| 2025 | $1,527,972 | $650,000 | $0 | $2,177,972 | $2,177,972 |
| 2024 | $1,435,902 | $600,000 | $0 | $2,035,902 | $2,035,902 |
| 2023 | $1,452,268 | $575,000 | $0 | $2,027,268 | $2,027,268 |
| 2022 | $1,330,635 | $575,000 | $0 | $1,905,635 | $1,905,635 |
| 2021 | $1,167,781 | $575,000 | $0 | $1,742,781 | $1,742,781 |
| 2020 | $1,136,455 | $520,000 | $0 | $1,656,455 | $1,656,455 |
| 2019 | $1,081,245 | $550,000 | $0 | $1,631,245 | $1,631,245 |
| 2018 | $1,086,330 | $400,000 | $0 | $1,486,330 | $1,486,330 |
| 2017 | $1,092,158 | $400,000 | $0 | $1,492,158 | $1,492,158 |
| 2016 | $1,103,817 | $400,000 | $0 | $1,503,817 | $1,503,817 |
| 2015 | $1,115,473 | $400,000 | $0 | $1,515,473 | $1,515,473 |
| 2014 | $1,127,130 | $400,000 | $0 | $1,527,130 | $1,527,130 |
| 2013 | $1,138,787 | $264,528 | $0 | $1,403,315 | $1,403,315 |
| 2012 | $1,151,983 | $264,528 | $0 | $1,416,511 | $1,416,511 |
| 2011 | $1,167,207 | $264,528 | $0 | $1,431,735 | $1,431,735 |
| 2010 | $500 | $264,528 | $0 | $265,028 | $265,028 |
| 2009 | $18,696 | $308,616 | $0 | $327,312 | $327,312 |
| 2008 | $18,696 | $285,470 | $0 | $304,166 | $304,166 |
| 2007 | $18,696 | $285,470 | $0 | $304,166 | $304,166 |
Deed and Sales History
| 1 | 12/06/2023 | QCD | Quit Claim Deed | WEST TTEE, GARY D | CANON INVESTMENTS, LLC | | | $0.00 | 58707 | 4567412 |
| 2 | 02/09/2022 | QCD | Quit Claim Deed | WEST TTEE, CORBIN H | WEST TTEE, GARY D | | | $0.00 | 52329 | 4541663 |
| 3 | 02/09/2022 | QCD | Quit Claim Deed | WEST TTEE, JOHN C | WEST TTEE, GARY D | | | $0.00 | 52328 | 4541662 |
| 4 | 02/02/2022 | QCD | Quit Claim Deed | GARY D WEST FAMILY, LLC (90%) | WEST TTEE, GARY D | | | $0.00 | 52327 | 4541661 |
| 5 | 08/21/2019 | WD | Warranty Deed | WEST TTEE, GARY D | GARY D WEST FAMILY, LLC (90%) | | | $0.00 | 40271 | 4472751 |
| 6 | 08/21/2019 | OTHER | Other - Misc. Documents | WEST TRUSTEE, GARY D | WEST TTEE, GARY D | | | $0.00 | 40269 | 4472749 |
| 7 | 01/08/2013 | QCD | Quit Claim Deed | GARY D WEST FAMILY LLC | WEST TRUSTEE, GARY D | | | $0.00 | 10081 | 4331034 |
| 8 | 10/09/2009 | WD | Warranty Deed | HUNT, PATRICIA H | GARY D WEST FAMILY LLC, | | | $350,000.00 | 92550 | 4262230 |
| 9 | 06/17/2004 | 5 | DNU - Marriage License/Name Change | HUNT, JAMES W | HUNT, PATRICIA H | | | $0.00 | 70300 | 0 |
| 10 | 01/01/1900 | OTHER | Other - Misc. Documents | Unknown | HUNT, JAMES W | | | $0.00 | 0 | 0 |
Payout Agreement
| No payout information available.. |