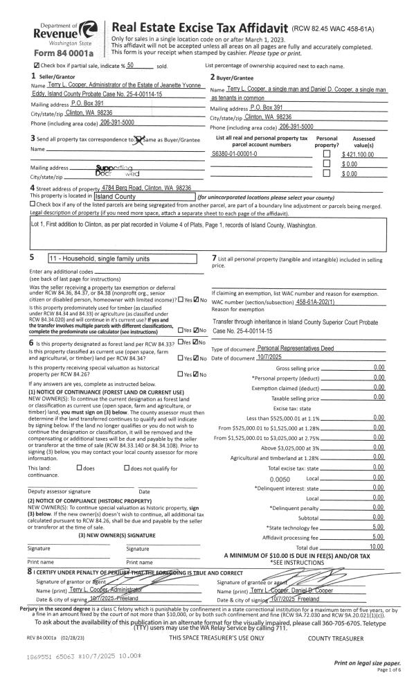
Property
Account |
| Property ID: | 86506 | Abbreviated Legal Description: | 9 - IN SE NE:BG SW CR SE NE N543.82' TPB N378.38' TO SLN RD E576' S378.38' W576' TPB SUB TO EZ TGW UNDIV 1/5 INT IN TOTAL WATER SYSTEM |
| Geographic ID: | R23130-339-3010 | Agent Code: | |
| Type: | Real | | |
| Tax Area: | 312 - APPRAISER-Cpvl Schl Dist, outside Cpvl, improved, greater than 1 acre | Land Use Code | 11 |
| Open Space: | N | DFL | N |
| Historic Property: | N | Remodel Property: | N |
| Multi-Family Redevelopment: | N | | |
| Township: | 31 | Section: | 30 |
| Range: | R2 |
Location |
| Address: | 196 DONAHEY RD COUPEVILLE, WA 98239 | Mapsco: | |
| Neighborhood: | Cycle 2 | Map ID: | 523 |
| Neighborhood CD: | 2 |
Owner |
| Name: | MEYER, EDWARD | Owner ID: | 308986 |
| Mailing Address: | 1851 SW PUTNAM DR OAK HARBOR, WA 98277 | % Ownership: | 100.0000000000% |
| | | Exemptions: | |
Taxes and Assessment Details
Values
| (+) Improvement Homesite Value: | + | $0 | |
| (+) Improvement Non-Homesite Value: | + | $6,090 | |
| (+) Land Homesite Value: | + | $0 | |
| (+) Land Non-Homesite Value: | + | $157,500 | |
| (+) Curr Use (HS): | + | $0 | $0 |
| (+) Curr Use (NHS): | + | $0 | $0 |
| | | -------------------------- | |
| (=) Market Value: | = | $163,590 | |
| (–) Productivity Loss: | – | $0 | |
| | | -------------------------- | |
| (=) Subtotal: | = | $163,590 | |
| (+) Senior Appraised Value: | + | $0 | |
| (+) Non-Senior Appraised Value: | + | $163,590 | |
| | | -------------------------- | |
| (=) Total Appraised Value: | = | $163,590 | |
| (–) Senior Exemption Loss: | – | $0 | |
| (–) Exemption Loss: | – | $0 | |
| | | -------------------------- | |
| (=) Taxable Value: | = | $163,590 | |
Taxing Jurisdiction
| Owner: | MEYER, EDWARD | | |
| % Ownership: | 100.0000000000% | | |
| Total Value: | $163,590 | | |
| Tax Area: | 312 - APPRAISER-Cpvl Schl Dist, outside Cpvl, improved, greater than 1 acre |
| CF | Conservation Futures | 0.0316035091 | $163,590 | $163,590 | $5.17 | | |
| CEM2 | Cemetery #2 | 0.0095056933 | $163,590 | $163,590 | $1.56 | | |
| FIRE5 | Fire & Rescue Dist #5 C Whidbey GEN | 1.2008080668 | $163,590 | $163,590 | $196.44 | | |
| FIRE5BOND | Fire & Rescue Dist #5 C Whidbey BOND | 0.1400090713 | $163,590 | $163,590 | $22.90 | | |
| HOBOND | Hospital BOND | 0.1910887512 | $163,590 | $163,590 | $31.26 | | |
| HOGEN | Hospital GEN | 0.3902502903 | $163,590 | $163,590 | $63.84 | | |
| CE | County Current Expense | 0.3708482477 | $163,590 | $163,590 | $60.67 | | |
| CR | County Roads | 0.4584763726 | $163,590 | $163,590 | $75.00 | | |
| ISLANDEMS | Hospital GEN (EMS) | 0.5000000000 | $163,590 | $163,590 | $81.80 | | |
| LIB | Library Sno-Isle GEN | 0.3153421757 | $163,590 | $163,590 | $51.59 | | |
| LIBCAP | Library Sno-Isle BOND (Cap Fac Imp Area) | 0.0543427938 | $163,590 | $163,590 | $8.89 | | |
| POCOUP | Port of Coupeville GEN | 0.1093371703 | $163,590 | $163,590 | $17.89 | | |
| POCOUPIDD | Port of Coupeville IDD | 0.3409740022 | $163,590 | $163,590 | $55.78 | | |
| COUPSDTECH | School 204 CP (TECH) | 0.7545480007 | $163,590 | $163,590 | $123.44 | | |
| SCH204MO | School 204 Enrichment | 0.6716186034 | $163,590 | $163,590 | $109.87 | | |
| ST | State School | 1.3035497053 | $163,590 | $163,590 | $213.25 | | |
| ST2 | State School Part 2 | 0.8169543533 | $163,590 | $163,590 | $133.65 | | |
| | Total Tax Rate: | 7.6592568070 | | | | | |
| | | | | Taxes w/Current Exemptions: | $1,253.00 | | |
| | | | | Taxes w/o Exemptions: | $1,253.00 | | |
Improvement / Building
| Improvement #1: | RESIDENTIAL | State Code: | Y | 0.0 sqft | Value: | $0 |
| | Type | Description | Class CD | Sub Class CD | Year Built | Area |
| | oGAR | GARAGE | 3 | 0 | 2025 | 960.0 |
| | oCAR | CARPORT | 3 | 0 | 2025 | 320.0 |
| | oCAR | CARPORT | 3 | 0 | 2025 | 320.0 |
| Improvement #2: | RESIDENTIAL | State Code: | Y | 0.0 sqft | Value: | $6,090 |
Sketch
Property Image
Land
| 1 | 91 | UNDEVELOPED LAND-METES AND BOUNDS | 5.0000 | 0.00 | 0.00 | 0.00 | 1.00 | $157,500 | $0 |
Roll Value History
| 2026 | N/A | N/A | N/A | N/A | N/A |
| 2025 | $6,090 | $157,500 | $0 | $163,590 | $163,590 |
| 2024 | $0 | $140,000 | $0 | $140,000 | $140,000 |
| 2023 | $0 | $140,000 | $0 | $140,000 | $140,000 |
| 2022 | $0 | $130,000 | $0 | $130,000 | $130,000 |
| 2021 | $0 | $130,000 | $0 | $130,000 | $130,000 |
| 2020 | $0 | $120,000 | $0 | $120,000 | $120,000 |
| 2019 | $0 | $100,000 | $0 | $100,000 | $100,000 |
| 2018 | $0 | $75,000 | $0 | $75,000 | $75,000 |
| 2017 | $0 | $55,000 | $0 | $55,000 | $55,000 |
| 2016 | $0 | $75,000 | $0 | $75,000 | $75,000 |
| 2015 | $0 | $100,000 | $0 | $100,000 | $100,000 |
| 2014 | $0 | $100,000 | $0 | $100,000 | $100,000 |
| 2013 | $0 | $100,000 | $0 | $100,000 | $100,000 |
| 2012 | $0 | $100,000 | $0 | $100,000 | $100,000 |
| 2011 | $0 | $100,000 | $0 | $100,000 | $100,000 |
| 2010 | $0 | $100,000 | $0 | $100,000 | $100,000 |
| 2009 | $0 | $122,500 | $0 | $122,500 | $122,500 |
| 2008 | $0 | $60,000 | $0 | $60,000 | $60,000 |
| 2007 | $0 | $60,000 | $0 | $60,000 | $60,000 |
Deed and Sales History
| 1 | 06/15/2023 | WD | Warranty Deed | FUCHS, MERL WINKLER | MEYER, EDWARD | | | $193,000.00 | 57020 | 4561121 |
| 2 | 08/02/2018 | WD | Warranty Deed | MACKENZIE, JOHN BRUCE | FUCHS, MERL WINKLER | | | $80,000.00 | 35378 | 4449605 |
| 3 | 04/20/2018 | QCD | Quit Claim Deed | MACKENZIE TTEE, GARY MARK | MACKENZIE, JOHN BRUCE | | | $0.00 | 35376 | 4449604 |
| 4 | 04/23/2018 | QCD | Quit Claim Deed | MACKENZIE ET AL, LAURA JEAN | MACKENZIE TTEE, GARY MARK | | | $0.00 | 35377 | 4449603 |
| 5 | 01/07/1999 | QCD | Quit Claim Deed | MACKENZIE, LAURA JEAN | MACKENZIE ET AL, LAURA JEAN | | | $0.00 | 90083 | 99000547 |
| 6 | 06/10/1998 | QCD | Quit Claim Deed | MACKENZIE, JOHN V | MACKENZIE, LAURA JEAN | | | $0.00 | 82249 | 98011684 |
| 7 | 01/01/1900 | OTHER | Other - Misc. Documents | Unknown | MACKENZIE, LAURA J | | | $0.00 | 82249 | 98011684 |
| 8 | 01/01/1900 | OTHER | Other - Misc. Documents | MACKENZIE, LAURA J | MACKENZIE, JOHN V | | | $0.00 | 0 | 0 |
Payout Agreement
| No payout information available.. |