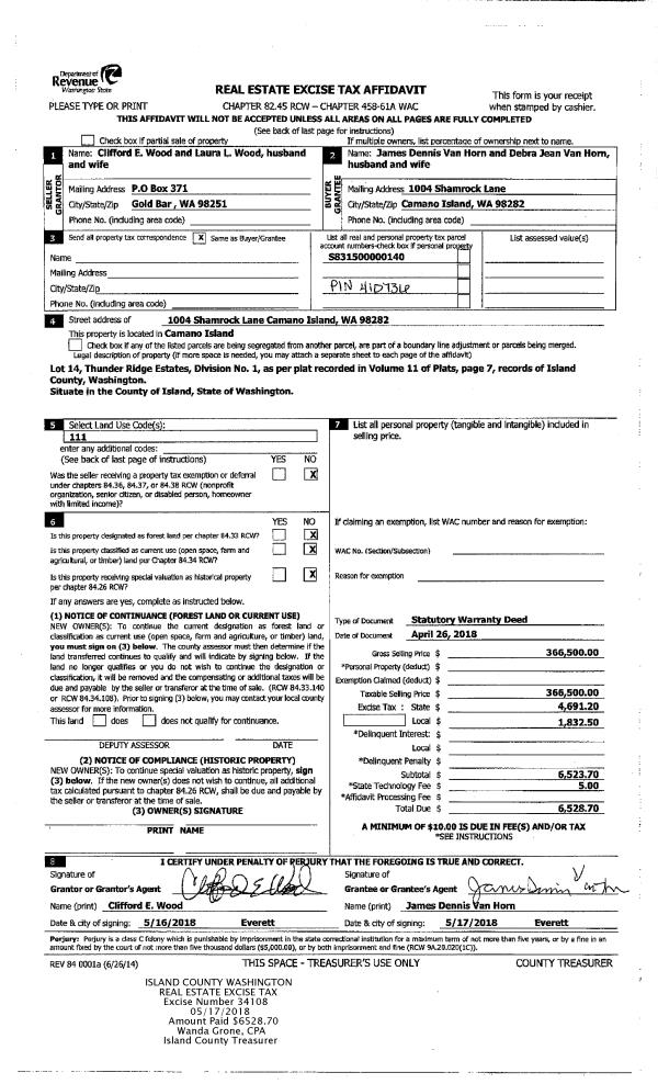
Property
Account |
| Property ID: | 86622 | Abbreviated Legal Description: | 20 - NENE E OF HWY |
| Geographic ID: | R23130-464-3930 | Agent Code: | |
| Type: | Real | | |
| Tax Area: | 312 - APPRAISER-Cpvl Schl Dist, outside Cpvl, improved, greater than 1 acre | Land Use Code | 11 |
| Open Space: | N | DFL | N |
| Historic Property: | N | Remodel Property: | N |
| Multi-Family Redevelopment: | N | | |
| Township: | 31 | Section: | 30 |
| Range: | R2 |
Location |
| Address: | 28766 SR 525 COUPEVILLE, WA 98239 | Mapsco: | |
| Neighborhood: | Cycle 2 | Map ID: | 523 |
| Neighborhood CD: | 2 |
Owner |
| Name: | TAKAHASHI, BLAQUE | Owner ID: | 313965 |
| Mailing Address: | TED TAKAHASHI 417 CHRISTOPHER COURT RIDGECREST, CA 93555 | % Ownership: | 100.0000000000% |
| | | Exemptions: | |
Taxes and Assessment Details
Values
| (+) Improvement Homesite Value: | + | $0 | |
| (+) Improvement Non-Homesite Value: | + | $4,000 | |
| (+) Land Homesite Value: | + | $0 | |
| (+) Land Non-Homesite Value: | + | $162,510 | |
| (+) Curr Use (HS): | + | $0 | $0 |
| (+) Curr Use (NHS): | + | $0 | $0 |
| | | -------------------------- | |
| (=) Market Value: | = | $166,510 | |
| (–) Productivity Loss: | – | $0 | |
| | | -------------------------- | |
| (=) Subtotal: | = | $166,510 | |
| (+) Senior Appraised Value: | + | $0 | |
| (+) Non-Senior Appraised Value: | + | $166,510 | |
| | | -------------------------- | |
| (=) Total Appraised Value: | = | $166,510 | |
| (–) Senior Exemption Loss: | – | $0 | |
| (–) Exemption Loss: | – | $0 | |
| | | -------------------------- | |
| (=) Taxable Value: | = | $166,510 | |
Taxing Jurisdiction
| Owner: | TAKAHASHI, BLAQUE | | |
| % Ownership: | 100.0000000000% | | |
| Total Value: | $166,510 | | |
| Tax Area: | 312 - APPRAISER-Cpvl Schl Dist, outside Cpvl, improved, greater than 1 acre |
| CF | Conservation Futures | 0.0316035091 | $166,510 | $166,510 | $5.26 | | |
| CEM2 | Cemetery #2 | 0.0095056933 | $166,510 | $166,510 | $1.58 | | |
| FIRE5 | Fire & Rescue Dist #5 C Whidbey GEN | 1.2008080668 | $166,510 | $166,510 | $199.95 | | |
| FIRE5BOND | Fire & Rescue Dist #5 C Whidbey BOND | 0.1400090713 | $166,510 | $166,510 | $23.31 | | |
| HOBOND | Hospital BOND | 0.1910887512 | $166,510 | $166,510 | $31.82 | | |
| HOGEN | Hospital GEN | 0.3902502903 | $166,510 | $166,510 | $64.98 | | |
| CE | County Current Expense | 0.3708482477 | $166,510 | $166,510 | $61.75 | | |
| CR | County Roads | 0.4584763726 | $166,510 | $166,510 | $76.34 | | |
| ISLANDEMS | Hospital GEN (EMS) | 0.5000000000 | $166,510 | $166,510 | $83.26 | | |
| LIB | Library Sno-Isle GEN | 0.3153421757 | $166,510 | $166,510 | $52.51 | | |
| LIBCAP | Library Sno-Isle BOND (Cap Fac Imp Area) | 0.0543427938 | $166,510 | $166,510 | $9.05 | | |
| POCOUP | Port of Coupeville GEN | 0.1093371703 | $166,510 | $166,510 | $18.21 | | |
| POCOUPIDD | Port of Coupeville IDD | 0.3409740022 | $166,510 | $166,510 | $56.78 | | |
| COUPSDTECH | School 204 CP (TECH) | 0.7545480007 | $166,510 | $166,510 | $125.64 | | |
| SCH204MO | School 204 Enrichment | 0.6716186034 | $166,510 | $166,510 | $111.83 | | |
| ST | State School | 1.3035497053 | $166,510 | $166,510 | $217.05 | | |
| ST2 | State School Part 2 | 0.8169543533 | $166,510 | $166,510 | $136.03 | | |
| | Total Tax Rate: | 7.6592568070 | | | | | |
| | | | | Taxes w/Current Exemptions: | $1,275.35 | | |
| | | | | Taxes w/o Exemptions: | $1,275.35 | | |
Improvement / Building
| Improvement #1: | RESIDENTIAL | State Code: | Y | 0.0 sqft | Value: | $4,000 |
Sketch
| No sketches available for this property. |
Property Image
Land
| 1 | 91 | UNDEVELOPED LAND-METES AND BOUNDS | 6.3900 | 0.00 | 0.00 | 0.00 | 1.00 | $162,510 | $0 |
Roll Value History
| 2026 | N/A | N/A | N/A | N/A | N/A |
| 2025 | $4,000 | $162,510 | $0 | $166,510 | $166,510 |
| 2024 | $4,000 | $140,000 | $0 | $144,000 | $144,000 |
| 2023 | $4,000 | $140,000 | $0 | $144,000 | $144,000 |
| 2022 | $4,000 | $130,000 | $0 | $134,000 | $134,000 |
| 2021 | $4,000 | $130,000 | $0 | $134,000 | $134,000 |
| 2020 | $4,000 | $120,000 | $0 | $124,000 | $124,000 |
| 2019 | $4,000 | $125,000 | $0 | $129,000 | $129,000 |
| 2018 | $4,000 | $75,000 | $0 | $79,000 | $79,000 |
| 2017 | $4,000 | $55,000 | $0 | $59,000 | $59,000 |
| 2016 | $4,000 | $75,000 | $0 | $79,000 | $79,000 |
| 2015 | $4,000 | $100,000 | $0 | $104,000 | $104,000 |
| 2014 | $4,000 | $140,000 | $0 | $144,000 | $144,000 |
| 2013 | $4,000 | $140,000 | $0 | $144,000 | $144,000 |
| 2012 | $4,000 | $115,020 | $0 | $119,020 | $119,020 |
| 2011 | $4,000 | $127,800 | $0 | $131,800 | $131,800 |
| 2010 | $4,000 | $172,530 | $0 | $176,530 | $176,530 |
| 2009 | $4,000 | $156,555 | $0 | $160,555 | $160,555 |
| 2008 | $4,000 | $76,680 | $0 | $80,680 | $80,680 |
| 2007 | $4,000 | $76,680 | $0 | $80,680 | $80,680 |
Deed and Sales History
| 1 | 09/23/2024 | WD | Warranty Deed | HONEYMOON BAY COFFEE ROASTERS, INC | TAKAHASHI, BLAQUE | | | $150,000.00 | 61352 | 4577403 |
| 2 | 05/18/2018 | WD | Warranty Deed | MITCHELL, RONALD | HONEYMOON BAY COFFEE ROASTERS, INC | | | $140,000.00 | 34290 | 4445235 |
|   | |
| 3 | 10/12/2005 | WD | Warranty Deed | MARTENS TRUSTEE, JERRY T | MITCHELL, RONALD | | | $75,000.00 | 55259 | 4151249 |
| 4 | 10/12/2005 | TRUSTEED | Trustee's Deed | MARTENS, JERRY T | MARTENS TRUSTEE, JERRY T | | | $0.00 | 55258 | 4151248 |
| 5 | 07/05/2005 | WD | Warranty Deed | MARTENS, JOSEPHINE C | MARTENS, JERRY T | | | $0.00 | 53451 | 4141145 |
| 6 | 09/23/2004 | OTHER | Other - Misc. Documents | MARTENS, JOSEPHINE C | MARTENS, JOSEPHINE C | | | $0.00 | 70366 | 0 |
| 7 | 07/01/1984 | QCD | Quit Claim Deed | MARTENS, JOSEPHINE C | MARTENS, JOSEPHINE C | | | $0.00 | 43080 | 84004693 |
| 8 | 07/01/1984 | QCD | Quit Claim Deed | MARTENS, JOSEPHINE C | MARTENS, JOSEPHINE C | | | $0.00 | 43092 | 84004794 |
| 9 | 01/01/1900 | OTHER | Other - Misc. Documents | Unknown | MARTENS, JOSEPHINE C | | | $0.00 | 0 | 0 |
Payout Agreement
| No payout information available.. |