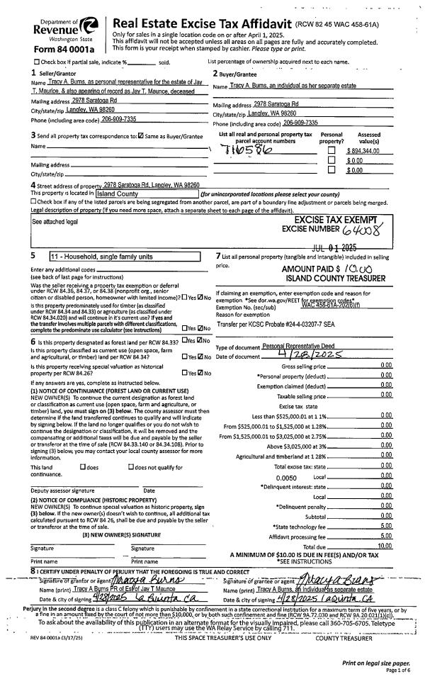
Property
Account |
| Property ID: | 86953 | Abbreviated Legal Description: | 16 - SE NE SW |
| Geographic ID: | R23132-173-2310 | Agent Code: | |
| Type: | Real | | |
| Tax Area: | 319 - APPRAISER-Cpvl Schl Dist, outside Cpvl, vacant & 50 acres or less | Land Use Code | 91 |
| Open Space: | N | DFL | N |
| Historic Property: | N | Remodel Property: | N |
| Multi-Family Redevelopment: | N | | |
| Township: | 31 | Section: | 32 |
| Range: | R2 |
Location |
| Address: | COUPEVILLE, WA 98239 | Mapsco: | |
| Neighborhood: | Cycle 2 | Map ID: | 526 |
| Neighborhood CD: | 2 |
Owner |
| Name: | GREENBANK INC. | Owner ID: | 286935 |
| Mailing Address: | PO BOX 206 GREENBANK, WA 98253 | % Ownership: | 100.0000000000% |
| | | Exemptions: | |
Taxes and Assessment Details
Values
| (+) Improvement Homesite Value: | + | $0 | |
| (+) Improvement Non-Homesite Value: | + | $0 | |
| (+) Land Homesite Value: | + | $0 | |
| (+) Land Non-Homesite Value: | + | $270,000 | |
| (+) Curr Use (HS): | + | $0 | $0 |
| (+) Curr Use (NHS): | + | $0 | $0 |
| | | -------------------------- | |
| (=) Market Value: | = | $270,000 | |
| (–) Productivity Loss: | – | $0 | |
| | | -------------------------- | |
| (=) Subtotal: | = | $270,000 | |
| (+) Senior Appraised Value: | + | $0 | |
| (+) Non-Senior Appraised Value: | + | $270,000 | |
| | | -------------------------- | |
| (=) Total Appraised Value: | = | $270,000 | |
| (–) Senior Exemption Loss: | – | $0 | |
| (–) Exemption Loss: | – | $0 | |
| | | -------------------------- | |
| (=) Taxable Value: | = | $270,000 | |
Taxing Jurisdiction
| Owner: | GREENBANK INC. | | |
| % Ownership: | 100.0000000000% | | |
| Total Value: | $270,000 | | |
| Tax Area: | 319 - APPRAISER-Cpvl Schl Dist, outside Cpvl, vacant & 50 acres or less |
| CF | Conservation Futures | 0.0316035091 | $270,000 | $270,000 | $8.53 | | |
| CEM2 | Cemetery #2 | 0.0095056933 | $270,000 | $270,000 | $2.57 | | |
| HOBOND | Hospital BOND | 0.1910887512 | $270,000 | $270,000 | $51.59 | | |
| HOGEN | Hospital GEN | 0.3902502903 | $270,000 | $270,000 | $105.37 | | |
| CE | County Current Expense | 0.3708482477 | $270,000 | $270,000 | $100.13 | | |
| CR | County Roads | 0.4584763726 | $270,000 | $270,000 | $123.79 | | |
| ISLANDEMS | Hospital GEN (EMS) | 0.5000000000 | $270,000 | $270,000 | $135.00 | | |
| LIB | Library Sno-Isle GEN | 0.3153421757 | $270,000 | $270,000 | $85.14 | | |
| LIBCAP | Library Sno-Isle BOND (Cap Fac Imp Area) | 0.0543427938 | $270,000 | $270,000 | $14.67 | | |
| POCOUP | Port of Coupeville GEN | 0.1093371703 | $270,000 | $270,000 | $29.52 | | |
| POCOUPIDD | Port of Coupeville IDD | 0.3409740022 | $270,000 | $270,000 | $92.06 | | |
| COUPSDTECH | School 204 CP (TECH) | 0.7545480007 | $270,000 | $270,000 | $203.73 | | |
| SCH204MO | School 204 Enrichment | 0.6716186034 | $270,000 | $270,000 | $181.34 | | |
| ST | State School | 1.3035497053 | $270,000 | $270,000 | $351.96 | | |
| ST2 | State School Part 2 | 0.8169543533 | $270,000 | $270,000 | $220.58 | | |
| | Total Tax Rate: | 6.3184396689 | | | | | |
| | | | | Taxes w/Current Exemptions: | $1,705.98 | | |
| | | | | Taxes w/o Exemptions: | $1,705.98 | | |
Improvement / Building
Sketch
| No sketches available for this property. |
Property Image
Land
| 1 | 35 | AC (10.00-30.99) | 10.0000 | 435600.00 | 0.00 | 0.00 | 1.00 | $270,000 | $0 |
Roll Value History
| 2026 | N/A | N/A | N/A | N/A | N/A |
| 2025 | $0 | $270,000 | $0 | $270,000 | $270,000 |
| 2024 | $0 | $250,000 | $0 | $250,000 | $250,000 |
| 2023 | $0 | $240,000 | $0 | $240,000 | $240,000 |
| 2022 | $0 | $200,000 | $0 | $200,000 | $200,000 |
| 2021 | $0 | $170,000 | $0 | $170,000 | $170,000 |
| 2020 | $0 | $150,000 | $0 | $150,000 | $150,000 |
| 2019 | $0 | $150,000 | $0 | $150,000 | $150,000 |
| 2018 | $0 | $125,000 | $0 | $125,000 | $125,000 |
| 2017 | $0 | $100,000 | $0 | $100,000 | $100,000 |
| 2016 | $0 | $100,000 | $0 | $100,000 | $100,000 |
| 2015 | $0 | $130,000 | $0 | $130,000 | $130,000 |
| 2014 | $0 | $130,000 | $0 | $130,000 | $130,000 |
| 2013 | $0 | $130,000 | $0 | $130,000 | $130,000 |
| 2012 | $0 | $130,000 | $0 | $130,000 | $130,000 |
| 2011 | $0 | $130,000 | $0 | $130,000 | $130,000 |
| 2010 | $0 | $130,000 | $0 | $130,000 | $130,000 |
| 2009 | $0 | $200,000 | $0 | $200,000 | $200,000 |
| 2008 | $0 | $82,400 | $0 | $82,400 | $82,400 |
| 2007 | $0 | $82,400 | $0 | $82,400 | $82,400 |
Deed and Sales History
| 1 | 08/16/2021 | QCD | Quit Claim Deed | REMPEL BROS CONCRETE INC | GREENBANK INC. | | | $0.00 | 49648 | 4526964 |
| 2 | 10/10/2018 | OTHER | Other - Misc. Documents | REMPEL BROS CONCRETE INC | GREENBANK INC. | | | | 87872 | |
| 3 | 04/25/2006 | 5 | DNU - Marriage License/Name Change | Unknown | REMPEL BROS CONCRETE INC, | | | $0.00 | 62249 | 4171313 |
| 4 | 01/01/1992 | WD | Warranty Deed | MCAULIFFE, JAMES M | REMPEL, SAND & | | | $14,300.00 | 20169 | 92000681 |
| 5 | 07/01/1990 | WD | Warranty Deed | MCAULIFFE, JAMES M | MCAULIFFE, JAMES M | | | $42,200.00 | 4273 | 90014104 |
| 6 | 04/01/1989 | WD | Warranty Deed | WRIGHTSMAN, HENRY J | MCAULIFFE, JAMES M | | | $29,220.00 | 91541 | 89005405 |
| 7 | 01/01/1900 | OTHER | Other - Misc. Documents | Unknown | WRIGHTSMAN, HENRY J | | | $0.00 | 0 | 0 |
Payout Agreement
| No payout information available.. |