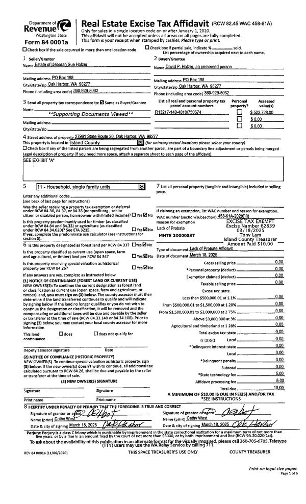
Property
Account |
| Property ID: | 87266 | Abbreviated Legal Description: | 10 - IN GL4: BG NECR GL4 S330.020' W153.667' TPB W679.874' TO HWY 525 S9*E 338.783' N88*E623.271' N333 .903' TPB EX PT TO ST HWY AF#99023375 KATHLEEN E COX, BRIDGET ANN HUBBARD & PATRICIA JO DAVID |
| Geographic ID: | R23132-487-0870 | Agent Code: | |
| Type: | Real | | |
| Tax Area: | 319 - APPRAISER-Cpvl Schl Dist, outside Cpvl, vacant & 50 acres or less | Land Use Code | 91 |
| Open Space: | N | DFL | N |
| Historic Property: | N | Remodel Property: | N |
| Multi-Family Redevelopment: | N | | |
| Township: | 31 | Section: | 32 |
| Range: | R2 |
Location |
| Address: | | Mapsco: | |
| Neighborhood: | Cycle 2 | Map ID: | 528 |
| Neighborhood CD: | 2 |
Owner |
| Name: | BACHRACH, BRENDA MARIE | Owner ID: | 313931 |
| Mailing Address: | 4349 S MARBLE ST GILBERT, AZ 85297 | % Ownership: | 100.0000000000% |
| | | Exemptions: | |
Taxes and Assessment Details
Values
| (+) Improvement Homesite Value: | + | $0 | |
| (+) Improvement Non-Homesite Value: | + | $0 | |
| (+) Land Homesite Value: | + | $0 | |
| (+) Land Non-Homesite Value: | + | $153,465 | |
| (+) Curr Use (HS): | + | $0 | $0 |
| (+) Curr Use (NHS): | + | $0 | $0 |
| | | -------------------------- | |
| (=) Market Value: | = | $153,465 | |
| (–) Productivity Loss: | – | $0 | |
| | | -------------------------- | |
| (=) Subtotal: | = | $153,465 | |
| (+) Senior Appraised Value: | + | $0 | |
| (+) Non-Senior Appraised Value: | + | $153,465 | |
| | | -------------------------- | |
| (=) Total Appraised Value: | = | $153,465 | |
| (–) Senior Exemption Loss: | – | $0 | |
| (–) Exemption Loss: | – | $0 | |
| | | -------------------------- | |
| (=) Taxable Value: | = | $153,465 | |
Taxing Jurisdiction
| Owner: | BACHRACH, BRENDA MARIE | | |
| % Ownership: | 100.0000000000% | | |
| Total Value: | $153,465 | | |
| Tax Area: | 319 - APPRAISER-Cpvl Schl Dist, outside Cpvl, vacant & 50 acres or less |
| CF | Conservation Futures | 0.0316035091 | $153,465 | $153,465 | $4.85 | | |
| CEM2 | Cemetery #2 | 0.0095056933 | $153,465 | $153,465 | $1.46 | | |
| HOBOND | Hospital BOND | 0.1910887512 | $153,465 | $153,465 | $29.33 | | |
| HOGEN | Hospital GEN | 0.3902502903 | $153,465 | $153,465 | $59.89 | | |
| CE | County Current Expense | 0.3708482477 | $153,465 | $153,465 | $56.91 | | |
| CR | County Roads | 0.4584763726 | $153,465 | $153,465 | $70.36 | | |
| ISLANDEMS | Hospital GEN (EMS) | 0.5000000000 | $153,465 | $153,465 | $76.73 | | |
| LIB | Library Sno-Isle GEN | 0.3153421757 | $153,465 | $153,465 | $48.39 | | |
| LIBCAP | Library Sno-Isle BOND (Cap Fac Imp Area) | 0.0543427938 | $153,465 | $153,465 | $8.34 | | |
| POCOUP | Port of Coupeville GEN | 0.1093371703 | $153,465 | $153,465 | $16.78 | | |
| POCOUPIDD | Port of Coupeville IDD | 0.3409740022 | $153,465 | $153,465 | $52.33 | | |
| COUPSDTECH | School 204 CP (TECH) | 0.7545480007 | $153,465 | $153,465 | $115.80 | | |
| SCH204MO | School 204 Enrichment | 0.6716186034 | $153,465 | $153,465 | $103.07 | | |
| ST | State School | 1.3035497053 | $153,465 | $153,465 | $200.05 | | |
| ST2 | State School Part 2 | 0.8169543533 | $153,465 | $153,465 | $125.37 | | |
| | Total Tax Rate: | 6.3184396689 | | | | | |
| | | | | Taxes w/Current Exemptions: | $969.66 | | |
| | | | | Taxes w/o Exemptions: | $969.66 | | |
Improvement / Building
Sketch
| No sketches available for this property. |
Property Image
Land
| 1 | 91 | UNDEVELOPED LAND-METES AND BOUNDS | 4.7300 | 0.00 | 0.00 | 0.00 | 1.00 | $153,465 | $0 |
Roll Value History
| 2026 | N/A | N/A | N/A | N/A | N/A |
| 2025 | $0 | $153,465 | $0 | $153,465 | $153,465 |
| 2024 | $0 | $140,000 | $0 | $140,000 | $140,000 |
| 2023 | $0 | $140,000 | $0 | $140,000 | $140,000 |
| 2022 | $0 | $130,000 | $0 | $130,000 | $130,000 |
| 2021 | $0 | $130,000 | $0 | $130,000 | $130,000 |
| 2020 | $0 | $120,000 | $0 | $120,000 | $120,000 |
| 2019 | $0 | $100,000 | $0 | $100,000 | $100,000 |
| 2018 | $0 | $75,000 | $0 | $75,000 | $75,000 |
| 2017 | $0 | $55,000 | $0 | $55,000 | $55,000 |
| 2016 | $0 | $75,000 | $0 | $75,000 | $75,000 |
| 2015 | $0 | $94,600 | $0 | $94,600 | $94,600 |
| 2014 | $0 | $94,600 | $0 | $94,600 | $94,600 |
| 2013 | $0 | $94,600 | $0 | $94,600 | $94,600 |
| 2012 | $0 | $94,600 | $0 | $94,600 | $94,600 |
| 2011 | $0 | $94,600 | $0 | $94,600 | $94,600 |
| 2010 | $0 | $94,600 | $0 | $94,600 | $94,600 |
| 2009 | $0 | $115,885 | $0 | $115,885 | $115,885 |
| 2008 | $0 | $100,125 | $0 | $100,125 | $100,125 |
| 2007 | $0 | $71,325 | $0 | $71,325 | $71,325 |
Deed and Sales History
| 1 | 09/16/2024 | WD | Warranty Deed | COX ET AL, KATHLEEN E | BACHRACH, BRENDA MARIE | | | $220,000.00 | 61313 | 4577273 |
| 2 | 09/08/1999 | WD | Warranty Deed | COX, KATHLEEN E | COX ET AL, KATHLEEN E | | | $3,000.00 | 94265 | 99023375 |
| 3 | 03/01/1993 | QCD | Quit Claim Deed | DAVID, PATRICIA J | COX, KATHLEEN E | | | $0.00 | 30835 | 93004374 |
| 4 | 02/01/1976 | TRUSTEED | Trustee's Deed | COX, KATHLEEN E | DAVID, PATRICIA J | | | $0.00 | 60401 | 0 |
| 5 | 01/01/1900 | OTHER | Other - Misc. Documents | Unknown | COX, KATHLEEN E | | | $0.00 | 0 | 0 |
Payout Agreement
| No payout information available.. |