Property
Account |
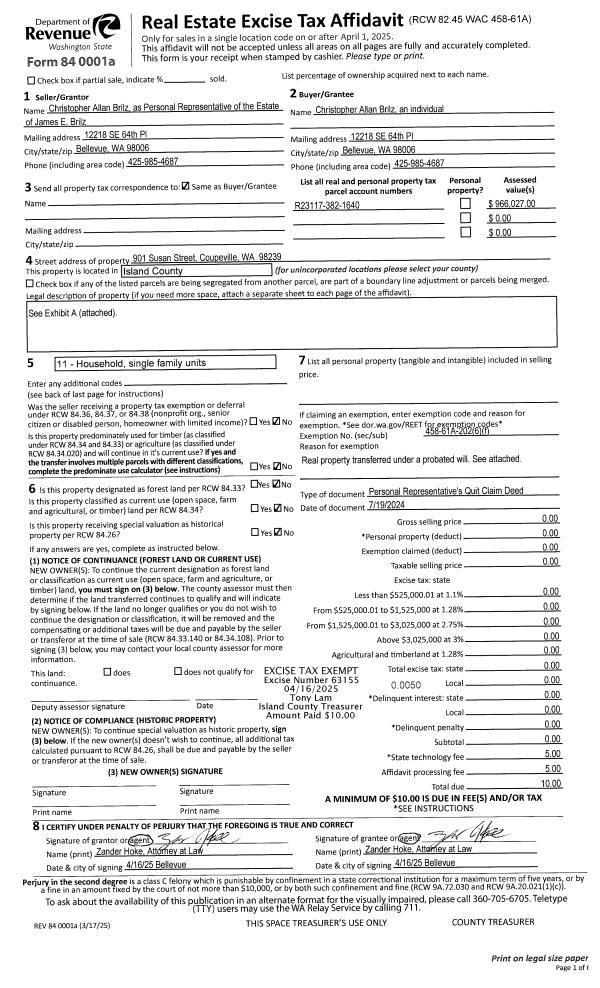
| Property ID: | 87462 | Abbreviated Legal Description: | 27 - IN GL2:BG NW CR SD SEC S ALG WLN SEC 1318.92' TO NW CR SW NW N84*E1074.98' S2*W343.43' TPB S2*E60' S84 *W140' N5*W60' N84*E140' TPB (LOT 18 UNREC PLAT BEACHCOMBERS #4) TGW ADJ TIDES |
| Geographic ID: | R23133-372-1030 | Agent Code: | |
| Type: | Real | | |
| Tax Area: | 310 - APPRAISER-Cpvl Schl Dist, outside Cpvl, improved & 1 acre or less | Land Use Code | 11 |
| Open Space: | N | DFL | N |
| Historic Property: | N | Remodel Property: | N |
| Multi-Family Redevelopment: | N | | |
| Township: | 31 | Section: | 33 |
| Range: | R2 |
Location |
| Address: | 868 SEABLUFF TERRACE COUPEVILLE, WA 98239 | Mapsco: | |
| Neighborhood: | Area 2 Waterfront Eastside Res | Map ID: | 531 |
| Neighborhood CD: | 2WFTE01R |
Owner |
| Name: | LIE, PENELOPE J | Owner ID: | 312871 |
| Mailing Address: | 23 6TH ST KIRKLAND, WA 98033 | % Ownership: | 100.0000000000% |
| | | Exemptions: | |
Taxes and Assessment Details
Values
| (+) Improvement Homesite Value: | + | $0 | |
| (+) Improvement Non-Homesite Value: | + | $180,190 | |
| (+) Land Homesite Value: | + | $0 | |
| (+) Land Non-Homesite Value: | + | $550,600 | |
| (+) Curr Use (HS): | + | $0 | $0 |
| (+) Curr Use (NHS): | + | $0 | $0 |
| | | -------------------------- | |
| (=) Market Value: | = | $730,790 | |
| (–) Productivity Loss: | – | $0 | |
| | | -------------------------- | |
| (=) Subtotal: | = | $730,790 | |
| (+) Senior Appraised Value: | + | $0 | |
| (+) Non-Senior Appraised Value: | + | $730,790 | |
| | | -------------------------- | |
| (=) Total Appraised Value: | = | $730,790 | |
| (–) Senior Exemption Loss: | – | $0 | |
| (–) Exemption Loss: | – | $0 | |
| | | -------------------------- | |
| (=) Taxable Value: | = | $730,790 | |
Taxing Jurisdiction
| Owner: | LIE, PENELOPE J | | |
| % Ownership: | 100.0000000000% | | |
| Total Value: | $730,790 | | |
| Tax Area: | 310 - APPRAISER-Cpvl Schl Dist, outside Cpvl, improved & 1 acre or less |
| CF | Conservation Futures | 0.0316035091 | $730,790 | $730,790 | $23.10 | | |
| CEM2 | Cemetery #2 | 0.0095056933 | $730,790 | $730,790 | $6.95 | | |
| FIRE5 | Fire & Rescue Dist #5 C Whidbey GEN | 1.2008080668 | $730,790 | $730,790 | $877.54 | | |
| FIRE5BOND | Fire & Rescue Dist #5 C Whidbey BOND | 0.1400090713 | $730,790 | $730,790 | $102.32 | | |
| HOBOND | Hospital BOND | 0.1910887512 | $730,790 | $730,790 | $139.65 | | |
| HOGEN | Hospital GEN | 0.3902502903 | $730,790 | $730,790 | $285.19 | | |
| CE | County Current Expense | 0.3708482477 | $730,790 | $730,790 | $271.01 | | |
| CR | County Roads | 0.4584763726 | $730,790 | $730,790 | $335.05 | | |
| ISLANDEMS | Hospital GEN (EMS) | 0.5000000000 | $730,790 | $730,790 | $365.40 | | |
| LIB | Library Sno-Isle GEN | 0.3153421757 | $730,790 | $730,790 | $230.45 | | |
| LIBCAP | Library Sno-Isle BOND (Cap Fac Imp Area) | 0.0543427938 | $730,790 | $730,790 | $39.71 | | |
| POCOUP | Port of Coupeville GEN | 0.1093371703 | $730,790 | $730,790 | $79.90 | | |
| POCOUPIDD | Port of Coupeville IDD | 0.3409740022 | $730,790 | $730,790 | $249.18 | | |
| COUPSDTECH | School 204 CP (TECH) | 0.7545480007 | $730,790 | $730,790 | $551.42 | | |
| SCH204MO | School 204 Enrichment | 0.6716186034 | $730,790 | $730,790 | $490.81 | | |
| ST | State School | 1.3035497053 | $730,790 | $730,790 | $952.62 | | |
| ST2 | State School Part 2 | 0.8169543533 | $730,790 | $730,790 | $597.02 | | |
| | Total Tax Rate: | 7.6592568070 | | | | | |
| | | | | Taxes w/Current Exemptions: | $5,597.32 | | |
| | | | | Taxes w/o Exemptions: | $5,597.32 | | |
Improvement / Building
| Improvement #1: | RESIDENTIAL | State Code: | Y | 768.0 sqft | Value: | $180,190 |
| Bathrooms: | 1 | Bedrooms: | 2 | | Ceiling: | TONGUE & GROOVE | Exterior Wall/Cover: | CEMENT FIBER | | Floor Covering: | VINYL TILE | Floor Structure: | WOOD W/SUBFLOOR | | Foundation: | CONCRETE | Heating: | BASEBOARD ELECTRIC | | Interior Finish: | DRYWALL PAINT | Plumbing Fixture Cnt: | 7 | | Roof Slope: | 12" IN 12" | Roof Structure/Cover: | BEAM ASPHALT |
|
| | Type | Description | Class CD | Sub Class CD | Year Built | Area |
| | BAS | BASE/MAIN FLOOR | 3 | 0 | 1970 | 480.0 |
| | OWP | OPEN WOOD PORCH W/STEPS | 3 | 0 | 1970 | 1153.0 |
| | UPH | HALF STORY | 3 | 0 | 1970 | 288.0 |
| | OWP | OPEN WOOD PORCH W/STEPS | 3 | 0 | 1970 | 225.0 |
Sketch
| No sketches available for this property. |
Property Image
Land
| 1 | HB | HIGH BLUFF | 0.1900 | 8276.40 | 60.00 | 0.00 | 1.00 | $550,000 | $0 |
| 2 | 55 | TIDES | 0.0000 | 0.00 | 60.00 | 0.00 | 1.00 | $600 | $0 |
Roll Value History
| 2026 | N/A | N/A | N/A | N/A | N/A |
| 2025 | $180,190 | $550,600 | $0 | $730,790 | $730,790 |
| 2024 | $116,567 | $525,600 | $0 | $642,167 | $642,167 |
| 2023 | $118,326 | $500,600 | $0 | $618,926 | $618,926 |
| 2022 | $108,738 | $375,600 | $0 | $484,338 | $484,338 |
| 2021 | $95,938 | $325,600 | $0 | $421,538 | $421,538 |
| 2020 | $93,753 | $250,600 | $0 | $344,353 | $344,353 |
| 2019 | $68,141 | $300,600 | $0 | $368,741 | $368,741 |
| 2018 | $51,028 | $275,000 | $0 | $326,028 | $326,028 |
| 2017 | $51,468 | $250,600 | $0 | $302,068 | $302,068 |
| 2016 | $52,349 | $250,600 | $0 | $302,949 | $302,949 |
| 2015 | $53,231 | $250,600 | $0 | $303,831 | $303,831 |
| 2014 | $54,112 | $250,600 | $0 | $304,712 | $304,712 |
| 2013 | $54,993 | $199,825 | $0 | $254,818 | $254,818 |
| 2012 | $53,364 | $199,825 | $0 | $253,189 | $253,189 |
| 2011 | $54,245 | $199,825 | $0 | $254,070 | $254,070 |
| 2010 | $59,538 | $199,825 | $0 | $259,363 | $259,363 |
| 2009 | $62,218 | $232,257 | $0 | $294,475 | $294,475 |
| 2008 | $63,251 | $97,896 | $0 | $161,147 | $161,147 |
| 2007 | $64,318 | $97,476 | $0 | $161,794 | $161,794 |
Deed and Sales History
| 1 | 06/21/2024 | WD | Warranty Deed | VAIL, RANDALL W | LIE, PENELOPE J | | | $800,000.00 | 60420 | 4573824 |
| 2 | 11/01/1982 | WD | Warranty Deed | SCHULTZ, ROBERT E | VAIL, RANDALL W | | | $78,000.00 | 22667 | 402431 |
| 3 | 01/01/1900 | OTHER | Other - Misc. Documents | Unknown | SCHULTZ, ROBERT E | | | $0.00 | 0 | 0 |
Payout Agreement
| No payout information available.. |