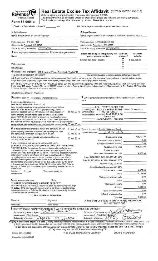
Property
Account |
| Property ID: | 87596 | Abbreviated Legal Description: | IN GL2: BG NWCR SEC 33 S1318.92' N84*E524.22' N84*E184.50' S5*E100' TPB N84*E131.27' ALG CUR/L 10.11' S5*E60' S84*W130' N5*W70' TPB TGW EZ (LOT 10 UNREC BEACHCOMBERS #4) |
| Geographic ID: | R23133-393-0820 | Agent Code: | |
| Type: | Real | | |
| Tax Area: | 310 - APPRAISER-Cpvl Schl Dist, outside Cpvl, improved & 1 acre or less | Land Use Code | 11 |
| Open Space: | N | DFL | N |
| Historic Property: | N | Remodel Property: | N |
| Multi-Family Redevelopment: | N | | |
| Township: | 31 | Section: | 33 |
| Range: | R2 |
Location |
| Address: | | Mapsco: | |
| Neighborhood: | Cycle 2 | Map ID: | 531 |
| Neighborhood CD: | 2 |
Owner |
| Name: | LAVIOLETTE TTEE, KRISTINA C | Owner ID: | 306783 |
| Mailing Address: | 8550 W DESERT INN RD #102-140 LAS VEGAS, NV 89117 | % Ownership: | 100.0000000000% |
| | | Exemptions: | |
Taxes and Assessment Details
Values
| (+) Improvement Homesite Value: | + | $0 | |
| (+) Improvement Non-Homesite Value: | + | $4,000 | |
| (+) Land Homesite Value: | + | $0 | |
| (+) Land Non-Homesite Value: | + | $80,000 | |
| (+) Curr Use (HS): | + | $0 | $0 |
| (+) Curr Use (NHS): | + | $0 | $0 |
| | | -------------------------- | |
| (=) Market Value: | = | $84,000 | |
| (–) Productivity Loss: | – | $0 | |
| | | -------------------------- | |
| (=) Subtotal: | = | $84,000 | |
| (+) Senior Appraised Value: | + | $0 | |
| (+) Non-Senior Appraised Value: | + | $84,000 | |
| | | -------------------------- | |
| (=) Total Appraised Value: | = | $84,000 | |
| (–) Senior Exemption Loss: | – | $0 | |
| (–) Exemption Loss: | – | $0 | |
| | | -------------------------- | |
| (=) Taxable Value: | = | $84,000 | |
Taxing Jurisdiction
| Owner: | LAVIOLETTE TTEE, KRISTINA C | | |
| % Ownership: | 100.0000000000% | | |
| Total Value: | $84,000 | | |
| Tax Area: | 310 - APPRAISER-Cpvl Schl Dist, outside Cpvl, improved & 1 acre or less |
| CF | Conservation Futures | 0.0316035091 | $84,000 | $84,000 | $2.65 | | |
| CEM2 | Cemetery #2 | 0.0095056933 | $84,000 | $84,000 | $0.80 | | |
| FIRE5 | Fire & Rescue Dist #5 C Whidbey GEN | 1.2008080668 | $84,000 | $84,000 | $100.87 | | |
| FIRE5BOND | Fire & Rescue Dist #5 C Whidbey BOND | 0.1400090713 | $84,000 | $84,000 | $11.76 | | |
| HOBOND | Hospital BOND | 0.1910887512 | $84,000 | $84,000 | $16.05 | | |
| HOGEN | Hospital GEN | 0.3902502903 | $84,000 | $84,000 | $32.78 | | |
| CE | County Current Expense | 0.3708482477 | $84,000 | $84,000 | $31.15 | | |
| CR | County Roads | 0.4584763726 | $84,000 | $84,000 | $38.51 | | |
| ISLANDEMS | Hospital GEN (EMS) | 0.5000000000 | $84,000 | $84,000 | $42.00 | | |
| LIB | Library Sno-Isle GEN | 0.3153421757 | $84,000 | $84,000 | $26.49 | | |
| LIBCAP | Library Sno-Isle BOND (Cap Fac Imp Area) | 0.0543427938 | $84,000 | $84,000 | $4.56 | | |
| POCOUP | Port of Coupeville GEN | 0.1093371703 | $84,000 | $84,000 | $9.18 | | |
| POCOUPIDD | Port of Coupeville IDD | 0.3409740022 | $84,000 | $84,000 | $28.64 | | |
| COUPSDTECH | School 204 CP (TECH) | 0.7545480007 | $84,000 | $84,000 | $63.38 | | |
| SCH204MO | School 204 Enrichment | 0.6716186034 | $84,000 | $84,000 | $56.42 | | |
| ST | State School | 1.3035497053 | $84,000 | $84,000 | $109.50 | | |
| ST2 | State School Part 2 | 0.8169543533 | $84,000 | $84,000 | $68.62 | | |
| | Total Tax Rate: | 7.6592568070 | | | | | |
| | | | | Taxes w/Current Exemptions: | $643.36 | | |
| | | | | Taxes w/o Exemptions: | $643.36 | | |
Improvement / Building
| Improvement #1: | RESIDENTIAL | State Code: | Y | 0.0 sqft | Value: | $4,000 |
Sketch
| No sketches available for this property. |
Property Image
Land
| 1 | 91 | UNDEVELOPED LAND-METES AND BOUNDS | 0.1800 | 7840.80 | 0.00 | 0.00 | 1.00 | $80,000 | $0 |
Roll Value History
| 2026 | N/A | N/A | N/A | N/A | N/A |
| 2025 | $4,000 | $80,000 | $0 | $84,000 | $84,000 |
| 2024 | $4,000 | $80,000 | $0 | $84,000 | $84,000 |
| 2023 | $4,000 | $80,000 | $0 | $84,000 | $84,000 |
| 2022 | $4,000 | $70,000 | $0 | $74,000 | $74,000 |
| 2021 | $4,000 | $60,000 | $0 | $64,000 | $64,000 |
| 2020 | $4,000 | $60,000 | $0 | $64,000 | $64,000 |
| 2019 | $4,000 | $60,000 | $0 | $64,000 | $64,000 |
| 2018 | $4,000 | $55,000 | $0 | $59,000 | $59,000 |
| 2017 | $4,000 | $55,000 | $0 | $59,000 | $59,000 |
| 2016 | $4,000 | $45,000 | $0 | $49,000 | $49,000 |
| 2015 | $4,000 | $40,000 | $0 | $44,000 | $44,000 |
| 2014 | $4,000 | $40,000 | $0 | $44,000 | $44,000 |
| 2013 | $4,000 | $33,250 | $0 | $37,250 | $37,250 |
| 2012 | $4,000 | $33,250 | $0 | $37,250 | $37,250 |
| 2011 | $4,000 | $35,000 | $0 | $39,000 | $39,000 |
| 2010 | $4,000 | $35,000 | $0 | $39,000 | $39,000 |
| 2009 | $4,000 | $42,900 | $0 | $46,900 | $46,900 |
| 2008 | $4,000 | $46,400 | $0 | $50,400 | $50,400 |
| 2007 | $4,000 | $46,400 | $0 | $50,400 | $50,400 |
Deed and Sales History
| 1 | 11/16/2022 | WD | Warranty Deed | PATERSON, MARGERY | LAVIOLETTE TTEE, KRISTINA C | | | $153,500.00 | 55270 | 4554349 |
|   | |
| 2 | 05/04/2011 | DECREE | Divorce Decree/Legal Separation | PATERSON, GENE M & MARGERY | PATERSON, MARGERY | | | $0.00 | 4342 | 4294759 |
| 3 | 09/01/1990 | WD | Warranty Deed | PATERSON, GENE M | PATERSON, GENE M | | | $5,700.00 | 5386 | 90017970 |
| 4 | 09/01/1990 | WD | Warranty Deed | SMITH, MICHAEL B | PATERSON, GENE M | | | $0.00 | 6030 | 90020457 |
| 5 | 04/01/1979 | OTHER | Other - Misc. Documents | Unknown | SMITH, MICHAEL B | | | $7,500.00 | 91741 | 350955 |
Payout Agreement
| No payout information available.. |