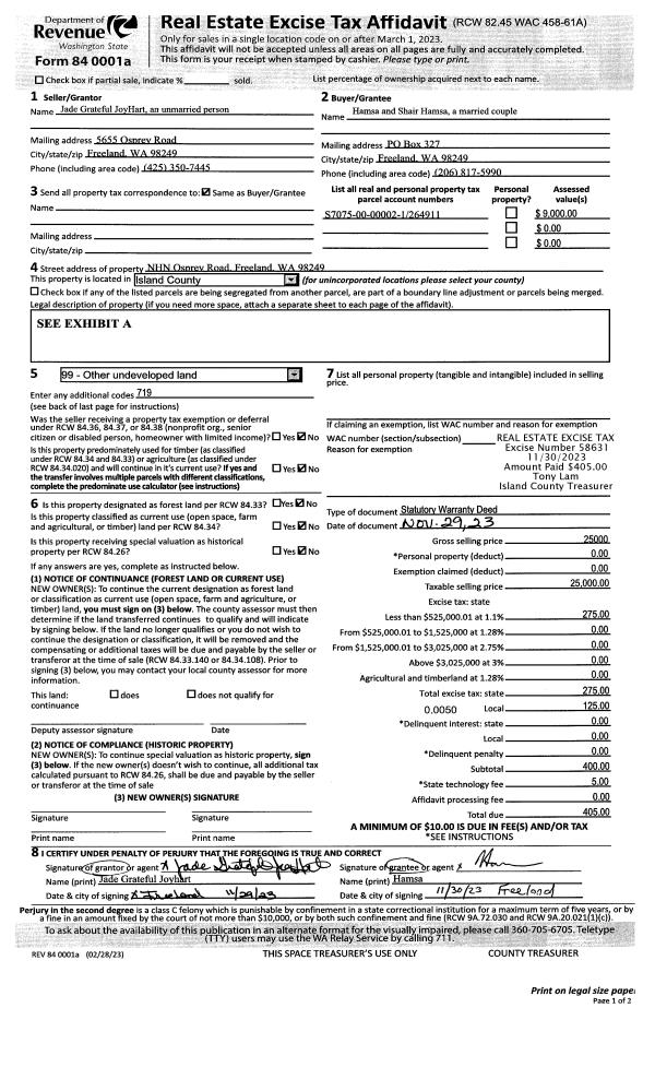
Property
Account |
| Property ID: | 8761 | Abbreviated Legal Description: | 37 - BG SE CR NW SE N277.55 TO NLN CO RD WLY 421.2' TPB W210.59' N371.55' TO SLN AIRBASE E210.59' S371.55' M/L TPB |
| Geographic ID: | R13113-179-3430 | Agent Code: | |
| Type: | Real | | |
| Tax Area: | 319 - APPRAISER-Cpvl Schl Dist, outside Cpvl, vacant & 50 acres or less | Land Use Code | 91 |
| Open Space: | N | DFL | N |
| Historic Property: | N | Remodel Property: | N |
| Multi-Family Redevelopment: | N | | |
| Township: | 31 | Section: | 13 |
| Range: | R1 |
Location |
| Address: | 15713 SR 20 COUPEVILLE, WA 98239 | Mapsco: | |
| Neighborhood: | Cycle 2 | Map ID: | 59 |
| Neighborhood CD: | 2 |
Owner |
| Name: | CHAMPAGNE, ADRIAN SHERI | Owner ID: | 310499 |
| Mailing Address: | CARLOS MANUEL RIOS PO BOX 241 COUPEVILLE, WA 98239 | % Ownership: | 100.0000000000% |
| | | Exemptions: | |
Taxes and Assessment Details
Values
| (+) Improvement Homesite Value: | + | $0 | |
| (+) Improvement Non-Homesite Value: | + | $0 | |
| (+) Land Homesite Value: | + | $0 | |
| (+) Land Non-Homesite Value: | + | $115,920 | |
| (+) Curr Use (HS): | + | $0 | $0 |
| (+) Curr Use (NHS): | + | $0 | $0 |
| | | -------------------------- | |
| (=) Market Value: | = | $115,920 | |
| (–) Productivity Loss: | – | $0 | |
| | | -------------------------- | |
| (=) Subtotal: | = | $115,920 | |
| (+) Senior Appraised Value: | + | $0 | |
| (+) Non-Senior Appraised Value: | + | $115,920 | |
| | | -------------------------- | |
| (=) Total Appraised Value: | = | $115,920 | |
| (–) Senior Exemption Loss: | – | $0 | |
| (–) Exemption Loss: | – | $0 | |
| | | -------------------------- | |
| (=) Taxable Value: | = | $115,920 | |
Taxing Jurisdiction
| Owner: | CHAMPAGNE, ADRIAN SHERI | | |
| % Ownership: | 100.0000000000% | | |
| Total Value: | $115,920 | | |
| Tax Area: | 319 - APPRAISER-Cpvl Schl Dist, outside Cpvl, vacant & 50 acres or less |
| CF | Conservation Futures | 0.0316035091 | $115,920 | $115,920 | $3.66 | | |
| CEM2 | Cemetery #2 | 0.0095056933 | $115,920 | $115,920 | $1.10 | | |
| HOBOND | Hospital BOND | 0.1910887512 | $115,920 | $115,920 | $22.15 | | |
| HOGEN | Hospital GEN | 0.3902502903 | $115,920 | $115,920 | $45.24 | | |
| CE | County Current Expense | 0.3708482477 | $115,920 | $115,920 | $42.99 | | |
| CR | County Roads | 0.4584763726 | $115,920 | $115,920 | $53.15 | | |
| ISLANDEMS | Hospital GEN (EMS) | 0.5000000000 | $115,920 | $115,920 | $57.96 | | |
| LIB | Library Sno-Isle GEN | 0.3153421757 | $115,920 | $115,920 | $36.55 | | |
| LIBCAP | Library Sno-Isle BOND (Cap Fac Imp Area) | 0.0543427938 | $115,920 | $115,920 | $6.30 | | |
| POCOUP | Port of Coupeville GEN | 0.1093371703 | $115,920 | $115,920 | $12.67 | | |
| POCOUPIDD | Port of Coupeville IDD | 0.3409740022 | $115,920 | $115,920 | $39.53 | | |
| COUPSDTECH | School 204 CP (TECH) | 0.7545480007 | $115,920 | $115,920 | $87.47 | | |
| SCH204MO | School 204 Enrichment | 0.6716186034 | $115,920 | $115,920 | $77.85 | | |
| ST | State School | 1.3035497053 | $115,920 | $115,920 | $151.11 | | |
| ST2 | State School Part 2 | 0.8169543533 | $115,920 | $115,920 | $94.70 | | |
| | Total Tax Rate: | 6.3184396689 | | | | | |
| | | | | Taxes w/Current Exemptions: | $732.43 | | |
| | | | | Taxes w/o Exemptions: | $732.43 | | |
Improvement / Building
Sketch
| No sketches available for this property. |
Property Image
Land
| 1 | 91 | UNDEVELOPED LAND-METES AND BOUNDS | 1.8000 | 78408.00 | 0.00 | 0.00 | 1.00 | $115,920 | $0 |
Roll Value History
| 2026 | N/A | N/A | N/A | N/A | N/A |
| 2025 | $0 | $115,920 | $0 | $115,920 | $115,920 |
| 2024 | $0 | $120,000 | $0 | $120,000 | $120,000 |
| 2023 | $0 | $110,000 | $0 | $110,000 | $110,000 |
| 2022 | $0 | $110,000 | $0 | $110,000 | $110,000 |
| 2021 | $0 | $75,000 | $0 | $75,000 | $75,000 |
| 2020 | $0 | $75,000 | $0 | $75,000 | $75,000 |
| 2019 | $0 | $75,000 | $0 | $75,000 | $75,000 |
| 2018 | $0 | $75,000 | $0 | $75,000 | $75,000 |
| 2017 | $0 | $75,000 | $0 | $75,000 | $75,000 |
| 2016 | $0 | $75,000 | $0 | $75,000 | $75,000 |
| 2015 | $0 | $70,000 | $0 | $70,000 | $70,000 |
| 2014 | $0 | $66,000 | $0 | $66,000 | $66,000 |
| 2013 | $0 | $66,000 | $0 | $66,000 | $66,000 |
| 2012 | $0 | $66,000 | $0 | $66,000 | $66,000 |
| 2011 | $0 | $66,000 | $0 | $66,000 | $66,000 |
| 2010 | $0 | $66,000 | $0 | $66,000 | $66,000 |
| 2009 | $0 | $74,800 | $0 | $74,800 | $74,800 |
| 2008 | $0 | $74,800 | $0 | $74,800 | $74,800 |
| 2007 | $0 | $75,000 | $0 | $75,000 | $75,000 |
Deed and Sales History
| 1 | 10/27/2023 | WD | Warranty Deed | SOUSHEK, EARL | CHAMPAGNE, ADRIAN SHERI | | | $184,999.00 | 58355 | 4566143 |
| 2 | 06/10/2022 | WD | Warranty Deed | CARLSON, BEN | SOUSHEK, EARL | | | $122,500.00 | 53444 | 4546606 |
| 3 | 02/02/2022 | WD | Warranty Deed | BLACKSTOCK LIFE ESTATE, DELLANN | CARLSON, BEN | | | $85,000.00 | 51934 | 4539577 |
| 4 | 08/01/1997 | 5 | DNU - Marriage License/Name Change | BLACKSTOCK, CHRIS, | BLACKSTOCK, DELLANN - | | | $0.00 | 67566 | 0 |
| 5 | 08/01/1974 | CD | DNU - Correction Deed | DEVRIES, JOSEPHINE & | BLACKSTOCK, CHRIS, | | | $0.00 | 52657 | 0 |
| 6 | 01/01/1900 | OTHER | Other - Misc. Documents | Unknown | DEVRIES, JOSEPHINE & | | | $0.00 | 0 | 0 |
Payout Agreement
| No payout information available.. |