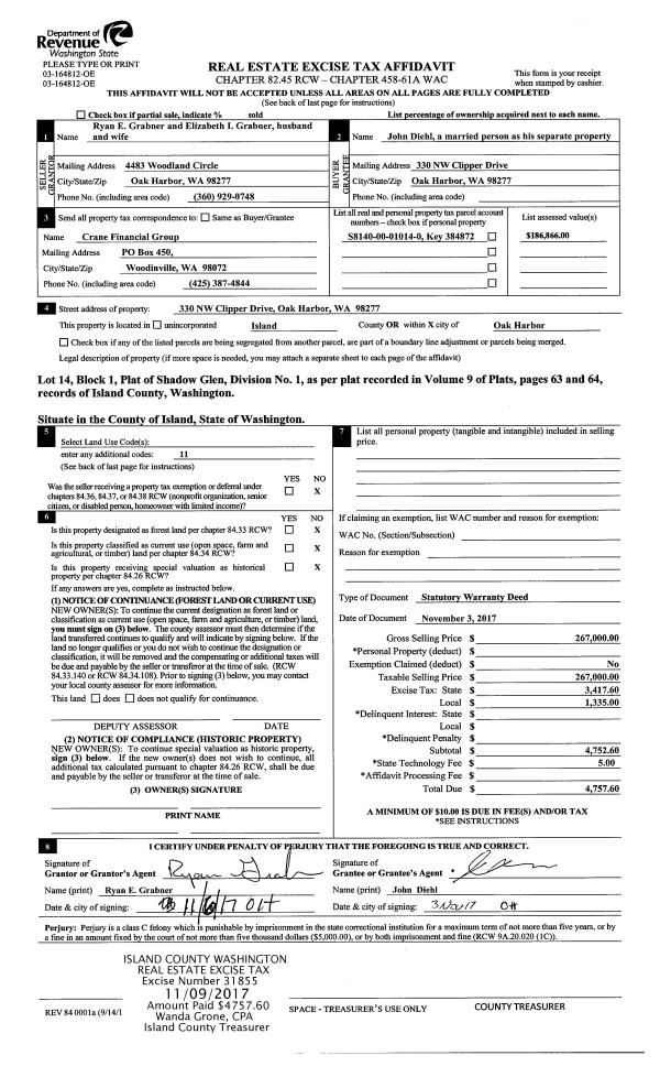
Property
Account |
| Property ID: | 88087 | Abbreviated Legal Description: | 9 - NE NW EX RD |
| Geographic ID: | R23136-466-1940 | Agent Code: | |
| Type: | Real | | |
| Tax Area: | 549 - APPRAISER-Stan/Cam Schl Dist, Special Dist, vacant & 50 acres or less | Land Use Code | 91 |
| Open Space: | N | DFL | N |
| Historic Property: | N | Remodel Property: | N |
| Multi-Family Redevelopment: | N | | |
| Township: | 31 | Section: | 36 |
| Range: | R2 |
Location |
| Address: | | Mapsco: | |
| Neighborhood: | Cycle 5 | Map ID: | 535 |
| Neighborhood CD: | 5 |
Owner |
| Name: | YANG, ZHIGUO | Owner ID: | 283326 |
| Mailing Address: | 19911 NE 30TH CT SAMMAMISH, WA 98074 | % Ownership: | 100.0000000000% |
| | | Exemptions: | |
Taxes and Assessment Details
Values
| (+) Improvement Homesite Value: | + | $0 | |
| (+) Improvement Non-Homesite Value: | + | $0 | |
| (+) Land Homesite Value: | + | $0 | |
| (+) Land Non-Homesite Value: | + | $430,000 | |
| (+) Curr Use (HS): | + | $0 | $0 |
| (+) Curr Use (NHS): | + | $0 | $0 |
| | | -------------------------- | |
| (=) Market Value: | = | $430,000 | |
| (–) Productivity Loss: | – | $0 | |
| | | -------------------------- | |
| (=) Subtotal: | = | $430,000 | |
| (+) Senior Appraised Value: | + | $0 | |
| (+) Non-Senior Appraised Value: | + | $430,000 | |
| | | -------------------------- | |
| (=) Total Appraised Value: | = | $430,000 | |
| (–) Senior Exemption Loss: | – | $0 | |
| (–) Exemption Loss: | – | $0 | |
| | | -------------------------- | |
| (=) Taxable Value: | = | $430,000 | |
Taxing Jurisdiction
| Owner: | YANG, ZHIGUO | | |
| % Ownership: | 100.0000000000% | | |
| Total Value: | $430,000 | | |
| Tax Area: | 549 - APPRAISER-Stan/Cam Schl Dist, Special Dist, vacant & 50 acres or less |
| CF | Conservation Futures | 0.0316035091 | $430,000 | $430,000 | $13.59 | | |
| EMS1 | Fire & Rescue Dist #1 Camano GEN (EMS) | 0.3677864386 | $430,000 | $430,000 | $158.15 | | |
| CE | County Current Expense | 0.3708482477 | $430,000 | $430,000 | $159.46 | | |
| CR | County Roads | 0.4584763726 | $430,000 | $430,000 | $197.14 | | |
| LCIB | Library Sno-Isle BOND (Camano Island) | 0.0396325772 | $430,000 | $430,000 | $17.04 | | |
| LIB | Library Sno-Isle GEN | 0.3153421757 | $430,000 | $430,000 | $135.60 | | |
| SCH205_401 | School 205-401 Enrichment | 1.2698420524 | $430,000 | $430,000 | $546.03 | | |
| SCH205BOND | School 205-401 BOND | 0.9396497583 | $430,000 | $430,000 | $404.05 | | |
| ST | State School | 1.3035497053 | $430,000 | $430,000 | $560.53 | | |
| ST2 | State School Part 2 | 0.8169543533 | $430,000 | $430,000 | $351.29 | | |
| | Total Tax Rate: | 5.9136851902 | | | | | |
| | | | | Taxes w/Current Exemptions: | $2,542.88 | | |
| | | | | Taxes w/o Exemptions: | $2,542.88 | | |
Improvement / Building
Sketch
| No sketches available for this property. |
Property Image
Land
| 1 | 37 | AC (31.00-+) | 39.1000 | 1703196.00 | 0.00 | 0.00 | 1.00 | $430,000 | $0 |
Roll Value History
| 2026 | N/A | N/A | N/A | N/A | N/A |
| 2025 | $0 | $430,000 | $0 | $430,000 | $430,000 |
| 2024 | $0 | $410,000 | $0 | $410,000 | $410,000 |
| 2023 | $0 | $400,000 | $0 | $400,000 | $400,000 |
| 2022 | $0 | $400,000 | $0 | $400,000 | $400,000 |
| 2021 | $0 | $390,000 | $0 | $390,000 | $390,000 |
| 2020 | $0 | $375,000 | $0 | $375,000 | $375,000 |
| 2019 | $0 | $375,000 | $0 | $375,000 | $375,000 |
| 2018 | $0 | $350,000 | $0 | $350,000 | $350,000 |
| 2017 | $0 | $350,000 | $0 | $350,000 | $350,000 |
| 2016 | $0 | $340,000 | $0 | $340,000 | $340,000 |
| 2015 | $0 | $340,170 | $0 | $340,170 | $340,170 |
| 2014 | $0 | $340,170 | $0 | $340,170 | $340,170 |
| 2013 | $0 | $340,170 | $0 | $340,170 | $340,170 |
| 2012 | $0 | $340,170 | $0 | $340,170 | $340,170 |
| 2011 | $0 | $340,170 | $0 | $340,170 | $340,170 |
| 2010 | $0 | $340,170 | $0 | $340,170 | $340,170 |
| 2009 | $0 | $391,000 | $0 | $391,000 | $391,000 |
| 2008 | $0 | $363,982 | $0 | $363,982 | $363,982 |
| 2007 | $0 | $363,982 | $0 | $363,982 | $363,982 |
Deed and Sales History
| 1 | 12/13/2017 | QCD | Quit Claim Deed | HUANG, LUCY L C | YANG, ZHIGUO | | | $0.00 | 32325 | 4436011 |
| 2 | 09/02/2002 | DECREE | Divorce Decree/Legal Separation | HUANG, WEI-PAO | HUANG, LUCY L C | | | $0.00 | 34878 | 4080902 |
| 3 | 11/01/1989 | WD | Warranty Deed | MCKINSTRY, SAMUEL D | HUANG, WEI-PAO | | | $95,000.00 | 95260 | 89016912 |
| 4 | 05/01/1983 | OTHER | Other - Misc. Documents | Unknown | MCKINSTRY, SAMUEL D | | | $0.00 | 59978 | 0 |
Payout Agreement
| No payout information available.. |